
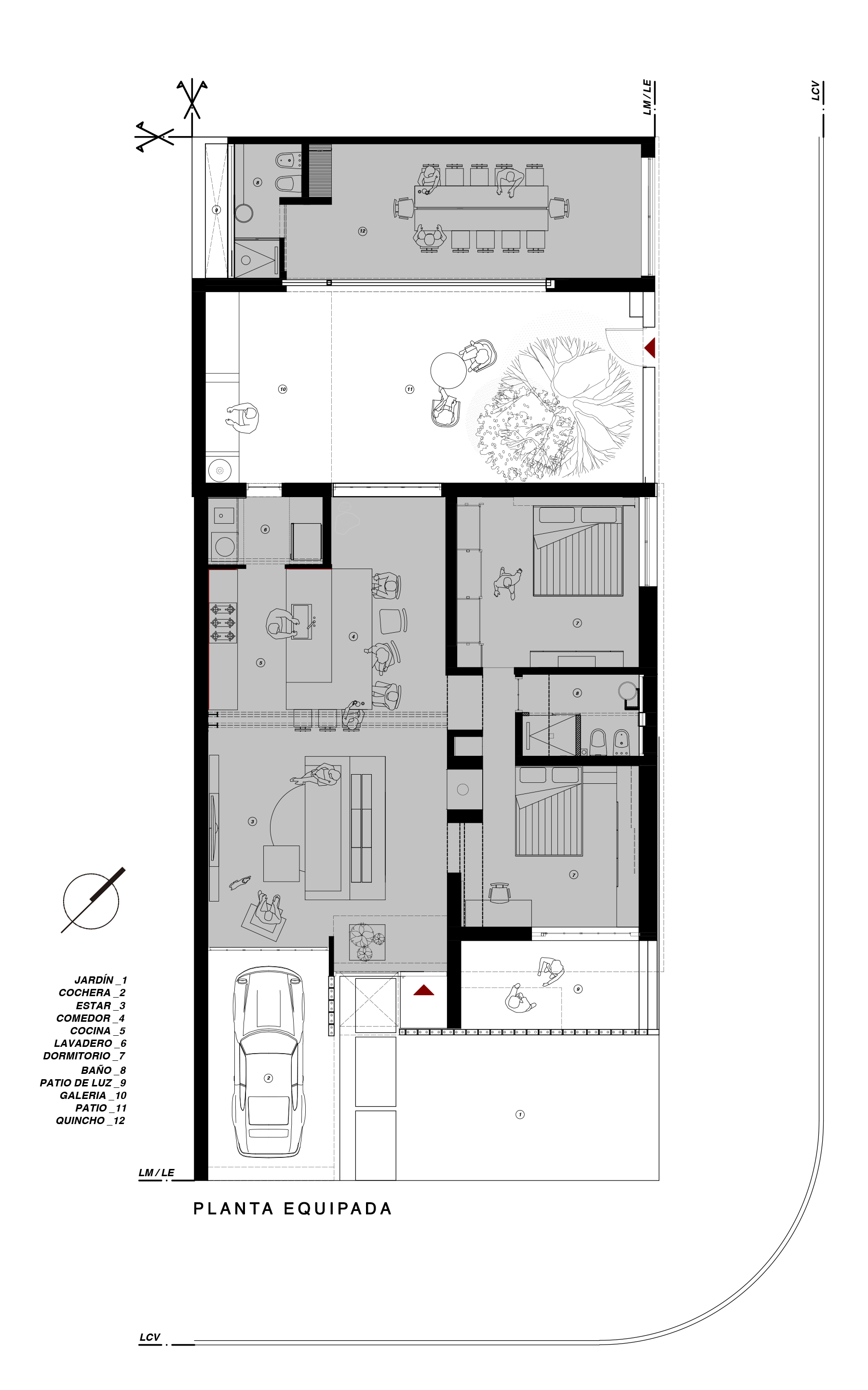
HOUSE 1954
아르헨티나, 코르도바주, 비야 마리아에 위치한 HOUSE 1954는 1954년에 지어진 코너 주택의 리노베이션 프로젝트이다. 설계를 맡은 에페에메 아르키텍츠(EFEEME architects)는 기존 170㎡ 규모의 주택을 단순히 보수하는 대신, 프로그램을 재구성하는 전략을 택했다.
개입의 핵심은 기능을 두 개의 연속된 블록, 즉 공적 영역과 사적 영역으로 재조직하는 데 있다. 서비스 기능은 독립된 모놀리식 모듈 안에 집중되었다. 이 자율적 모듈은 설비와 고정 프로그램을 흡수하며 나머지 공간을 비워낸다. 그 결과 공간은 더 유연해지고, 시간의 변화에 따라 가역적 전환이 가능해졌다.
프로젝트는 지역 맥락에 대한 분명한 태도를 드러낸다. 설계는 아르헨티나의 현실적 조건과 가용 자원에 기반해 이루어졌다. 특히 벽돌은 코르도바 지역 건축 문화에 깊이 뿌리내린 재료이다. 이 프로젝트는 벽돌을 해체하지 않고, 그 논리를 전복했다. 독립된 철골 구조에 매달린 벽돌은 더 이상 하중을 지지하는 모놀리식 벽이 아니다. 벽돌은 구조체로부터 분리되며 공간의 경계를 재정의한다.
이때 공백은 물질과 동등한 위상을 갖는다. 벽은 더 이상 막는 장치가 아니라 경험이 된다. 빛은 틈 사이를 통과하고, 계절은 그 밀도를 바꾼다. 사용자의 움직임은 그림자와 투명도의 변화를 유도한다. 그렇게 ‘공간 속의 또 다른 공간’이 형성된다. 경험은 물질의 겹 위에서 펼쳐진다.
노출 콘크리트, 철, 석재, 벽돌, 목재는 별도의 마감 없이 드러난다. 인위적 덧댐이나 위장은 없다. 각 재료는 자신의 구조적·감각적 성질을 그대로 표현한다. 이는 재료의 정직성을 드러내는 태도이다.
특히 매달린 벽돌 요소는 완결되지 않은 상태처럼 보인다. 다소 임시적이고 유동적인 인상을 남긴다. 이 긴장은 공간에 미묘한 불안과 가능성을 동시에 부여한다. 벽돌은 무겁고 단단한 재료라는 기존 인식에서 벗어나, 가볍고 유동적이며 비물질적인 성격으로 전환된다.
이 프로젝트는 재료를 바꾸지 않는다. 대신 재료가 작동하는 논리를 바꾼다. 혁신은 형태가 아니라 사고방식에서 출발한다. HOUSE 1954는 물질과 시간, 거주와 맥락 사이에서 이루어지는 지속적인 협상으로서의 건축을 제안한다. 존중의 제스처와 절제된 반항이 동시에 존재하는 공간이다.









































건축가 에페에메 아르키텍츠(EFEEME architects)
위치 아르헨티나, 코르도바주, 비야 마리아
용도 단독주택
연면적 170㎡
준공 2025
대표건축가 Flavio Diaz, Marina Alves Carneiro
사진작가 Gonzalo Viramonte
'Architecture Project > Single Family' 카테고리의 다른 글
| 담장을 집으로 바꾸다, 트빌리시의 인버티드 하우스 / 티아이엠엠 (0) | 2026.03.04 |
|---|---|
| 날개처럼 내려앉은 단층의 집, 카사 CR / 에스오 아르키텍투라 앤 디자인 (0) | 2026.02.26 |
| 풍경에 기생하듯 스며든 구조, 하우스 X / 보하우스 아르키텍투라 (0) | 2026.02.24 |
| 일 하는 곳에서 거주하는 곳으로, 축사 리모델링 프로젝트 / 마데베 아르키텍토스 (0) | 2026.02.24 |
| 녹지와 함께 구성한 단층의 질서, 하우스 SM / 마리우 알베스 아르키테투라 (0) | 2026.02.23 |
마실와이드 | 등록번호 : 서울, 아03630 | 등록일자 : 2015년 03월 11일 | 마실와이드 | 발행ㆍ편집인 : 김명규 | 청소년보호책임자 : 최지희 | 발행소 : 서울시 마포구 월드컵로8길 45-8 1층 | 발행일자 : 매일



