바닷바람과 함께 숨 쉬는 마을의 전시관, 우양문화역사전시관 / 더블유에이유 디자인
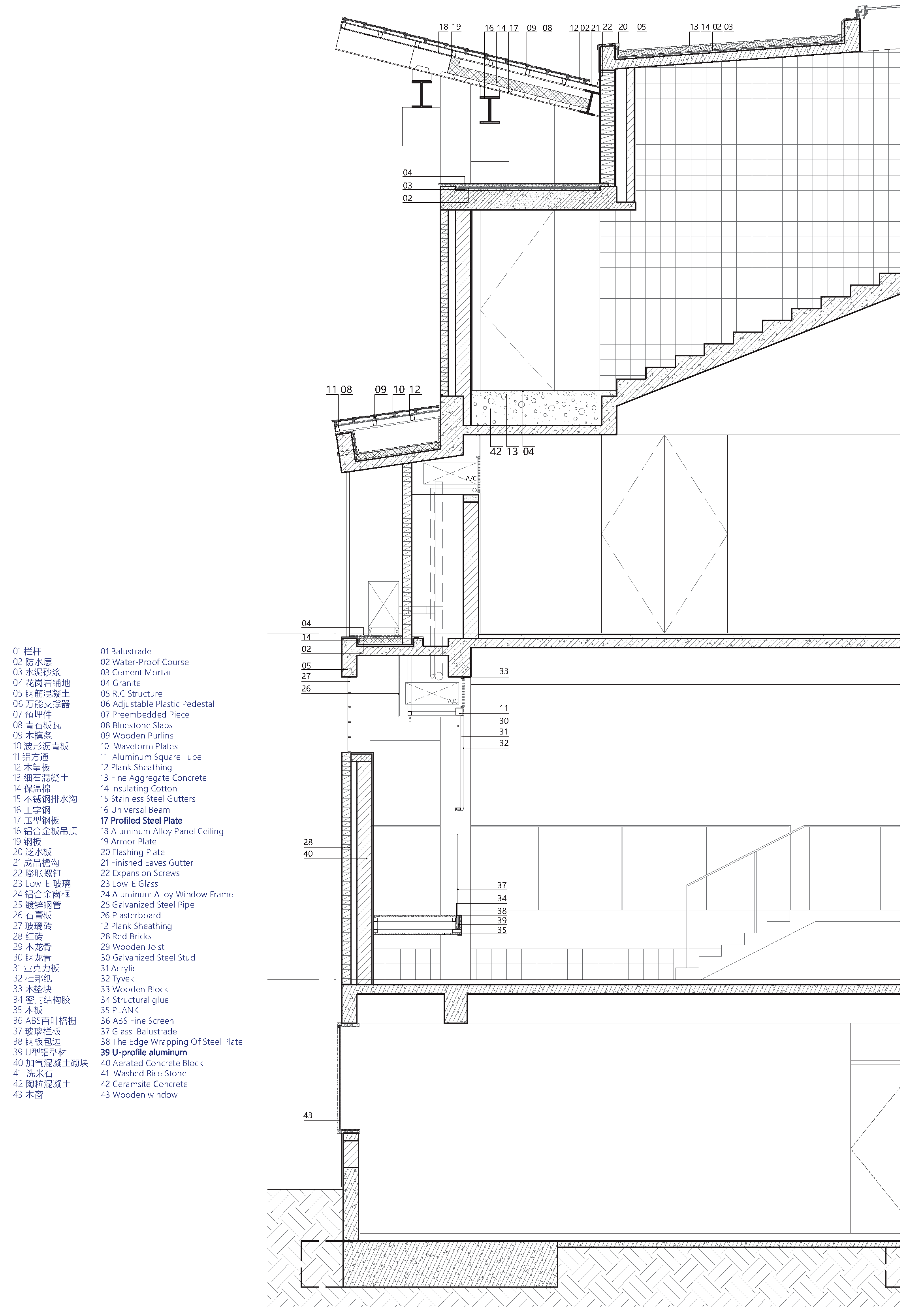
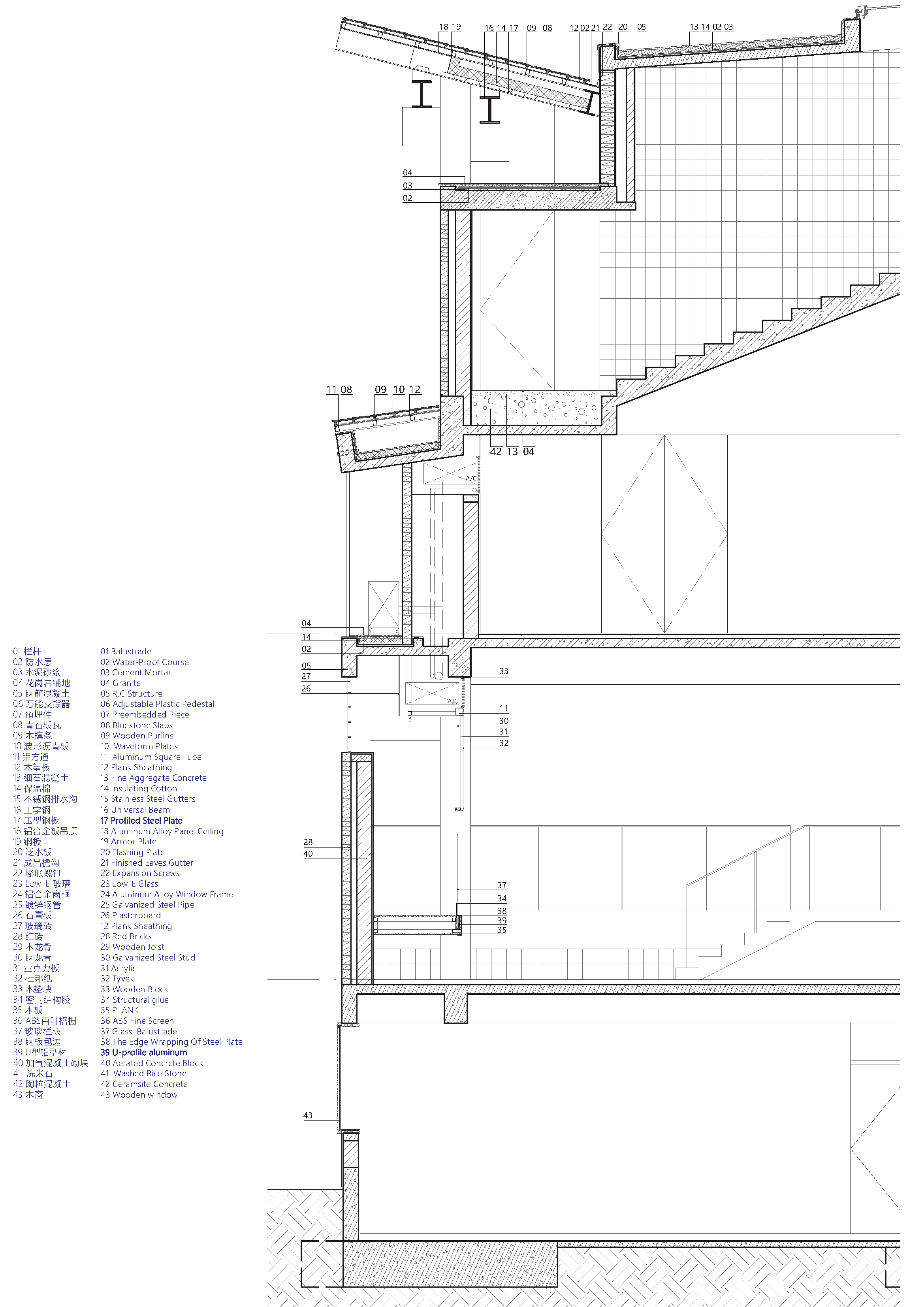
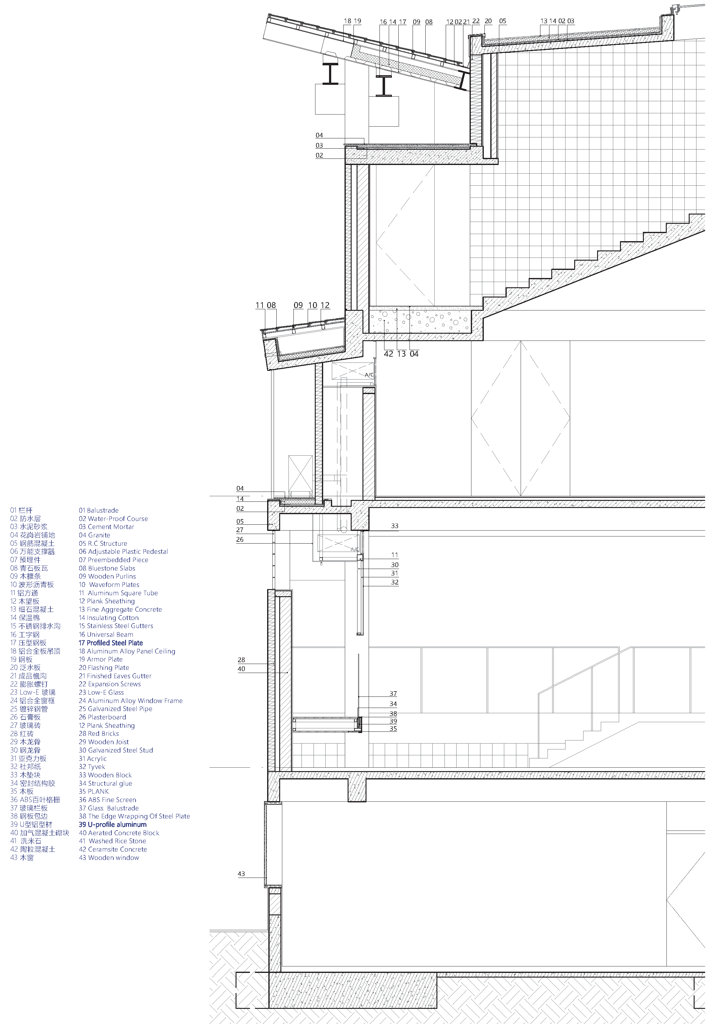
우양문화역사전시관(Wuyang Cultural Station)은 천 년이 넘는 유구한 역사를 지닌 광둥성 잔장시(湛江市)의 해안 마을인 우양(吴阳)에 위치한다. 이 전시관은 지역의 역사와 문화유산을 기념하는 동시
kr.masilground.com




건축가 더블유에이유 디자인 (WAU Design)
위치 중국, 우양
사진작가 Siming WU
'Detail' 카테고리의 다른 글
| [브라켓베이스상세] 석재와 유리, 빛으로 엮인 파사드의 구축적 대화 / 마넹 아키텍처 (0) | 2025.10.29 |
|---|---|
| [천창단면상세] 석재와 유리, 빛으로 엮인 파사드의 구축적 대화 / 마넹 아키텍처 (0) | 2025.10.29 |
| [단면상세] 시간을 거슬러 되살린 도우루 언덕의 집 / 코레이아라가치 아키텍투로스 (0) | 2025.10.17 |
| [창호상세] 시간을 거슬러 되살린 도우루 언덕의 집 / 코레이아라가치 아키텍투로스 (0) | 2025.10.16 |
| [목구조지붕상세] 건축, 예술, 그리고 도자의 기억을 품은 장소 / 그레이스페이스 아키텍츠 (0) | 2025.10.01 |
마실와이드 | 등록번호 : 서울, 아03630 | 등록일자 : 2015년 03월 11일 | 마실와이드 | 발행ㆍ편집인 : 김명규 | 청소년보호책임자 : 최지희 | 발행소 : 서울시 마포구 월드컵로8길 45-8 1층 | 발행일자 : 매일



