
MUWA NISEKO
‘분양형 콘도미니엄’ 을 외관에 표현하여 니세코의 새로운 랜드마크 실현
세계적인 스키 리조트 지역으로 해외 스키어와 투자자들에게 주목받고 있는 홋카이도 니세코 지역으로 스키장에 직결되며, 지역의 상징인 요테이산(羊蹄山)과 자작나무 숲을 전망할 수 있는 특등석에 위치한 콘도미니엄 호텔이다. 계획지는 국립공원 구역에 위치하기 때문에 자연공원법에 따라 건물 높이, 대지경계선에서의 후퇴 거리, 건폐율, 지붕 형태, 외장 재료, 색상 등 여러 가지 사항이 규제 대상이 된다. 이에 본 계획은, 작은 규모의 건물이 흩어져 있는 니세코 지역의 풍경, 홋카이도의 원풍경인 삼각 지붕의 연속, 그리고 지역의 역사와 문화 등의 맥락을 읽어내어, 경제 원리와 합리성도 추구하면서 홋카이도와 니세코의 풍경을 계승하는 건축을 실현했다.
일본 가옥에는 외부와 내부를 부드럽게 연결하는「엔가와(縁側)」라는 완충 공간이 있다. 이는 가혹한 자연 환경과 대화하기 위한 선조들의 지혜이며, 공과 사를 완만하게 나누는 장치이기도 하다. 여기서는 이 「엔가와(縁側)」를 현대적으로 재해석하여, 한 객실의 유닛을 하나의 사각형의 튜브형태로 나누어진 발코니를 각 객실에 배치하는 것으로 프라이버시 보호와 개방감을 동시에 충족시켰으며, 각 객실에 오너가 있는 「분양형 콘도미니엄」 라는 프로그램을 개별 집합체로서 외관에 표현했다.
최상층에서는「엔가와(縁側)」를 일본 건축 지붕의 기본형인 맞배지붕 형상으로 하였다. 내부의 플랜에 맞춘 여러 종류의 경사를 가진 맞배지붕이 반복되는 외관은 주위의 아름다운 산줄기나 풍경과 호응하면서 일본의 미의식을 느낄 수 있는 니세코의 새로운 풍경이 된다.
니세코의 풍경과 호응하는 비일상의 공간
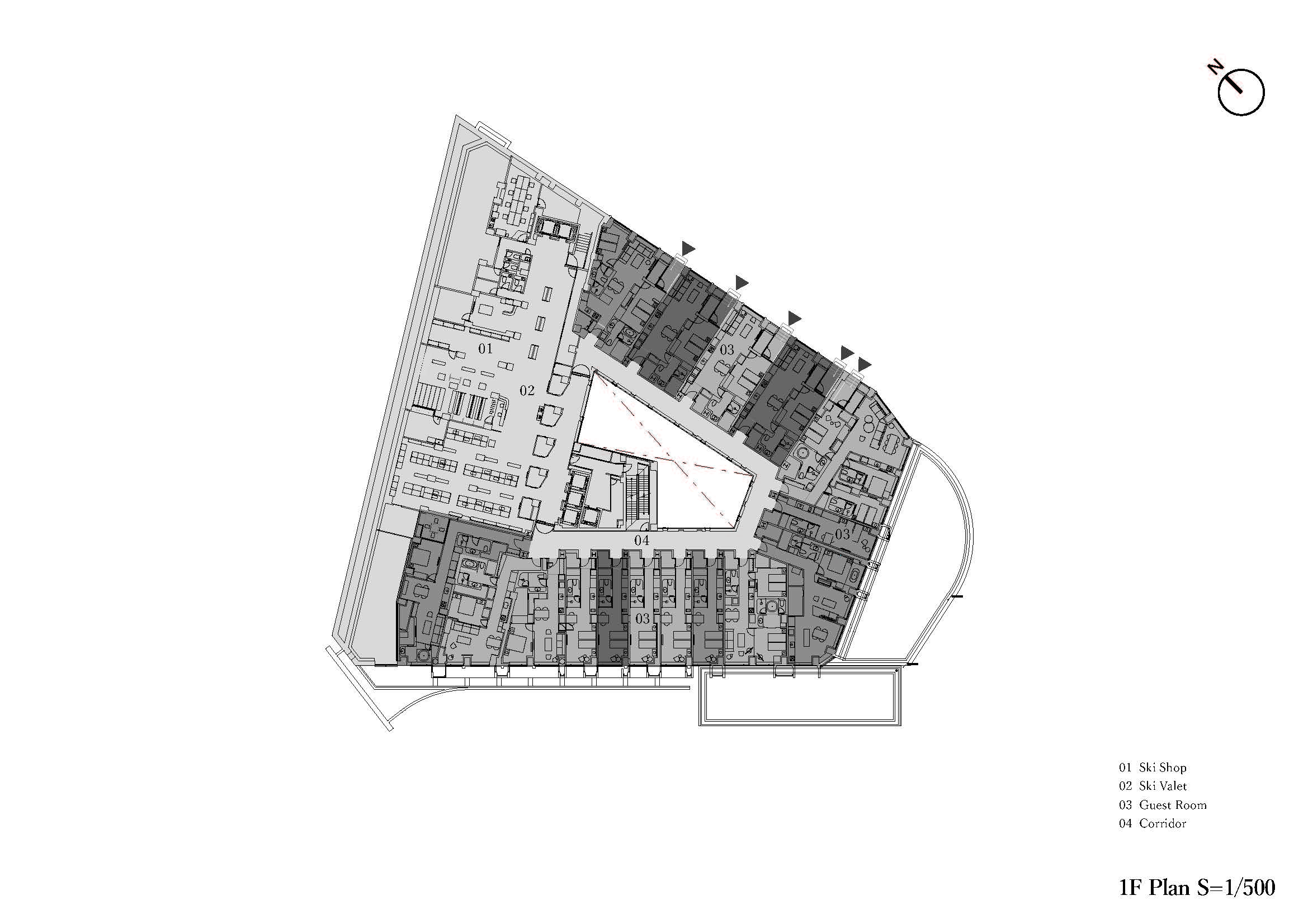
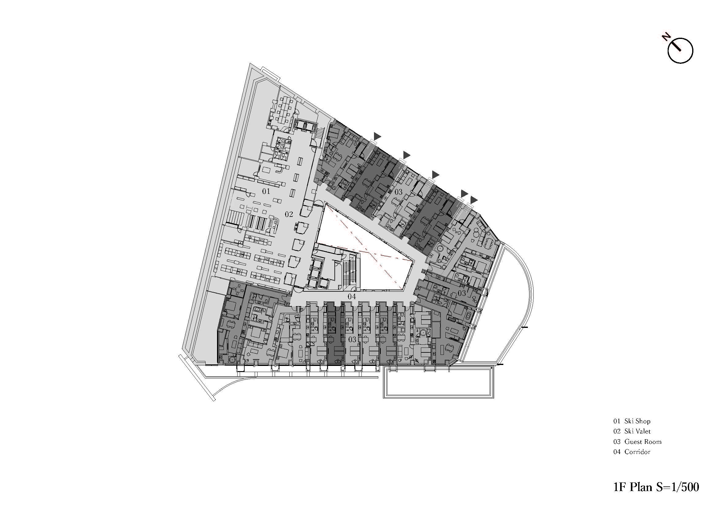
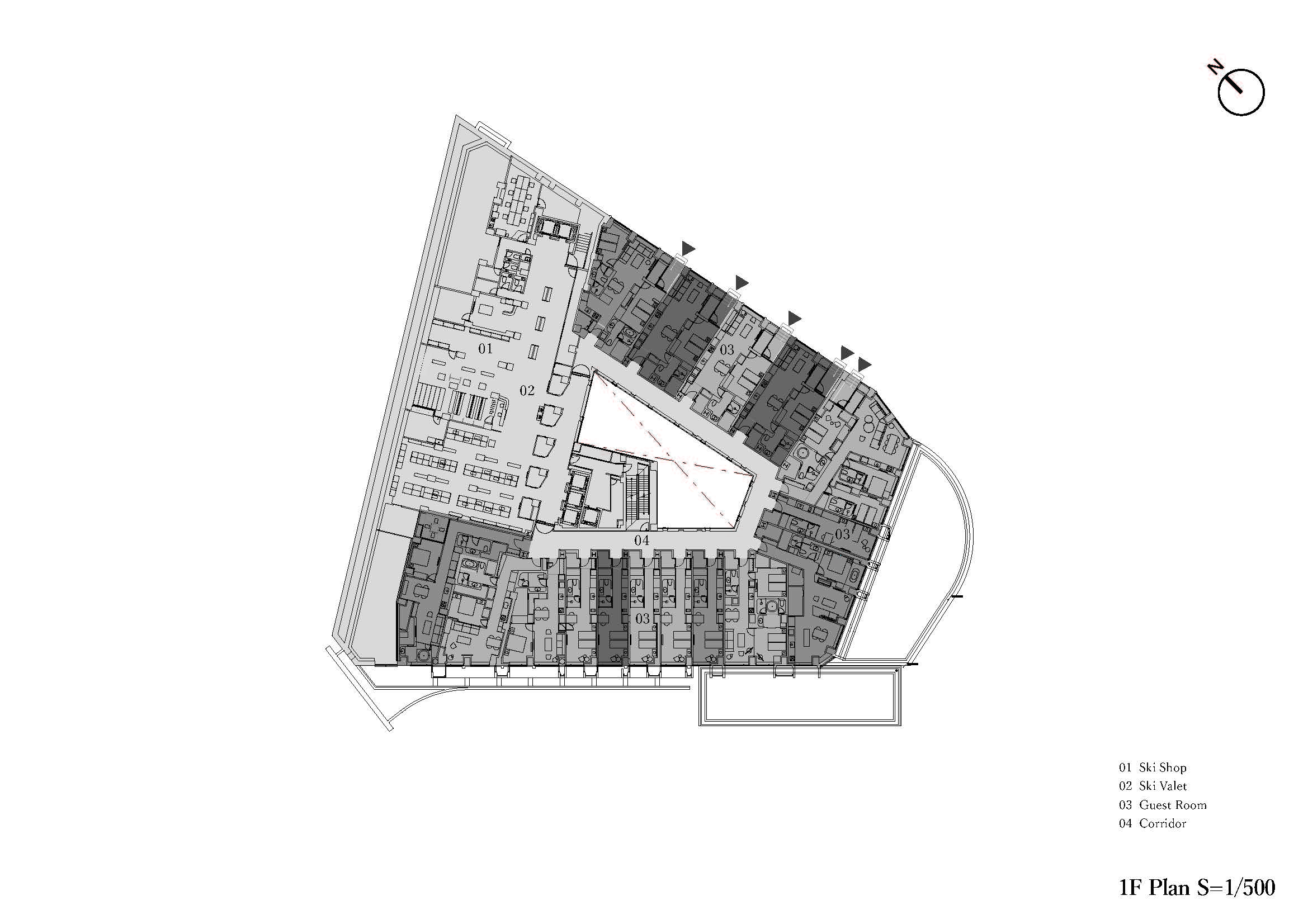
건물은 자연공원법 규정에 의한 건축 후퇴거리 및 절벽지에 의해 제한되는 부지조건 중에서 최대한의 바닥 면적을 확보하도록 배치하였다. 지상 부분에는 객실과 요테이산(羊蹄山) 뷰가 있는 하늘 위 노천탕을 ‘ㅁ’자 모양으로 배치하고, 중앙 부분에는 지하 1F의 공용부로 자연광을 끌어들이기 위해 중정으로 하였다.
지하 1F에 입구를 설치하고 건물 중앙의 중정「사계의 정원」을 중심으로 리셉션이나 레스토랑, SPA, 온천 등의 공용부를 배치했다. 「사계의 정원」은 이 지역의 수목인 고로쇠나무 숲으로 하고 그 하부에는 현장 굴착단계에서 나온 돌 들을 깔아 놓았다. 니세코의 자연을 잘라 놓은것 같은 중정은 계절마다 다른 표정으로 게스트를 맞이한다.
비정형적인 부지 형상을 그대로 오프셋(offset)한 듯한 평면 형상으로 만들어진 34개 타입의 객실에 외장의 색이 그대로 인테리어까지 반영된 3색의 컬러 스킴(Color Scheme)을 부여함과 동시에 펜트하우스에서는 경사지붕의 반복을 내부 공간에 드러내는 것으로 손님들이 다양한 체험을 누릴 수 있는 외부 공간에 열린 객실을 구현했다.
풍경과 일체가 되는 객실, 니세코의 사계절이 변하는것이 매력적인 로비, 격자와 흙벽 등 일본적인 요소를 여기저기 흩뿌린 인테리어, 요테이산(羊蹄山)을 한눈에 내려다보는 노천탕 등 다양하고 비일상적인 체험을 즐길 수 있는 이곳에서만 가능한 건축이다.
폭설 지대의 어려운 환경에 적합하고 비일상적인 체험을 실현하는 구조 계획
바리에이션(Variation)이 풍부한 객실을 랜덤(Random)하게 배치하면서 확실한 내진 성능을 확보하기 위해 연층 내력벽을 평면적으로 균형 있게 배치했다. 3.6m를 기본으로 한 스판구성으로 하여 외부쪽의 보높이을 억제함으로써 3.1m의 제한된 층고에서 최대한 개구부높이(발코니 샷시높이)를 확보하였다. 또한 객실내에 격자로 교차하는 보를 설치하지 않는 구조적 시스템을 계획함으로써 객실 플랜의 제약을 없애고 최대한 천장고를 확보한 개방적인 객실 공간을 실현하였다. 여기에 ‘ㅁ’자 평면의 내부쪽 둘레를 SRC(Ferender) 시스템 구조로 함으로써 내진성을 확보하면서 B1층에서 기둥을 최대한 없애10.8m 스판을 실현함으로써 매력적인 로비 공간을 창출했다.
요테이산(羊蹄山)을 향해 배치된 6층의 노천탕은 6~7층의 두 층을 벽식 구조로 층고 확보를 하고, 외부쪽으로 약 6m의 캔틸레버 구조(Cantilever Structure)를 구현하였다 이 벽식 구조가 있기 때문에 아래층과는 평면적인 강성 밸런스가 다르지만 내력벽의 배치를 조정함으로써 편심을 배려한 계획을 하였다.
최상층은 지붕을 콘크리트에 의한 절판 구조로 함으로써 일부 기둥을 없애 개방적인 거실을 구현하였다. 절판지붕은 주로 연직하중을 지지하는 구조이기 때문에 객실과 객실의 경계나 복도에 내력벽을 충분히 배치하여 내진성을 확보하였다.


























건축가 니켄세케이 (NIKKEN SEKKE)
위치 일본, 홋카이도, 아부타, 굿찬, 니세코 히라후
용도 콘도미니엄 호텔
대지면적 6,440.17㎡
연면적 20,817.31㎡
규모 지하 2층, 지상 7층
준공 2023.12.
프로젝트팀 나카모토 타로, 이우주, 하마구치 요시로
시공 Taisei건설 주식회사 삿포로지점
발주자 Hanwha Solutions Corporation
사진작가 Forward Stroke inc.
'Architecture Project > Hospitality' 카테고리의 다른 글
| 여백으로 만드는 공간, 문화가령 / 백에이 어소시에이츠 (0) | 2025.09.25 |
|---|---|
| 강바람을 품은 경계의 여행자 센터 / 아틀리에 타오+씨 (0) | 2025.09.24 |
| 빛과 그늘이 어우러진 여유의 공간 / 스튜디오 몰틀리 (0) | 2025.09.23 |
| 섬의 기억 위에 지은 계단식 호텔, 황룡등대호텔 / 더블유제이 스튜디오 (0) | 2025.09.12 |
| 일상에서 마주하는 친근한 공간, 머무르며 즐기는 곳 / 보딘차파 아키텍츠 (0) | 2025.09.02 |
마실와이드 | 등록번호 : 서울, 아03630 | 등록일자 : 2015년 03월 11일 | 마실와이드 | 발행ㆍ편집인 : 김명규 | 청소년보호책임자 : 최지희 | 발행소 : 서울시 마포구 월드컵로8길 45-8 1층 | 발행일자 : 매일



