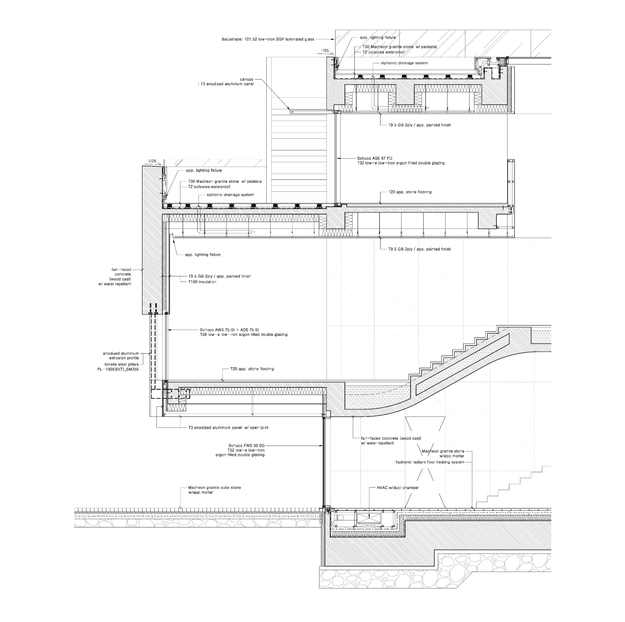
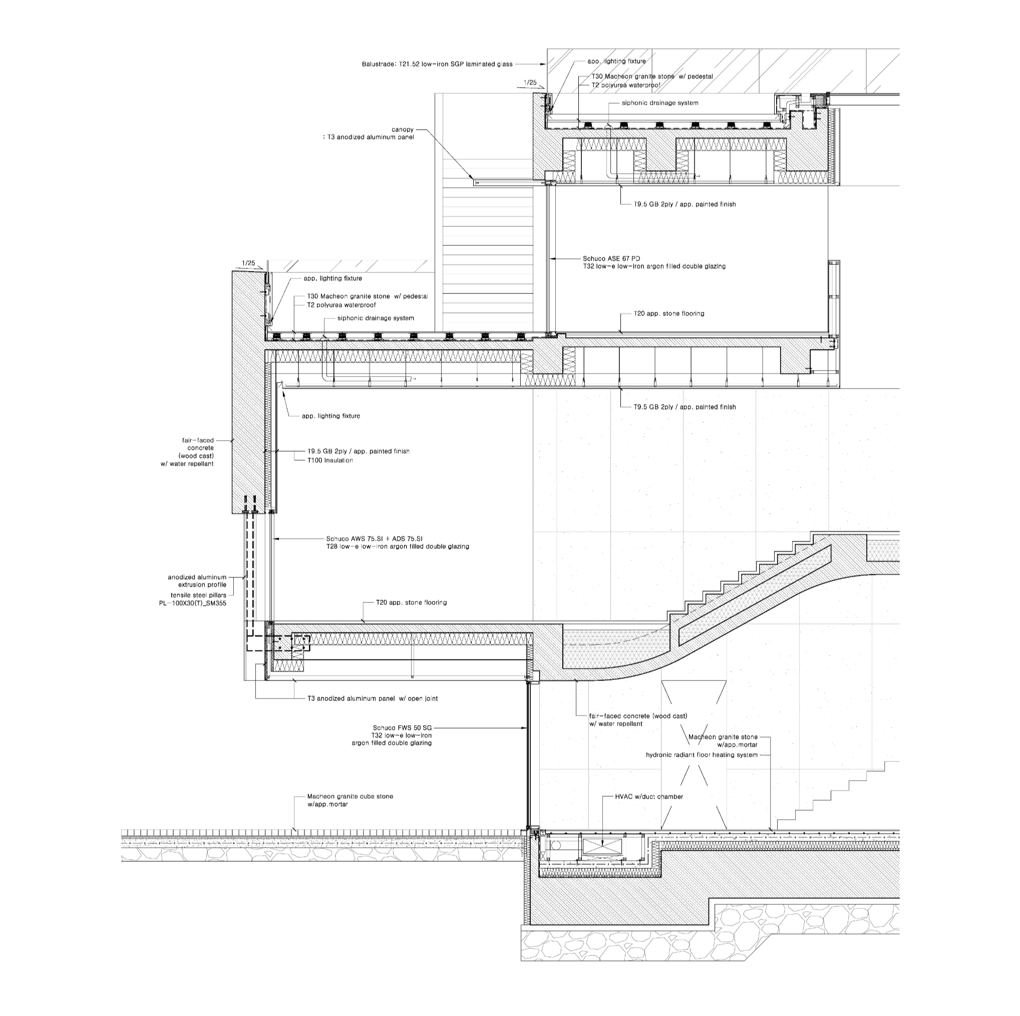
푸투라 서울/ 퍼스팩티브스 건축사사무소, 더블유지앤비
장소는 이미 하나의 이야기로 엮어낼 수 있는 다양한 풍경들을 품고 있었다. 오랜 시간 비밀스럽게 숨겨졌던 후면의 녹지공간, 전통 한옥의 너울거리는 기와지붕, 가로변 소나무와 거리의 일상
kr.masilground.com






건축가 더블유지앤비(WGNB), 퍼스펙티브스건축사사무소(PSPTVS)
위치 서울시 종로구 북촌로61
준공 2024
사진작가 최용준
반응형
'Detail' 카테고리의 다른 글
| [창호상세] 시간을 거슬러 되살린 도우루 언덕의 집 / 코레이아라가치 아키텍투로스 (0) | 2025.10.16 |
|---|---|
| [목구조지붕상세] 건축, 예술, 그리고 도자의 기억을 품은 장소 / 그레이스페이스 아키텍츠 (0) | 2025.10.01 |
| [단면상세] 경계 없이 흐르는 집, 루민투 하우스 / 리얼리치 아키텍처 워크숍 (0) | 2025.09.19 |
| [반자 상세] 위계와 관습의 경계를 허무는, 경계의 집 / 플랜 건축사사무소 (0) | 2025.08.13 |
| [데크플레이트] 2025 오사카 간사이 엑스포 일본관 / 니켄 세케이 (0) | 2025.06.24 |
마실와이드 | 등록번호 : 서울, 아03630 | 등록일자 : 2015년 03월 11일 | 마실와이드 | 발행ㆍ편집인 : 김명규 | 청소년보호책임자 : 최지희 | 발행소 : 서울시 마포구 월드컵로8길 45-8 1층 | 발행일자 : 매일



