
Kunst Ayutthaya
건축물 Kunst Ayutthaya는 보딘차파 팀과 그 가족의 다층적인 삶을 담아낼 수 있는 공간에 대한 필요에서 출발했다. 단순히 하나의 건물이 아니라, 열매를 맺고 영감을 주며 공동체의 성장을 지속시키는 ‘생성적 공간’을 지향한 것이다. 이 과정은 낯설지 않으면서도 새로운 공간에 대한 탐색으로 이어졌고, 이는 보딘차파 특유의 디자인 언어와 해석을 통해 구현됐다.
‘Kunst’라는 이름은 독일어로 ‘예술’을 뜻하면서, 동시에 태국어 ‘Khun(คุ้น)’과 발음이 닮아 ‘익숙함, 친근함, 따뜻함’을 연상시킨다. 따라서 Kunst Ayutthaya는 예술과 친숙함의 결합을 상징한다. 일상 속에서 마주하는 예술과 디자인, 그리고 아유타야라는 역사적 도시가 지닌 문화적·건축적 기억이 겹겹이 쌓여 있는 장소다.
디자인은 아유타야의 일상적 건축에서 차용한 이미지와 재료에서 출발한다. 전통 가옥 처마에서 흔히 볼 수 있는 작은 곡선의 골함석 지붕재가 대표적이다. 이 재료는 지붕이 아닌 파사드, 천장, 경계벽의 마감재로 새롭게 사용되며, 단순한 기능을 넘어 역사와 기억, 의도를 담아내는 서사적 장치로 확장됐다.
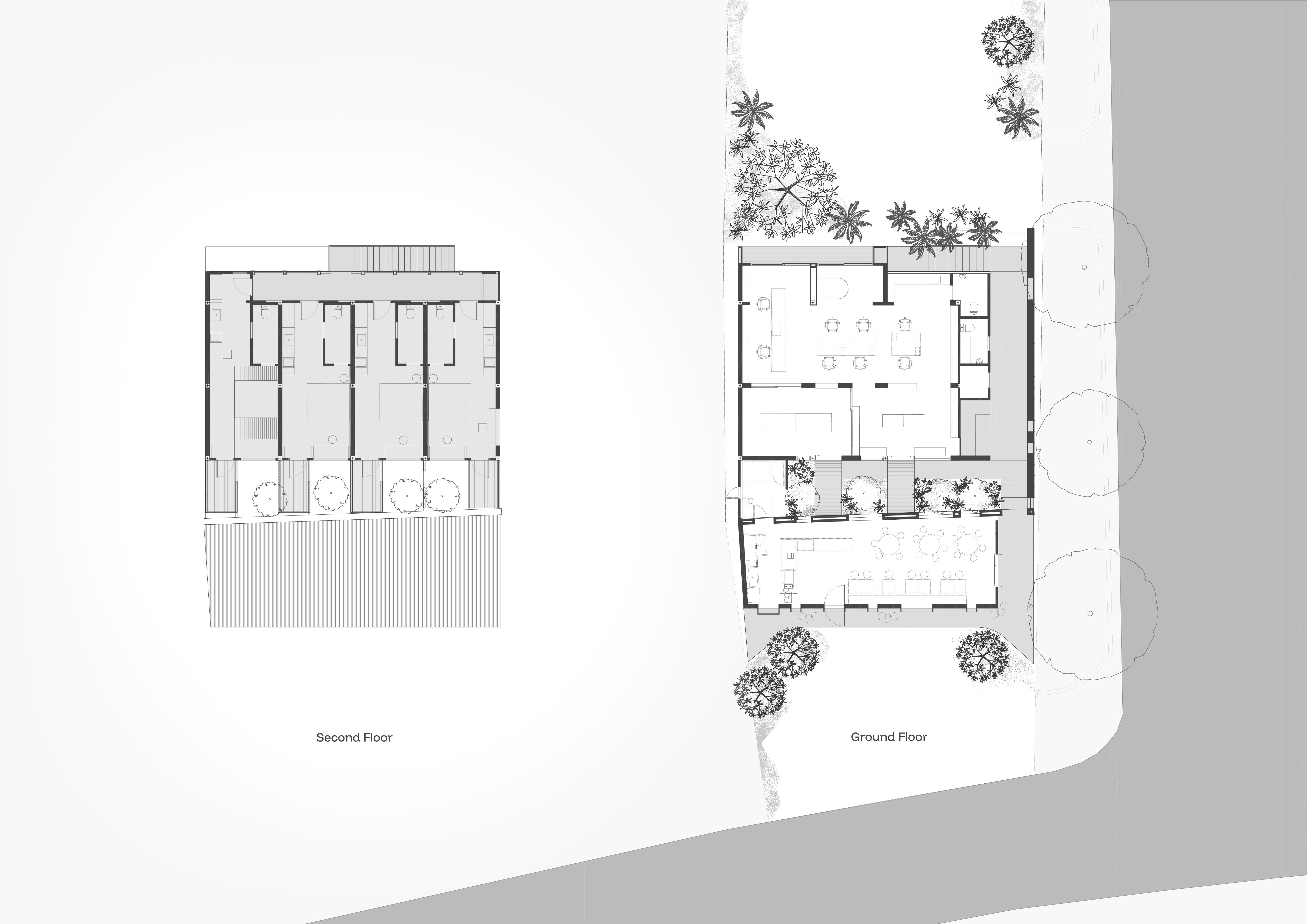
프로젝트는 아유타야 구도심 섬 지구에 위치한 기존 타운하우스를 개조해 이뤄졌다. 밀폐된 벽과 지붕을 걷어내고 빛을 지상층까지 끌어들이는 방식으로 구조를 열어냈다. 새 공간은 세 가지 영역으로 나뉜다.
- Kunst Bake ’n Cof: 방문자를 맞이하는 베이커리·카페 공간
- BodinChapa Architects: 건축 스튜디오가 자리한 업무 공간
- Kunst Ayutthaya Hotel: 상층부에 위치한 숙박 공간
세 영역은 공용 동선과 정원으로 유기적으로 연결된다. 내부 중정에는 오래된 나무가 자리해, 위층 호텔 발코니와 아래층을 시각적·공간적으로 이어주면서도 각 프로그램의 독립성을 유지한다.
마감은 아유타야의 지역성을 담은 재료로 완성됐다. 현지에서 제작된 벽돌과 목재는 목재 무역로, 벽돌 가마, 장인들의 손길로 대표되는 아유타야의 기억을 환기한다. 이 재료들은 완벽함보다는 진정성을 중시해 선택됐고, 불완전한 흔적조차 인간의 의도와 배움을 드러낸다. 시공 과정 자체가 하나의 이야기로 남으며, 지역 지식과 장인정신을 존중하는 태도를 보여준다.






































건축가 보딘차파 아키텍츠 (BodinChapa Architects)
위치 태국, 아유타야
연면적 420㎡
규모 지상 2층
준공 2025
대표건축가 Bodin Mueanglue, Phitchapa Lothong
사진작가 shootative / Witsawarut Kekina
'Architecture Project > Hospitality' 카테고리의 다른 글
| 빛과 그늘이 어우러진 여유의 공간 / 스튜디오 몰틀리 (0) | 2025.09.23 |
|---|---|
| 섬의 기억 위에 지은 계단식 호텔, 황룡등대호텔 / 더블유제이 스튜디오 (0) | 2025.09.12 |
| 바닷바람이 공간을 누비는 태국 주말주택 / 뷰로 뷰로 (0) | 2025.09.02 |
| 정원으로 공간 전체를 아우르는, 베트남 카페 / 즁셉 (0) | 2025.08.29 |
| 모퉁이에 쓰인 한국 건축의 현대적 해석, 깃티 / 스테이 아키텍츠 (0) | 2025.08.07 |
마실와이드 | 등록번호 : 서울, 아03630 | 등록일자 : 2015년 03월 11일 | 마실와이드 | 발행ㆍ편집인 : 김명규 | 청소년보호책임자 : 최지희 | 발행소 : 서울시 마포구 월드컵로8길 45-8 1층 | 발행일자 : 매일



