
Apartment with a Mezzanine
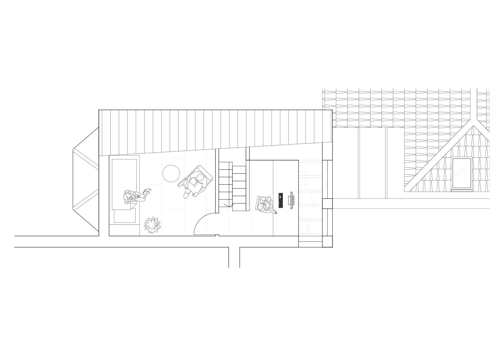
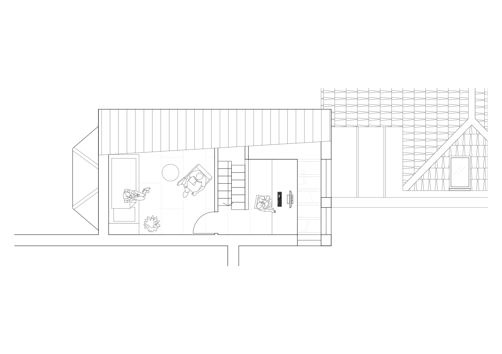
이 프로젝트는 불가능해 보이는 것을 실현할 기회였다. 다락 리모델링과 전면 재구성을 통해 어둡고 비좁았던 원룸 아파트는 밝고 다층적인 가족 주택으로 변모했다.



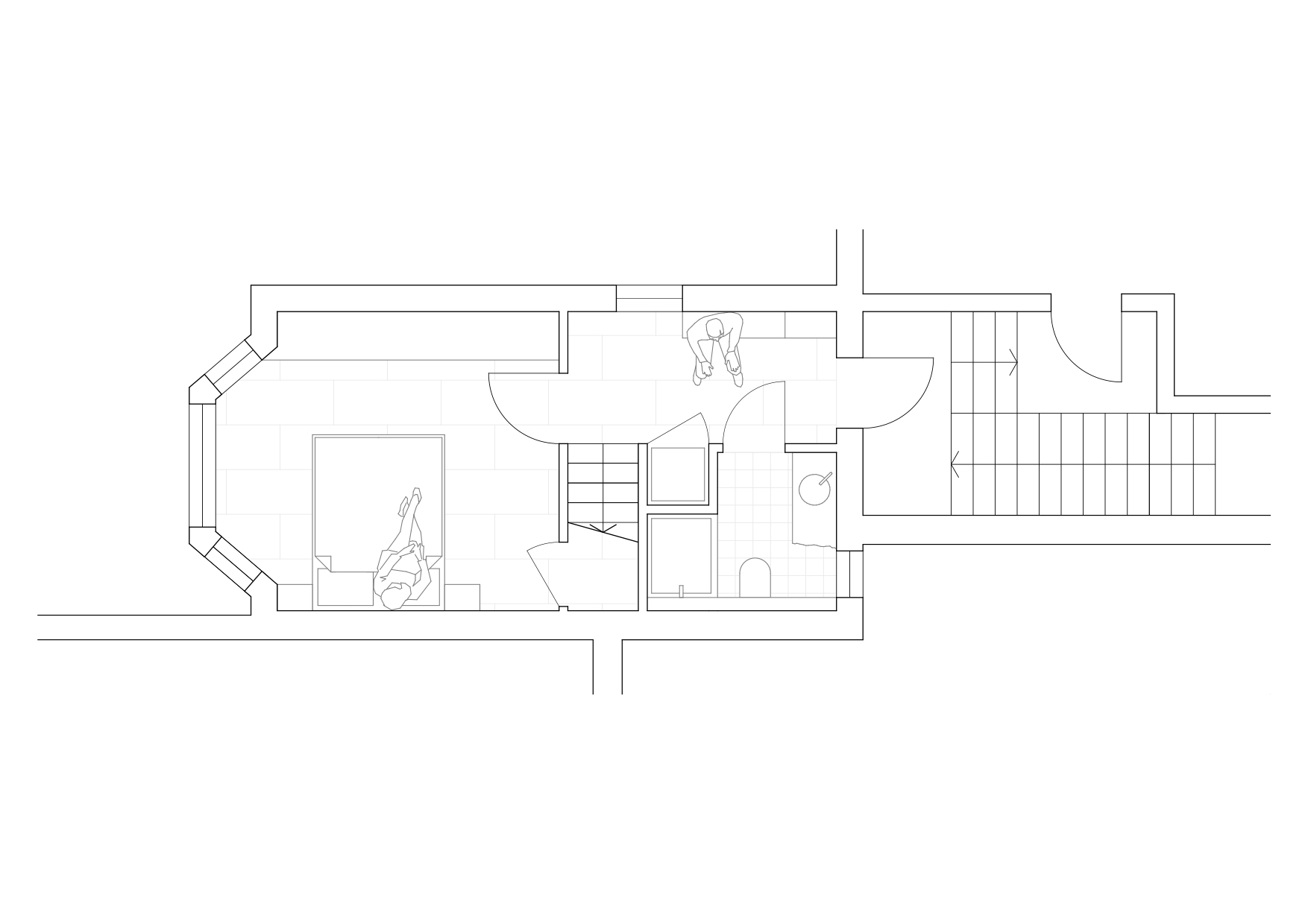
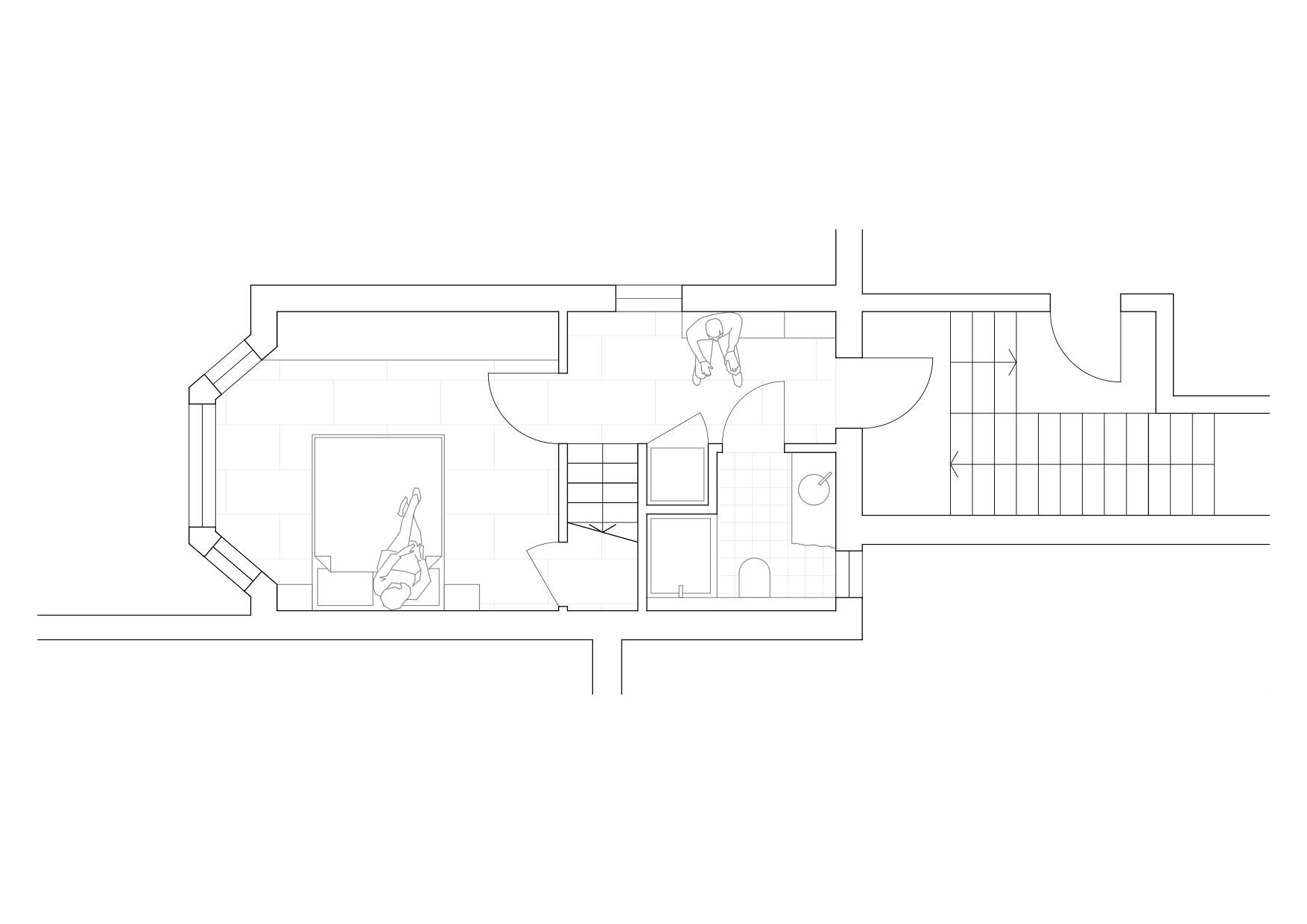
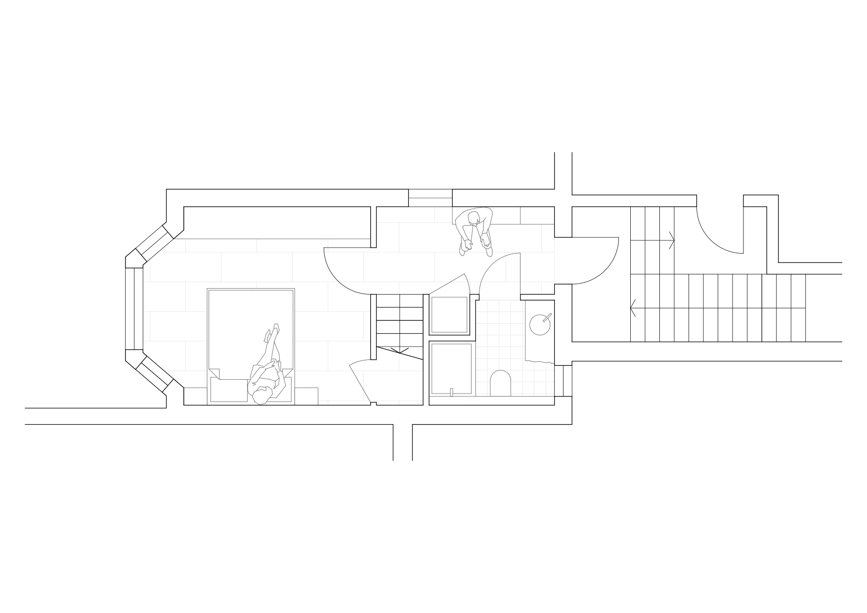
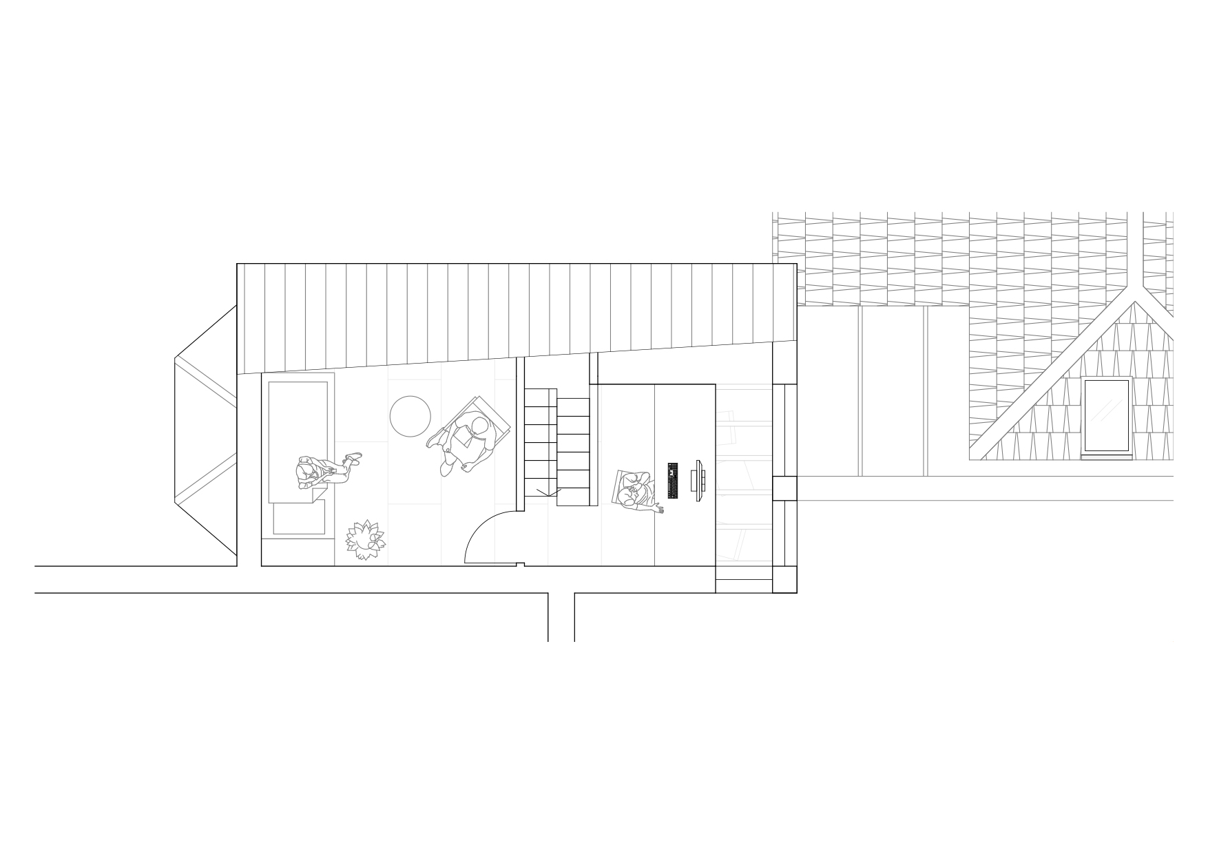
기존 지붕을 에너지 효율적인 지붕으로 교체하면서 메자닌 층을 마련했고, 대형 천창을 통해 풍부한 자연광이 들어오며 극적인 공간 변화를 이끌어냈다.










노출 목재와 거친 석고의 재료 선택은 공간의 질감을 강화하고 빛과 그림자의 흐름을 강조했다. 세 개의 층으로 구성된 집은 아늑하고 차분한 하층부에서 밝고 확장된 상층부로 이어지며, 하루의 시간과 계절의 변화에 따라 유연하게 변화하는 주거 공간이 되었다.




건축가 오피스 텐 아키텍처 (Office Ten Architecture)
위치 영국, 런던, 노스웨스트
용도 단독주택
연면적 60㎡
규모 지상 3층
준공 2022
대표건축가 Anders Strand Luhr, Erika Suzuki
사진작가 Sarah Rainer
'Architecture Project > Single Family' 카테고리의 다른 글
| 벽과 바닥의 색채 대비를 이루는 자연 속 주택, 세리마 하우스 / 테트로 (0) | 2025.09.08 |
|---|---|
| 구조적 혁신과 소재의 따뜻함을 조화시킨 단독주택 / 파온 아키텍츠, 차논 펫상응암 & 룽나파 도르미외 (0) | 2025.09.05 |
| 시간의 레이어를 쌓아 원형을 유지한 루마니아 농가 / 블라드 세바스티안 루수 아키텍처 오피스 (0) | 2025.08.26 |
| 수직으로 쌓인 단독주택 안, 틈을 만드는 정원 / 후지와라무로 아키텍츠 (0) | 2025.08.22 |
| 물줄기 위를 부유하며, 숲 속을 헤엄치는, 코스타리카 단독주택 / 스튜디오 삭세 (0) | 2025.08.22 |
마실와이드 | 등록번호 : 서울, 아03630 | 등록일자 : 2015년 03월 11일 | 마실와이드 | 발행ㆍ편집인 : 김명규 | 청소년보호책임자 : 최지희 | 발행소 : 서울시 마포구 월드컵로8길 45-8 1층 | 발행일자 : 매일



