
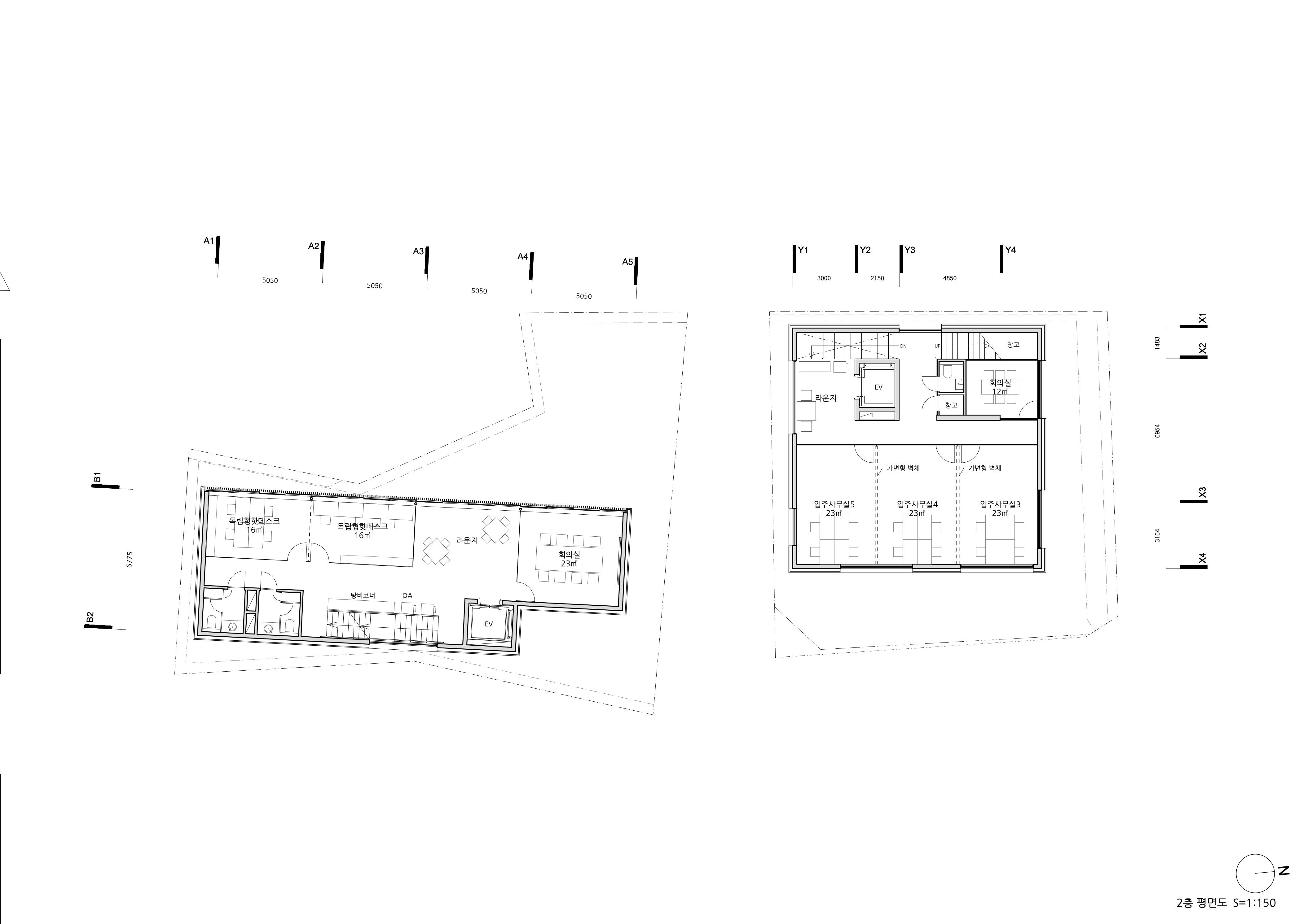
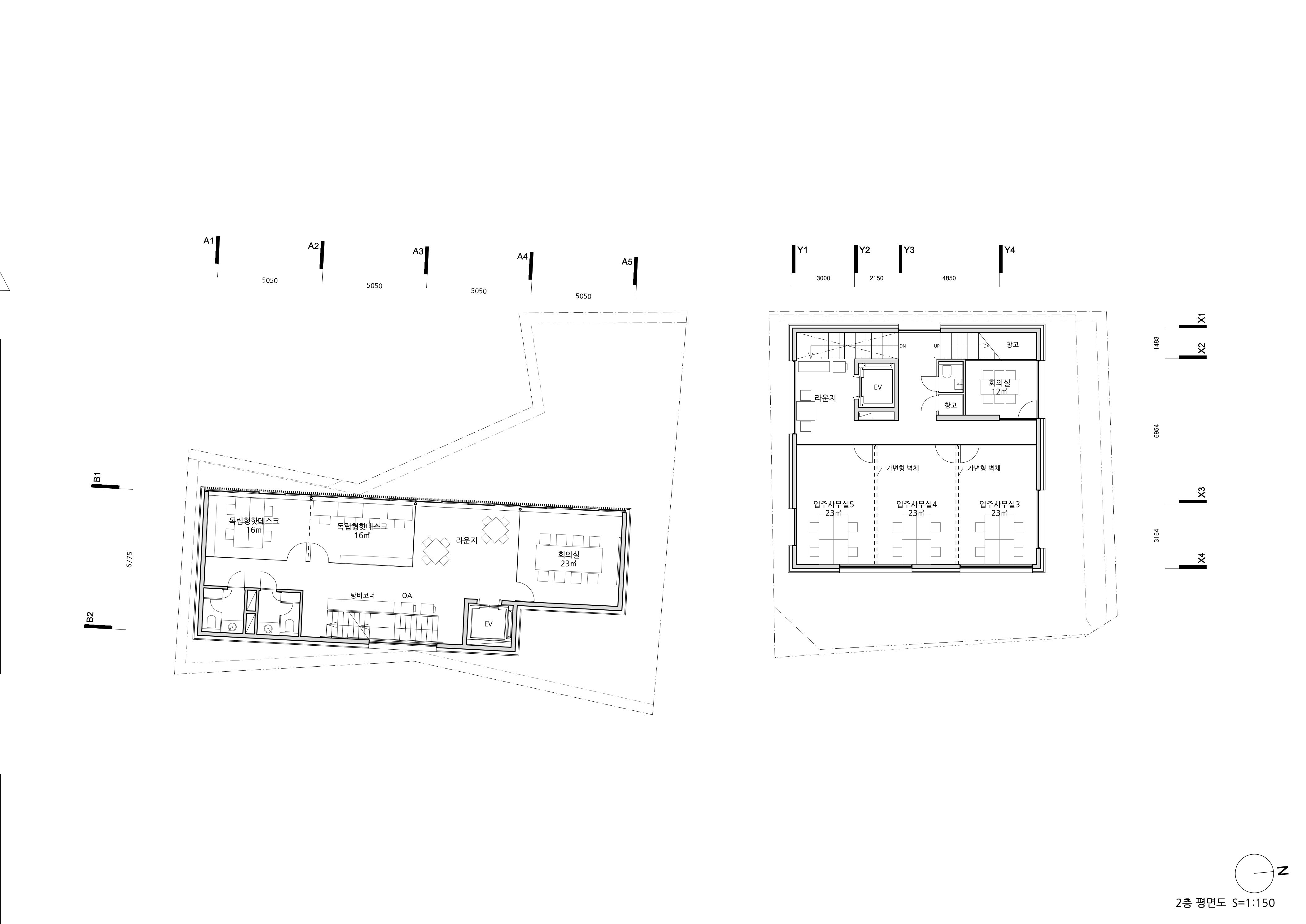
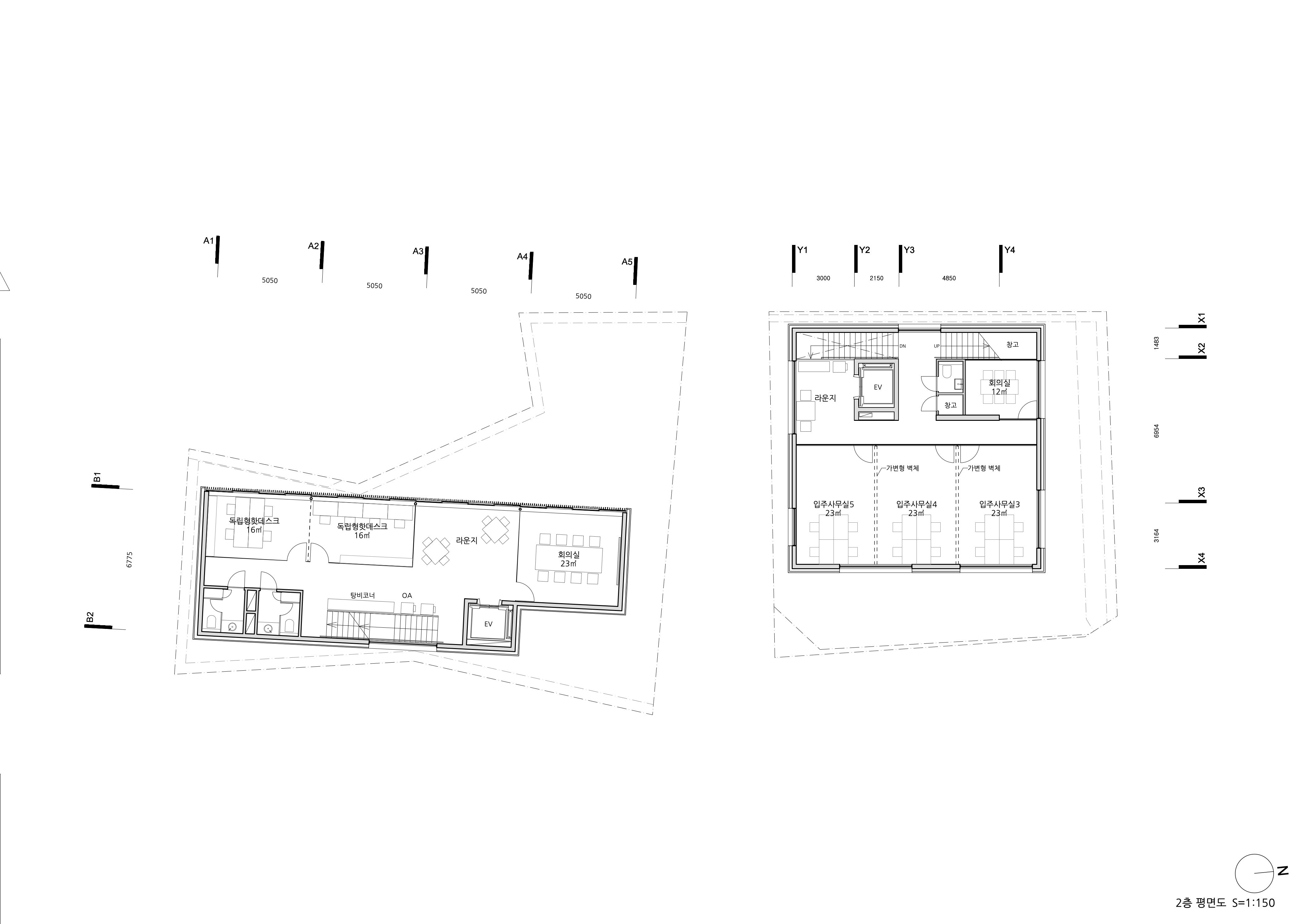
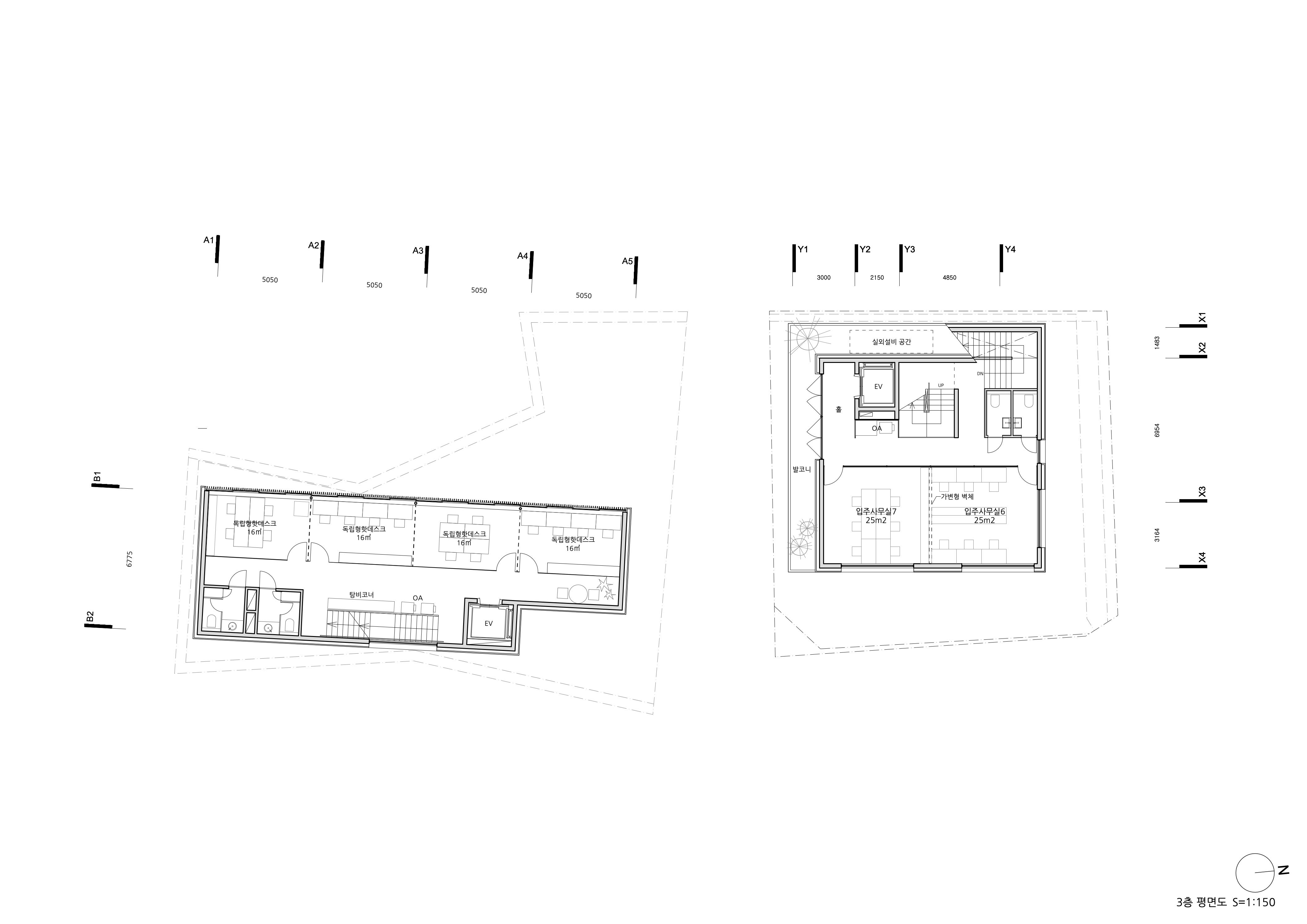
홍릉 스타트업 랩은 서울 동대문구 회기동에 조성되는, 바이오·의료 분야 소규모 창업자를 위한 업무 및 교류 공간이다. 대상지 주변은 3~4층 규모의 노후한 다세대 주택이 밀집된 지역으로, 좁은 골목길을 사이에 두고 분리된 두 개의 부지로 이루어져 있다.
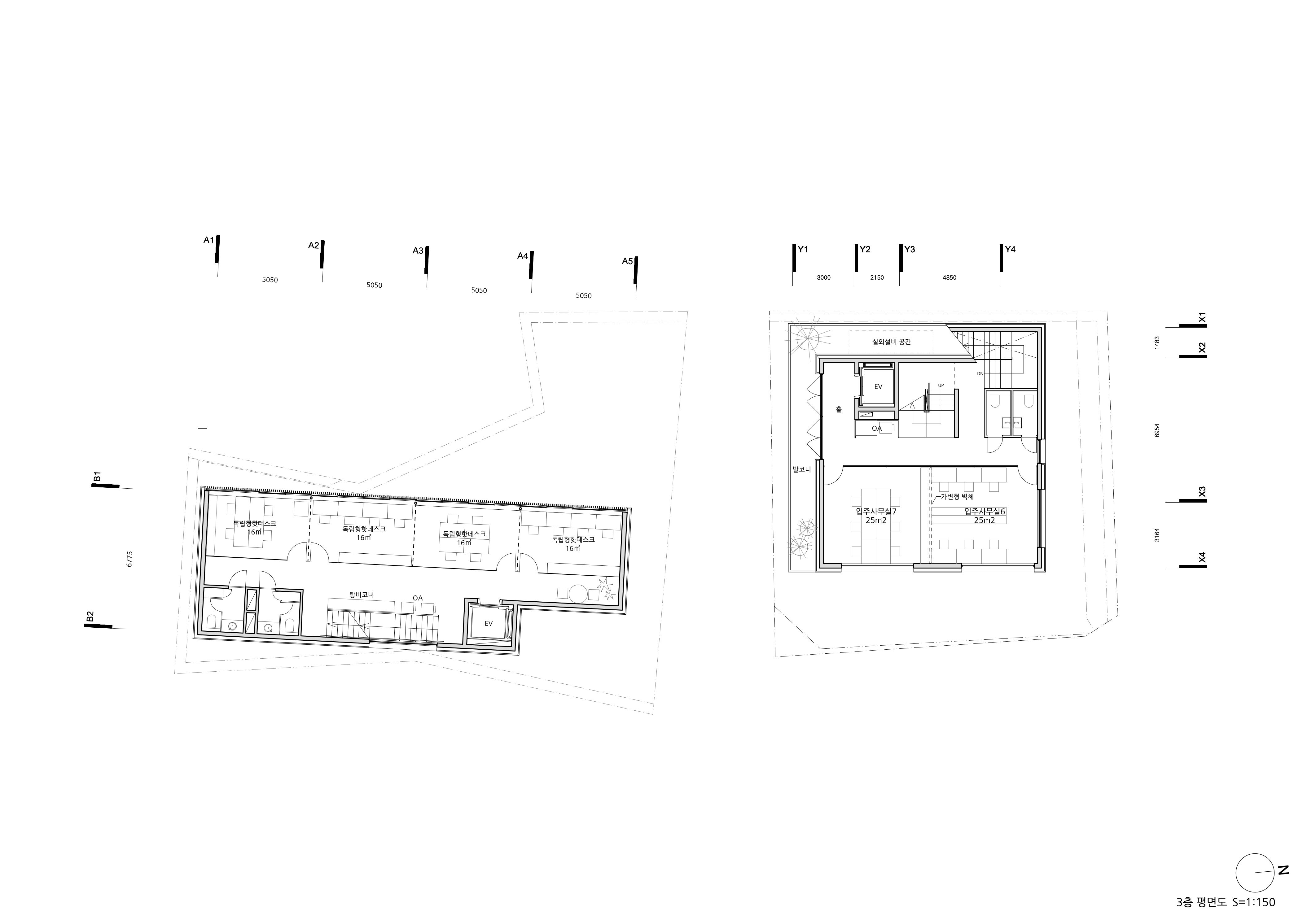
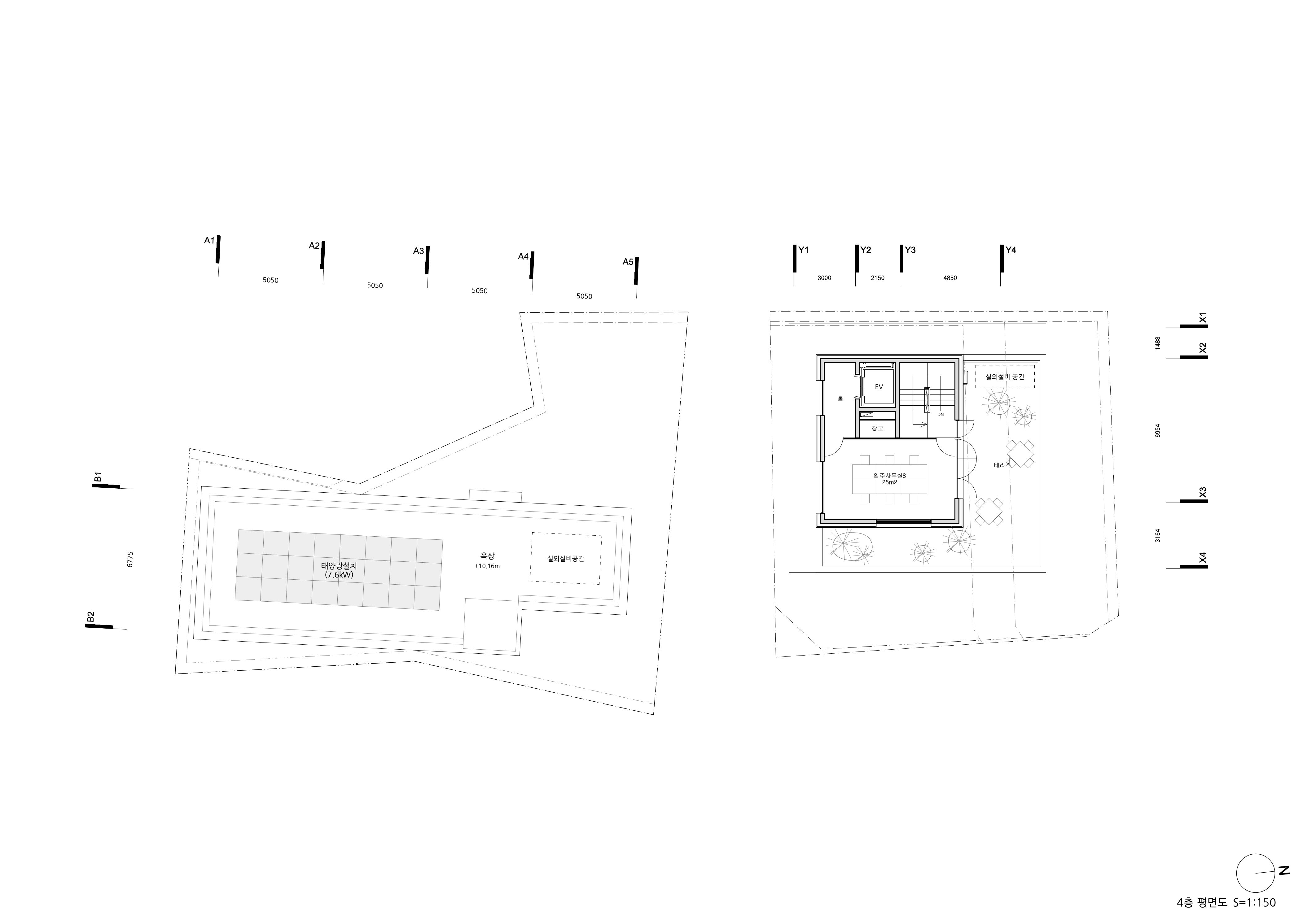
이러한 특징을 고려하여 남측의 인접녹지와 접한 부지에 열린 마당을 배치하고, 이를 중심으로 두 동을 ㄱ자 형태로 배치함으로써 물리적으로 분리되어 있는 두 시설이 시각적·공간적으로 유기적으로 연결되어 하나의 공간처럼 인식될 수 있도록 계획하였다. 또한 열린 마당을 통해 자연광을 끌어들이는 동시에, 지역 전체에 시각적 개방감을 확산시키도록 하였다.
두 동은 각각의 위치적 특성과 주변 맥락을 반영해 차별화된 방식으로 계획되었다.
열린 마당과 산림청 부지에 면해 있는 A동은 3층 규모로 낮게 구성하고 주변 녹지에 직접적으로 면하는 서측을 전면 개방함으로써 주변에 대한 압박감을 줄이고 실내의 개방감을 극대화하였다. 반면 주 진입로에서 가장 먼저 마주하게 되는 B동은 4층 규모로 구성하되, 상층부로 갈수록 점진적인 셋백을 적용하여 가시성을 확보하면서도 주변 건물과의 조화를 도모하였으며 외장재는 두 건물 모두 목재판넬로 하여 주변 지역에 따뜻함과 편안함을 제공하여 재료로서 지역에 대응하게 하려 했다.













스튜디오 에스에이엠 건축사사무소
3등작_ 스튜디오 에스에이엠 건축사사무소 (https://www.instagram.com/studio.s.a.m/)
대표건축가 윤민환
A동
대지면적 301.00㎡
연면적 360.84㎡
건축면적 120.28㎡
건폐율 39.96%
용적률 119.88%
최고높이 11.32m
층수 지상 3층
구조 RC+일부S
주차대수 1대
B동
대지면적 260.16㎡
연면적 389.09㎡
건축면적 129.99㎡
건폐율 49.97%
용적률 149.56%
최고높이 14.66m
층수 지상 4층
구조 RC
주차대수 5대
'Plans' 카테고리의 다른 글
| 보령 문화테마파크 조성사업 설계공모_ 3등작 / 소와요건축사사무소 (0) | 2025.06.26 |
|---|---|
| 망성면 기초생활거점조성사업 세부설계 설계공모_ 3등작 / 우영 건축사사무소 (0) | 2025.06.24 |
| 갯벌치유 관광플랫폼 조성 설계공모_ 3등작 / 토도건축사사무소 (0) | 2025.06.24 |
| 갯벌치유 관광플랫폼 조성 설계공모_ 5등작 / (주)범건축사사무소 + 건축사사무소 디오엠에이 (0) | 2025.06.24 |
| 인제우체국 건립공사 설계용역 _ 4등작 / 레이어스건축사사무소 (0) | 2025.06.23 |
마실와이드 | 등록번호 : 서울, 아03630 | 등록일자 : 2015년 03월 11일 | 마실와이드 | 발행ㆍ편집인 : 김명규 | 청소년보호책임자 : 최지희 | 발행소 : 서울시 마포구 월드컵로8길 45-8 1층 | 발행일자 : 매일



