
‘The Light House’- 원산도의 중심에서 주변을 밝히다
원산 오션뷰 스마트 복합쉼터는 원산도에서 볼수 있는 바다를 소재로 콜라쥬해서 만들어진다. 원산도의 중심에 있는 사이트는 원산도와 바다의 다양한 요소들 그리고 주변을 비추고 편안하게 또 쉬었다 갈수 있는 명소이다. 이를 바탕으로 조성된 건축물은 그 자체로 보령시의 하나의 상징이 되고, 방문객들에게 다가가 하나의 랜드마크로써 하나의 휴식을 넘어서 경험을 제공하는 건축을 제안하고자 한다.
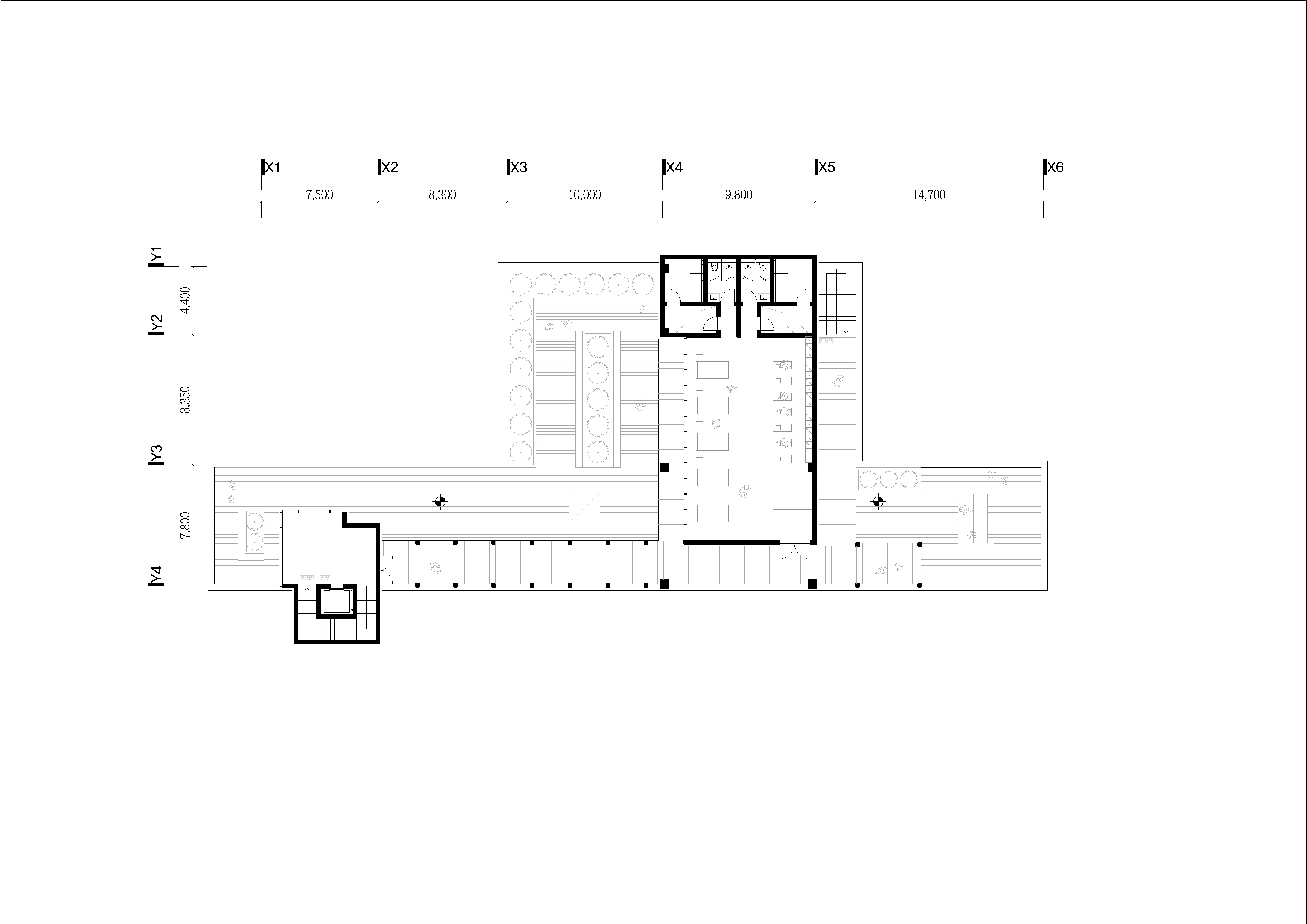
보령시 원산도는 해양 관광자원과 낙조, 해안도로 등 우수한 경관을 갖춘 지역으로, 이를 기반으로 방문객과 지역주민 모두에게 열린 스마트 복합쉼터를 계획하고자 한다. 대상지는 태안과 보령을 연결해주는 국도77호와 맞닿아있고, 인근에 스마트 모빌리티 시설이 계획되어 있다. 이러한 입지적 장점을 살려 인지성, 시인성을 확보, 효율적인 동선을 구축하고 용도별 조닝을 통해 혼잡을 최소화하여 원할한 공간을 조성하고자 한다. 지역 특색을 반영하고, 지역주민과 방문객들에게 쾌적한 실내·외 환경을 조성하여 쉼과 소통, 체험과 경험이 공존하는 스마트 복합쉼터를 제안한다.
[원산도를 비추는 중심공간, Landmark 건축]
원산도의 중심에 위치한 해당 사이트는 주변을 밝게 비추는 기준점이 되는 등대를 모티브로 한다. 누구나 와서 쉽게 머물다 갈 수 있는 안전하고 편안한 가늠자로서의 Landmark적 건축을 제안한다.
[땅의 컨텍스트와 원산도 요소를 콜라쥬한 건축]
삼거리에서의 인지성, 주차장에서의 접근, 경사지, 경관을 고려하고 바다, 떠있는 배, 등대의 다양한 바다의 요소를 콜라쥬해 은유한다. 떠있는 배와 등대 바다의 파도와 주변의 컨텍스는 서로가 은유와 현실적인 컨텍스트 사이에서 조화로움을 추구한다.
[장소의 시퀀스와, 공간의 유연함을 담은 건축]
장방향으로 긴 건축은 주변을 다양한 방식으로 조망하기 위한 장소의 건축이다. 보행진입로와 조망산책로의 두 축은 수평적 조형을 위한 아이디어이다. 또한 내부공간은 내·외부로 확장되어 더 많은 프로그램을 넣을수 있는 유연한 공간으로 만들어 진다.










원산 오션뷰 스마트복합쉼터 설계 공모
당선작_ 스튜디오임상우닷컴 건축사사무소 ( https://www.limsangwoo.com/ )
대표건축가 임상우
대지면적 8,684.00㎡
연면적 644.96㎡
건축면적 511.45㎡
건폐율 5.89%
용적률 7.43%
최고높이 20.1m
층수 지상 2층
구조 철근콘크리트구조
주차대수 156대
발주처 보령시청
'Plans' 카테고리의 다른 글
| 인제우체국 건립공사 설계용역_ 입상작(4등작) / 레이어스건축사사무소 (0) | 2025.06.23 |
|---|---|
| 도천지구 음악마을 아트홀 조성사업 설계공모 _ 4등작 / 무유림 건축사사무소 (0) | 2025.06.23 |
| 원산 오션뷰 스마트복합쉼터 설계공모 _ 당선작 / 아크토닉건축사사무소 (0) | 2025.06.17 |
| 원산 오션뷰 스마트복합쉼터 설계공모 _ 입상작(2등작) / 이로이도 건축사사무소 (0) | 2025.06.17 |
| 공영주차장 관리사무실 건립 설계공모 _ 입상작 / (주)와이건축사사무소 (0) | 2025.06.05 |
마실와이드 | 등록번호 : 서울, 아03630 | 등록일자 : 2015년 03월 11일 | 마실와이드 | 발행ㆍ편집인 : 김명규 | 청소년보호책임자 : 최지희 | 발행소 : 서울시 마포구 월드컵로8길 45-8 1층 | 발행일자 : 매일



