
QUAN NHÂN HOUSE
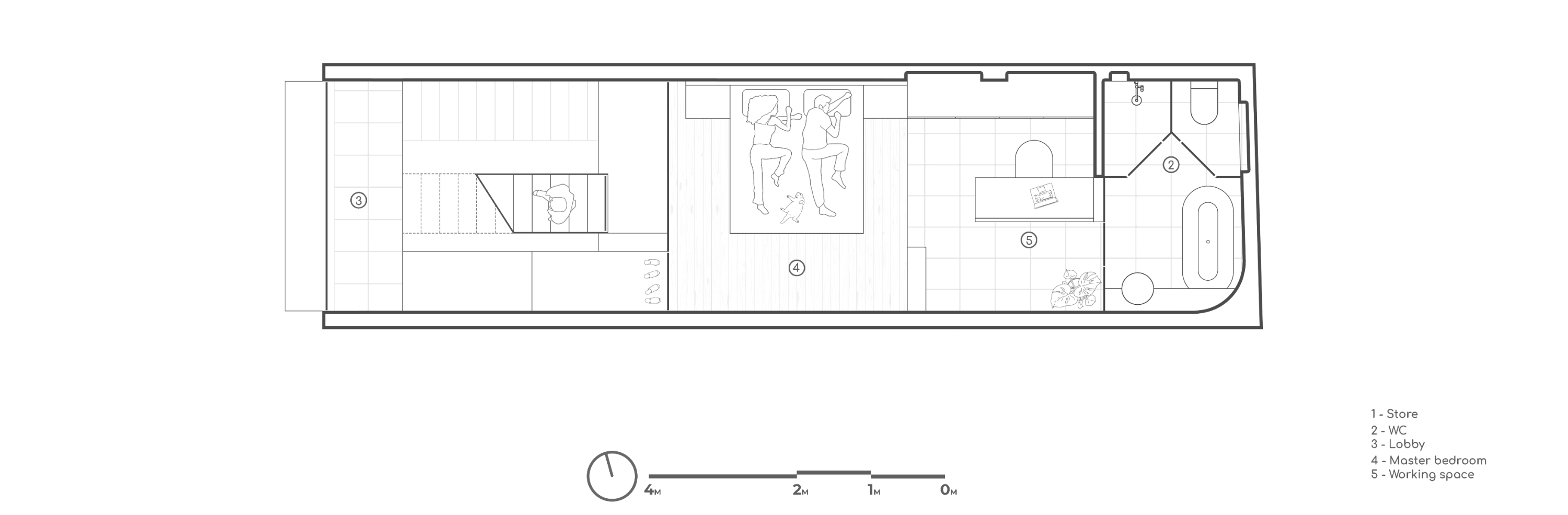
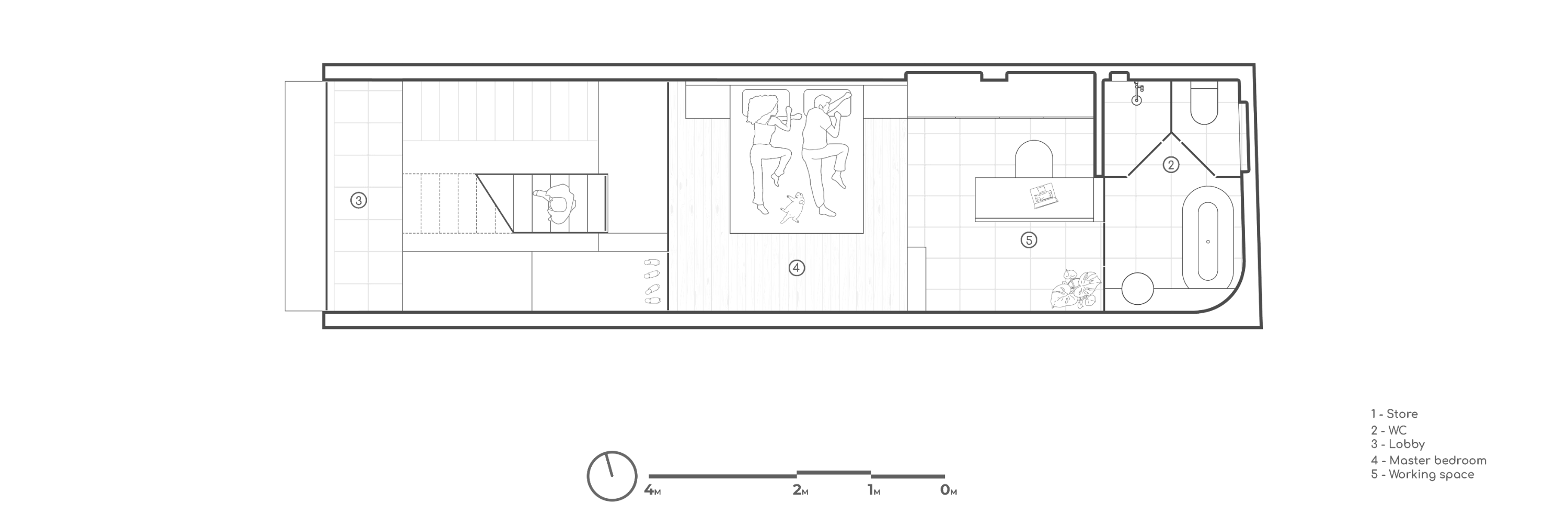
Quan Nhân 하우스는 하노이 Kẻ Mọc 지역의 오래된 Quan Nhân 마을에 위치한 주택으로, 급속한 도시 개발 속에서도 전통적 문화와 역사성을 간직한 장소에 자리한다. 이 건물은 생활 공간과 임대 공간으로 구성되며, 번화한 상업 지역 내에 위치해 소음과 먼지를 피하기 위해 생활 공간은 일정 높이로 올려 배치되었다.







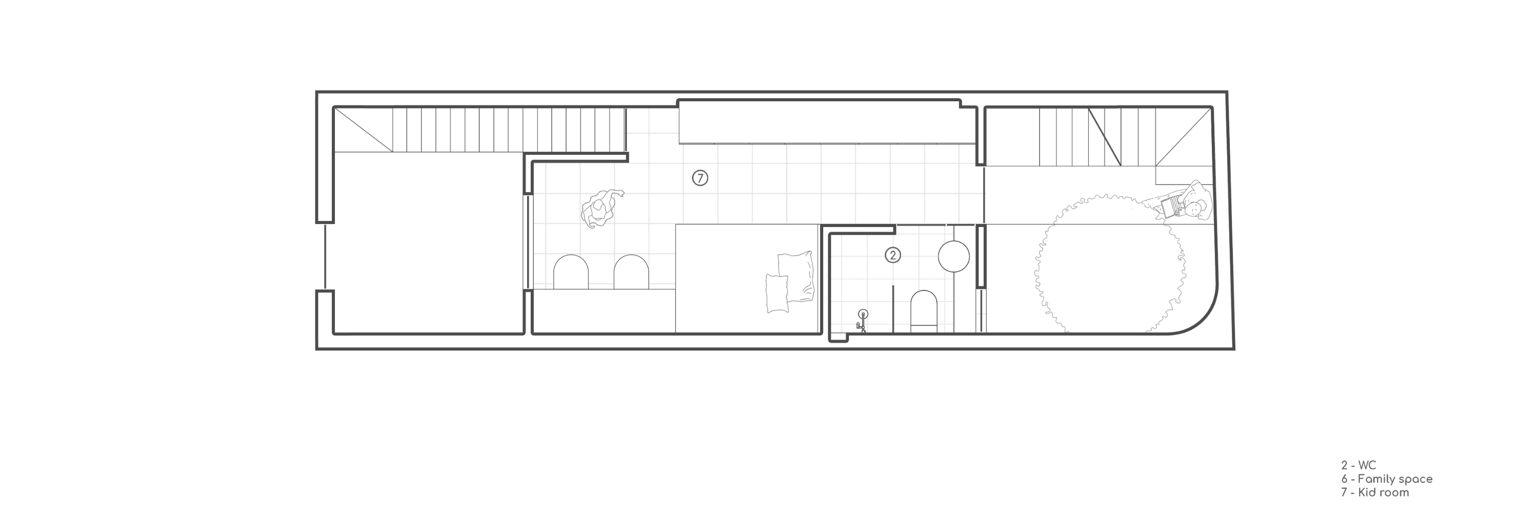
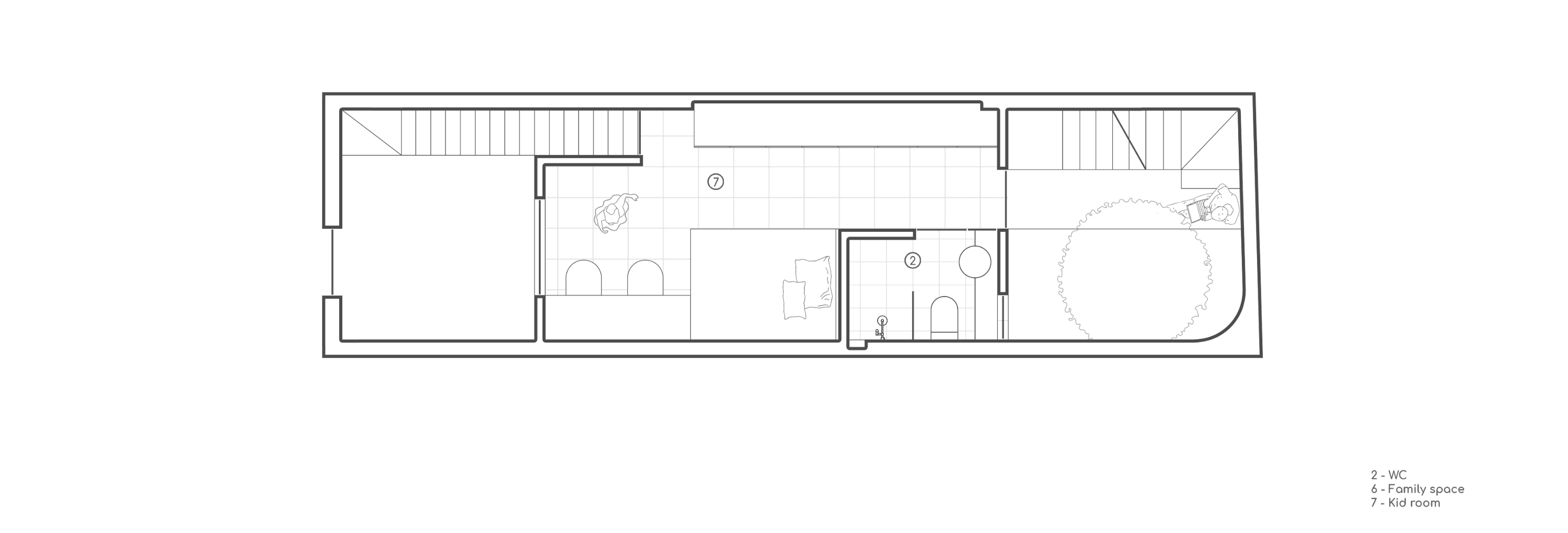
1층은 상업 활동을 위한 개방형 공간으로 설계되어 통풍이 잘 되도록 구성되었다. 비록 대지가 협소하고 전망에 제약이 있으나, 상부의 개방부를 통해 자연광과 바람을 충분히 유입하도록 했다. 건물 외장에는 베트남 전통 건축에서 흔히 사용되는 붉은 점토 타일과 고온 소성 벽돌을 활용해 따뜻하고 아늑한 분위기를 형성하였으며, 이러한 재료는 새롭게 입주한 가족의 삶과 지역의 문화적 정체성을 이어주는 상징적 요소로 기능한다. Quan Nhân 하우스는 한정된 도시 조건 속에서도 전통성과 현대적 실용성을 균형 있게 결합한 주거 건축 사례이다.







위치 베트남, 하노이, 탄쑤언, 꽌년
용도 단독주택
프로젝트면적 45㎡
규모 지상 5층
준공 2024
대표건축가 Quang Hong Nguyen
디자인팀 Nguyễn Hồng Quang, Trần Bá Tùng Dương, Ngô Đức Hiếu
사진작가 Triệu Chiến
'Architecture Project > Single Family' 카테고리의 다른 글
| 호수와 숲 사이에 앉은 멕시코 단독주택 / 에이치이엠에이에이 (0) | 2025.05.15 |
|---|---|
| 베트남 산업지대 사이의 단독주택 / 타드 아틀리에 (0) | 2025.05.15 |
| 카지냐 다 멜호에이라 / 필리프 사라이바 아르키텍투스 (0) | 2025.05.13 |
| 과거와 현재를 연결한 리모델링 주택 / 주앙 티아구 아기아르 아키텍토스 (0) | 2025.05.12 |
| 젊은 가족을 위한 단독주택 / 더블유에이엘에이에이 + 호르헤 곤잘레스 (0) | 2025.05.08 |
마실와이드 | 등록번호 : 서울, 아03630 | 등록일자 : 2015년 03월 11일 | 마실와이드 | 발행ㆍ편집인 : 김명규 | 청소년보호책임자 : 최지희 | 발행소 : 서울시 마포구 월드컵로8길 45-8 1층 | 발행일자 : 매일



