
DIFF Coffee Roasters
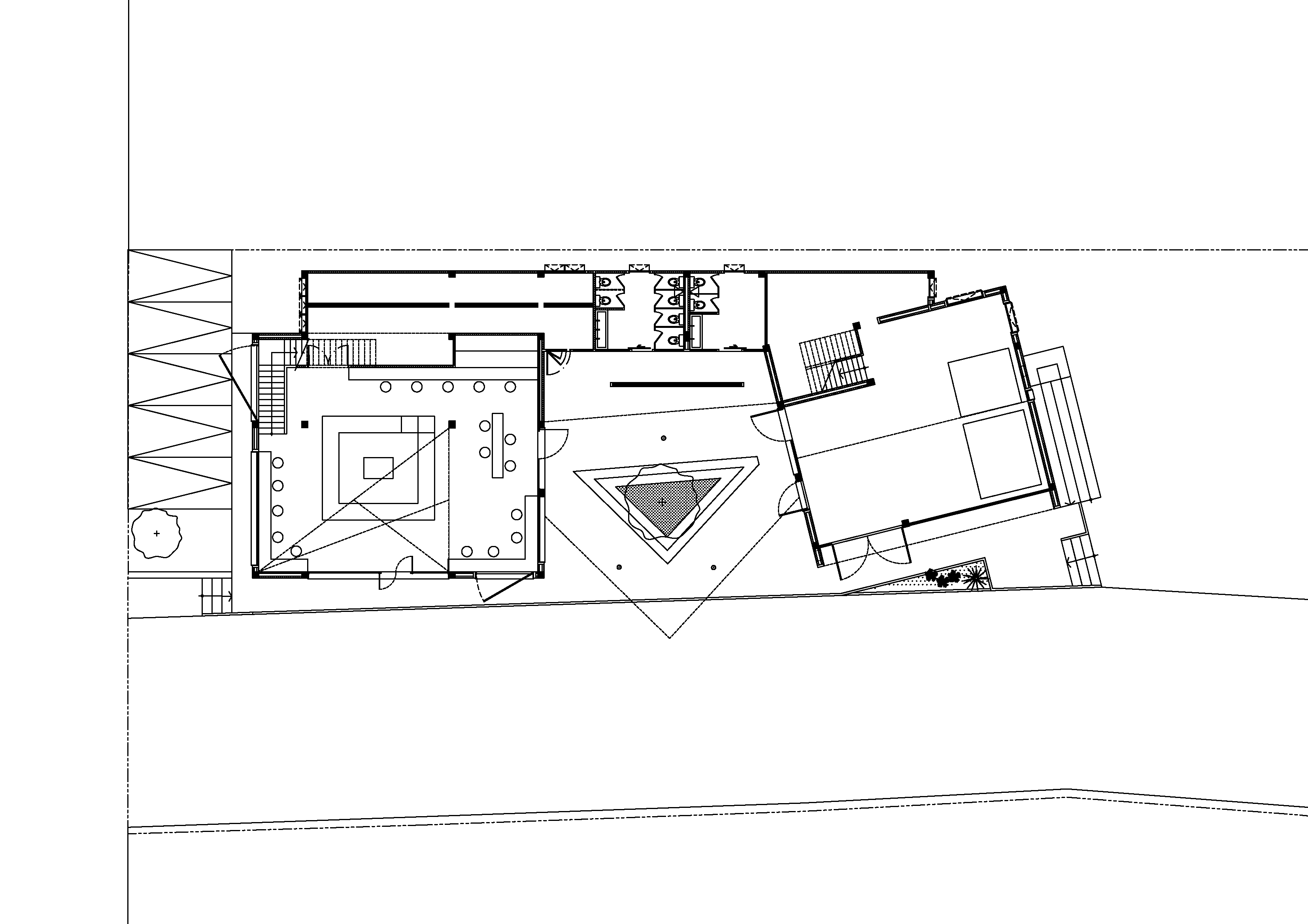
The Diff Coffee Roasters는 태국 핏사눌록에 위치한 카페이자 바이다. 이곳은 지역 사회를 위한 활력 공간이자 열린 만남의 장소로 기능한다. 건축물은 회색과 검정색의 두 개의 정육면체 형태로 구성되어 있으며, 삼각형 형태의 브리지를 통해 연결된다. 강렬한 조형성과 집합적 구조가 특징인 이 건물은 수십 년 된 나무를 감싸며, 그 아래 야외 공간은 방문객에게 그늘진 쉼터를 제공한다.



회색 큐브는 삼각형 개구부와 깊은 틈을 통해 자연광을 실내로 유도한다. 이로 인해 실내에는 빛과 그림자가 만들어내는 섬세한 패턴이 형성되어 생동감 있는 분위기를 조성한다. 매끄러운 콘크리트, 따뜻한 질감의 목재, 투명한 유리창 등 다양한 재료의 조합은 전체적인 설계의 단순성과 순수성을 강조한다.




내부에 들어서면 9m 높이의 천장을 지닌 아트리움이 등장하며, 삼각형 천창을 통해 웅장하고 개방적인 공간감이 드러난다. 외관의 절제된 형태와 대비되는 이 내부 공간은 방문자에게 감성적 환기를 제공한다. 검정 큐브는 바 공간으로 독립적으로 구성되어 있으며, 사각형 창과 과감한 개구부가 균형 잡힌 긴장감을 만들어낸다. 두 구조물은 대조적이지만 이질감 없이 전체 공간에 다양성과 깊이를 부여한다.



건축가 에이에스더블유에이(ASWA)
위치 태국
용도 카페
대지면적 800㎡
디자인팀 Phuttipan Aswakool, Chotiros Techamongklapiwat, Prassapol Sanguanwattanaraksa, Napasorn Luengkiattikhun, Visarut Vongjirasak
인테리어 에이에스더블유에이(ASWA)
사진작가 Soopakorn Srisakul
'Architecture Project > Hospitality' 카테고리의 다른 글
| 아나두 파인 빌라 / 스튜디오8 아키텍츠 (0) | 2025.05.23 |
|---|---|
| 연속적인 스캘럽 형태가 만드는 파사드, 포퓰러스 호텔 / 스튜디오 갱 (0) | 2025.05.21 |
| 움직이는 카페테리아, 워킹 캐노피 / 피에이에이디 (0) | 2025.04.01 |
| 씨삼엘 / 이즈모어앤씨건축사사무소 (0) | 2025.03.21 |
| 미트버리 퍼블릭 하우스 / 더블유오에스 아키텍츠 (0) | 2025.03.21 |
마실와이드 | 등록번호 : 서울, 아03630 | 등록일자 : 2015년 03월 11일 | 마실와이드 | 발행ㆍ편집인 : 김명규 | 청소년보호책임자 : 최지희 | 발행소 : 서울시 마포구 월드컵로8길 45-8 1층 | 발행일자 : 매일



