
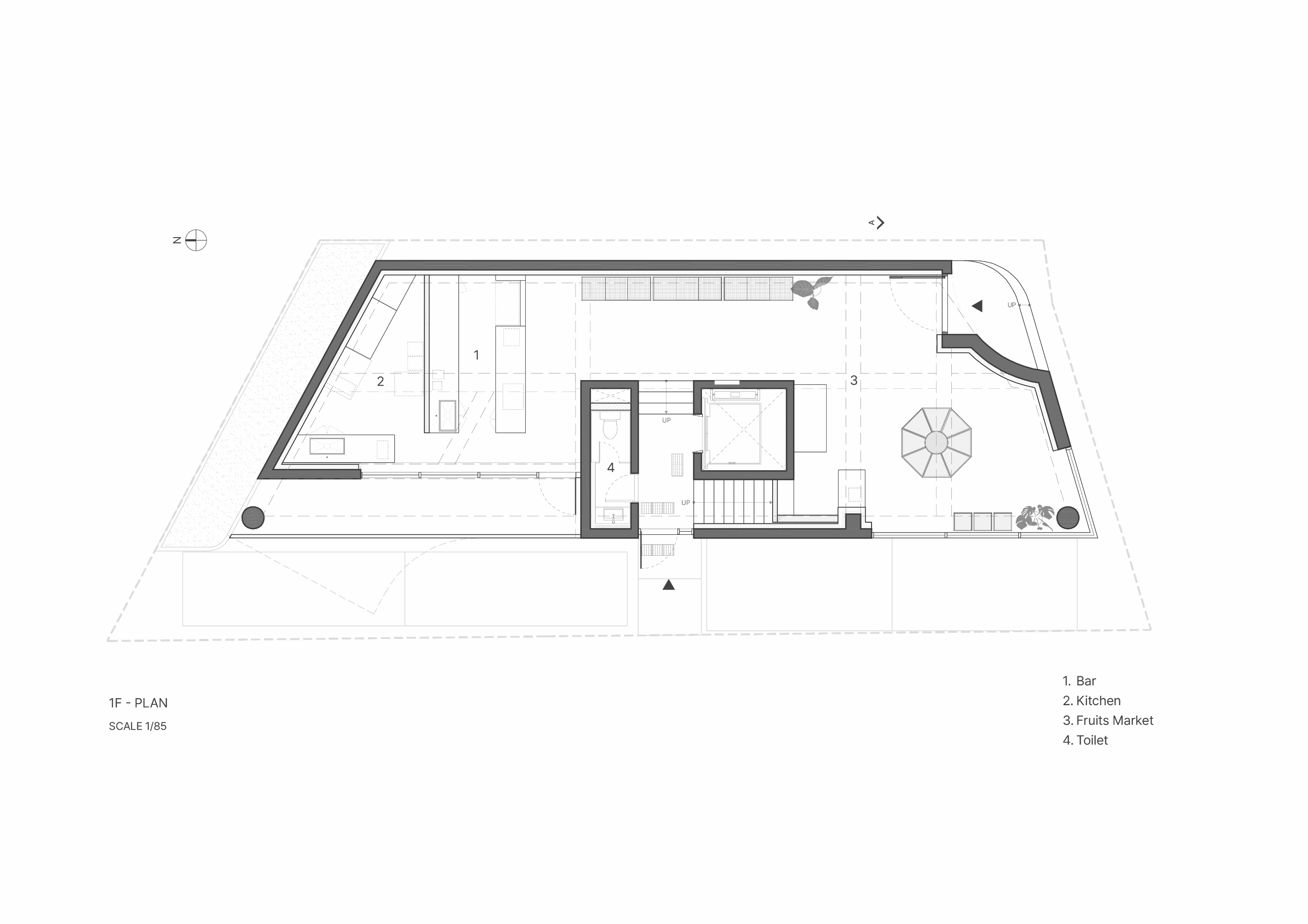
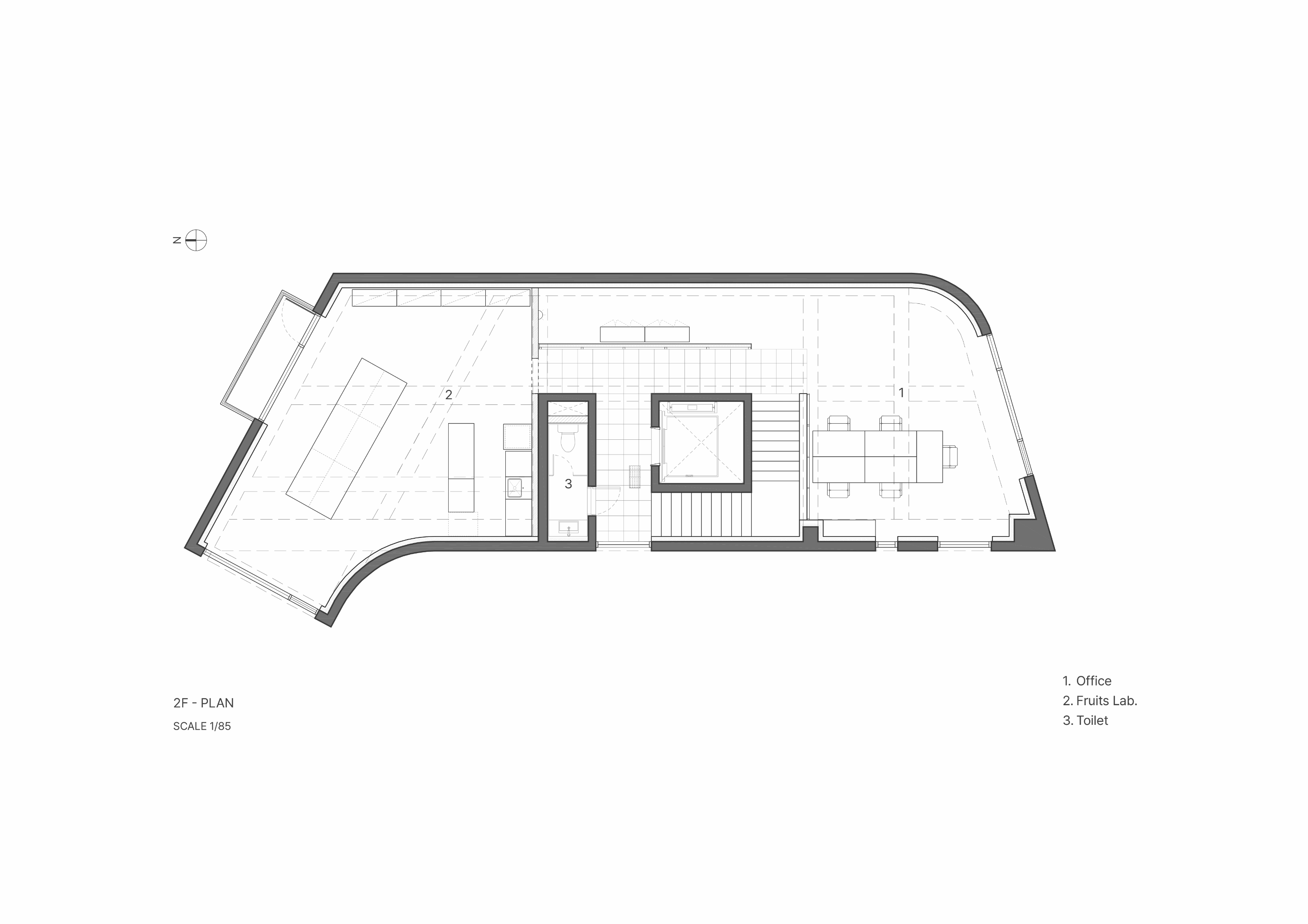
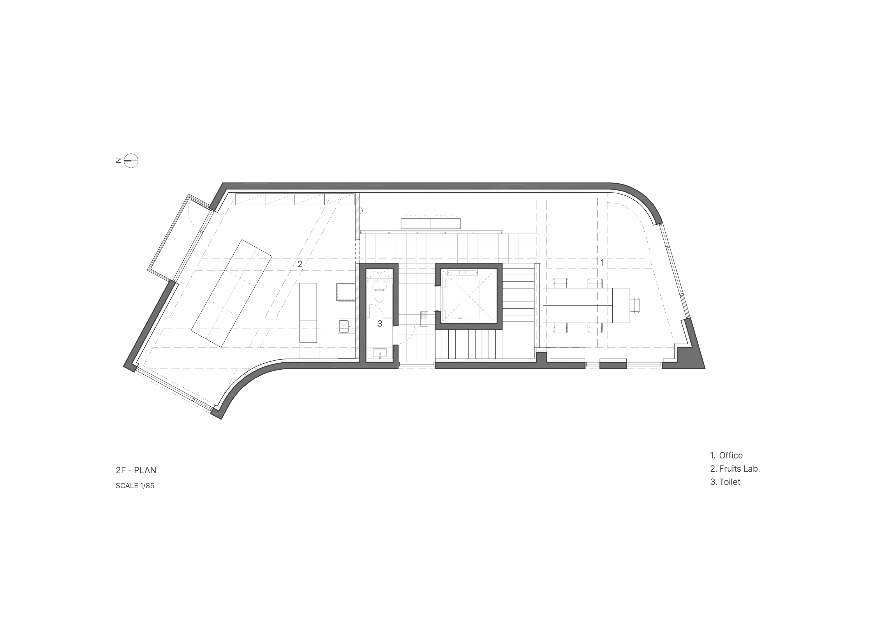
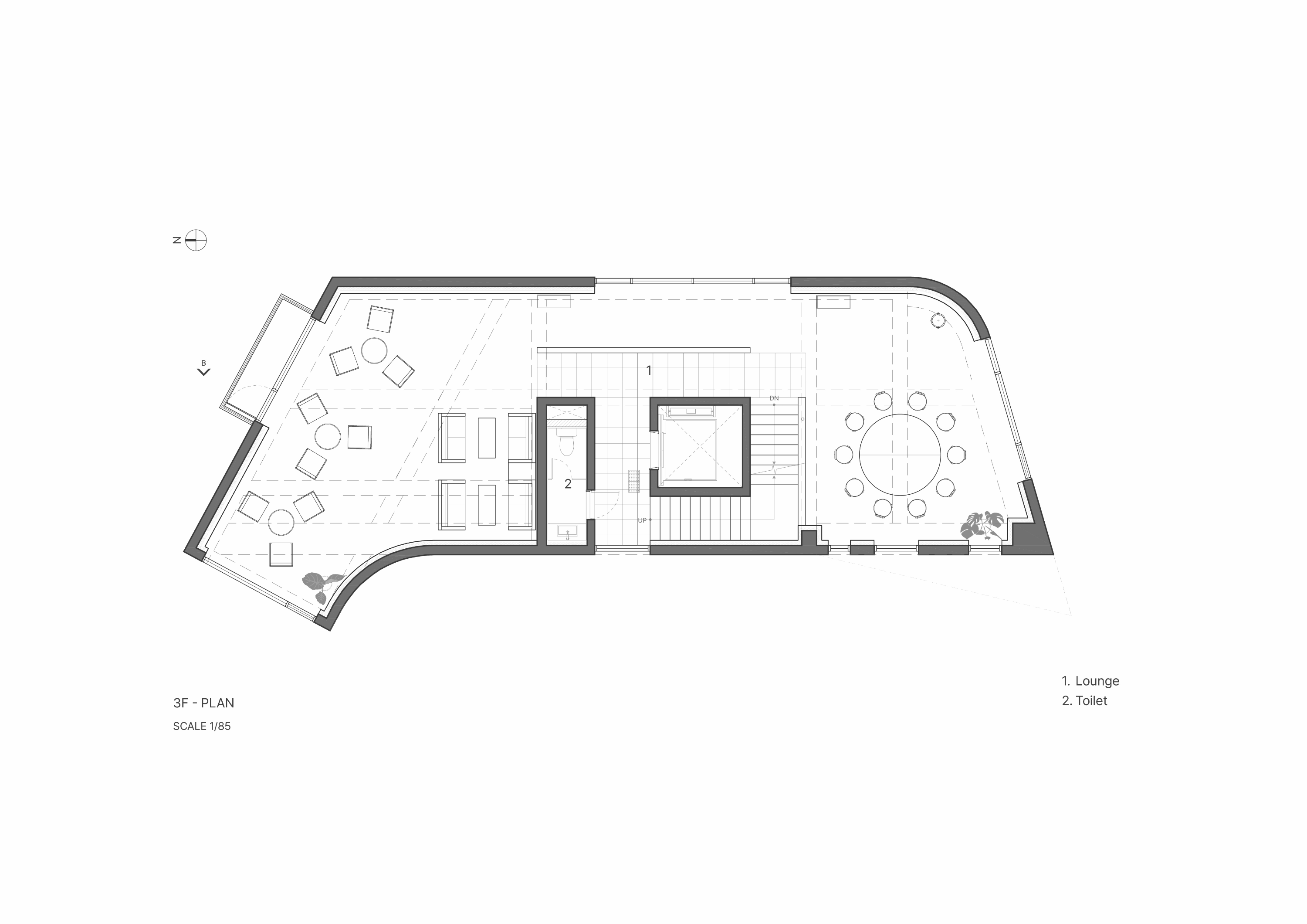
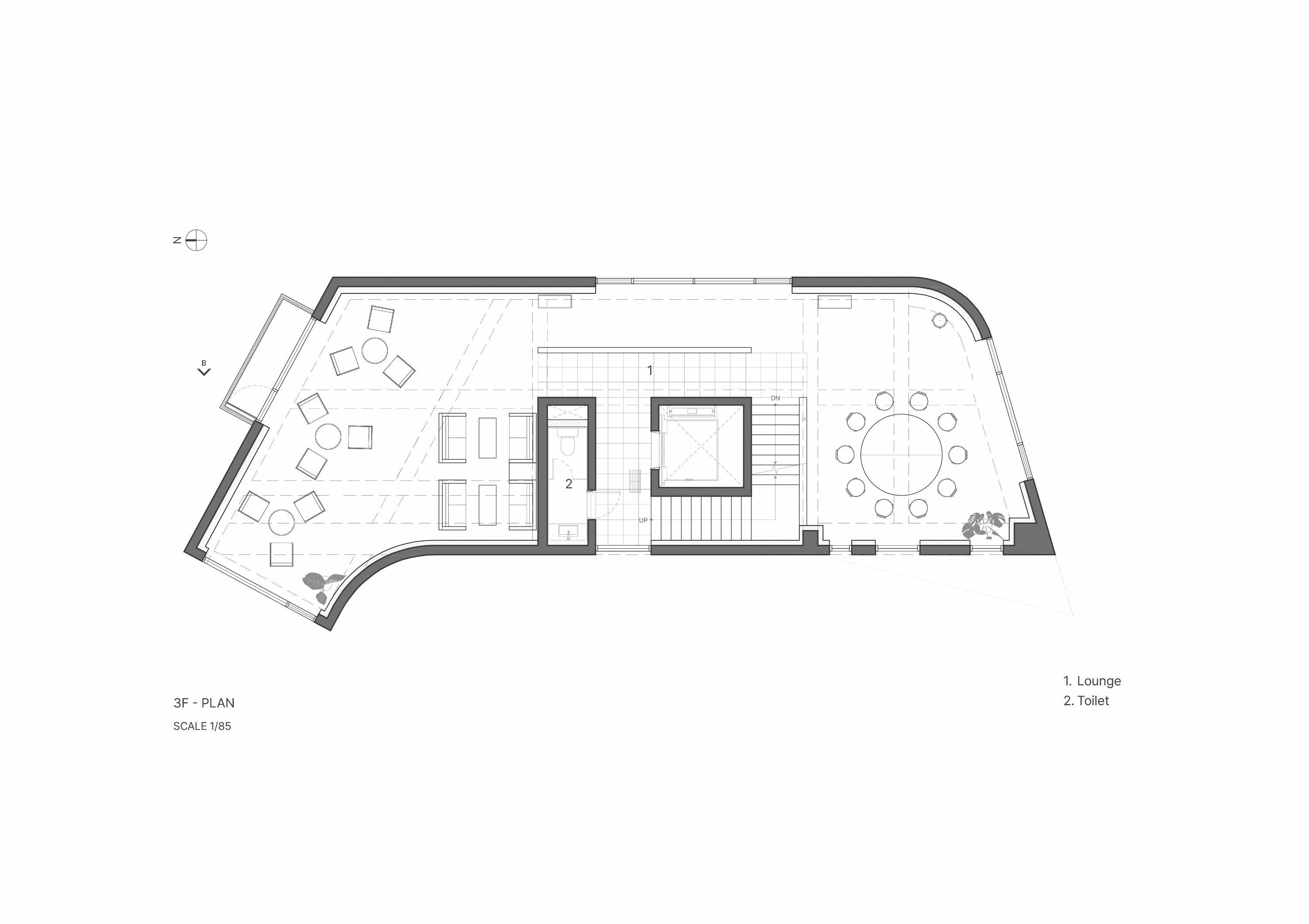
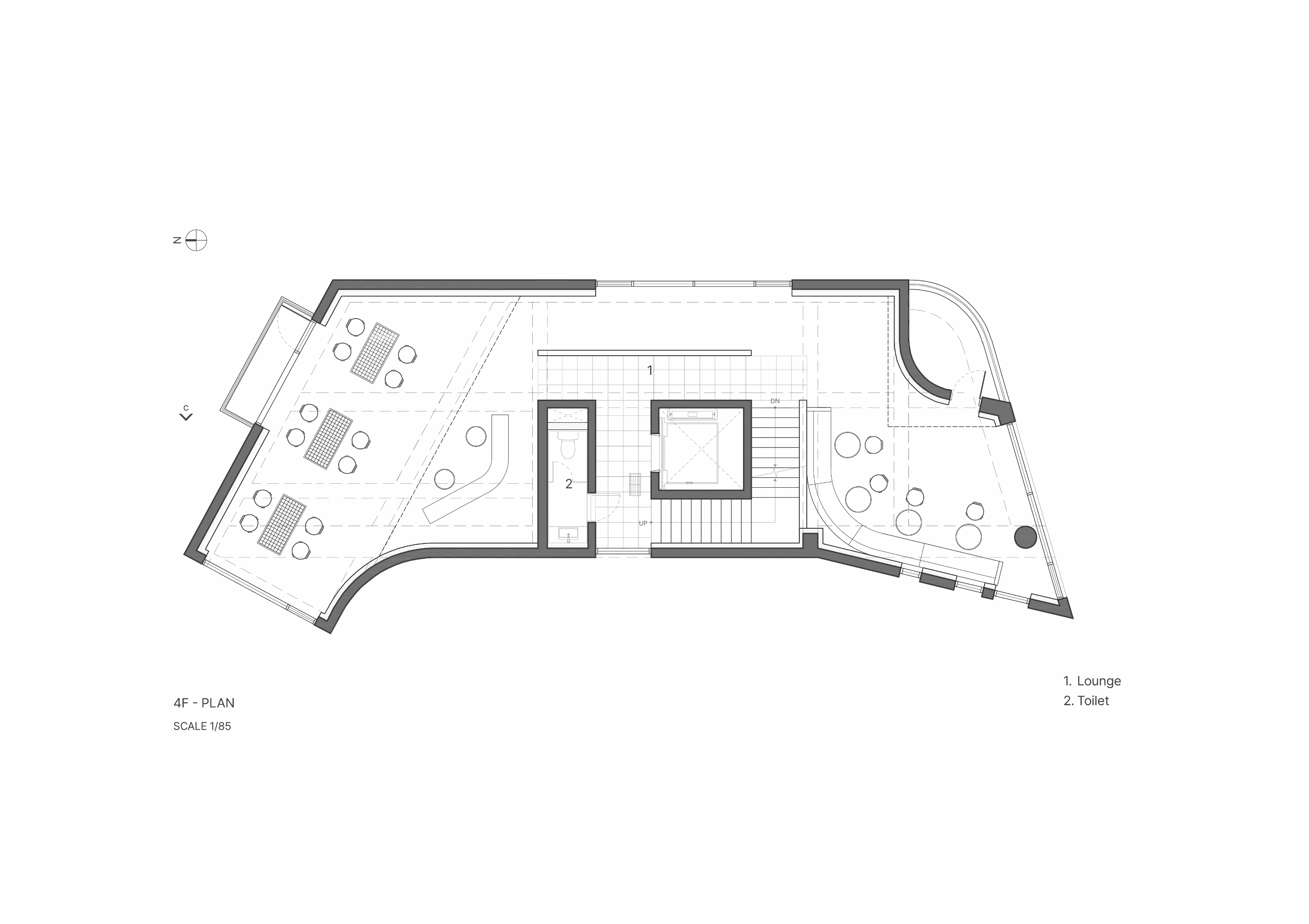
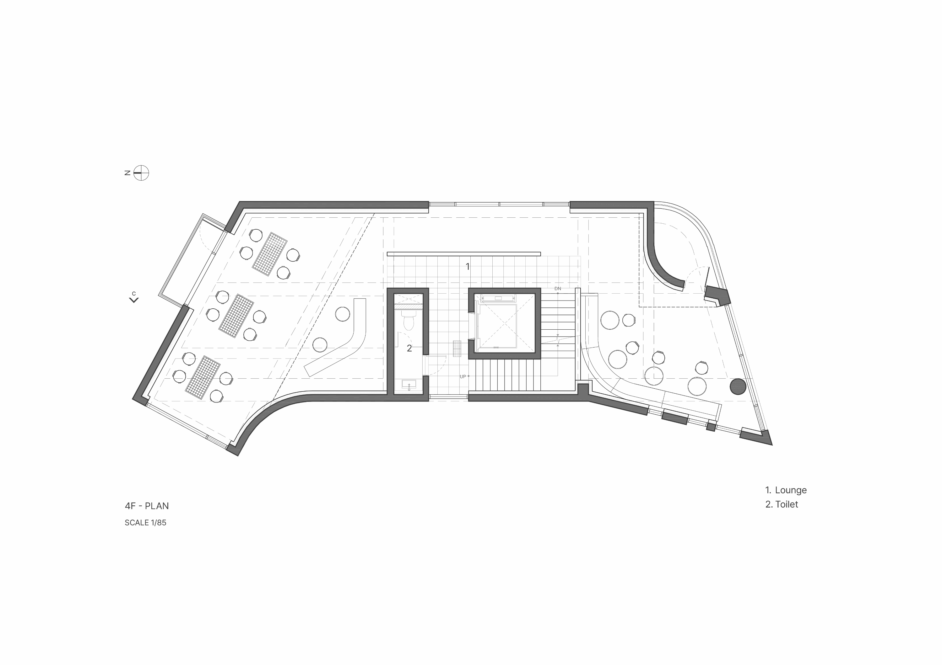
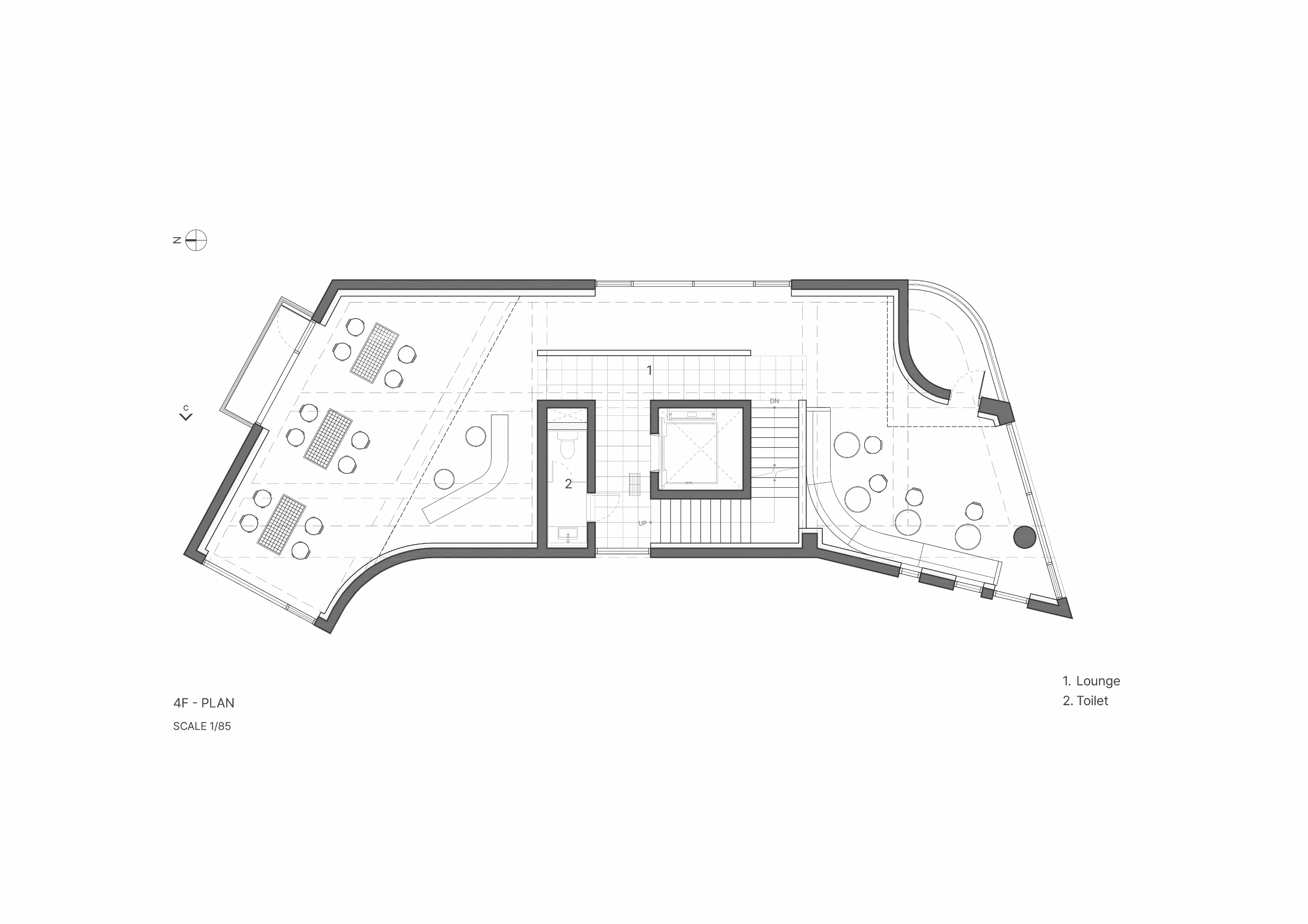
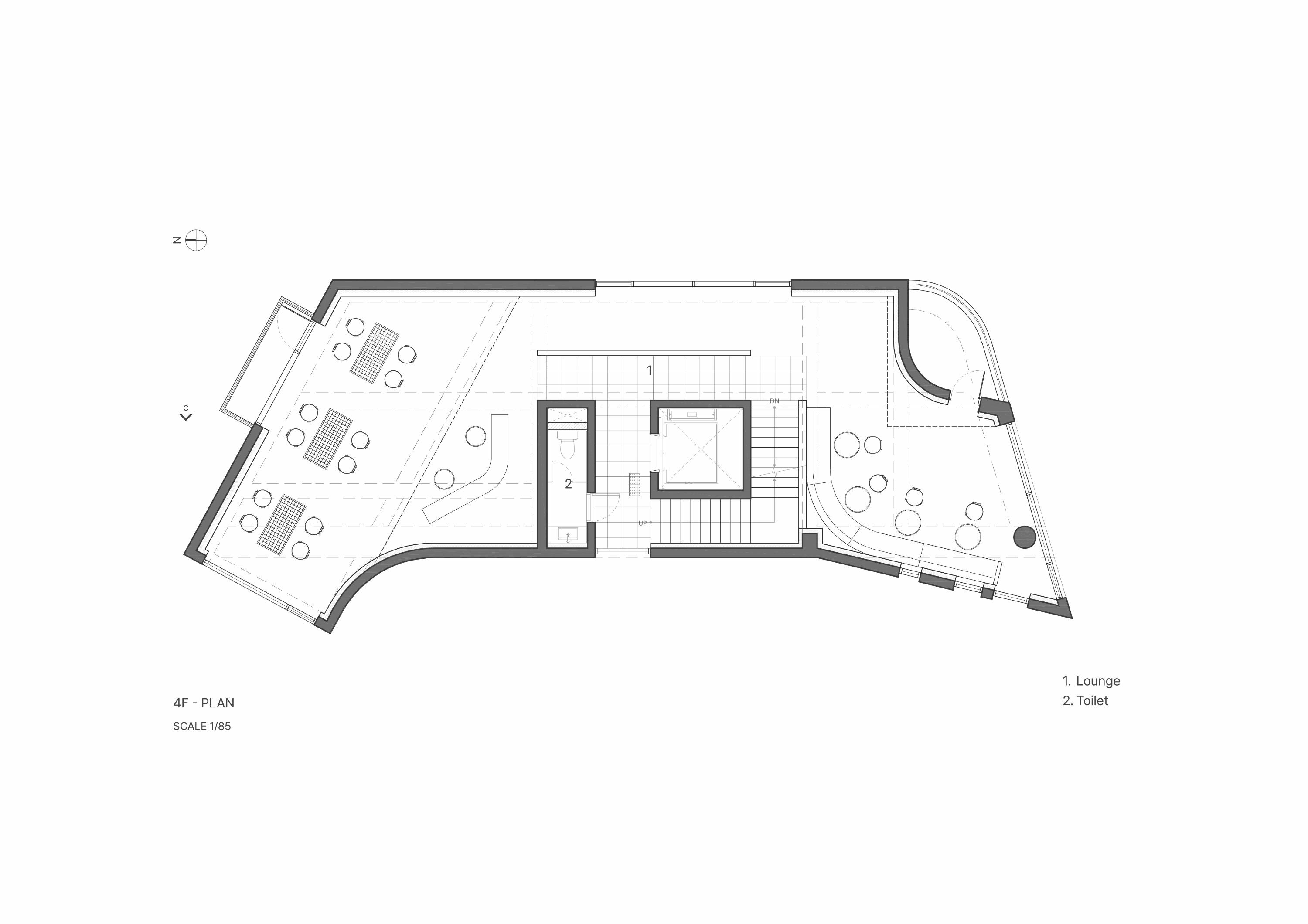
오즈베(OZBE)는 프리미엄 과일을 판매하고 그 과일을 현장에서 직접 착즙하거나 플레이팅하여 서비스하는 신생 카페 브랜드이다. 건축물은 총 4개층으로, 1층은 과일 마켓, 2층은 사무공간, 3층과 4층은 고객들을 위한 라운지 공간으로 계획되었다.


설계 초기 단계에서 건축물이 지닌 본연의 회색 콘크리트 마감에 대한 고민이 우선시 되었다. 필연적으로 싱그럽고 푸릇한 인상을 기대하게 하는 과일의 특성과 콘크리트가 가진 상반된 특성이 자칫 서로가 가진 고유의 매력을 반감시키지는 않을지에 대한 염려였다. 고심 끝에 ‘회색 콘크리트 사이에서 피어난 꽃’의 이미지를 떠올렸다. 정원에 흐드러지게 피어나, 잎이 빛으로 충만한 꽃들과 비교하면 처연한 모양새이지만, 그 어떤 꽃보다도 강인한 존재감과 생명력을 뿜어낸다. 이처럼 오즈베의 과일들도 공간 안에서 ‘웅크린 생동의 기운’을 지닐 수 있도록 디자인하였다.



이를 위해 기존의 콘크리트 마감 면을 최대한 살리되 공간의 주재료인 메이플 원목이 시각적, 정서적 균형을 이루도록 계획하였다. 이는 형형색색의 과일들이 비치되었을 때 비로소 그 감각을 전달한다. 이러한 연결성은 1층뿐만 아니라 위층까지 이어진다. 곳곳에 배치된 각기 다른 크기의 식물들이 과일을 대신해 그 균형을 유지하며, 공간 안에 약간의 온기와 질감을 더하도록 기획하였다.




과일 마켓을 이용하는 중장년층, 가족 단위 고객들의 유입이 많을 것으로 예상되는 만큼 전 연령층이 모두 공유할 수 있는 아름다움과 유용성 사이의 균형을 설정하는 것 또한 숙제였다. 이를 위해 아이들이 좋아할 법한 간살을 활용한 곡선 벤치와 흔히 볼 수 없는 큰 스케일의 제작 가구, 중장년층을 배려한 편안한 라운지 좌석, 높낮이가 다른 테이블 등을 모든 층에 고르게 배치하였다.







디자이너 꼴스튜디오(KKOL STUDIO)
위치 대한민국, 경상북도, 안동시, 임청각길 9
연면적 495㎡
대표디자이너 윤의선, 배혜지, 함수빈
디자인팀 Euisun Yoon, Hyeji Bae, Sungwook Song, Hongbeom An
시공 IAAP STUDIO
사진작가 Donggyu Kim
'Interior Project > Cafe&Restaurant' 카테고리의 다른 글
| 목재와 패브릭의 대비로 구성하는 레스토랑 / 이에프이이엠이 아키텍츠 (0) | 2025.03.27 |
|---|---|
| 래이 어이 까 페 / 짠 쭝 아키텍츠 (0) | 2025.03.20 |
| 지역의 환경을 재료로 만든 레스토랑 / 아이엔.엑스 인테리어 디자인 (0) | 2025.03.13 |
| 그리드 커피 / 스파이더 크리에이티브 (0) | 2025.03.06 |
| 자연의 흐름을 관망하며 / 엘 에키포 크레아티보 (0) | 2025.02.24 |
마실와이드 | 등록번호 : 서울, 아03630 | 등록일자 : 2015년 03월 11일 | 마실와이드 | 발행ㆍ편집인 : 김명규 | 청소년보호책임자 : 최지희 | 발행소 : 서울시 마포구 월드컵로8길 45-8 1층 | 발행일자 : 매일



