
Márvila House
이 프로젝트는 팬데믹 기간 동안 진행되었다. 어쩌면 이러한 시대적 배경 덕분에 사람들이 함께하는 시간을 더욱 소중히 여기도록 만들며 기능적 필요를 넘어 상상 속 즐거움을 추구하려는 욕망을 반영하고 있다.


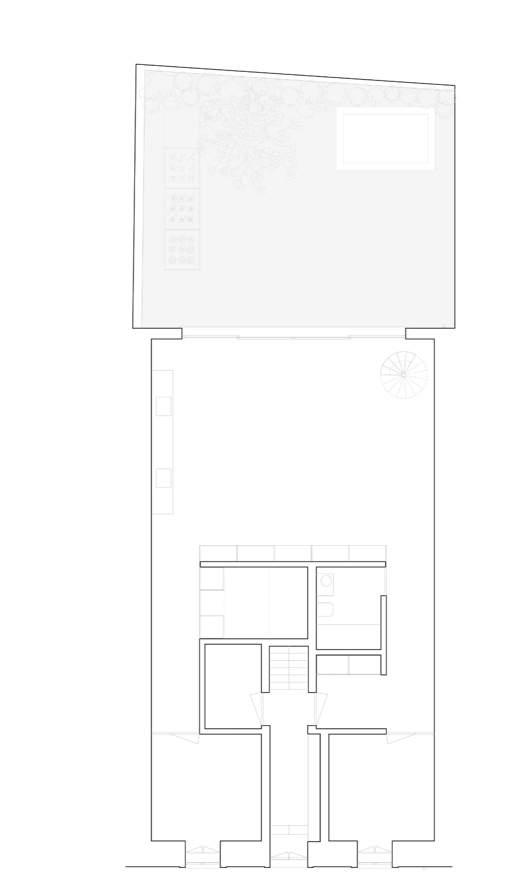
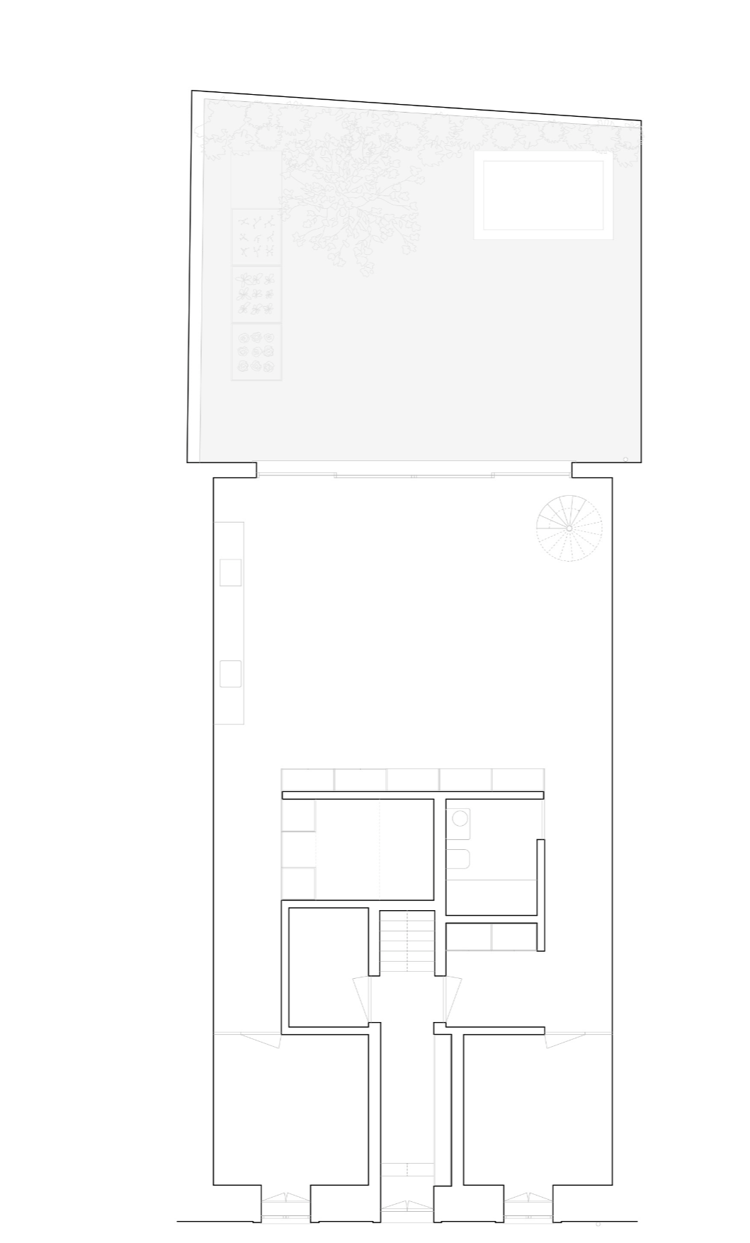
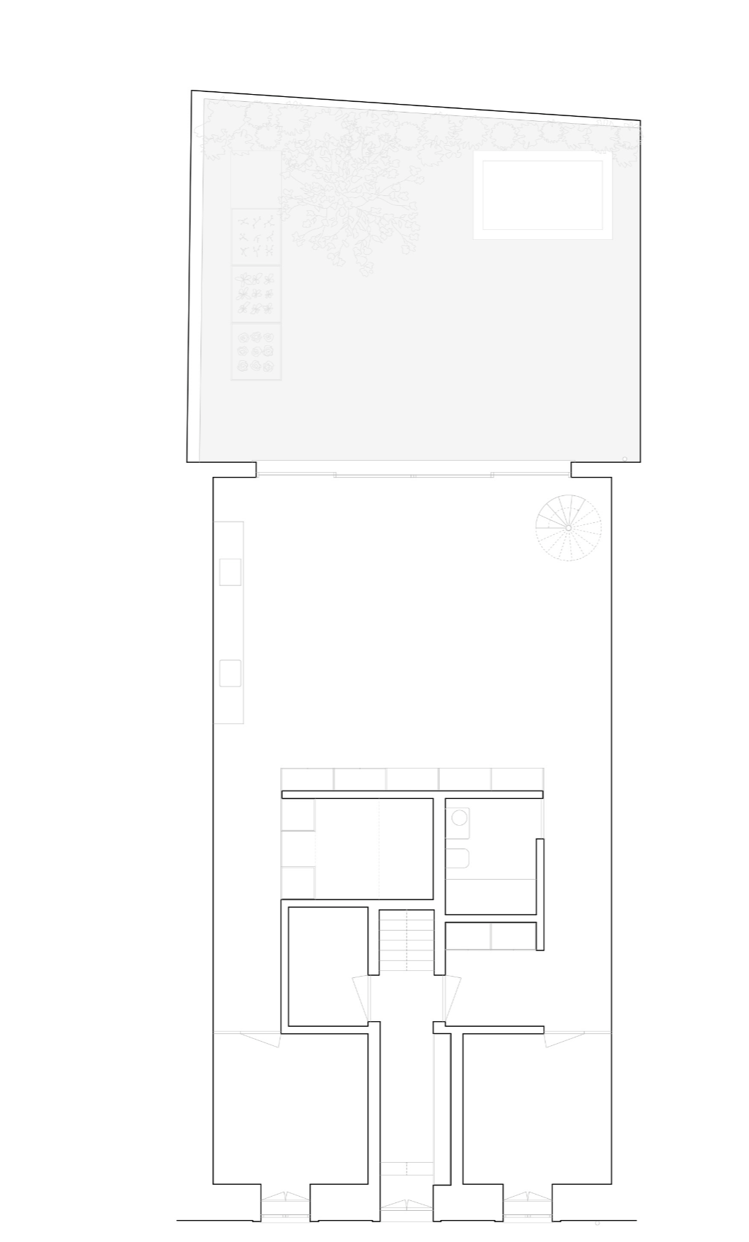
거리 쪽 파사드는 기존 형태를 유지하며 개조된 부분에 대한 미묘한 분위기를 풍기는데 그친다. 반면 확장된 후면 파사드는 기존 구조와 충돌하는 것이 아니라, 건물의 역사에 또 하나의 층을 더하는 방식으로 새롭게 태어났다.




실내에서는 익숙한 재료들이 반복적으로 사용되면서 새로운 방식으로 재해석되었다. 녹색 오일로 마감한 구조용 목재 패널, 푸른빛이 감도는 산업용 바닥재, 도장된 강철 시트, 목재 프레임, 신트라 석회암, 그리고 강가의 자갈 등이 조화를 이루며 공간을 구성하고 있다.




건축가 아틀리에 조제 안드라드 호샤 (Atelier José Andrade Rocha)
위치 포루투갈, 리스본
프로젝트면적 330㎡
규모 지상 3층
엔지니어 Inline engenharia
사진작가 Francisco Ascensão
'Interior Project > Residential' 카테고리의 다른 글
| 퓨어 어보드 / 씨.디디 (0) | 2025.04.04 |
|---|---|
| 집을 직조하듯 엮어내는 다이닝룸 / 님팀 아키텍츠 (0) | 2025.03.31 |
| 빛이 흘러 스미는 주택, 더 선큰 리트리트 / 에프이디엘 (0) | 2025.03.11 |
| 하츠 하우스 / 히가시야마 스튜디오 (0) | 2025.03.10 |
| 단순함이 만드는 공간 / 난 아르키텍투스 (0) | 2025.02.25 |
마실와이드 | 등록번호 : 서울, 아03630 | 등록일자 : 2015년 03월 11일 | 마실와이드 | 발행ㆍ편집인 : 김명규 | 청소년보호책임자 : 최지희 | 발행소 : 서울시 마포구 월드컵로8길 45-8 1층 | 발행일자 : 매일



