
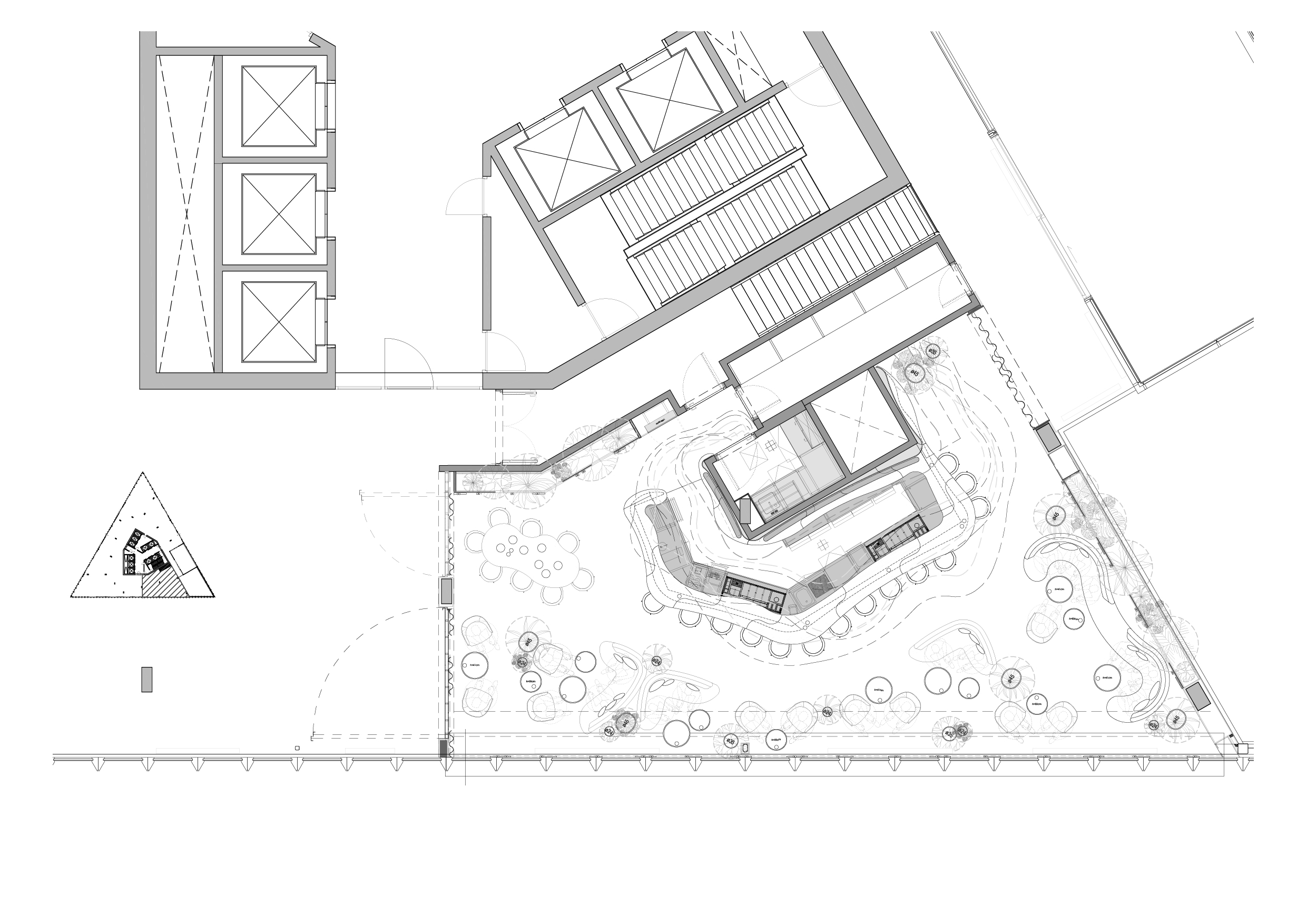
네덜란드 암스테르담의 Nhow 호텔 최상층에 자리한 소노라 칵테일 바는 같은 층에 위치한 셀바 레스토랑과 조화를 이루는 공간으로 주목받고 있다.

이 곳의 가장 큰 매력은 공간과 전망이 어우러지는 독특한 설계에 있다. 삼각형 구조의 아담한 공간은 바닥부터 천장까지 이어지는 유리 파사드를 통해 암스테르담 신도시의 탁 트인 전망을 볼 수 있다. OMA 스튜디오가 설계한 이 유리벽은 현대적인 미학을 담고 있다. 그러나 웅장한 배경 속에서도 칵테일 바 자체가 존재감을 드러낼 수 있도록 설계하는 것이 가장 큰 디자인적 도전이었다.


바의 중심에는 황금빛으로 빛나는 구조물이 있다. 천장까지 뻗은 디자인은 마치 고대 해양 생물을 연상시킨다. 공간 전체는 이러한 콘셉트를 더욱 극대화하는 방식으로 꾸며졌다. 녹색 인테리어와 울창한 식물 그리고 패턴이 어우러져 마치 라틴아메리카 정글에 들어온 듯한 분위기를 자아낸다. 반사되는 유리 표면은 흐르는 물의 이미지를 연출하며, 물결무늬 카펫과 자연스럽게 조화를 이룬다.


바깥 풍경을 감상할 수 있도록 유리창 근처에는 유기적인 곡선 디자인의 가구들이 배치됐다. 강렬한 붉은색과 패턴이 특징인 가구들은 마치 독성이 있는 열대 과일이나 연못 속 생물을 연상시키며, 공간에 독특한 긴장감을 더한다.

디자이너 엘 에키포 크레아티보(EL EQUIPO CREATIVO)
위치 네덜란드, 암스테르담
프로젝트디자이너 Daniel Trujillo, Marcos Merino
디자인팀 Ricard Fabregat, Rafaela Aranzaens, Michele Soares, Yesica Peña, Maria di Bello
발주자 Nhow Hotels, NH Hotels
사진작가 Adrià Goula
'Interior Project > Cafe&Restaurant' 카테고리의 다른 글
| 그리드 커피 / 스파이더 크리에이티브 (0) | 2025.03.06 |
|---|---|
| 자연의 흐름을 관망하며 / 엘 에키포 크레아티보 (0) | 2025.02.24 |
| 공간을 밝히는 작은 불씨 / 난 아르키텍투스 (0) | 2025.02.19 |
| 흐르듯 여정하는 카페 / 꼴 스튜디오 (0) | 2025.02.12 |
| 와플로 이루어진 곳 / 마스케파시오 (0) | 2025.02.05 |
마실와이드 | 등록번호 : 서울, 아03630 | 등록일자 : 2015년 03월 11일 | 마실와이드 | 발행ㆍ편집인 : 김명규 | 청소년보호책임자 : 최지희 | 발행소 : 서울시 마포구 월드컵로8길 45-8 1층 | 발행일자 : 매일



