
대부분의 어린이집은 울타리와 담장을 사용해 도시와 단절된 형태로 공공성을 상실해 가고 있다. 시립장지하나어린이집은 기존에 담장으로 구획되었던 사적 영역을 공적 영역으로 전환하고, 마을 주민과 함께 공유하며 공공성을 회복할 수 있는 공간으로 설계됐다.

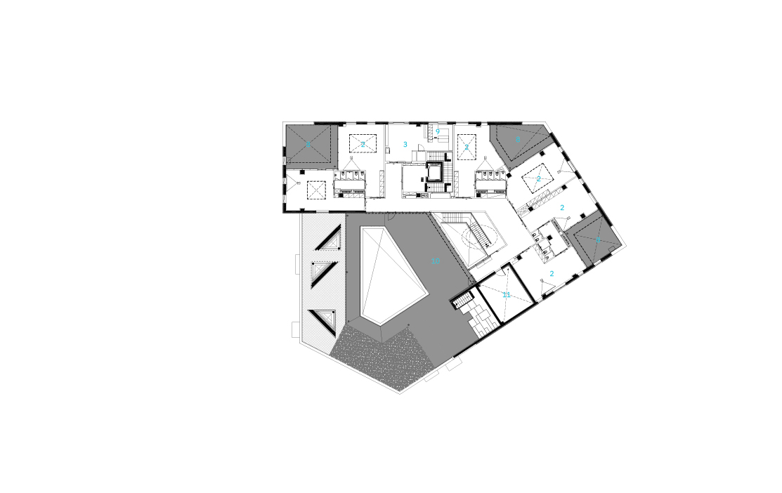
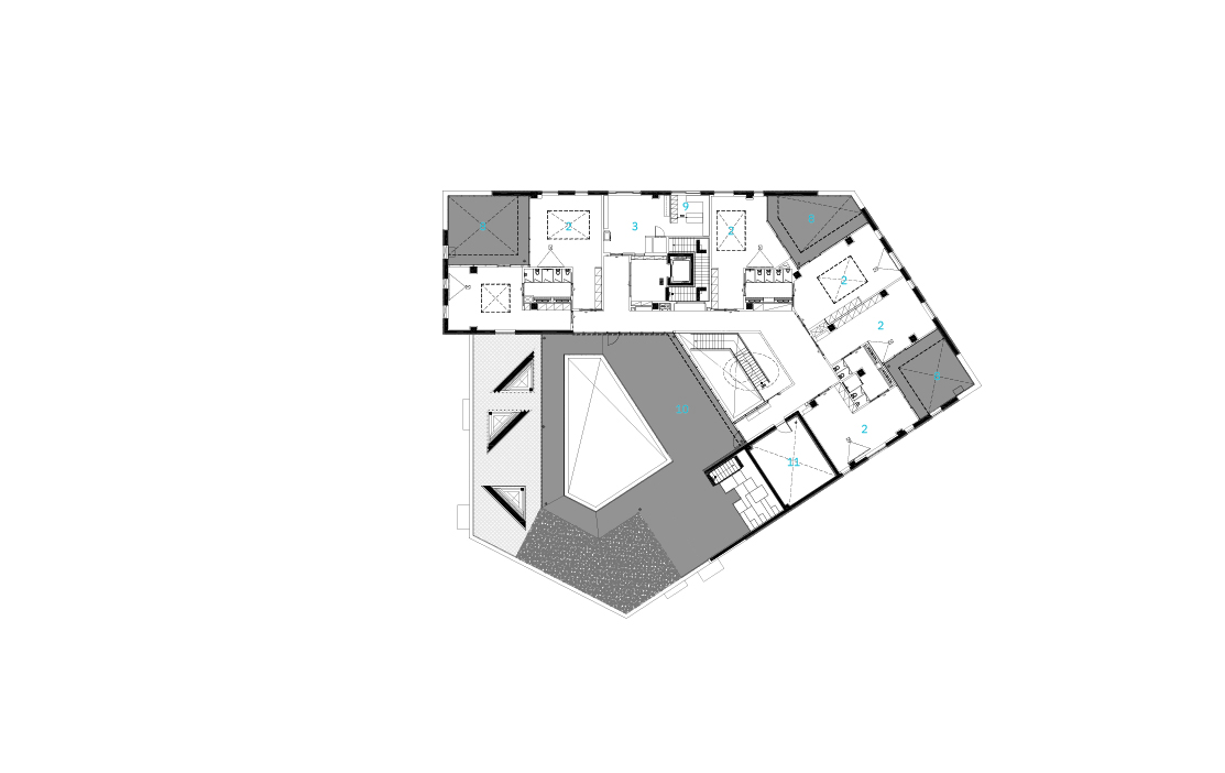
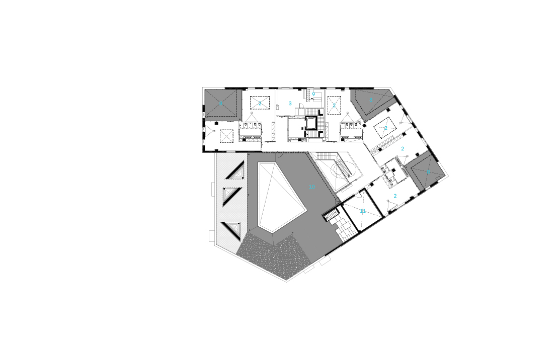
시립장지하나어린이집은 대지경계선에서 건축선을 3m 후퇴하여 계획된 프로젝트다. 건축가는 후퇴한 대지에 필로티 구조를 더해 넓은 어린이집 앞마당을 구성했다. 이 공간은 자전거를 타는 아이들, 유모차를 끌며 아이를 기다리는 학부모 등 지역 주민들이 자연스럽게 모이는 소통의 장소로 활용되고 있다. 입구에서 가장 먼저 마주하는 다목적 홀은 도서관, 체육관, 영화관, 소강당 등 다양한 용도로 활용이 가능하며 어린이들의 행동에 따라 용도가 정해진다. 시립장지하나어린이집은 장지천 변을 따라 조성된 공원과 인접해 있다. 건물의 높이는 공원의 경사 지형에 어울리게 조정되어 공원과 조화를 이룬다. 또한 어린이들의 놀이 환경도 자연과 연결된다.



1층의 유아용 놀이터와 2층의 넓은 테라스는 장지천 방향으로 열려 있어 어린이들이 자연을 가까이에서 느끼며 뛰어놀 수 있는 공간이다. 유아반은 야외 놀이 공간에서 또래와 함께 빗소리를 듣고 눈사람을 만들며 작은 텃밭을 가꾸는 등 자연과 함께하는 경험을 할 수 있다. 반면, 영아반은 안전을 고려하여 야외 놀이 공간을 이용하는 대신 아늑한 중정 놀이터를 이용할 수 있다.


건물 곳곳에는 다양한 높이와 형태의 창이 있어 아이들이 각기 다른 풍경과 시간에 따라 변화하는 그림자의 움직임을 느낄 수 있다. 공용 공간에는 천창과 테라스, 중정을 배치해 실내로 충분한 자연 채광이 유입된다. 더불어 건물의 에너지 효율성을 높이기 위해 사선 형태의 태양광 패널과 더운 공기를 효율적으로 배출할 수 있는 천창을 설치했다.




건축가 (주)건축사사무소오씨에이 (OCA)
위치 경기도 화성시 장지동 945
용도 노유자시설
대지면적 2,477.00m2
건축면적 1,188.63m2
연면적 1,418.20m2
규모 지상 2층
건폐율 47.99%
용적률 57.25%
설계기간 2021. 2. - 10.
시공기간 2021. 12. - 2023. 1.
준공 2023. 1.
대표건축가 임재용
프로젝트건축가 임재용
디자인팀 이정훈, 김보경, 한규선
구조엔지니어 (주)중앙구조이엔지
기계엔지니어 (주)우림설비기술사사무소
전기엔지니어 (주)성진티이씨
시공 네이처이앤티(주)
발주자 화성시청
사진작가 노경
해당 프로젝트는 건축문화 2025년 2월호(Vol. 525)에 게재되었습니다.
The project was published in the November, 2025 recent projects of the magazine(Vol. 525).
February 2025 : vol. 525
Contents : COMPETITION : BOOKS : RECENT PROJECT Y22007 PJ_012 / BSN ARCHI.연남동 리모델링 프로젝트 / 비에스엔 건축사사무소 GD House / Adarq - André David Arquitecto지디 하우스 / 아다르크 - 안드레 다비
anc.masilwide.com
'Architecture Project > Education' 카테고리의 다른 글
| 어린이 숲 보육원 / 타카시게 야마시타 오피스 (0) | 2025.02.19 |
|---|---|
| 갈락시에 에르 바른스도르프 유치원 / 알지 아키텍츠 스튜디오 (0) | 2025.02.18 |
| 가든 스쿨 / 제이디에이피 (0) | 2025.02.13 |
| 자연을 바라보며 공부할 수 있는 곳 / 카르발로 테라 아르키테토스 (0) | 2025.02.03 |
| 미래산업과학고등학교 급식실 증축공사 / 비그라운드 아키텍츠 건축사사무소 (0) | 2025.01.13 |
마실와이드 | 등록번호 : 서울, 아03630 | 등록일자 : 2015년 03월 11일 | 마실와이드 | 발행ㆍ편집인 : 김명규 | 청소년보호책임자 : 최지희 | 발행소 : 서울시 마포구 월드컵로8길 45-8 1층 | 발행일자 : 매일



