
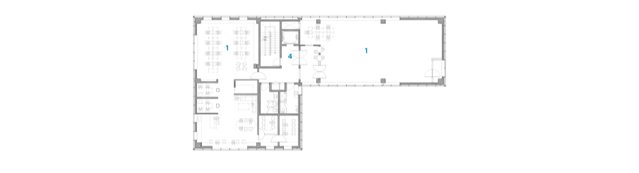
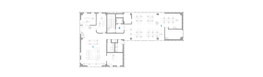
엠 빌딩은 사람들의 다양한 이야기가 어우러질 수 있는 ‘빈 공간’을 구현하여 사용자와 대지를 조화롭게 연결한 건축물이다. 단일 매스이지만 지하에 있는 선큰이 건축물에 다양한 무형의 가치를 담을 수 있는 중심 공간의 역할을 한다.



지하 공간에서 지상 1층까지 연결되는 선큰은 따스한 자연광과 신선한 공기를 지하 대공간으로 유도한다. 뿐만 아니라, 앞마당과 뒷마당을 연결하는 통로인 빈 공간이 별도로 조성되어 단조로운 긴 대지의 흐름을 이어준다. 이러한 엠 빌딩 곳곳에 배치된 빈 공간은 건축가의 철학을 담고 있으며, 공간 간의 단순한 연결을 넘어 대지가 숨 쉴 수 있는 숨통 역할을 한다. 건축가는 임대 공간으로 사용할 수 있는 면적을 과감히 비워내면서 대지와 건축, 그 공간을 이용하는 사람들의 이야기를 차곡차곡 담아내어 건축물을 완성했다.







건축가 (주)엘케이에스에이 건축사사무소 (LKSA Architects)
위치 인천광역시 계양구 경명대로 958
용도 근린생활시설
대지면적 2,008.50㎡
건축면적 401.00㎡
연면적 2,179.26㎡
규모 지하 1층, 지상 3층
건폐율 19.97%
용적률 58.85%
설계기간 2021. 2. - 2022. 1.
시공기간 2022. 6. - 2023. 8.
준공 2023. 8.
대표건축가 이근식
프로젝트건축가 이근식, 김동현, 문태석
구조엔지니어 제이더블유구조안전기술사사무소
기계엔지니어 주성엠이씨기술사사무소
전기엔지니어 (주)엘림전설
소방엔지니어 (주)엘림전설
시공 (주)예승건설
발주자 (주)메디풀
사진작가 구의진
해당 프로젝트는 건축문화 2025년 1월호(Vol. 524)에 게재되었습니다.
The project was published in the November, 2024 recent projects of the magazine(Vol. 524).
January 2025 : vol. 524
Contents : RECORDS : COMPETITION : BOOKS : RECENT PROJECT Toegye-dong Community Center / ZANGINSOO.ARCHITECTS + SIMMI ARCHITECTURE & ENGINEERING퇴계동 행정복지센터 / 장인수건축사사무소 + 심미건축사사무소 Kanagawa De
anc.masilwide.com
'Interior Project > Other' 카테고리의 다른 글
| 윈터서커스 / 오와이오 아키텍츠 (0) | 2025.02.07 |
|---|---|
| 무한한 대비와 켜가 그리는 공간 / 엑스 플러스 리빙 (0) | 2025.02.04 |
| 이우 플레이스 공공 쇼핑 구역 (0) | 2024.12.12 |
| 후보 (0) | 2024.12.09 |
| 취저우 선농 사원의 부분적인 리노베이션 (0) | 2024.12.05 |
마실와이드 | 등록번호 : 서울, 아03630 | 등록일자 : 2015년 03월 11일 | 마실와이드 | 발행ㆍ편집인 : 김명규 | 청소년보호책임자 : 최지희 | 발행소 : 서울시 마포구 월드컵로8길 45-8 1층 | 발행일자 : 매일


