
보국보훈도시 인천. 역사적 의미를 갖는 기념비적인 공간들이 다수 존재해 있는 도시에 인천시 통합보훈회관이 들어선다. 보훈회관이란 국가유공자와 보훈 가족들이 서로 상부상조하여 자활 능력과 명예로운 삶을 누릴 수 있도록 예우하기 위한 복지시설을 일컫는다. 하지만 그들의 생애는 점점 나이가 들어 노인이 되가는 실정이다. 사회적 역할이 줄어드는 그들을 위해 우리가 만들 수 있는 공간은 무엇이 있을까. 미래세대와 보훈세대가 함께하는 보훈회관은 어떤 모습이 되어야 할까를 시작으로 본 프로젝트를 시작했다.
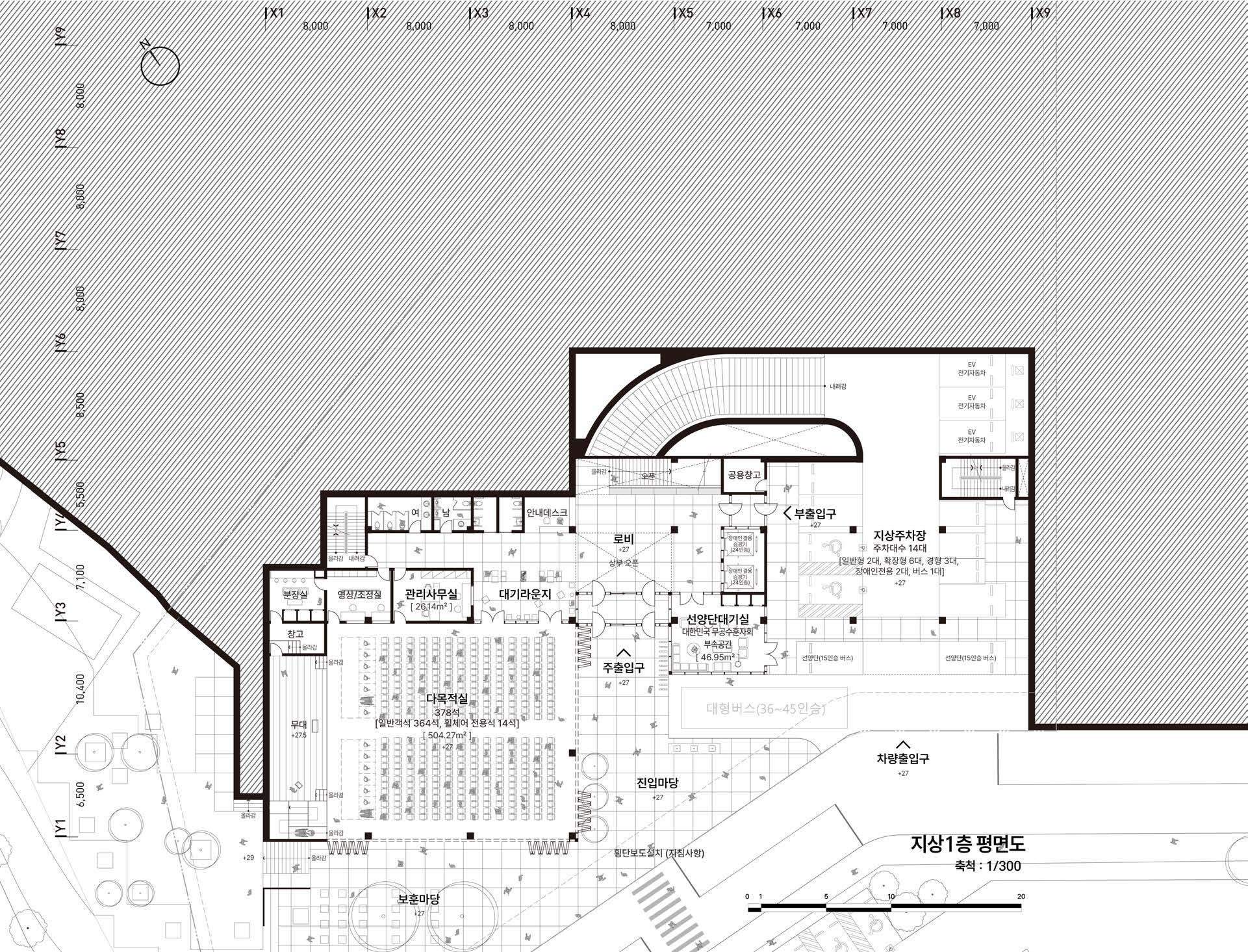
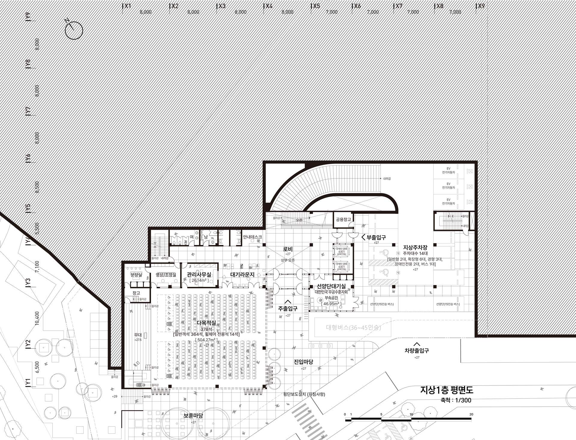
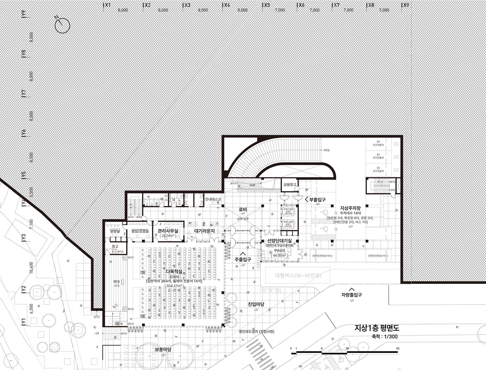
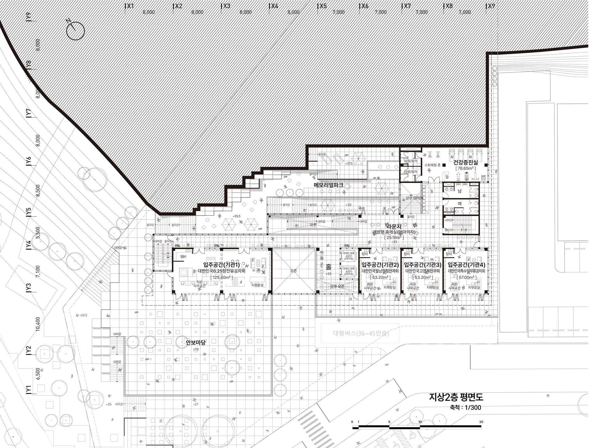
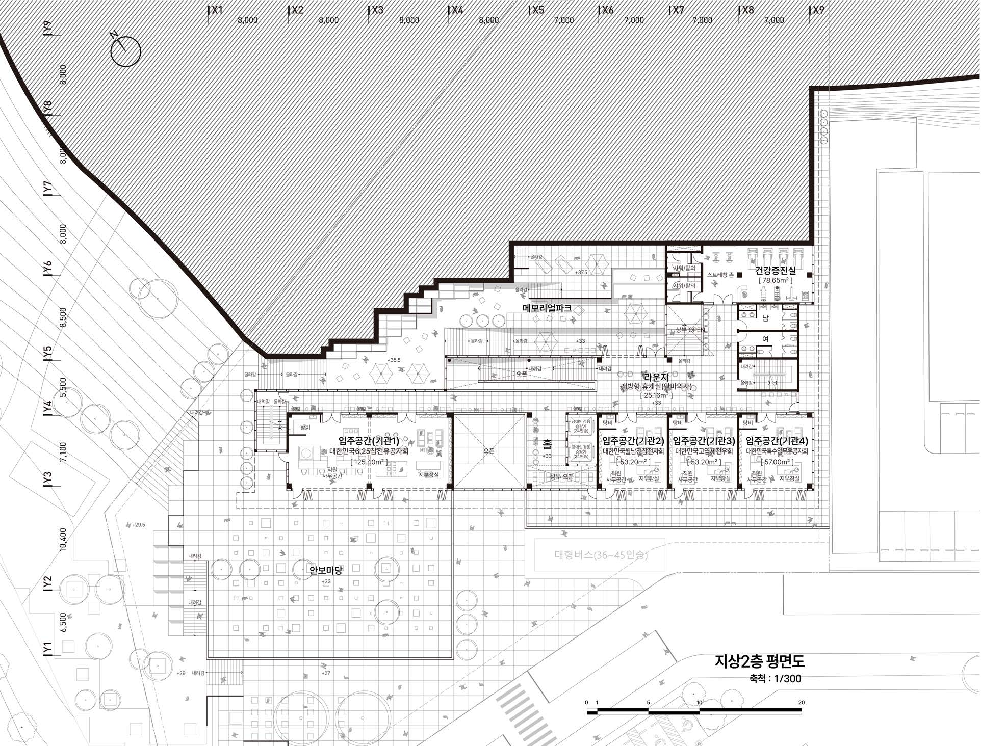
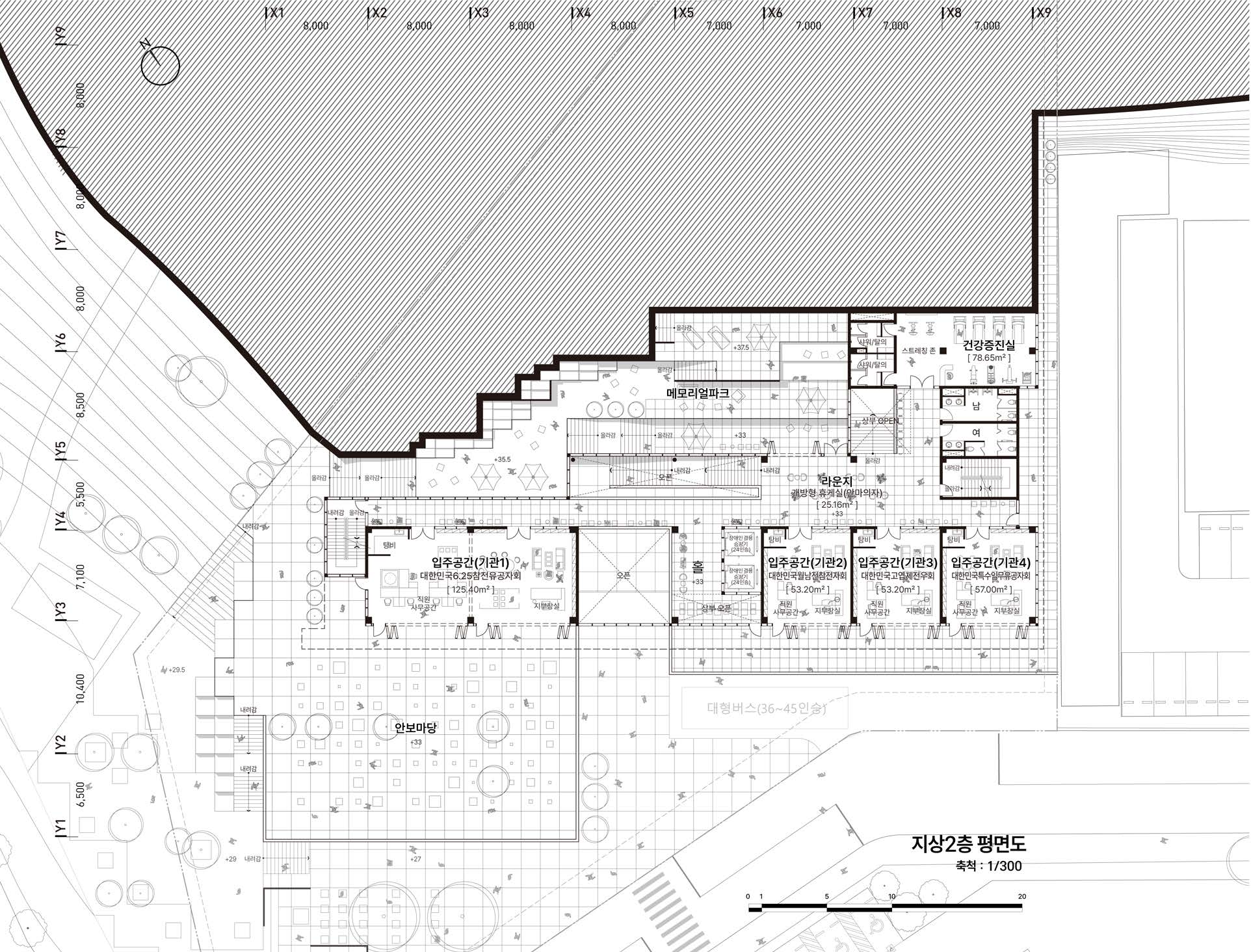
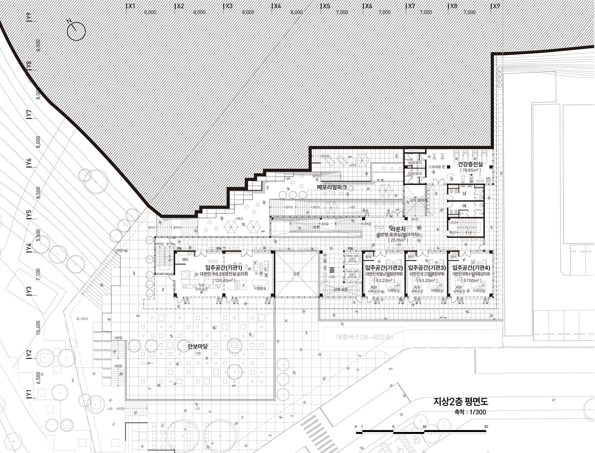
계획을 처음 마주하였을때 경사도가 높고 석촌근린공원이라는 외부공간을 어떻게 활용할 것인가가 가장 큰 주안이었다. 우선 도시의 축을 고려하여 방향을 설정하였고 전면에 큰 외부공간을 두어 기존 공지와의 연계성을 강화하였다. 후면으로는 근린공원의 경사를 최대한 활용하여 계단식 외부공간을 계획하였다. 건물은 대지에 관통되어 들어가는 듯한 단순 명료한 'ㄴ'의 형태를 띈다. 다음으로, 역사적 사건을 기억하고 기리는 공간으로 설정한 계단형 외부공간인 메모리얼 파크를 각 층의 슬라브와 연결시킨다. 외부공간과 내부공간을 잇는 매개체형식의 직통계단을 두어 안과 밖의 유기적인 연결을 이끌어 내고, 공용공간에서 연속적인 연결을 유도하여 공간을 더욱 풍성하고 쾌적하게 만든다. 매스와 외부공간의 관계성을 확립하고, 내부공간들의 관계를 설정하는 것이 다음 주안점이 되었다. 가장 중요한 실인 입주공간들을 우선 남향배치하고 동일한 입주환경을 만들어 주었다. 그리고 공유공간들을 입주공간과 입체적으로 연계해주었으며, 각 층으로 분산 배치하여 모두가 공평하게 누릴 수 있는 복지환경을 제공하였다. 이 공간들은 외부공간과도 유기적으로 연계되어 건물의 내·외부가 기능적이고 입체적으로 작용할 수 있도록 계획하였다.
지형에 순응하며 조성된 다양한 레벨의 외부공간들은 다양한 방식으로 자연과 교감되며, 메모리얼 파크 주변인 석촌근린공원의 산책로들과 연계되어 자유롭게 드나들고 머물 수 있는 하나의 숲을 형성한다. 이어지는 각기 다른 레벨의 외부공간을 바라보는 이용자들과 방문객은 과거의 아픔을 기억하고 애도하며 기린다. 도시축을 기준으로 전면으로 다양한 마당을 두어 비교적 좁은 도로와 막힌 매스들 사이에서 이용자들에게 도시적 쉼터 역할을 한다. 대상지 북쪽으로 형성되어 있는 석촌근린공원의 일부를 상징성있는 휴게공간으로 계획함으로 건물과의 연속적인 관계를 이루었고, 보훈회관으로의 상징을 강화했으며 이에 더하여 자연의 나무를 연상시키는 수직 루버의 이용으로 차양과 주변과의 조화를 만들어낸다. 미래세대와 보훈세대가 함께하는 인천시 통합 보훈회관. 우리는 이용자들에게 자연의 복지를 주는 이 통합보훈회관으로 인해 다양한 세대가가 살아가는 공간으로 형성되길 기대한다.




인천통합보훈회관 건립사업 기본및실시설계용역 건축설계공모
당선작_ (주)크레파스건축사사무소 + (주)에이씨엠건축사사무소
대지면적 4,024.7㎡
건축면적 1,609.23㎡
연면적 4,151.98㎡
규모 지하 1층, 지상 4층 (최고높이 20.7m)
건폐율 39.98%
용적률 80.83%
주차개요 35대
대표건축가 최민기
발주자 인천광역시
'Plans' 카테고리의 다른 글
| 문산 실내배드민턴장 건립 설계공모 _ 당선작 / 와이즈건축사사무소 (0) | 2025.01.02 |
|---|---|
| 예천군 무형문화재 통합전수교육관 건립사업 설계공모 _ 당선작 / 주식회사 디에이치건축사사무소 (0) | 2024.12.31 |
| 당진시 청소년수련관 건립사업 설계공모 _ 당선작 / 건축사사무소 이안서우 + (주)SGHS 설계회사 건축사사무소 (0) | 2024.12.27 |
| 개봉1동 어울림복합플랫폼 설계공모 _ 4등작 / 알케이와이 건축사사무소 + Kohnle Lee Architekten (0) | 2024.12.26 |
| 개봉1동 어울림복합플랫폼 설계공모 _ 2등작 / 정유리건축사사무소 + 텍소드 건축사사무소/소장(이예슬) (0) | 2024.12.24 |
마실와이드 | 등록번호 : 서울, 아03630 | 등록일자 : 2015년 03월 11일 | 마실와이드 | 발행ㆍ편집인 : 김명규 | 청소년보호책임자 : 최지희 | 발행소 : 서울시 마포구 월드컵로8길 45-8 1층 | 발행일자 : 매일



