
House in Vila Real
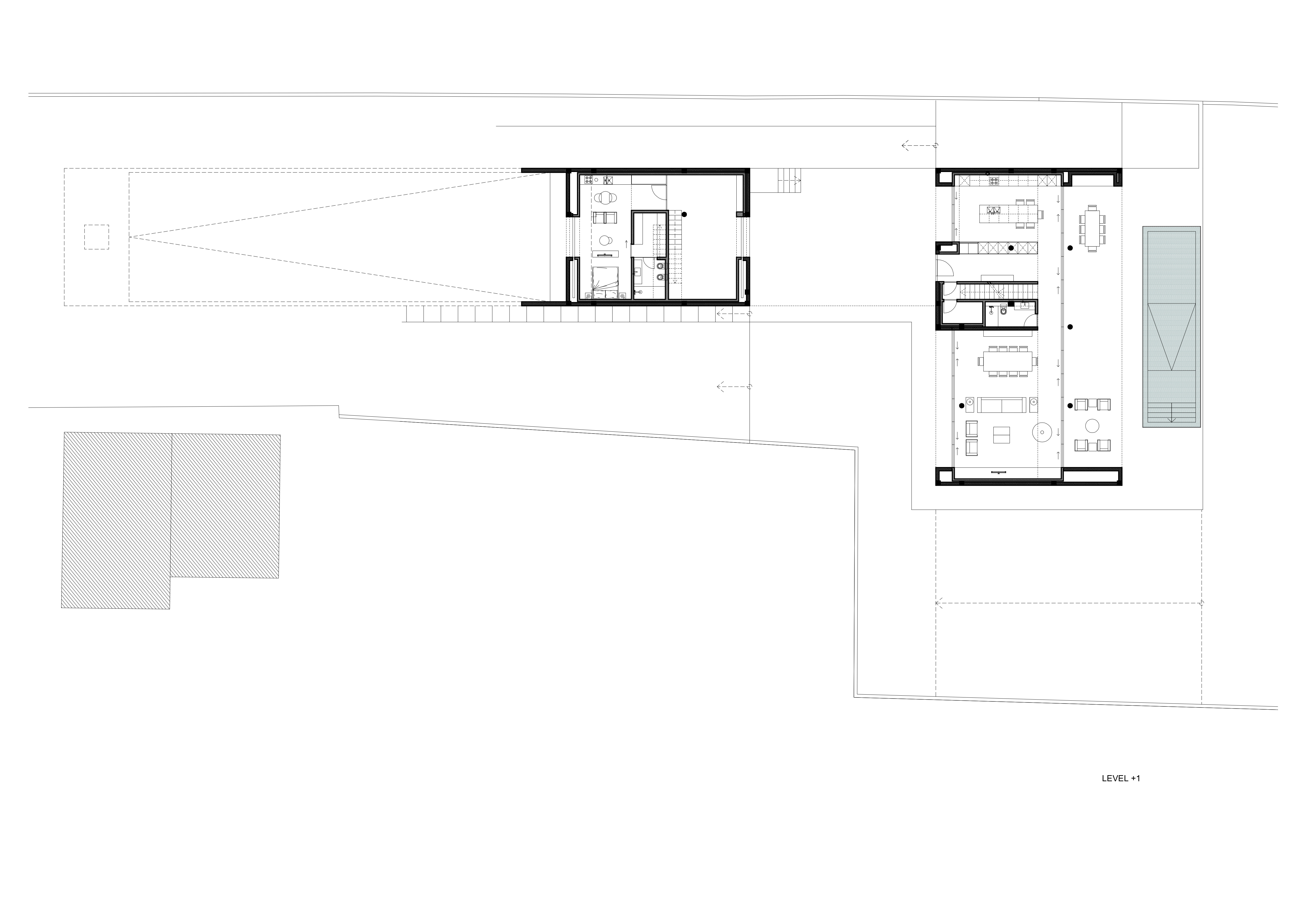
경사진 대지에 위치하며 마랑 산맥(Serra do Marão)을 조망할 수 있는 이 프로젝트는 대지에서 가장 넓은 부분에 주택을 짓고자 하는 의뢰인의 의도에서 시작됐습니다. 우리는 이웃 건물과 정렬된 입구 안뜰만 설계하고 두 개의 큰 수직 벽을 이용해 대지에서 건축공간을 확장했습니다. 이를 통해 주택은 대지의 가장 넓은 곳에 설계될 수 있었습니다.


이 주택은 포루투갈의 숨은 보석이라 불리는 트라스-오스-몬치스(Trás-os-Montes)에 있습니다. 두 개의 볼륨이 하나의 건축물로 자연스럽게 연결되어 있습니다. 이 볼륨은 두개로 나뉘어 대지의 경사를 따라서 배치되었습니다. 두개의 볼륨 중 하나의 볼륨은 대지의 긴 방향을 따라 설계되었고, 다른 하나는 첫 번째 볼륨에 직각으로 디자인되어 대지를 더 넓게 활용할 수 있습니다. 이 프로젝트에서는 전통과 현대의 연결고리를 강화하기 위해 지역 전통 건축과 새로 짓는 건축물의 연결성을 유지하는 것이 중요했습니다. 우리는 이 연결성을 주변 지역에서 흔히 볼 수 있는 경사지붕에서 찾았습니다. 주택에서 볼수 있는 삼각형 형태는 지역에서 주로 사용하는 지붕의 형태를 반영하며, 지역 정체성을 표현하는 동시에 주택의 독특한 조형성을 강조하는 요소입니다.


이 주택은 노출 콘크리트와 자연 Ataíja 석재 바닥으로 건축되어 현대적 감각과 자연을 균형 있게 조화시켰습니다. 중앙에 나무가 있는 안뜰을 통해 진입할 수 있는데, 이 정원은 자연과의 관계를 더욱 풍요롭게 합니다.

상부 창문에는 알루미늄 슬랫 셔터를 설치해 지역의 전통 곡물창고를 연상시키며, 이 지역의 문화적인 이미지를 프로젝트에 더했습니다. 주택의 공용 공간에는 야외 인피니티 풀이 있습니다. 풀은 마랑 산맥의 풍경을 거울처럼 반영하며 건축물의 실내외를 통합하는 것 처럼 보입니다.




위치 포루투갈, 브라가
용도 단독주택
연면적 600㎡
준공 2024
디자인팀 Mário Sequeira, Pedro Soares, Jorge Vilela, João Alves
엔지니어 Alberto Ribeiro
조경 에이지오 아키텍츠(AZO Architects)
사진작가 Nelson Garrido
[단면상세도] 교차되어 길게 내려앉은 / 에이지오 아키텍츠
교차되어 길게 내려앉은 / 에이지오 아키텍츠House in Vila Real 경사진 대지에 위치하며 마랑 산맥(Serra do Marão)을 조망할 수 있는 이 프로젝트는 대지에서 가장 넓은 부분에 주택을 짓고자 하는
anc.masilwide.com
'Architecture Project > Single Family' 카테고리의 다른 글
| 집의 의미를 사유하며 / 스페이스픽션 스튜디오 (0) | 2025.01.02 |
|---|---|
| 사계절의 분위기를 품는 주택/ 브룩스 + 스카르파 (0) | 2024.12.30 |
| 테두리를 따라 연결되는 집 / Volume Architecture Lisbon Studio (0) | 2024.12.23 |
| 이글스 드림 / Gudmundur Jonsson (0) | 2024.12.19 |
| 보헤미안 파라다이스 주말 주택 / 뉴 하우 아키텍츠 (0) | 2024.12.18 |
마실와이드 | 등록번호 : 서울, 아03630 | 등록일자 : 2015년 03월 11일 | 마실와이드 | 발행ㆍ편집인 : 김명규 | 청소년보호책임자 : 최지희 | 발행소 : 서울시 마포구 월드컵로8길 45-8 1층 | 발행일자 : 매일


