MVRDV, landscape studio Buro Harro and developer KondorWessels Projecten have completed Buitenplaats Koningsweg, transforming a former German military base from the Second World War into a residential and cultural enclave in one of the Netherlands’ most precious natural landscapes. Working within this masterplan on the outskirts of Arnhem, MVRDV and KondorWessels Projecten have also completed three sustainable residential buildings providing a total of 21 homes. Nestled within the Veluwe forest, this project brings life to this curious piece of Dutch history.
Buitenplaats Koningsweg began its life as two facilities, Kamp Koningsweg Noord and Zeven Provinciën. These were built in the orbit of the Deelen airfield, which during the Second World War was the largest German airfield in the Netherlands. The concrete military bunkers were disguised as farmhouses in an attempt to obscure their military purpose, allowing them to blend into the surrounding nature. These natural surroundings add another layer of significance: the project sits in the forests of the Veluwe, one of the Netherlands’ most important natural areas, and the largest land-based Natura 2000-designated area in the country.
In the latter half of the 20th century, many alterations were made, before all the remaining structures were added to the Dutch list of national monuments. MVRDV and Buro Harro’s masterplan engages carefully with this history: following the rules established by the national monuments register, the existing mostly brick buildings are preserved (in the case of the original German constructions) or transformed (in the case of later Dutch constructions) with alterations such as new doorways and dormer windows made clearly identifiable by their dark grey finishes. Meanwhile, previously demolished buildings are resurrected as buildings of the same shape and size, completed in light grey materials.
“An unusual aspect of Buitenplaats Koningsweg is that the buildings that were designed, from the very start, to disguise their true nature”, says MVRDV founding partner Nathalie de Vries. “How could modern interventions help to draw attention to their history, while preserving the integrity of that disguise? Our answer was to make changes hyper-legible. The clear delineation between the old, new, and reconstructed elements, along with unexpected details such as the metre-thick bunker walls of the historic buildings, help people to intuitively interpret the site’s story.”
The transformation began by “pulling the Veluwe landscape over the site like a blanket, much like how the barracks and airfield were camouflaged to blend seamlessly into the surroundings” says Harro de Jong of Buro Harro, one of the initiators of the Buitenplaats Koningsweg project. The landscape design uses minimal hard landscaping, with narrow footpaths allowing nature to flourish in between built elements, while the fences that once enclosed the site have been removed to allow wildlife to roam freely. “When we first started, the site was a desolate, heavily paved, and built-up area. Now, people live, work, and relax in a serene landscape that feels as if it has always been here.”
As a result of this rewilding operation, the boundary between the homes and creative industries of Buitenplaats Koningsweg and the forests of the Veluwe dematerialises – a change that will soon be formalised as ownership of the public spaces of Buitenplaats Koningsweg will be officially given over to the municipality of Arnhem. “Navigating the site’s complex history wasn’t without its challenges,” says Arnold Sprakel, project developer at KondorWessels Projecten. “It took creativity as well as persistence to bring this vision to life. But seeing the result makes it all worthwhile. We’ve created something truly unique here, being able to live, work and relax in nature, with small private gardens and shared, authentic landscapes, is what sets this development apart from the many residential areas elsewhere in the Netherlands.” he concludes.
In the north of the site, the masterplan includes 11 follies available for holiday rentals, which blend into the forest with quirky designs that play with the theme of disguise. These were selected through a design competition organized by KondorWessels Projecten and Buro Harro.
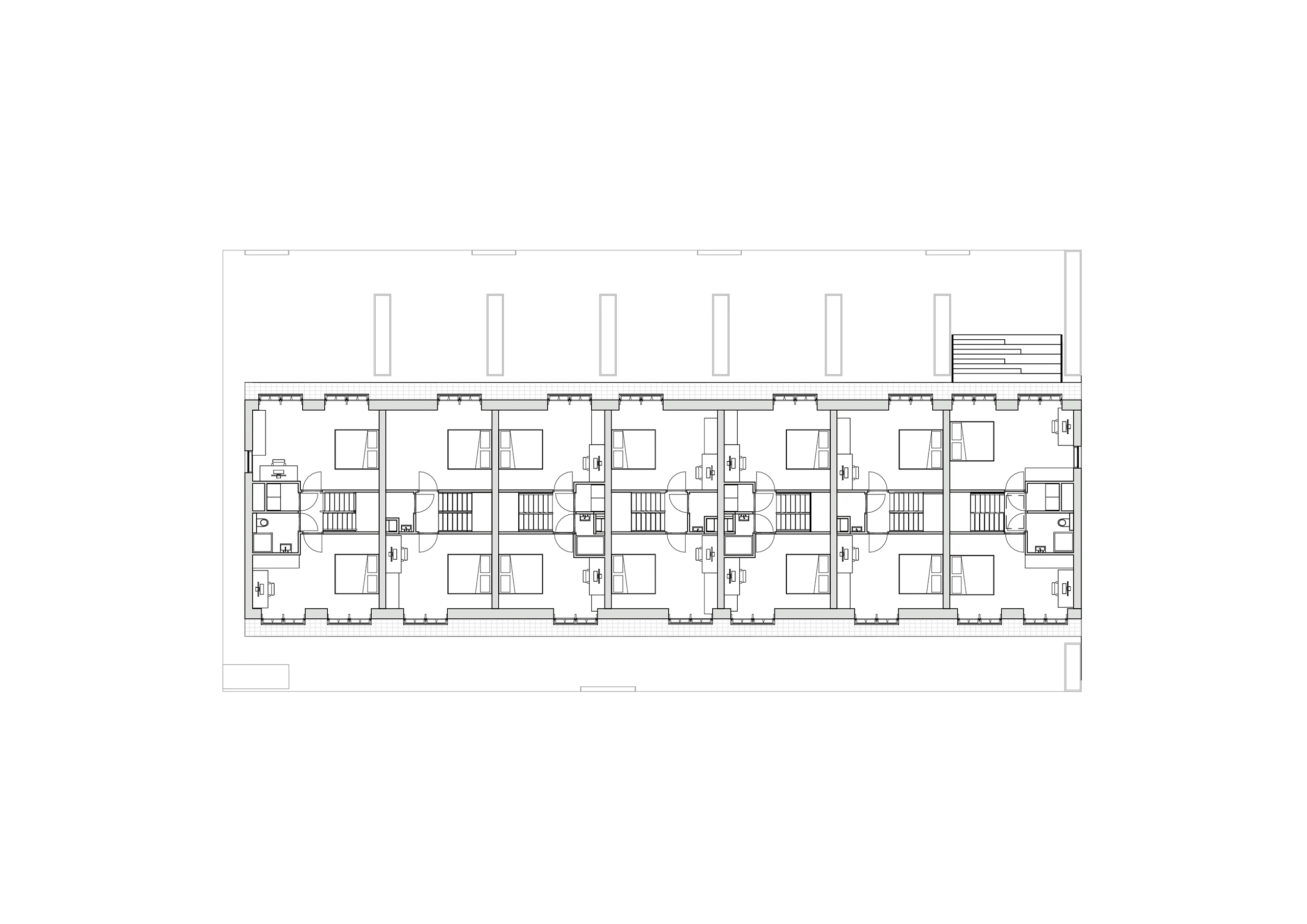
The final stage of the sixteen-year transformation includes a series of three almost-identical residential buildings designed by MVRDV, each comprising seven terraced homes. As dictated by the masterplan’s Image Quality Plan, these adopt the location, shape, and size of buildings that could once be found here, while grey slate walls and roofs identify them as reconstructions. The future owners of these “townhouses in the forest” could choose their favourite floorplan, from a range of possibilities. The homes are raised above ground level, with outdoor spaces that are minimally enclosed: beyond their small projecting decks, they have no garden, but instead an intimate connection to the surrounding forests, with large shared spaces between the homes on both the front and back of the buildings.
Special attention was given to sustainability in these designs, the walls and roofs of the buildings are constructed with timber frames, the concrete mix partially substitutes gravel with recycled aggregate, while the floating decks are made with recycled plastic. Thanks to their solar panels and high insulation values, the 15 homes in the middle section of each block are energy-neutral in operation, while the six houses on the ends are close to energy neutral. Car parking spaces for the homes are included underneath each building, and are designed such that in the future they can enable electric car charging and bicycle parking, in the hopes of encouraging more sustainable transit choices by the residents.














Housing KKN 1,2,3 건축가 MVRDV
KKN 4, 5, 6 건축가 Hoogte 2 Architecten
KKN 7 건축가 Kraft Architecten
위치 Netherlands, Koningsweg 23A, 6816 TD Arnhem
마스터플랜 프로젝트기간 2010 - 2024
Housing KKN 1,2,3 프로젝트기간 2018 - 2024
대지면적 1.45ha
Housing KKN 1,2,3 연면적 4,932㎡
준공 2024
시공 Ufkes
구조엔지니어 Aveco de Bondt
배관 Aveco de Bondt
디자인팀 Arjen Ketting, Rico van der Gevel, Michal Bala, Karolina Szostkiewicz, Duong Vu Hong, André Bahremand, Floris Dreesmann, Türker Naci Saylan, Luis Druschke
폴리 디자인 Architectuur Maken, De Kort Van Schaik, Hans Jungerius, JCR Architecten, Korteknie Stuhlmacher Architecten, Kraft Architecten, opZoom architecten, Paes Architecture, Space Encounters, studio AAAN, i29, NAMO Architecture
디자인협력 Fokke Moerel
개발전략 Bart Dankers, Willeke Vester
조경 Buro Harro
사진작가 Daria Scagliola, Jannes Linders
'Architecture Project > Master Plan' 카테고리의 다른 글
| 도시정비를 통해 지속가능한 공공공간 만들기, 플라이온 레드 / 레히온 아우스트랄 (0) | 2025.04.07 |
|---|---|
| 자연과 도시를 아우르는 공원 / 이코미메지스 솔루송이스 이콜로지카스 (0) | 2025.02.27 |
| The Lana and The Residences (0) | 2024.07.05 |
| Renovation of Huangling Ancient Village (0) | 2024.06.12 |
| Sanxia Tea Town Exhibition Center (0) | 2024.06.03 |
마실와이드 | 등록번호 : 서울, 아03630 | 등록일자 : 2015년 03월 11일 | 마실와이드 | 발행ㆍ편집인 : 김명규 | 청소년보호책임자 : 최지희 | 발행소 : 서울시 마포구 월드컵로8길 45-8 1층 | 발행일자 : 매일



