
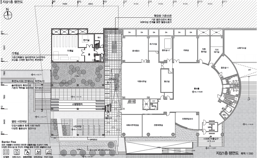
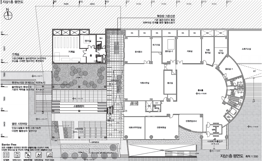
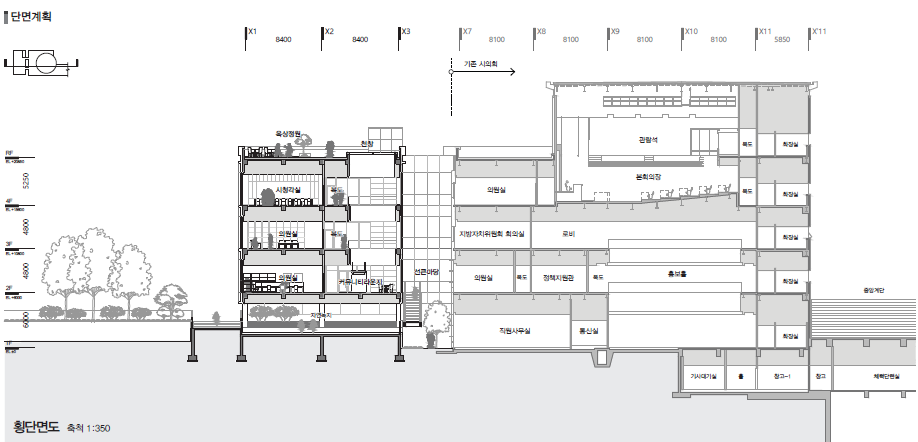
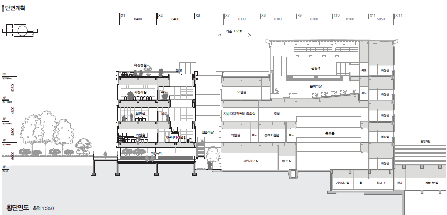
증축되는 공간은 용인시청 전면의 좌측 영역으로 기존의 녹지 영역에 위치한다. 예전 용인시청 건축계획의 콘셉트과 마스터플랜의 의도를 유지, 개선하는 것이 계획의 시작이다.
부족한 시의회 프로그램으로 의원실과 의회사무실, 그리고 주민 영역으로 구성되는 증축 영역에서, 독립된 증축 영역이 아닌 기존의 시의회의 건축을 존중하며 증축되는 새로운 영역을 통해 용인시청의 시의회 건물 전체가 하나의 새로운 공간으로서 더욱 효율적인 업무공간으로 거듭날 수 있는 의회 영역을 제안한다.






용인시의회 증축설계공모
입상작_시가건축 건축사사무소
대지면적 81,403.40㎡
건축면적 19,026.30㎡
금회 증축분 연면적 610.05㎡
연면적 88,942.86㎡
금회 증축분 연면적 1,902.75㎡
규모 4층 (최고높이 22.35m)
건폐율 23.37%
용적률 71.96%
주차개요 1,119대
대표건축가 최재혁
발주자 용인시
반응형
'Plans' 카테고리의 다른 글
| 구미시 첨단방위산업진흥센터 건립공사 _입상작 (0) | 2024.11.01 |
|---|---|
| 농산어촌유학마을 조성사업 설계공모_당선작 (0) | 2024.10.31 |
| 신안교육지원청사 이설공사 설계공모_당선작 (0) | 2024.10.30 |
| 용인시의회 증축사업 _ 입상작 A (0) | 2024.10.30 |
| 지리산 산청곶감 홍보판매장 건립사업 _ 입상작 (0) | 2024.10.29 |
마실와이드 | 등록번호 : 서울, 아03630 | 등록일자 : 2015년 03월 11일 | 마실와이드 | 발행ㆍ편집인 : 김명규 | 청소년보호책임자 : 최지희 | 발행소 : 서울시 마포구 월드컵로8길 45-8 1층 | 발행일자 : 매일



