
줄롱(Julong)은 중국 취안저우시(Quanzhou) 인근에 마련된 개신교 공동체 마을이다. 이 마을은 규모가 점차 확장됨에 따라 유입된 다양한 교파의 신자들, 새롭게 유입된 비종교인과의 새로운 유대 관계가 필요했다. 이에 따라 기존에 사용하던 예배당보다 확장된 규모의 약 1천 명을 수용할 수 있는 확장된 규모의 새로운 교회를 짓게 되었다.
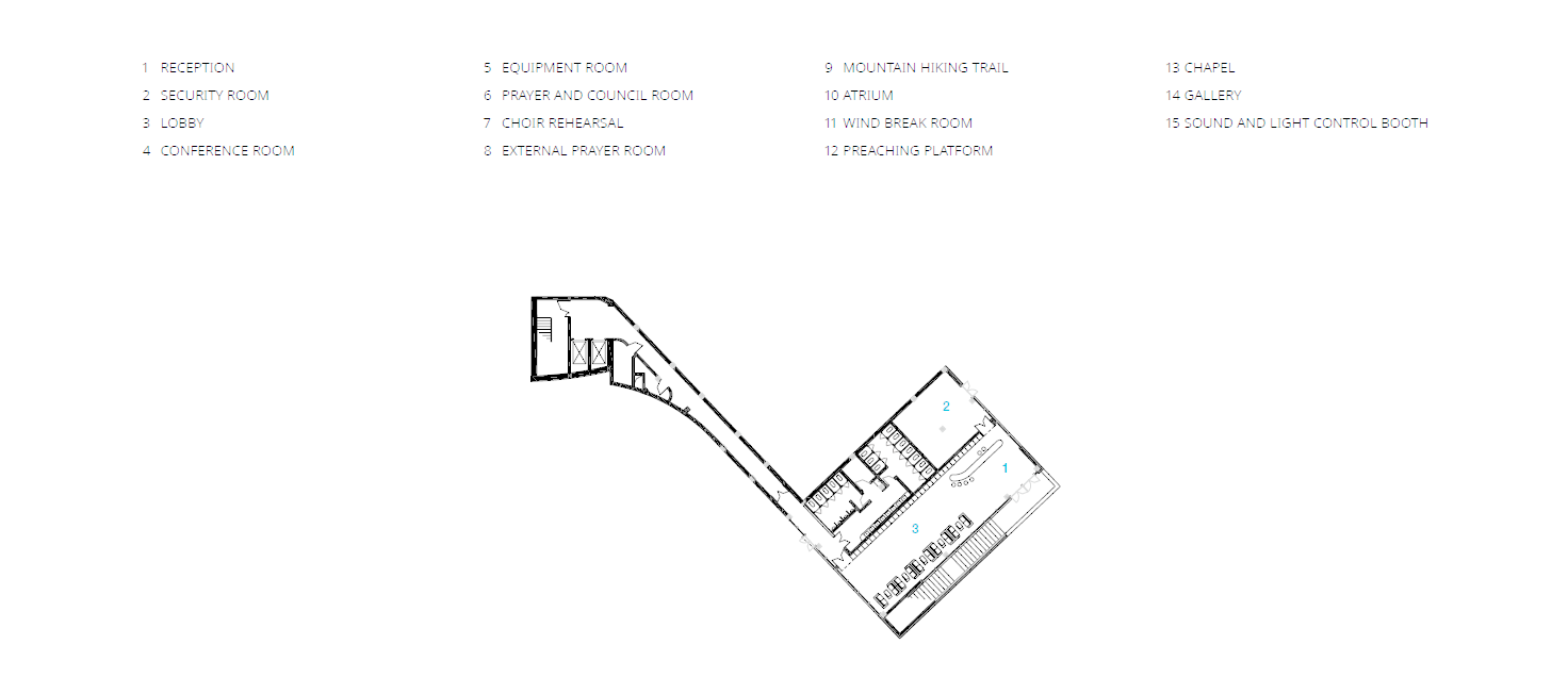
줄롱 산 교회는 종교적인 공간이자 다양한 세속적인 공동체를 위한 공간으로 구성되었다. 건축물의 주요 콘셉트는 교회 장로가 인용한 구절에 따라 교회를 찾는 사람들의 방주이자 안식처가 될 수 있는 공간이 되었다. 건축물은 방주가 되어 마을의 산기슭에 떠오른 채 신앙의 기초가 되는 닻을 내린다. 화강암으로 덮인 건축물의 하단은 계단식 바위의 형태이다. 이를 통해 필요에 따라 공간을 유연하게 분할할 수 있다. 건축물의 상단에는 방주를 추상화한 GRC 패널로 장식한 본당이 자리 잡고 있다. 교회의 신도들은 예배를 위해 테라스로 올라가게 되는데, 이는 교회에서의 육체적, 정신적 참여를 이끌어내는 의도적인 배치다. 신도들은 상부로 향하며 방주 안으로 들어갈 준비를 하고 중세 교회의 요소인 파라다이스를 향한다는 은유를 내포한다. 예배당은 전면의 창을 통해 산을 마주하고 그리스도의 산상 수훈을 반영하고 있다.














건축가 INUCE · Dirk U. Moench
위치 중국, 취안저우, 줄롱
면적 3,000㎡
설계기간 2019 - 2024
준공 2024
대표건축가 Dr.-Ing. Dirk U. Moench
구조 FJADI Fuzhou
HVAC FJADI Fuzhou
전기설비 FJADI Fuzhou
건축주 Christian Congregation of Julong New Town
사진작가 (INUCE)Shikai
해당 프로젝트는 건축문화 2024년 10월호(Vol. 521)에 게재되었습니다.
The project was published in the October, 2024 recent projects of the magazine(Vol. 521).
October 2024 : vol. 521
Contents : COMPETITION : RECENT PROJECTSilver for Rest / so-ul architects은빛 숲 / 소을건축사사무소Ginkgo Gallery / MORE Architecture긴코 갤러리 / 모어 아키텍처The April House / YAYArchitects사월애가(四月愛家) / (주
anc.masilwide.com
'Architecture Project > Religious' 카테고리의 다른 글
| 영종도 온누리 교회 / shinslab (0) | 2024.12.16 |
|---|---|
| SONG CHEON PAUL CHURCH (0) | 2024.11.01 |
| Changdai Promiseland (0) | 2024.10.30 |
| Chapel of Music (0) | 2024.10.29 |
| Gwanhang-ri Monastery (0) | 2024.10.24 |
마실와이드 | 등록번호 : 서울, 아03630 | 등록일자 : 2015년 03월 11일 | 마실와이드 | 발행ㆍ편집인 : 김명규 | 청소년보호책임자 : 최지희 | 발행소 : 서울시 마포구 월드컵로8길 45-8 1층 | 발행일자 : 매일



