
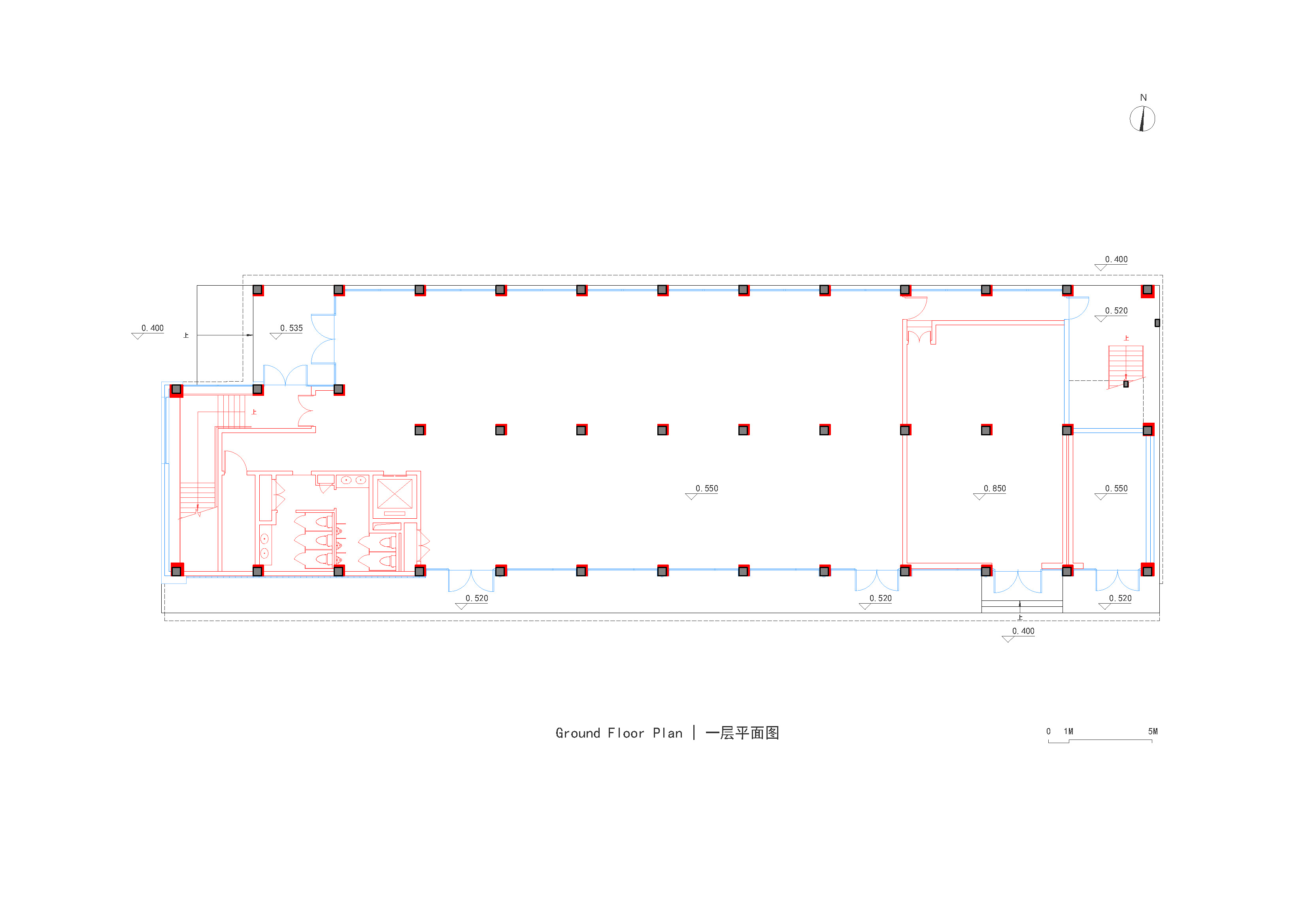
The Shanghai Electric Media Park is renovated from the former Shanghai Relay Factory, located in an industrial zone of Former Zhabei District of Shanghai. The preserved buildings include two four-story workshops and four one- or two-story affiliated buildings. The site is densely vegetated with tall trees, and the buildings are scattered among the greenery.
Following the urban planning guideline, the renovation retained the original layout and greenery of the campus, transforming it into a low-density high-green-ratio office and commercial plot, which is scarce in downtown Shanghai.
The architectural renovation, while maintaining an overall cohesive appearance and atmosphere, gives each of the six individual buildings unique character respectively through the mix and match of raw industrial materials, forming a harmonious yet distinct urban architectural cluster.
OFFICE BUILDINGS:
The two four-story workshops have been converted into office spaces. The one on the east emphasizes horizontality and plays with subtle texture. The façade uses grooved cement fiberboard, silver perforated long panel, and silver aluminum panels in varying orientations. The north façade features large glass windows overlooking the garden and solid aluminum windows concealing the columns. The rigid framework of industrial building is intentionally concealed behind the meticulously planned patchwork composition.
The offices on the west retains more industrial characteristics of the original buildings. A steel staircase is inserted into the existing framework on the west facade to create a distinctive image facing the street. The steel staircase extends northwards, becoming a public circulation on the north touching the ground floor. The north façade and roof corridor use inflatable ETFE membrane as the rail and roof panels, to create a sci-fi atmosphere. The air cushions become lighting elements at night as a signature image facing the city.
COMMERCIAL BUILDINGS:
The long strip of single-story shops along the street uses undulating pitched roofs to maintained the former building height along the walkway. The volume transits to flat roofs on the side facing the inner pedestrian street. The façade features silver perforated panels and expanded mesh.
At the eastern end of the strip is a tall metal box, repurposed from the original power distribution room. It retains the oversized height and rough concrete beams of the industrial building. Corrugated galvanized steel panels rise towards the plaza, resembling an opened gift box.
Facing the small plaza is a café with a light steel structure. The irregular folded paper-like roof extends deeply and lifts towards all sides, inviting guests to sit. The facade can be fully opened, blending the interior and exterior.
The original two-story dormitory has an L-shaped layout. Surrounded by dawn redwoods, it encloses the original garden, creating a quiet high-end dining area. Each private room corresponds to a unit with a sawtooth roof, with sunlight and tree shadows cast inside through high clerestory windows.
The new park seeks to explore the possibility of a thoughtful and cost-cautious renovation, achieving spatial and visual complexity through the juxtaposition and transformation of proportions and materials to consciously avoid boring reposition or over commercialized.














건축가 HCCH Studio
디자인팀 Hao Chen, Chenchen Hu, Xinji Dong, Tian Zhang, Yida Hou, Jiaqi Liu, Yifan Zhu
위치 949 Wanrong Road, Shanghai
연면적 9000㎡
공사기간 2022. 6 - 2024. 6
준공 2024
구조디자인 Zhun Zhang, Yue Xu (AND Structure)
조경디자인 WEi Studio
사진작가 Qingyan Zhu
클라이언트 Shanghai Electric Properties Co., LTD
'Architecture Project > Other' 카테고리의 다른 글
| 코르테베키아 광장 / 인아웃 아르키테투라 (0) | 2024.10.22 |
|---|---|
| Pustevny Gateway (0) | 2024.10.22 |
| Paper space : A folded hometown / Immediacy Design and Research Office (0) | 2024.10.17 |
| Heifei MixC Rooftop Landscape Regeneration (0) | 2024.10.17 |
| The Juicy Booth (0) | 2024.10.16 |
마실와이드 | 등록번호 : 서울, 아03630 | 등록일자 : 2015년 03월 11일 | 마실와이드 | 발행ㆍ편집인 : 김명규 | 청소년보호책임자 : 최지희 | 발행소 : 서울시 마포구 월드컵로8길 45-8 1층 | 발행일자 : 매일



