
건축행위는 ‘은유’를 근간으로 전개될 수 있다. 아크(ARK)는 회색 도시의 바다에 유유히 부유하는 방주의 이미지를 은유로 삼았다. 형상과 재료에 묵직한 양감을 부여하여 도심 속 안식처로서, 보다 근본적인 존재감을 구축하고자 하였다.도시 문맥과 적정 농도로 혼화시키기 위해 화려하지 않은 모노 톤의 색감과 적정량의 개구부의 비율을 구성하고, 외피와 내피의 대조를 통해 위요감을 고양시키고자 하였다. 위요감은 우리로 하여금 시지각적인 안정감과 평정심을 주는 요소이다. 또한, 석재의 가로줄눈을 강조하여 수평성을 고양시키기 위해 만입된 디테일을 구성했다. 모든 수직적 말단부와 모서리를 곡면처리 하여 부드러운 질감을 갖도록 계획하였다. 건축가는 석재 고유의 물성을 변주시켜 재료 자체의 잠재된 가능성을 발아하고자 하였다. 사람들로 하여금 방주의 품 안에서 도시와 부드럽게 소통하며,엄마 품과 같은 건축의 가치를 경험하기를 기대한다.

The act of architecture can develop around ‘metaphors.’ ARK takes inspiration from the image of an ark drifting peacefully on the sea of a gray city. By giving the form and materials a sense of weight and solidity, the building aims to establish a fundamental presence as a place of refuge within the urban fabric. To blend seamlessly into the cityscape, the design utilizes a muted, monochromatic palette and a balanced ratio of openings. The contrast between the exterior and interior layers enhances a sense of enclosure, fostering a feeling of comfort and serenity. The horizontal joints in the stone façade are accentuated through recessed detailing, highlighting the building’s horizontality. All vertical edges and corners are softened with curves, lending the structure a smooth, tactile quality. By giving variation to the inherent potential of stone, the architect sought to reveal the material’s latent possibilities. Within the embrace of the ARK, people are invited to gently connect with the city, and experience the nurturing value of architecture, much like a mother’s embrace.













건축가 LKSA
위치 서울특별시 강남구 청담동 37-7
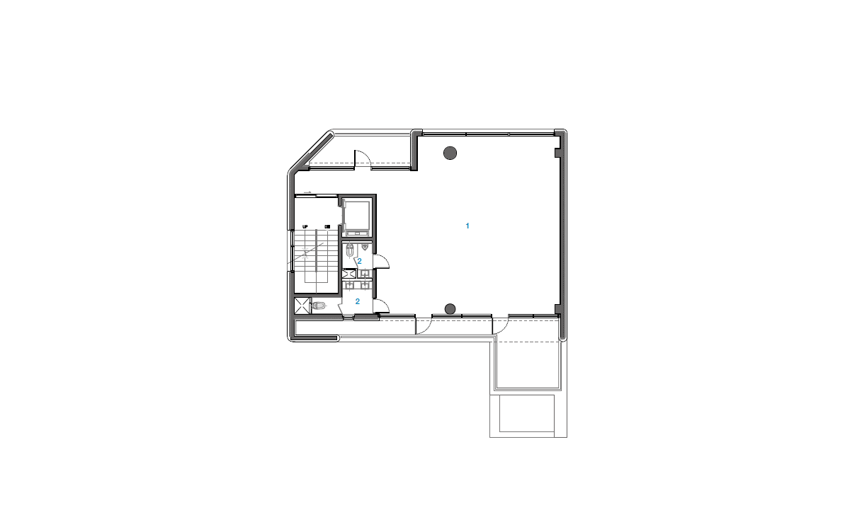
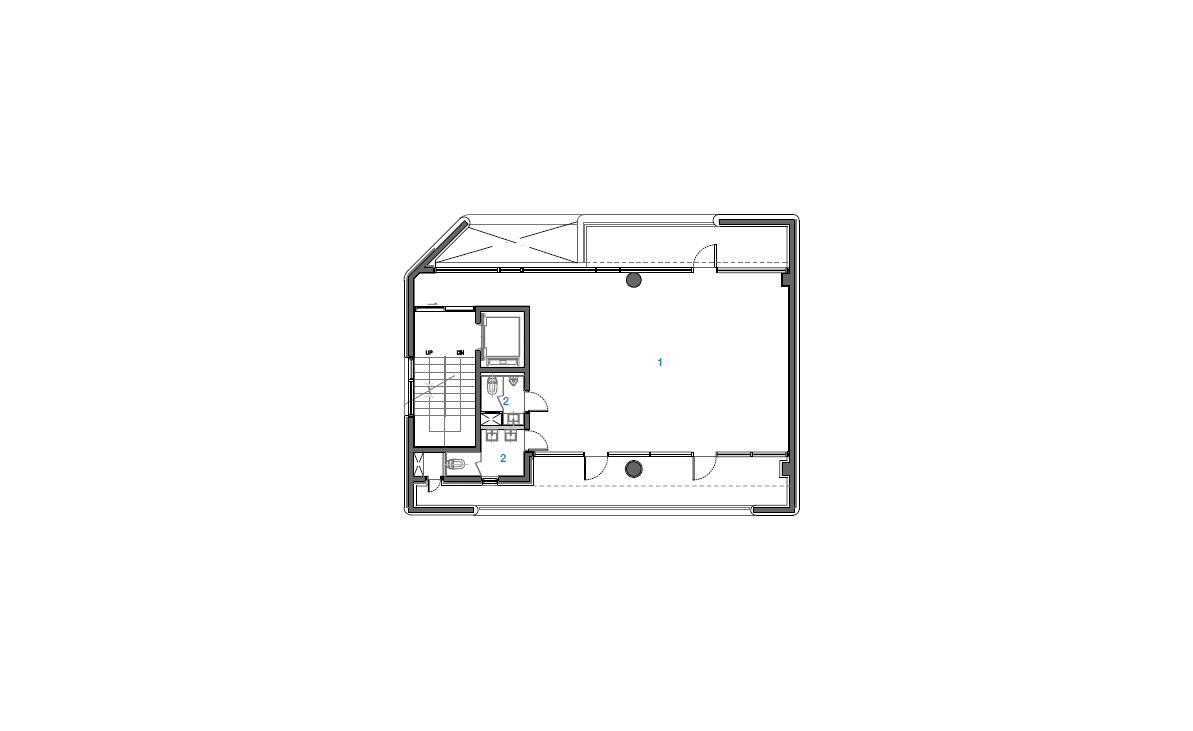
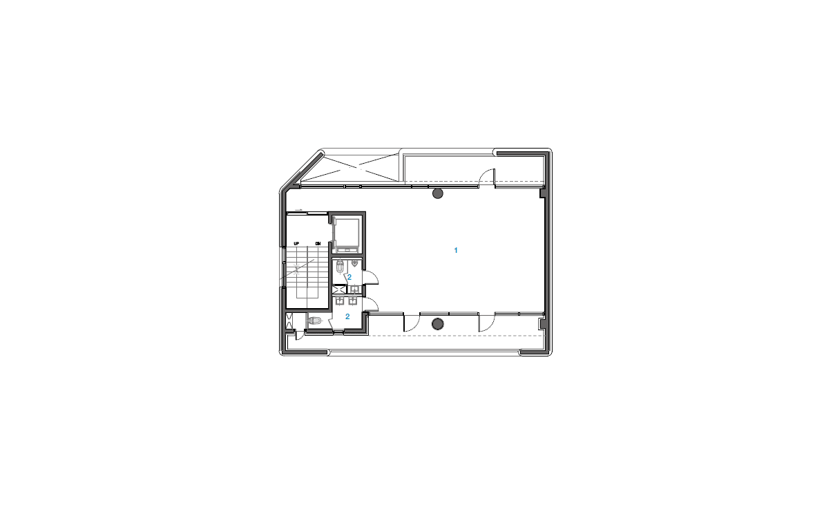
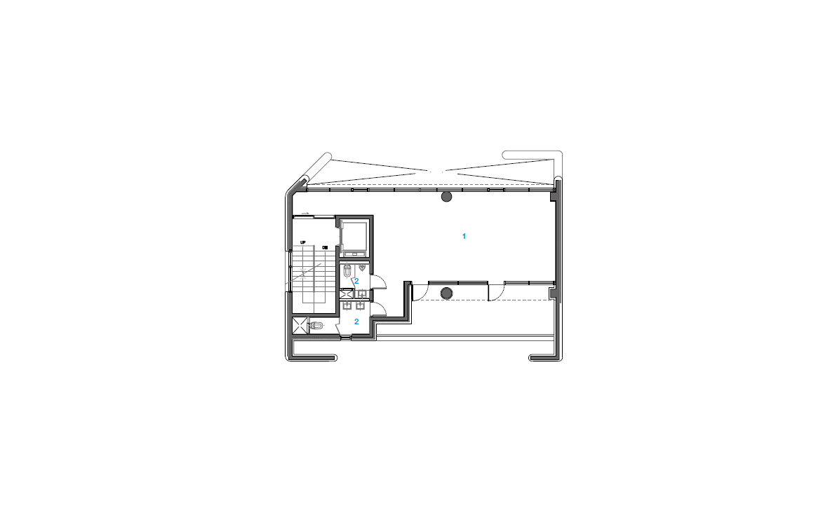
용도 근린생활시설
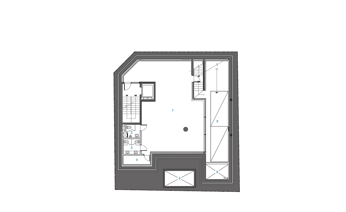
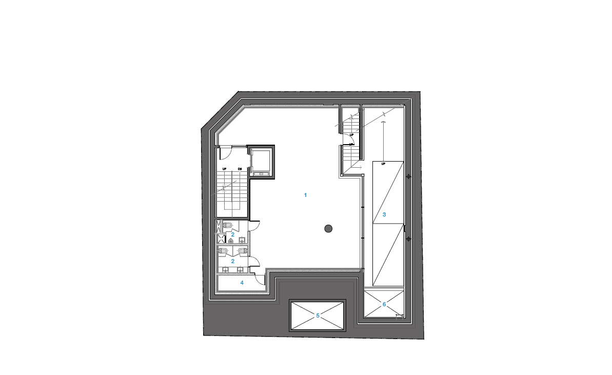
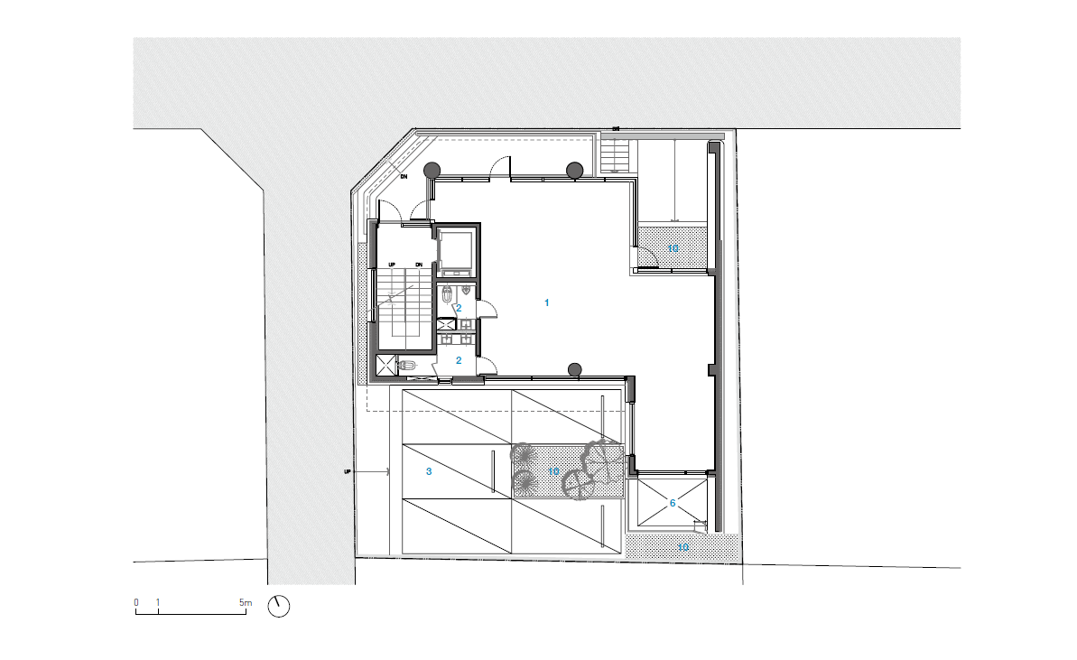
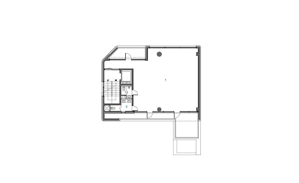
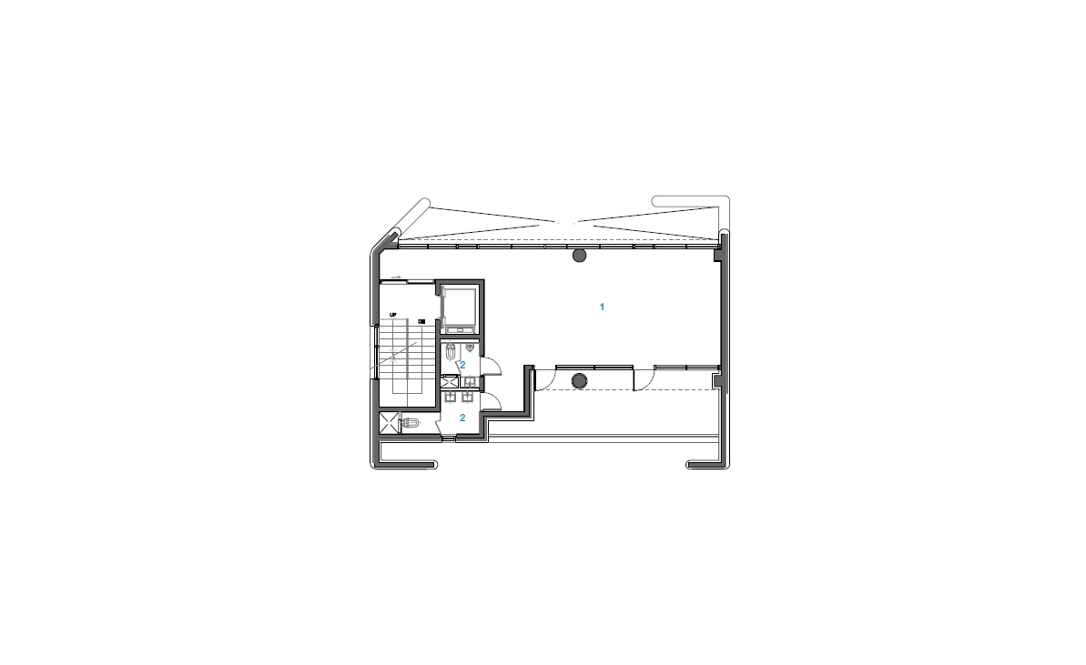
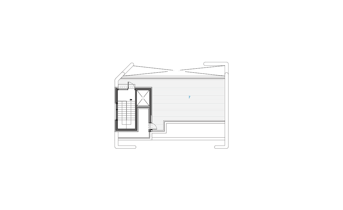
대지면적 344.52㎡
건축면적 198.24㎡
연면적 956.67㎡
규모 지하 2층, 지상 4층
건폐율 57.54%
용적률 149.97%
설계기간 2022. 4. - 10.
시공기간 2022. 12. - 2024. 3.
준공 2024. 3.
대표건축가 이근식
사진작가 구의진
해당 프로젝트는 건축문화 2024년 9월호(Vol. 520)에 게재되었습니다.
The project was published in the September, 2024 recent projects of the magazine(Vol. 520).
September 2024 : vol. 520
Contents : RECORDS Worldwide Architectural Festival, ‘Serpentine Pavilion’ Meets in Seoul세계적인 건축 축제, ‘서펜타인 파빌리온’을 서울에서 만나다 : COMPETITION : RECENT PROJECT PICT. SQUARE(The PICT.‘s
anc.masilwide.com
'Architecture Project > Commercial' 카테고리의 다른 글
| Kaew Boutique (0) | 2024.10.21 |
|---|---|
| Day and Night Park by Jetlag Books (0) | 2024.10.16 |
| Talaga Sampireun (0) | 2024.08.30 |
| MERCADO CAMINHA (0) | 2024.08.29 |
| Doldol (0) | 2024.08.14 |
마실와이드 | 등록번호 : 서울, 아03630 | 등록일자 : 2015년 03월 11일 | 마실와이드 | 발행ㆍ편집인 : 김명규 | 청소년보호책임자 : 최지희 | 발행소 : 서울시 마포구 월드컵로8길 45-8 1층 | 발행일자 : 매일



