
온라인 상거래 확대로 인한 물류의 급증으로 물류센터의 중요성이 커지고 있다. 기존의 물류센터들은 수도권 외곽 지역으로 밀려나고 있으나, 이는 물류 이송에 따른 교통량 증가, 이산화탄소 배출량 증가 등 환경적인 문제 뿐만 아니라 배송시간 지연의 문제를 발생시킨다. 안양물류센터는 이러한 문제점을 해결하기 위해 소비자가 집약되어 있는 수도권에 위치하여 물류 효율성을 극대화한 대지에 지어졌다.
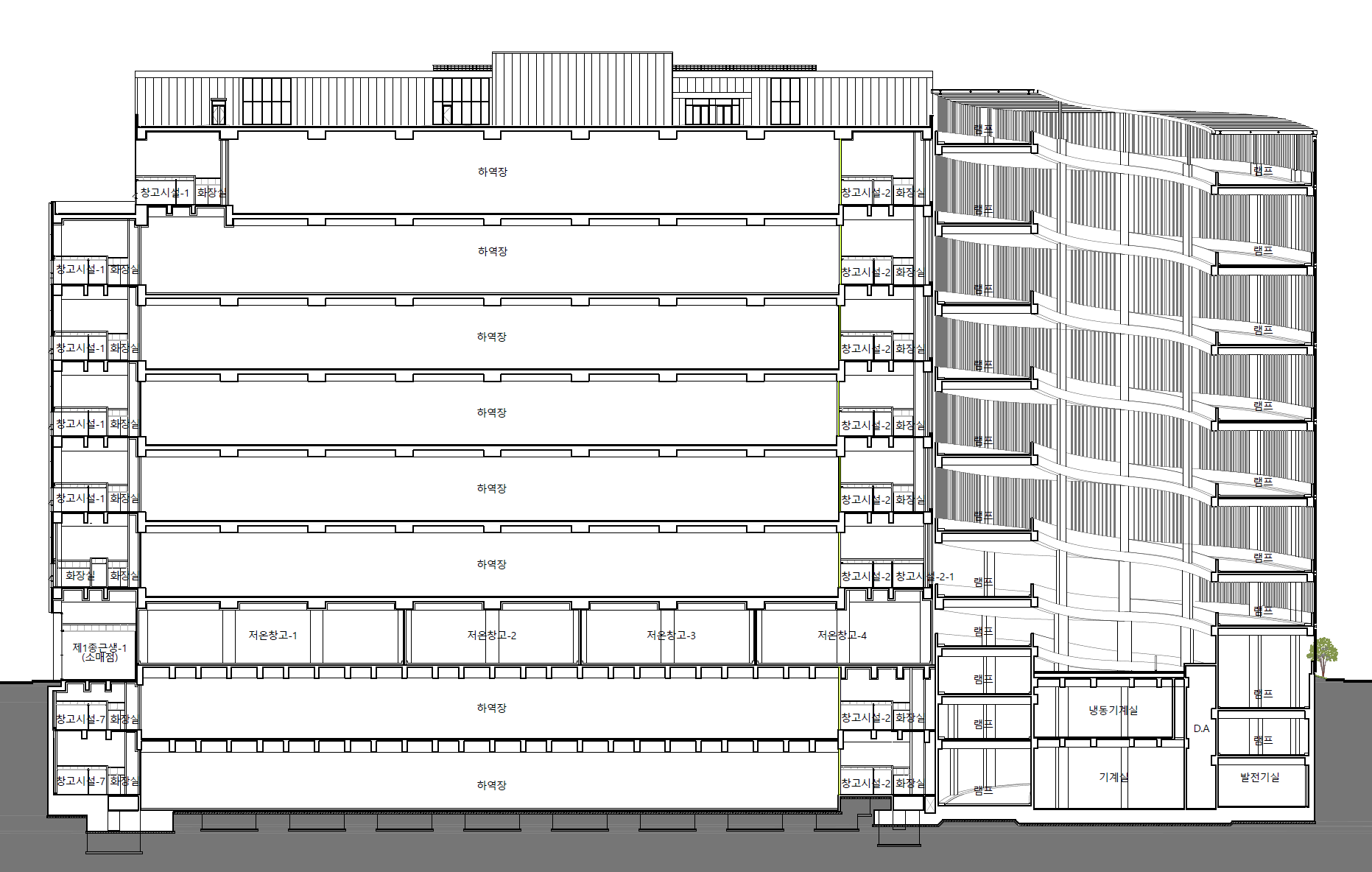
저온 냉동 식품 보관 및 배송 위주의 물류센터는 창이 없는 높은 층고가 필요하며, 화물차량이 모든 층에 접근할 수 있어야 한다. 이로 인해 물류센터는 단조로운 거대한 매스의 건물이 될 수 밖에 없으며, 도심 내 기피 시설로 여겨지기도 한다. 안양물류센터는 이러한 매스감과 화물차량의 수직 동선을 또 다른 디자인 기회로 삼았다. 매스감을 최대한 살렸고, 거대한 원통형의 화물차용 램프는 박스 형태의 매스에 변화를 주는 주요 건축적 요소로 삼았다.
차량 접안을 위한 지상층의 필로티, 2~6층의 거대한 단일 볼륨의 저온 냉동창고, 7층의 셋백된 상온 물류창고, 8층의 넓은 옥상 주차장과 지붕정원을 가진 근무자들을 위한 시설 등, 용도별로 매스를 분절하고 색채 활용을 통하여 단순한 박스 형태가 아닌 갤러리와 같은 형태를 연출했다. 대지 초입에 자리잡은 거대한 램프는 화물차 소음과 차량 불빛이 발생하여 지역 주민들과의 갈등으로 이어질 수 있다. 따라서 각도를 조절한 수직 알루미늄 루버 핀으로 램프 전체를 둘러싸서 자동차 불빛과 소음을 조절함과 동시에 도심 속의 커다란 예술적인 오브제가 되도록 하였다. 이렇게 램프는 주간에는 다채로운 색상의 수직핀으로 시각적인 즐거움을 주고, 야간에는 거대한 랜턴으로 도심을 밝히는 랜드마크가 되었다.
건축가는 새벽 배송이 주로 이루어지는 물류센터의 24시간 살아있는 내부 활동을 외부를 향해 적극 투영하였다. 단순히 닫힌 창고 공간이 아닌, 우리의 삶과 직접 관련이 있는 열린 공간임을 보여주며 도시 공간에 활력을 부여했다. 안양물류센터는 단순한 물류 창고를 넘어 도심과 공존하는 살아 숨쉬는 도시적 공간으로 변모할 것이다.







With the expansion of online commerce, the importance of logistics centers has grown because of the surge in demand. Traditional logistics centers have been pushed to the outskirts of metropolitan areas, which leads to issues of increased traffic, higher carbon dioxide emissions, and delayed delivery times. The Anyang Logistics Center was built to address these problems by maximizing logistics efficiency in a site located within a densely populated metropolitan area.
A logistics center focused on storing and delivering low-temperature frozen foods requires high ceilings without windows, and it must allow freight trucks to access all floors. As a result, logistics centers often become large, monotonous masses of buildings, sometimes regarded as undesirable facilities within urban areas. However, the architect of the Anyang Logistics Center turned these mass and vertical movement requirements for freight trucks into a design opportunity. The massiveness of the building was emphasized, and a large cylindrical ramp for trucks became a key architectural element that breaks up the boxy structure.
The logistics center was segmented by function: a piloti structure on the ground floor for vehicle access, a massive single-volume low-temperature cold storage facility from the second to sixth floors, a setback ambient temperature warehouse on the seventh floor, and facilities for employees, including a spacious rooftop parking lot and roof garden on the eighth floor. By using different colors and breaking up the mass, the building was transformed into a construction resembling a gallery rather than a simple box. The large ramp at the entrance of the site could generate noise and light pollution from trucks, potentially causing conflicts with local residents. To mitigate this, the entire ramp was enclosed with vertically angled aluminum louvers, which not only control the noise and light but also turn the structure into a large, artistic object within the city. During the day, the vertical fins of various colors create a visually appealing effect, and at night, the ramp becomes a giant lantern that illuminates the city as a landmark.
The architect actively projected the 24-hour internal activities of the logistics center, primarily operating for dawn deliveries, outward. By showcasing that this is not just a closed warehouse but an open space directly connected to our daily lives, the building revitalizes the urban space. The Anyang Logistics Center will transform from a mere warehouse into a living, breathing urban space that coexists with the city.











건축가 (주)서울건축종합건축사사무소 + (주)제이에이에스 건축사사무소
위치 경기도 안양시 동안구 관양동 934, 934-1, 912-2
대지면적 15,287.50㎡
건축면적 10,403,43㎡
연면적 95,474.59㎡
규모 지하 2층, 지상 8층
건폐율 68.05%
용적률 283.65%
설계기간 2019. 11. - 2021. 11.
시공기간 2021. 3. - 2023. 11.
준공 2023. 11.
대표건축가 (주)서울건축종합건축사사무소_이민화, (주)제이에이에스 건축사사무소_이중연
디자인팀 (주)서울건축종합건축사사무소_김동윤, 이승우, 김진묵, 이현지 / (주)제이에이에스 건축사사무소_박일서, 박경택, 반정호, 권소영
구조설계 주식회사 연우엔지니어링
기계설계 대경기술단
전기설계 대경기술단
토목설계 경보기술단
조경설계 어번닉스
사진작가 임준영
해당 프로젝트는 건축문화 2024년 8월호(Vol. 519)에 게재되었습니다.
The project was published in the October, 2024 recent projects of the magazine(Vol. 519).
August 2024 : vol. 519
Contents : SKETCH Imagine the Details / Pavel Muradov 디테일을 상상하기 / 파벨 무라도프 : COMPETITION : RECENT PROJECT Anyang Logistics Center / SAC INTERNATIONAL, LTD. + JAS ARCHITECTS안양물류센터 / (주)서
anc.masilwide.com
'Architecture Project > Other' 카테고리의 다른 글
| Casa Mortuária de Oliveirinha (0) | 2024.09.16 |
|---|---|
| The Pfahlbaumuseum (0) | 2024.08.26 |
| Gusan Rings(Gusan Middle School Outdoor Shelter) (0) | 2024.08.21 |
| 3 to 1 Pavilion (0) | 2024.08.13 |
| Forskaren Innovation Hub (0) | 2024.08.08 |
마실와이드 | 등록번호 : 서울, 아03630 | 등록일자 : 2015년 03월 11일 | 마실와이드 | 발행ㆍ편집인 : 김명규 | 청소년보호책임자 : 최지희 | 발행소 : 서울시 마포구 월드컵로8길 45-8 1층 | 발행일자 : 매일



