


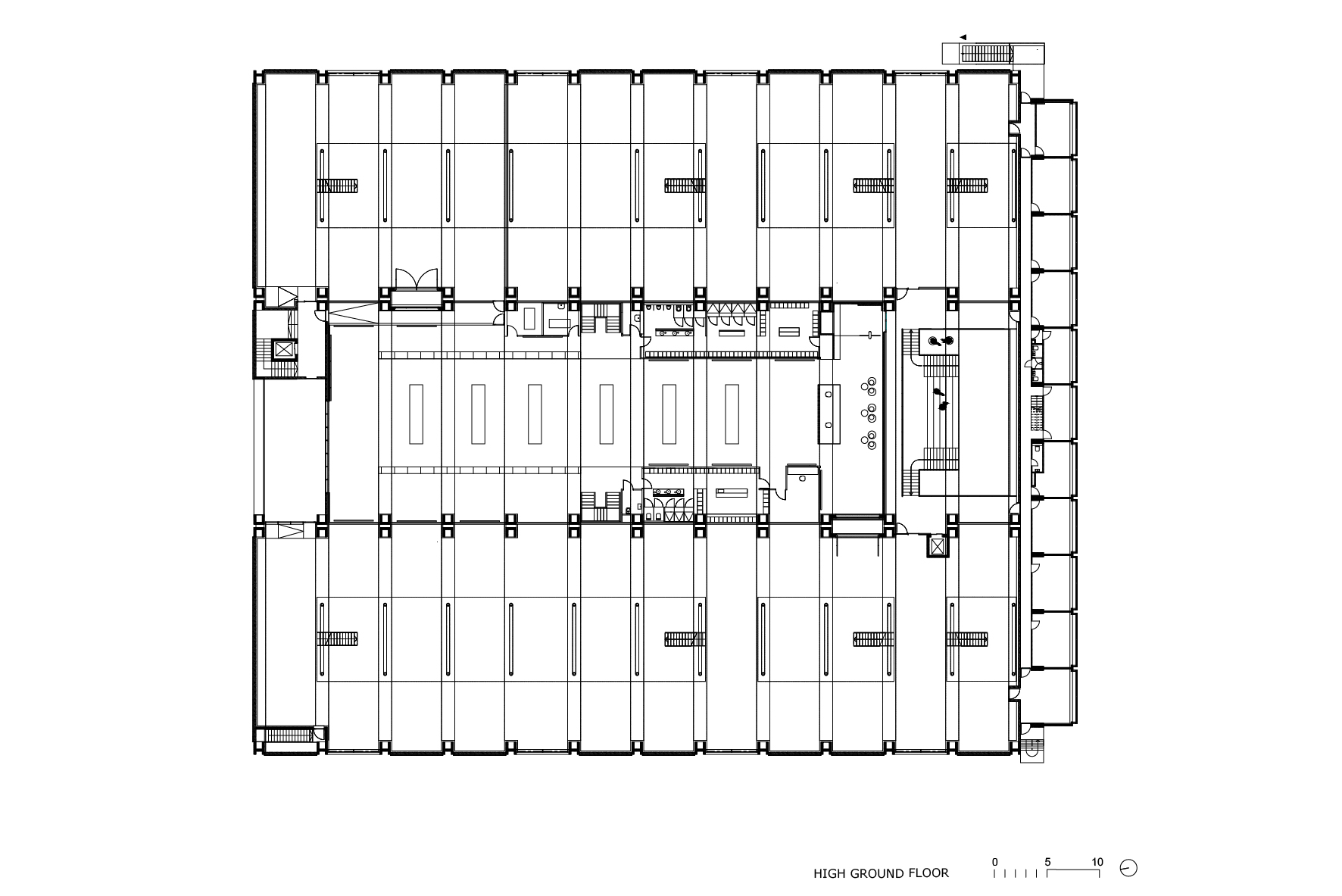
In the 1960s, the Slovenian modernist architect Savin Sever designed the Mladinska knjiga printing house. It was one of the largest and most modern printing houses of its time, the modular, repetitive concrete construction representing its key architectural expression. The visible concrete structure, a poetic architectural element, was a characteristic feature of the post-war modernist period. Edvard Ravnikar, one of Plečnik’s most important pupils, was the key figure during this period in Slovenian architecture. He was also strongly influenced by his collaboration in Le Corbusier’s studio. Ravnikar developed his own architectural poetics, both drawing on tradition and advancing it with a modernist approach that became the mark of Slovenia’s post-war generation of architects. Savin Sever is one of the most prominent representatives of this so-called Ljubljana school of architecture.
The old printing house was modernized at the beginning of the twenty-first century and the management at the time implemented state-of-the-art machines, but unfortunately they were not state-of-the-art for long. The changed context of the printing industry, a result of new digital technologies, would prove to be fatal for the traditional printing house. The old printing house soon shut its doors, most of the machinery sold off, and the large structure remained empty for several years. Then several creative entrprises found a home within the building and a unique program began to generate new interest in the location.


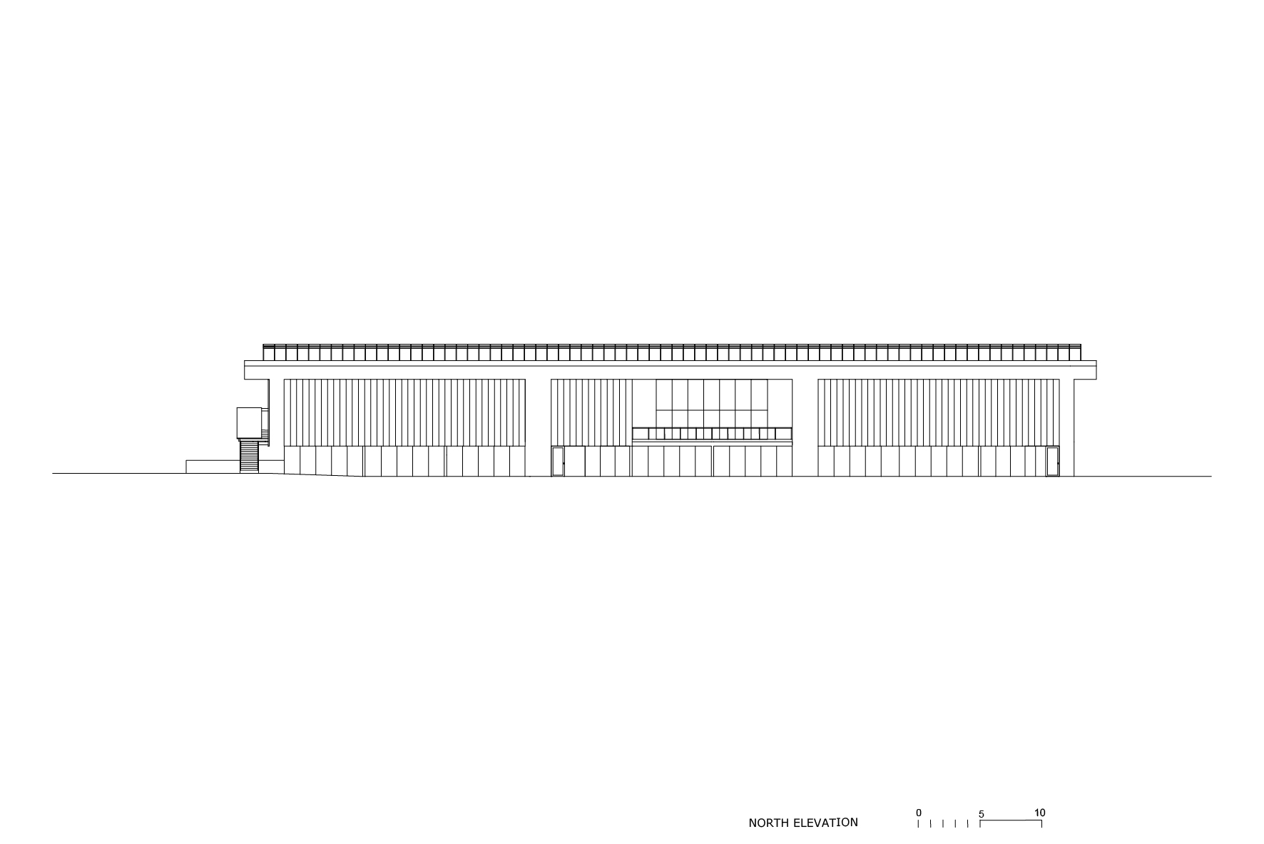
The new owner decided to refurbish it in 2022. The existing construction was protected, and, in any case, was so interesting as an expression of Sever’s exceptional architectural approach, that it would have been inconceivable to demolish it. The structure had been dimensioned for heavy machinery, and therefore a wide variety of modern applications could be considered without additional reinforcements. The biggest challenge was presented by the thermal insulation of the building. How to ensure modern climatic conditions in a building that was built with the reverse logic? The thin structure, full of thermal bridges, had originally served to remove excess heat generated by the printing presses. Now the principle had to be reversed. The visible concrete structures needed preserved and a new thermal insulation envelope added. The architects addressed this challenge with thermal insulation inside the building and additional glazing, which allowed the original glass prisms on the roof to remain intact. Glass prisms placed between the concrete elements provide natural light throughout the depth of the building. The renovation of the façade was based on Sever’s original plans that were not realized when the building was erected. He had wanted cement panels but they were too expensive, and so the façade was instead made with modular bricks. Reinstating Sever’s original idea provided a solution for the technical upgrade of the building.




The only significant change to the original structure of the building was a new entrance. Originally, the workers of the printing house entered the building through the dressing rooms in the office wing. This was not suitable for the purposes of the renovated building. A new monumental entrance was introduced on the south side. The amphitheatrical staircase creates a sort of urban square within the building, welcoming people who enter, and serving as a meeting point. It also provides a venue where events and performances can take place. It contains a segment of the printing machinery from the original building, thus presenting and preserving in memory its former use.
In recent decades, several buildings in Sever’s opus have been demolished. Despite the fact that Sever himself advocated the principles of functionalism and the notion that, once a building no longer serves its function, it should be replaced by a new one, these demolitions were tragically unnecessary and mostly the result of economic interests. In contrast, the Old Printing House has been respectfully renovated and given a new lease on life. This is both a great tribute to its creator and also provides a paradigm for new contemporary content within the context of a forgotten industrial heritage.









건축가 OFIS Architects
위치 슬로베니아
용도 복합문화
대지면적 9,048㎡
건축면적 12,800㎡
연면적 11,400㎡
준공 2024
대표건축가 Rok Oman, Špela Videčnik
디자인팀 Janez Martinčič, Andrej Gregorič, Matej Kranjc, Rok Vrenko, Borut Bernik, Marieke Van Dorpe
구조엔지니어 Project PA d.o.o, Milan Sorč
기계엔지니어 ISP d.o.o.
전기엔지니어 Pro-elekt d.o.o.
사진작가 Tomaz Gregoric, Janez Martincic, OFIS Architects
'Architecture Project > Cultural' 카테고리의 다른 글
| A Park Shenzhen Digital Art Park (0) | 2024.08.26 |
|---|---|
| Window of Kaizhou (0) | 2024.08.21 |
| Orchid Pavilion (0) | 2024.08.09 |
| MARC AUDITORIUM (0) | 2024.08.08 |
| Trosten Floating Sauna (0) | 2024.08.06 |
마실와이드 | 등록번호 : 서울, 아03630 | 등록일자 : 2015년 03월 11일 | 마실와이드 | 발행ㆍ편집인 : 김명규 | 청소년보호책임자 : 최지희 | 발행소 : 서울시 마포구 월드컵로8길 45-8 1층 | 발행일자 : 매일



