

In Bordeaux, the transformation of the Hôtel des Ventes des Chartrons breathe new life into this historic building. Designed with architectural recycling principles, minimising demolition, the project reimagines this structure for dual purposes: a higher education institution and an auction hall.
Les Chartrons, a neighbourhood with character
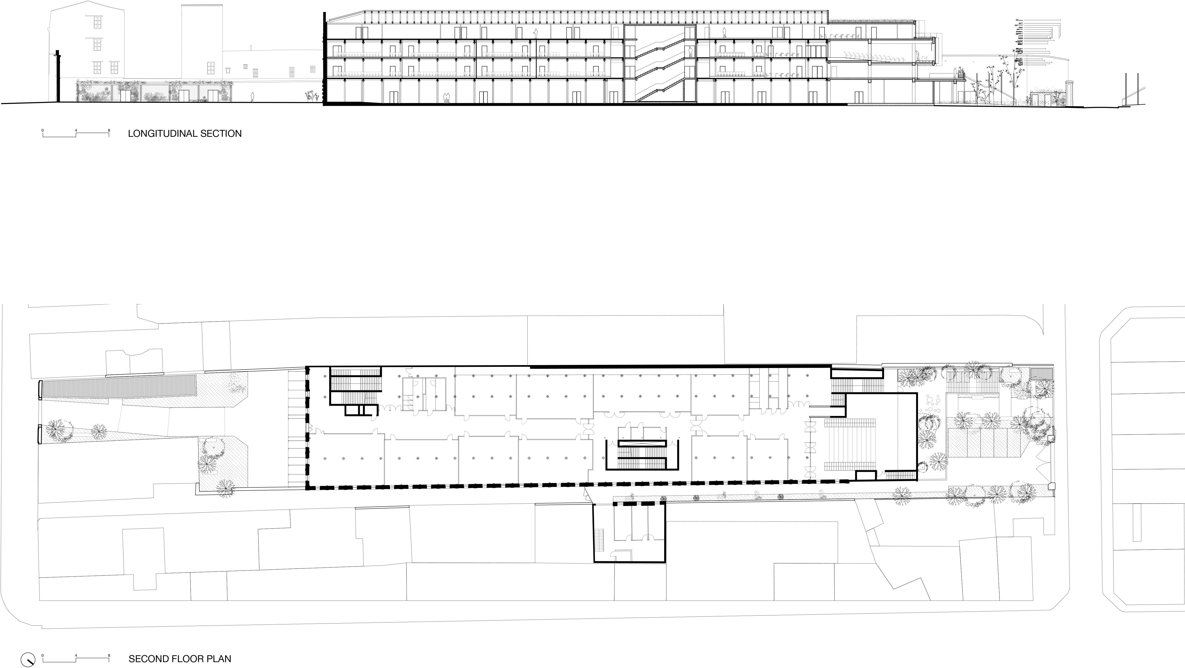
Located on the quays of the Chartrons district, just north of the historic city centre, the site is part of an urban landscape shaped by the river and the commercial history of this former wine merchant suburb. Positioned behind the warehouses, the building boasts a unique linear architecture with substantial surface area.


Recycling a rational tool-building
Notable for its atypical façade and set-back positioning, 136 Quai des Chartrons is a key heritage structure along the quays. Originally intended for logistical and industrial use, the building's intelligent construction serves as the foundation for the project. Its rational structure, proportions, layout, and position of openings demonstrate its ability to adapt and transform with ease. The new project blends the existing elements with a vision that respects heritage while embracing bold modernity.




Reversibility of the existing structure
The project integrates into the original skeleton, using the structural grid of cast iron columns and concrete floors, providing the spatial conditions to house both programs. The ground floor retains the auction activity, while the upper floors accommodate the educational program. Transforming the building into an educational institution involves defining room types and communal spaces that fit the existing structure. The large existing floors offer significant spatial modularity. A "central street" runs the length of the building, providing access to study rooms and offices on each side. Structural and technical interventions are necessary, such as creating large openings in the floors for staircases suited to the new traffic flows and adding features to bring light into the heart of the building.


New Use, New Appearance
The building’s evolution is particularly shown in the façades. On the quay side, the historic, robust stone façade is restored and enhanced with landscaped forecourt improvements. On the city side, a contemporary extension reshapes the façade, reflecting the transformation. This architectural addition, technically complex, allows for the creation of a suspended amphitheatre offering a panoramic view of the urban landscape. The materiality is distinct, reinforcing the concept of a dual-faced architecture, balancing both the river and the city.




건축가 ZW/A zweyacker & associes
위치 보르도, 프랑스
용도 복합문화
대지면적 3,460㎡
연면적 6,700㎡
준공 2021 - 2024
대표건축가 Nicolas Zweyacker
프로젝트 건축가 César Lacoste
디자인팀 Kevin Henaff
구조엔지니어 Vivalto Group
시공 IS Batiment, CreaFacades, CMDG, Cimalto, Gasset, Laroche Restauration, CRM, G-MaK, Espace Volume, RTSO, Air Froid, SPIE, Lafitte Paysage
사진작가 Yoris Couegnoux, Hugo Martin
'Architecture Project > Cultural' 카테고리의 다른 글
| Hyparschale Building Hall (0) | 2024.08.02 |
|---|---|
| Smritivan Earthquake Memorial Museum (0) | 2024.08.01 |
| MUSEO ESCULTÓRICO MONUMENTAL (0) | 2024.08.01 |
| Powerhouse Castle Hill (0) | 2024.07.30 |
| Ex Aduana San Blas (0) | 2024.07.30 |
마실와이드 | 등록번호 : 서울, 아03630 | 등록일자 : 2015년 03월 11일 | 마실와이드 | 발행ㆍ편집인 : 김명규 | 청소년보호책임자 : 최지희 | 발행소 : 서울시 마포구 월드컵로8길 45-8 1층 | 발행일자 : 매일



