
몸으로 감각하는 건축공간놀이터
부산시에서는 시내 곳곳에 기술과 놀이터가 결합된 어린이 복합문화공간을 조성하고 있다. 현재까지 약 80개 정도의 스마트 놀이터가 조성되어 있으며 증강현실 및 가상현실 놀이공간과, 각종 스마트 디바이스를 활용한 프로그램이 운영되고 있다. 반여문화놀이터는 이러한 스마트놀이터의 일환으로 아이들이 스마트기술을 접하고 체험하는 프로그램이 요구되었다. 대상지는 반여초,반여중,반여동 어린이집이 500M이내에 인접해 있어 어린이를 위한 문화공간 수요가 있었고, 200M 이내에 있는 반여도서관에 기 조성 된 스마트놀이터가 운영되고 있어서 인접한 유사 시설과의 차별화도 요구되었다.
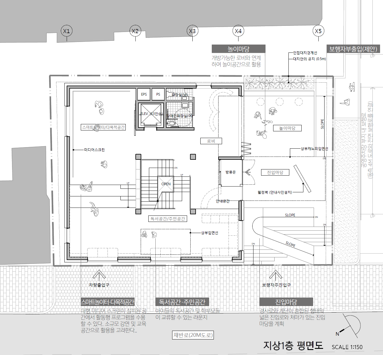
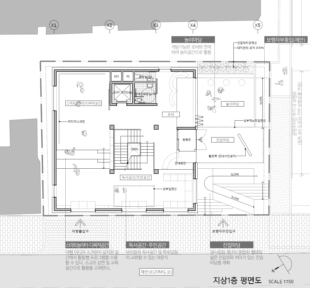
제안 된 계획안의 문화놀이터는 물리적인 공간경험을 강화함으로써 프로그램과 조화를 이루고 주변에 조성되어 있는 스마트 놀이터들과 차별화를 두고자 했다. 외부활동이 이루어질 수 있는 공간, 기하학적 형태로 빛을 들이는 창문, 공간스케일의 점진적 변화, 공간을 수직적으로 관통하며 수평공간의 중심이 되는 내부계단 등은 건축공간놀이터를 구성하는 재료가 되었다. 균질함에서 벗어나는 공간을 만들고 공간경험이 입체적이고 연속적으로 이어질 수 있도록 공간요소들을 배치하였다. 차별화를 건축공간의 물리적인 구현에서 찾고자 했다. 가상 및 증강현실과 같은 비 물리적 차원의 놀이와 공간을 수직・수평적으로 이동하면서 느끼는 공간의 전환을 통해 상반 된 감각의 합을 만들고자 했다.

도면






해운대구 반여 문화놀이터 조성사업 설계공모
입상작_호와오건축사사무소
대지면적: 330㎡
연면적: 714.57㎡
건축면적: 195.25㎡
건폐율: 59.17% (법정 60%)
용적률: 161.29% (법정 220%)
최고높이: 17.29m
층수: 지하1층/지상3층
구조: 철근콘크리트조
주차대수: 4대
'Plans' 카테고리의 다른 글
| 솔바람 문화 센터건립 설계공모_당선작 (0) | 2024.07.02 |
|---|---|
| 해운대구 반여 문화놀이터 조성사업 설계공모_입상작 (0) | 2024.07.01 |
| 창원시 실리도항 어촌뉴딜사업 건축설계용역 설계공모_당선작 (0) | 2024.06.27 |
| 행복동행 통합돌봄센터 및덕유마을 공영주차장 건립사업_당선작 (0) | 2024.06.26 |
| (가칭)구립 편백어린이집건립 설계공모_당선작 (0) | 2024.06.25 |
마실와이드 | 등록번호 : 서울, 아03630 | 등록일자 : 2015년 03월 11일 | 마실와이드 | 발행ㆍ편집인 : 김명규 | 청소년보호책임자 : 최지희 | 발행소 : 서울시 마포구 월드컵로8길 45-8 1층 | 발행일자 : 매일



