
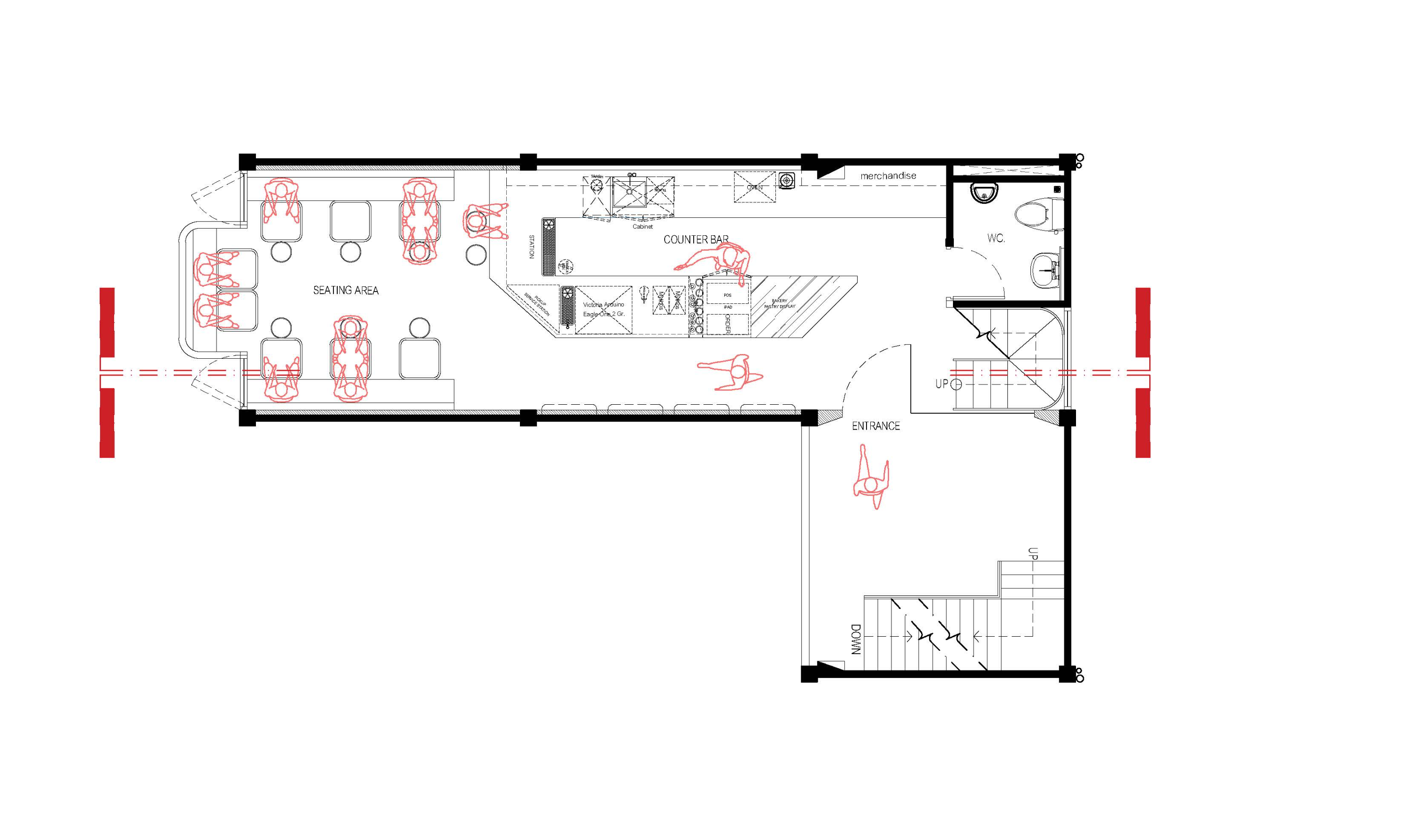
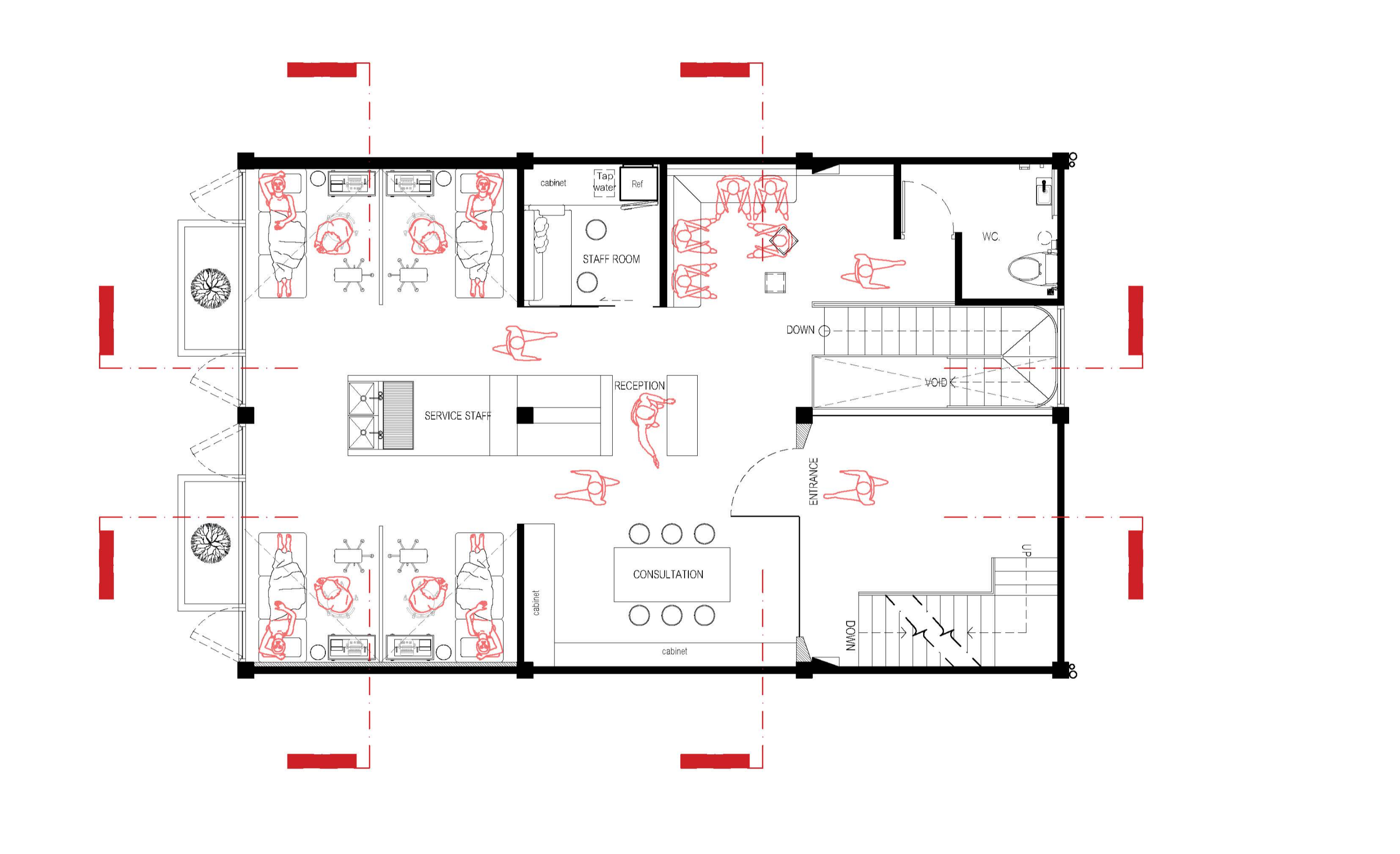
제공된 설명을 바탕으로 타투샵의 오래된 이미지를 기존 구조에 통합할 수 있는 심플하고 딱맞는 디자인으로 대체하는 것이 목표다. '매드그레이'로 명명된 이 디자인 콘셉트는 아리 지역에 어울리며 낮에는 커피를 제공하며 밤에는 바로 변신하여 모든 고객을 만족시키고 한다. 이 공간은 휴식 공간과 대기 장소로도 기능한다. 이를 위해, 디자인은 가게의 이전 이미지를 없애고 현대적이고 간결한 느낌을 도입하고자 한다. 아이디어는 붐비거나 답답한 느낌을 방지하기 위해 조명을 활용하여 "타투 잉크" 조각들을 효과적으로 보여주고 보관하는 것을 포함한다. 게다가, 디자인은 낮은 층으로 이어지는 계단을 포함함으로써 함께 기다리는 그룹 사이의 공간에 대한 요구를 해결한다. 이 낮은 층은 "프로그레스 커피 & 바"가 된다. 이러한 변화의 배경에 있는 동기는 일, 대기, 그리고 고객 서비스 요구를 충족시키는 다기능 공간에 대한 파트너의 열망에서 비롯된다. 주요 과제는 개발을 촉진하는 동시에 가게의 성장을 가능하게 하여 "진행 중인 작품"이라는 개념으로 이어지는 것이다. 이 공간은 상품을 보여주기 위한 미래의 확장을 가능하게 한다.
낮에는 카페 역할을 하고 밤에는 바로 바뀐다. 개방된 조명 공간은 낮과 밤 모두 매력적인 분위기를 조성하도록 설계되었다. 일관된 회색 색상 체계는 원래 상점과의 연결을 유지하고 벽돌 바닥을 사용하여 생동감을 더한다. 창문과 곡선 유리의 통합은 추가 좌석을 제공하고 저녁에는 아리 골목의 활기찬 분위기를 포착한다. 기본적으로 이 개념은 적응력과 성장을 중심으로 전개되며, 밤낮으로 다양한 요구를 충족시키는 역동적인 공간을 제공한다. 이는 변화하는 환경에 적응하기 위해 매력적인 분위기를 조성하고 지속적인 개발을 가능하게 한다.

Based on the provided description, the goal is to replace the old image of the tattoo shop with a simple and fitting design that can be integrated into the existing structure. This design concept, named "MADGREY," entails a coffee shop and bar that adapts to the Ari neighborhood, catering to all customers, offering coffee during the day, and transforming into a bar at night. The space also functions as a relaxation area and waiting spot. To achieve this, the design intends to eliminate the previous imagery of the shop and introduce a sense of modernity and simplicity. The idea involves showcasing and storing "TATTOO INK" pieces effectively, utilizing light openings to prevent a crowded or confined feel. Moreover, the design addresses the need for space between groups waiting together by incorporating a staircase leading to the lower level. This lower level becomes "PROGRESS COFFEE & BAR." The motivation behind this transformation comes from a partner's desire for a multifunctional space catering to work, waiting, and customer service needs. The main challenge is to enable the shop's growth while facilitating development, leading to the concept of a "work in progress." The space allows for future expansion for showcasing items.
Throughout the day, the space functions as a café and transitions into a bar at night. Open light spaces are designed to foster an inviting atmosphere during both daytime and nighttime. The consistent gray color scheme maintains a connection to the original shop, while the use of brick flooring adds vibrancy. The incorporation of windows and curved glass provides extra seating and captures the vibrant atmosphere of Ari Lane during the evening. In essence, the concept revolves around adaptability and growth, offering a dynamic space that caters to varying needs throughout the day and night. It fosters an engaging ambiance and allows for ongoing development to accommodate the changing environment.















디자이너 taste space co., ltd.
위치 2/6 3rd Floor, Soi Ari 1, Phaya Thai, Bangkok 10400
용도 Cafe/Bar
준공 2023. 06. 01
사진작가 MR. Jinnawat Borihankijanan
'Interior Project > Cafe&Restaurant' 카테고리의 다른 글
| Pretty Patty (0) | 2024.07.22 |
|---|---|
| Rolling Roasters Futuristic Coffee (0) | 2024.07.04 |
| 4th Wall (0) | 2024.06.27 |
| Bar Kar (0) | 2024.05.30 |
| Red Eye Bono Restaurant (0) | 2024.04.12 |
마실와이드 | 등록번호 : 서울, 아03630 | 등록일자 : 2015년 03월 11일 | 마실와이드 | 발행ㆍ편집인 : 김명규 | 청소년보호책임자 : 최지희 | 발행소 : 서울시 마포구 월드컵로8길 45-8 1층 | 발행일자 : 매일



