
샘내어울림센터는 주민 누구나 편하게 머무르고, 마을에 새로운 활력을 가져오는 하나의 출발 지점이 될 것이라 기대한다.
가로변에서 조금 물러난 원형 매스는 부담스럽지 않게, 마을의 상징적 요소로 자리한다. 외부에서 바라보는 이 곳은 주민들이 바라보는 어느 곳에서나 전면성을 띄며, 집중된다. 안에서 바라보는 마을은 다방향적이다. 샘내마을의 모습과 주변의 풍부한 자연환경을 다양한 시각으로 관찰하고 머물 수 있는 장소를 제공한다.

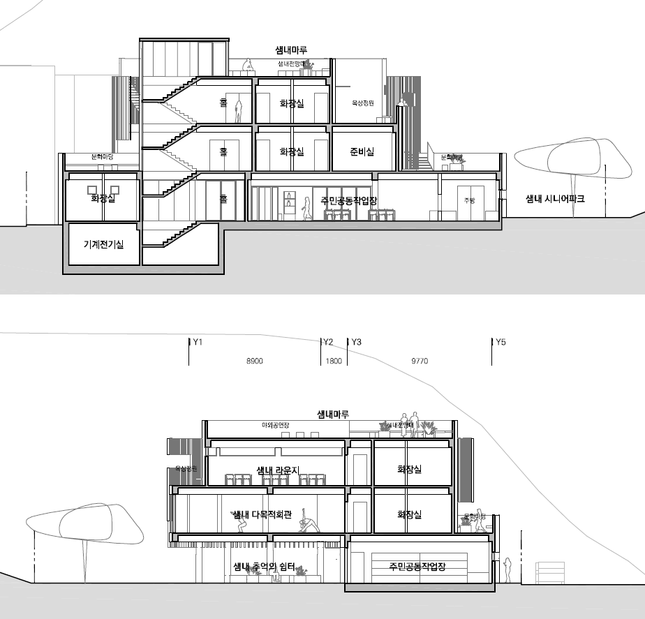
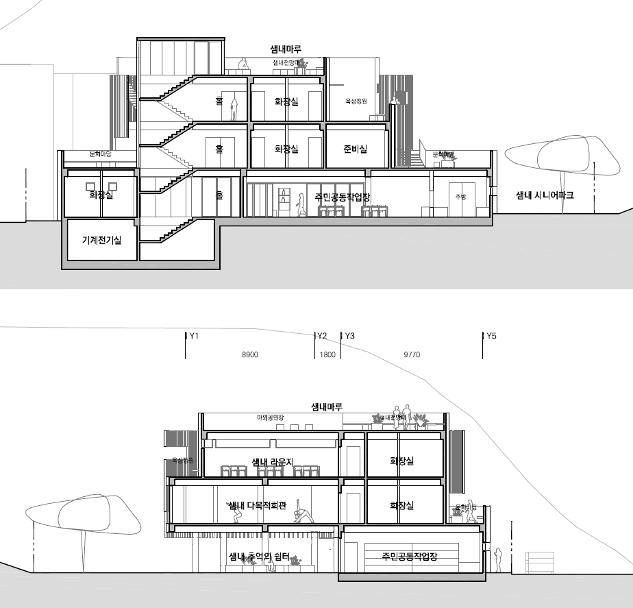
1층에 주민공동작업장은 가로변 측에 대응 배치하여, 지나가는 주민들의 관심을 유도한다. 2층, 3층의 샘내다목적회관과 샘내라운지는 남측에 배치하여 루버 사이로 채광이 용이하다. 층별로 외부공간을 내부와 연계하여 조성하였다.

산북 도시재생사업 샘내 어울림센터 조성
입상작_지여건축사사무소
대지면적: 1,045㎡
연면적: 812.81㎡
건축면적: 470.75㎡
건폐율: 45.05%
용적률: 71.27%
최고높이: 14.15m
층수: 지하1층, 지상3층
구조: 철근콘크리트 구조
주차대수: 5대(확장형주차4대, 장애인주차1대)
'Plans' 카테고리의 다른 글
| 산양삼 융복합 지원센터조성사업_당선작 (0) | 2024.06.17 |
|---|---|
| 공검면 및 외서면 기초생활거점조성사업 건축설계제안공모_당선작 (0) | 2024.06.14 |
| 대림2동 공공복합청사 건립 설계공모_당선작 (0) | 2024.06.12 |
| 울릉군 어울림문화센터건립사업 건축설계 제안공모_당선작 (0) | 2024.06.11 |
| 진봉면 다붓문화복지센터 조성사업건축설계 제안공모_당선작 (0) | 2024.06.10 |
마실와이드 | 등록번호 : 서울, 아03630 | 등록일자 : 2015년 03월 11일 | 마실와이드 | 발행ㆍ편집인 : 김명규 | 청소년보호책임자 : 최지희 | 발행소 : 서울시 마포구 월드컵로8길 45-8 1층 | 발행일자 : 매일



