
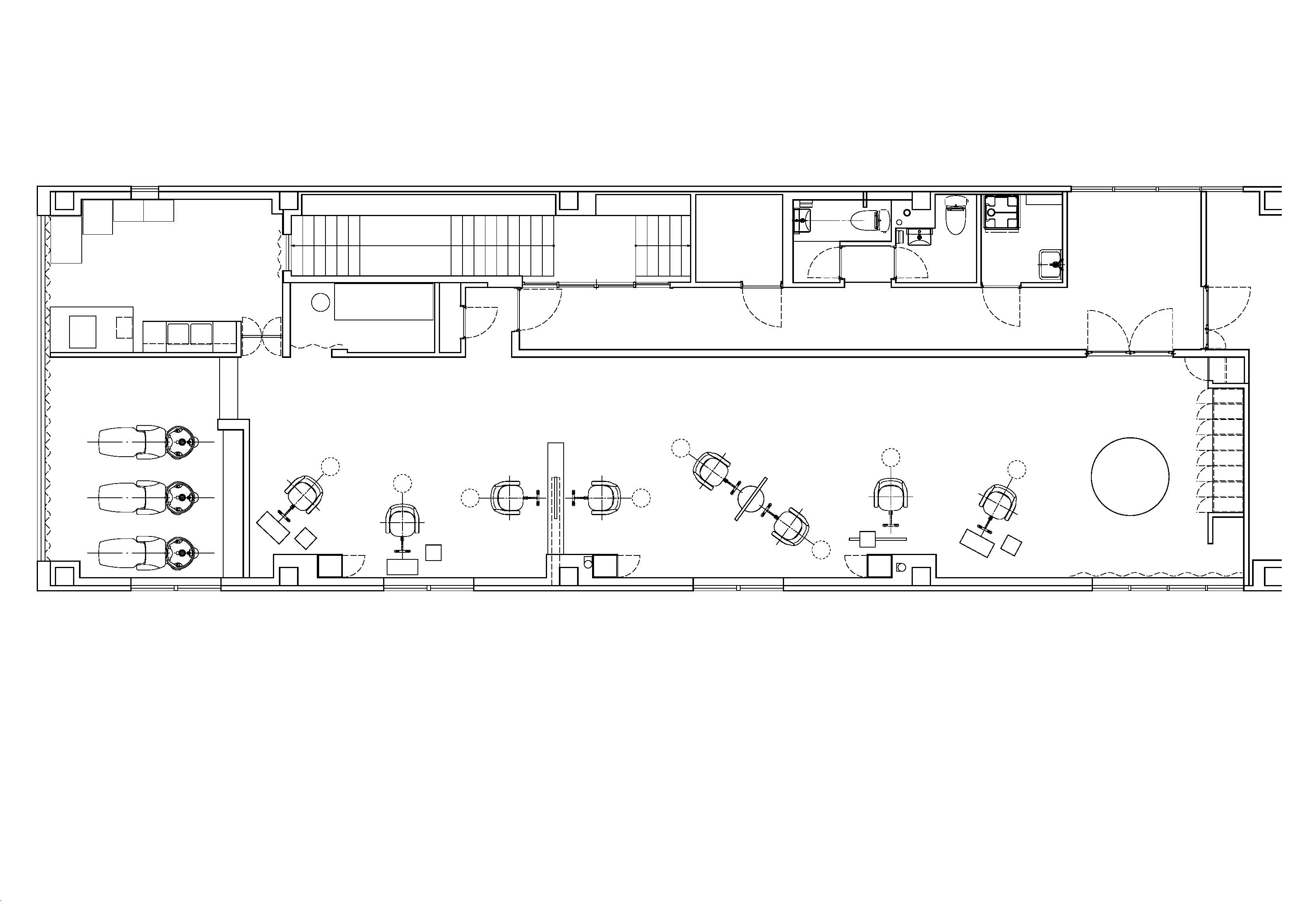
센다이의 아케이드 상점가를 마주하고 있는 건물은 유일하게 상점가를 마주하고 있는 입구조차도 자연광으로부터 차단된 독특하게 깊고 어두운 공간을 가지고 있으며, 미용실로 탈바꿈되었다. 처음에는, 1인 미용사를 위한 미용실로 먼저 문을 열었지만 시간이 지남에 따라 더 많은 작업자와 더 많은 공간이 사용될 예정이었다. 따라서 세련된 미용실의 높은 감각을 유지하는 사람이 거의 없을 때도 생동감을 느낄 수 있는 개조가능한 디자인을 모색하였다.
자연광을 대체할 수 있는 돔 형태의 빛이 비치는 천장을 건물 입구부터 뒤편까지 이어지도록 계획하여 공간의 특징적인 깊이를 핵심 요소로 강조하였다. 초원의 나무나 강둑의 큰 바위 등 동질적인 공간의 견고한 건축물이 선택되었고, 정의되지 않은 공간에서 사람들이 모일 랜드마크로서 공간을 정했다. 거울 속의 풍경과 반사가 교차하도록 좌석을 배치하여 사람들이 이동하면서 변화하는 풍경을 연출하고, 각각의 좌석은 건축물을 수용하도록 배치하였다.
가구에 사용되는 견고한 은행나무는 목재를 쌓아 둔 창고에서 선별하여 원하는 색상과 모양을 얻을 수 있도록 했다. 아름다운 곡물과 색조, 숙련된 장인정신을 통해 미묘하게 존재감을 드러내는 자연의 특징들은 그 공간에 있는 사람들이 의지할 수 있는 정착지가 된다.

Abuilding facing Sendai's arcade shopping district, with a uniquely deep, dark space shut off from natural light, even from its only entrance facing the shopping district, has been transformed into a hair salon. It was to be opened first as a salon for a single hairstylist, expecting more workers and more uses of the space with time. Therefore, an adaptable design that would feel lively even when few people were present that maintained an elevated sense of a sophisticated hair salon was sought.
As a substitute for natural light, a dome-shaped luminous ceiling was planned to run from the entrance to the back of the establishment, emphasizing the characteristic depth of the space as a key element. The solid constructions in the homogeneous space, such as trees in a meadow or large rocks on a riverbank, were chosen and spaced as landmarks where people would gather in an undefined space. The seating is arranged so that the views and reflections in the mirrors intersect, creating a changing landscape as people move around, with each seat positioned to embrace the construction.
The solid ginkgo wood used for the furniture was selected from a warehouse stocked with lumber, ensuring the desired color and shape could be obtained. The natural features, subtly asserting their presence through their beautiful grain, hue, and skilled craftsmanship, become anchor points on which people in the space can rely.











디자이너 Shinsuke Yokoyama / CANOMA
발주자 LICHT
사진작가 Takuya Yamauchi
'Interior Project > Retail' 카테고리의 다른 글
| Aito-denkimochiten (0) | 2024.06.20 |
|---|---|
| SKIN1004 Flagship Store (0) | 2024.06.14 |
| Nude Project Bilbao (0) | 2024.06.06 |
| The Lost Cove (0) | 2024.05.31 |
| ZAURA (0) | 2024.05.24 |
마실와이드 | 등록번호 : 서울, 아03630 | 등록일자 : 2015년 03월 11일 | 마실와이드 | 발행ㆍ편집인 : 김명규 | 청소년보호책임자 : 최지희 | 발행소 : 서울시 마포구 월드컵로8길 45-8 1층 | 발행일자 : 매일



