
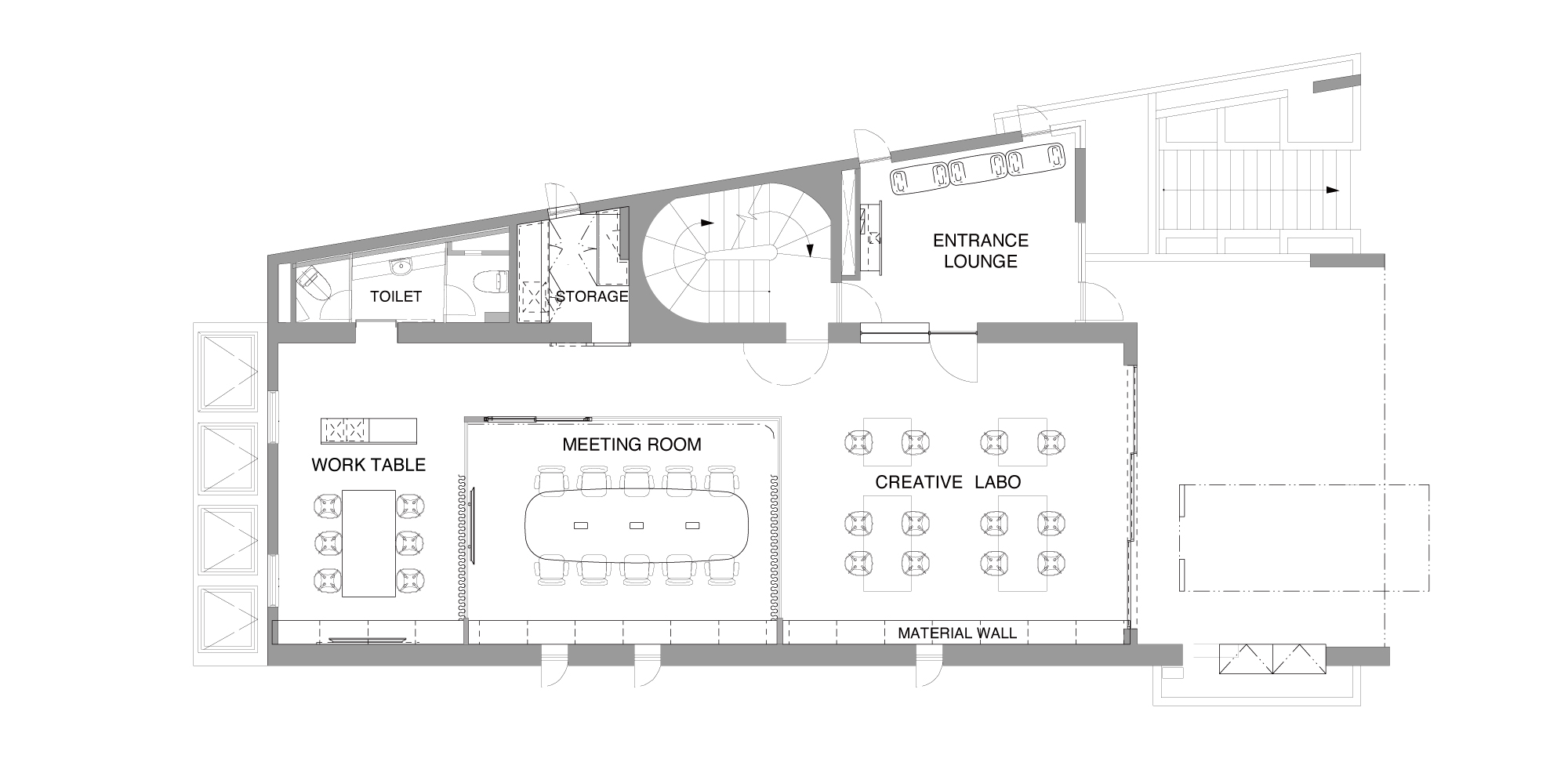
홍보, 인테리어, 디스플레이 서비스를 제공하는 1928년 설립된 지 오래된 회사인 교야상사 신사옥 이전을 위한 인테리어 디자인 프로젝트이다. 이 프로젝트 현장은 센다가야 방향으로 JR하라주쿠역에서 도보로 조금만 가면 패션 브랜드 오피스가 있는 지역에 위치하고 있다. 이 프로젝트는 지하 1층, 지상 3층의 기존 건물을 활용한다. 건물은 원래 직업학교였으며 사무공간, 쇼룸, 임대공간으로 전환되었다.
출입구는 2개로 하나는 쇼룸과 임대공간이 위치한 지하 1층, 다른 하나는 방문객과의 만남이 이루어지는 1층에 있다. 남쪽에 입구가 있지만 주변에 건물이 많아 상층부가 더 자연광을 받는다. 지하층은 화강암으로 되어 있고 자연광을 받지 않는다. 독특한 분위기의 바닥을 유연하게 사용할 수 있도록 입구 앞에 커튼 레일을 설치하여 커튼으로 공간을 분리하였다. 핵심 색상은 은색으로 모든 용도에 적합하지만 무거운 분위기를 만들지는 않는다.
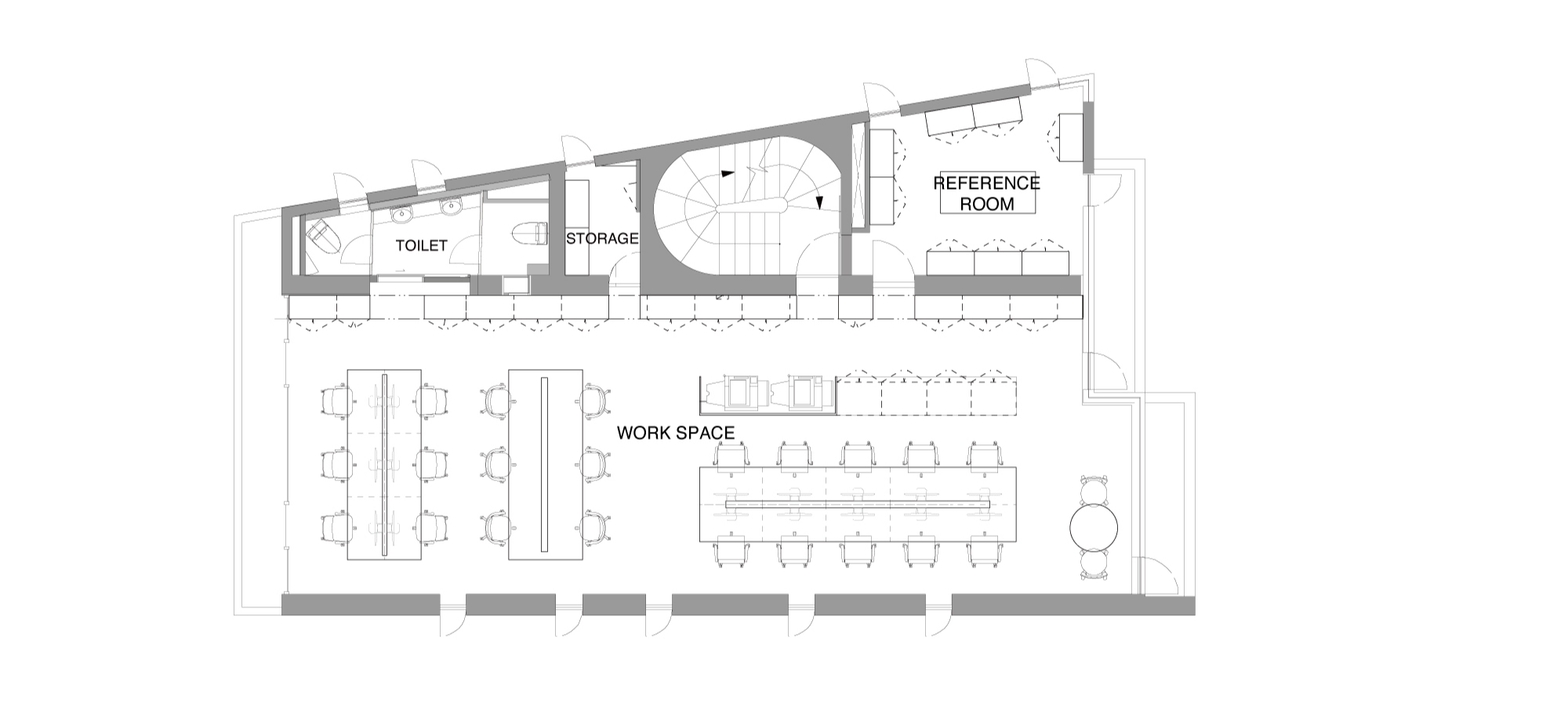
1층은 기존에 나무 데크가 있던 출입구를 미닫이 유리문으로 교체하고, 바닥 중앙에 유리 칸막이로 분리된 회의실을 배치해 자연광이 바닥 뒤쪽까지 최대한 침투할 수 있도록 하는 한편, 기밀 수준에 따라 회의 장소를 선택할 수 있도록 했다. 맨 끝 부분도 커튼으로 분리할 수 있어 작업 공간이나 회의실, 보관 공간으로 활용할 수 있다. 2층과 3층은 사무용으로 사용하고 있다. 각 층의 기존 조건을 최대한 활용하면서도 큰 테이블을 각 층의 배치에 맞게 배치하였다. 이는 각 부서가 지향하는 업무 스타일을 구현할 수 있게 하였다. 테이블은 린덴 합판으로 되어 있고, 기존 사물함 시스템을 수용하는 붙박이장도 린덴 합판으로 되어 있다.

This is an Interior design project for the relocation of the new office building of KYOYA Corporation which is a long-established company founded in 1928 that provides promotion, interior design, and display services. This project site is located in an area dotted with fashion brand offices, a short walk from JR Harajuku Station in the Sendagaya direction. The project utilizes an existing building with one basement floor and three stories above ground. The building was originally a vocational school, and was converted into office space, showroom and rental space.
There are two entrances, one on the basement level where the showroom and rental space are located, and the other on the first floor where meetings with visitors are held.Although the building has an opening on the south side, the upper floors of the building receive more natural light due to the presence of many buildings in the surrounding area. The basement floor is made of granite and also receives no natural light. Curtain rails were installed in front of the entrance to separate the space with curtains in order to allow the floor with its unique atmosphere to be used flexibly. The key color is silver, which is suitable for all kinds of uses, but does not create a heavy atmosphere.
For the first floor, the entrance opening, which previously had a wooden deck, was replaced with a sliding glass door, and a conference room separated by a glass partition was placed in the center of the floor, allowing natural light to penetrate as far as possible to the back of the floor, while allowing the selection of meeting locations based on the level of confidentiality. The area at the far end can also be separated by curtains, allowing it to be used as a work area, meeting room, or storage area. The second and third floors are used for office functions. While making the most of the existing conditions on each floor, large tables were arranged as much as possible to match the layout of each floor. This made it possible to realize the work style that each department was aiming for. The tables are made of linden plywood, and the fixtures that house the existing locker system are also made of linden plywood.
















건축가 SAKUMAESHIMA
위치 Shibuya-ku, Tokyo, Japan
용도 사무실
준공 2023
연면적 480㎡
사진작가 Masaaki Inoue / BOUILLON
'Interior Project > Office' 카테고리의 다른 글
| Mondadori Office Playground (0) | 2024.08.30 |
|---|---|
| T33 Full-Time Center (0) | 2024.08.14 |
| WOA Second Home (0) | 2024.04.05 |
| W+K Seoul Office Interior (0) | 2024.04.01 |
| Inspire Hub – Hybrid Office (0) | 2024.03.28 |
마실와이드 | 등록번호 : 서울, 아03630 | 등록일자 : 2015년 03월 11일 | 마실와이드 | 발행ㆍ편집인 : 김명규 | 청소년보호책임자 : 최지희 | 발행소 : 서울시 마포구 월드컵로8길 45-8 1층 | 발행일자 : 매일



