
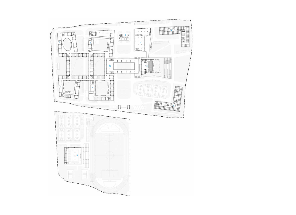
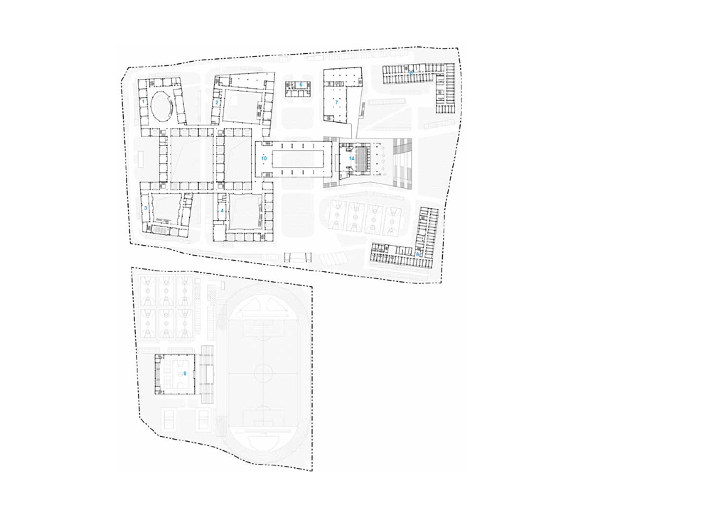
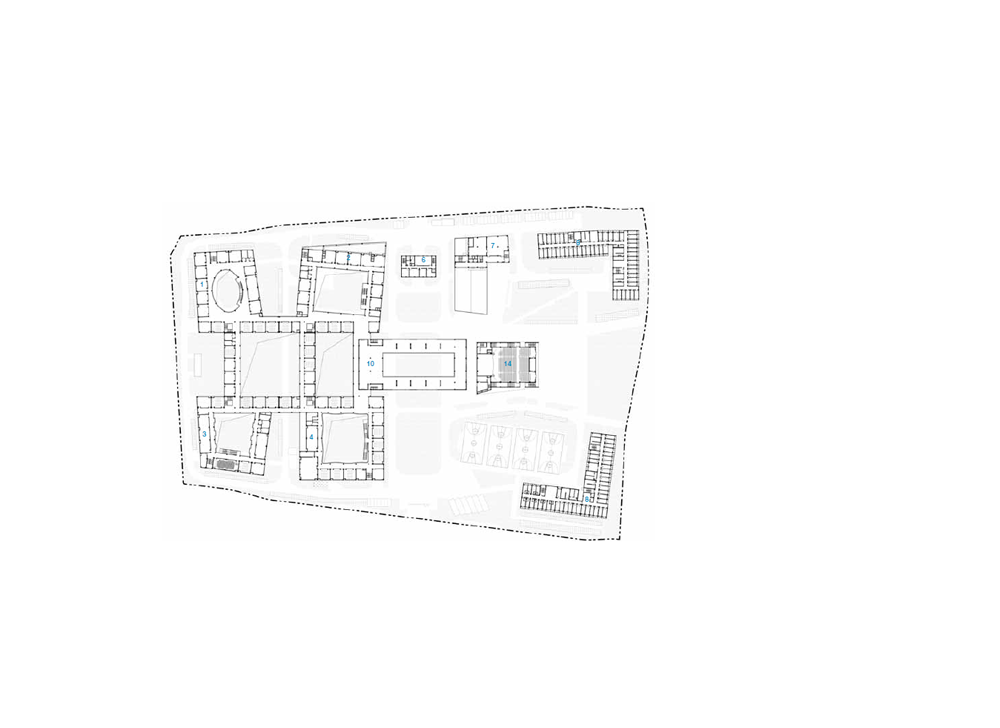
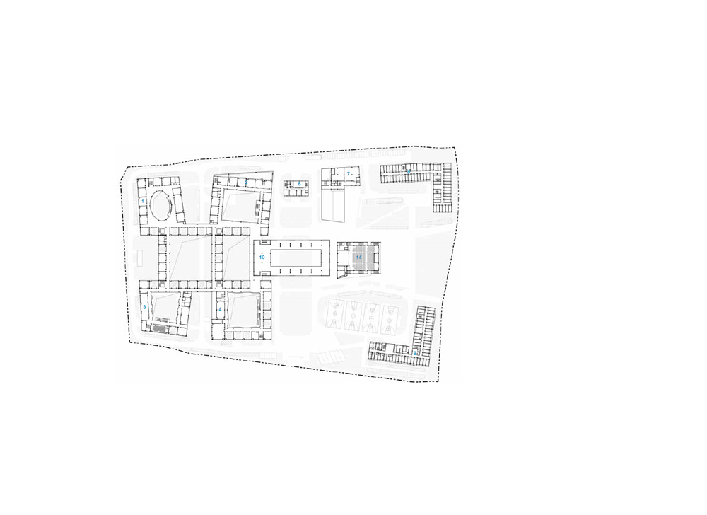
닝보 구린 직업고등학교는 유아교육, 요리, 예술, 공예, 전자분야의 4개 전문학과의 3,000명의 학생을 수용하는 새로운 교육 시설이다. 직업고등학교의 특성상 일반 고등학교와는 달리 많은 수의 직업교육실이 요구되며, 다양한 전문 영역의 학생들의 집중적인 교류와 교실 간의 연계성을 효율적으로 구성해야 했다. 기존의 학교 시설은 전통적인 교육학 모델에 따라 유사한 레이아웃이 고수되어 왔다. 이러한 전통적인 캠퍼스 디자인의 전형성은 학생들의 상호 작용과 의사소통을 저해하며 현대의 발전된 교육 패러다임에 적응하기 어렵다는 한계가 있다.
이에 따라 건축가는 격자형을 따르는 전통적인 중국 교육 공간의 레이아웃에 도전하며, 비직교 격자 시스템을 사용하여 공간을 구성했다. 이는 다양한 프로그램을 효율적이고 유기적으로 상호 연결하여 학생과 교직원에게 편리한 보행 경험을 제공할 수 있다.1층에는 조명의 필요성이 적은 직업 훈련실을 개방형 구조로 배치하였고, 2층과 3층은 내부 마당을 중심으로 표준형 교실을 배치하여 최적화된 조명과 전망을 제공한다. 표준형 교실과 직업 훈련실 사이에는 다양한 형식의 실습 공간을 배치하여 학과와 연계한 다학제적간의 상호 작용을 촉진한다. 또한 수영장, 옥상 정원, 안뜰 등의 다양한 풍경은 다양한 학습 환경을 만든다. 2층은 연속 순환 시스템을 통해 강당, 도서관, 교실과 마당을 상호 연결하여, 학생들의 사회 활동과 학습에 대한 경험을 향상시킨다.
















건축가 ARCHIS Design Studio
위치 중국, 닝보
대지면적 96,851㎡
건축면적 8,000㎡
시공기간 2020 - 2023
준공 2023
대표건축가 Shining (Christina) Sun
디자인팀 (Lead) Shining (Christina) Sun, Zirui (Allen) Pang, Yotam Ben-Hur, Yuzhou Peng, Yiqing Wu / Xun Lu, Yalun Li, Guangwei Ren, Liding Fan, Jiahao Shi, Xinyao Xiao
협력사 Zhejiang Xinjie Construction Co., Ltd. (Hao Zhang, Liangjun Chen, Ming Luo, Yifei Pan, Xin Luo, Tianqian Zhu, Huili Liang, Linghang Li, Yuanwang Zhu)
회랑 및 인테리어 Supercloud Studio (Xunjun Xu, Ruobei Gan, Zhibin Zhang, You You, Meng Xue, Yuqing Yang)
기숙사 및 체육관 인테리어 Kangyi Shen Studio (Kangyi Shen, Zhuozhi Xiong, Xijin Zeng)
조경 Feng Liu, Sheng Cao
파사드 컨설턴트 Chuanxing Jiang, Jun Wang
조명 컨설턴트 Lei Pang
발주처 Ningbo Gulin Vocational High School, Ningbo Education Bureau
사진작가 Xiazhi, Runzi Zhu
해당 프로젝트는 건축문화 2024년 3월호(Vol. 514)에 게재되었습니다.
The project was published in the March, 2024 recent projects of the magazine(Vol. 514).
March 2024 : vol. 514
Contents : COMPETITION : SKETCH Silent River / Nikita Batrakov 침묵하는 강 / 니키타 바트라코프 : RECENT PROJECT Villa Seung Seung / MANDLDA Architects 빌라승승 / 만들다 건축사사무소 Samsong1957 / Unsangdong Architects 삼송1957 /
anc.masilwide.com
'Interior Project > Education' 카테고리의 다른 글
| Renovation of the Former Residence of Zhang Taiyan - Gu Wu Xuan Bookstore (0) | 2024.04.22 |
|---|---|
| Goheung Blue Dream Kindergarten Play Hall (0) | 2024.04.08 |
| GANGSEO UNIVERSITY (0) | 2024.02.19 |
| Oita Ichigo Certified Center for Early Childhood Education and Care (0) | 2023.12.29 |
| The Playful Objects (0) | 2023.04.12 |
마실와이드 | 등록번호 : 서울, 아03630 | 등록일자 : 2015년 03월 11일 | 마실와이드 | 발행ㆍ편집인 : 김명규 | 청소년보호책임자 : 최지희 | 발행소 : 서울시 마포구 월드컵로8길 45-8 1층 | 발행일자 : 매일



