
산을 닮은 인공의 삼각이 연출하는 다이나믹 낭만: 삼송1957
역설로 이끌어낸 대지의 힘
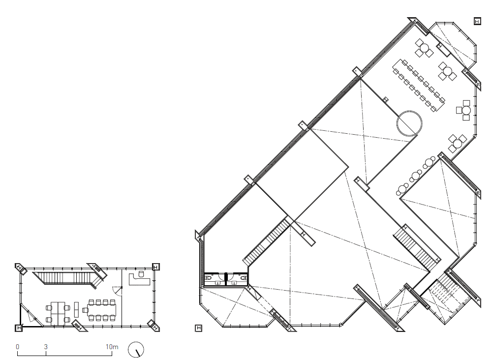
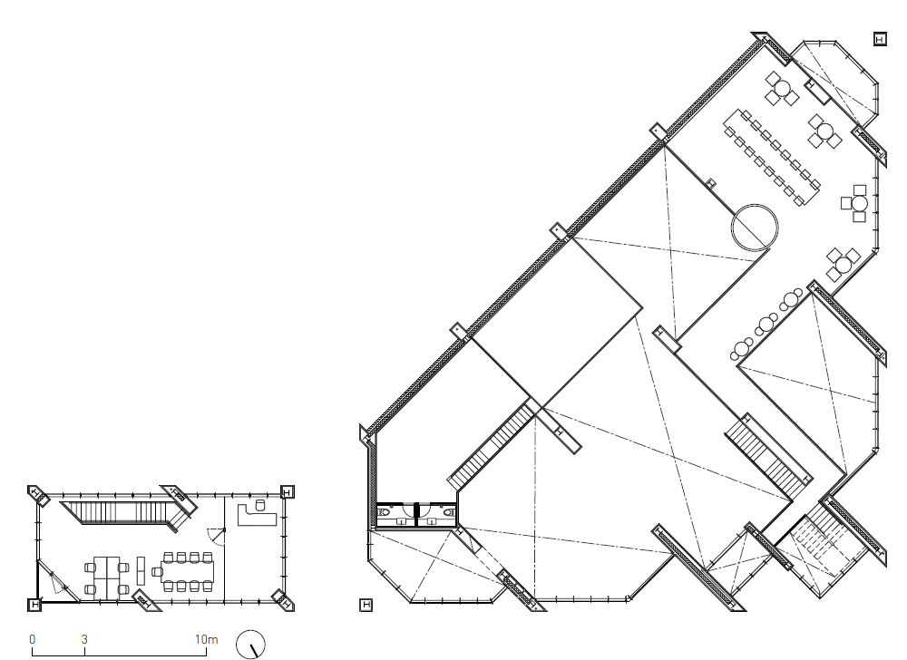
대지는 복잡하고 어수선한 상황에 둘러싸인 장소이다. 그러나 대구의 중요한 관광 자원이며 시민의 휴식처인 수성못에 가까운 위치로, 많은 사람이 오가며 만나는 접점이자 다양한 이벤트들이 발생하는 곳이기도 하다. 좀 더 구체적으로 들여다보면 삼각형과 직사각형이 만나는 부정형의 대지로, 주변은 시각적으로 무분별한 사인과 다양한 건축들이 공존하는 혼잡한 상업 지역이다. 다행히도 남측에 위치한 작은 공원은 이번 건축이 중요하고 소중한 장소로 성장할 수 있는 긍정적 배경이 되었다. 대지의 힘은 기존의 자연주의적 아름다운 환경이나 빼어난 경관에 순응하며 자연스럽게 조우하는 데서만 나오는 것이 아니다. 건축가는 부정적인 환경에 대응해 역설적인 작용을 끌어내기 위한 반작용적 에너지로서 대지를 읽어냈다. 대지를 채우는 인공 자연의 형상, 즉 삼각의 기하학적 배치와 형태가 대지와 반응한다. 대지를 처음 접했을 때 어지럽고 낯설고 복잡한 환경을 파악하고, 앞산의 자연 자락을 여기에 이식하는 상상을 했다. 인공의 자연을 심는 것이다. 혼돈의 대지가 역설적으로 자연을 상상하게 했다. 복잡하고 특별할 것 없는 대지이나 ‘다르게 읽기’와 ‘반응하기’를 통해 ‘낯섦의 건축’을 생성하는 동기와 에너지를 부여하는 열린 대지로 치환한다.
낭만과 이성의 이중주
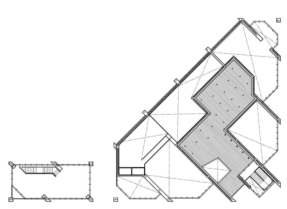
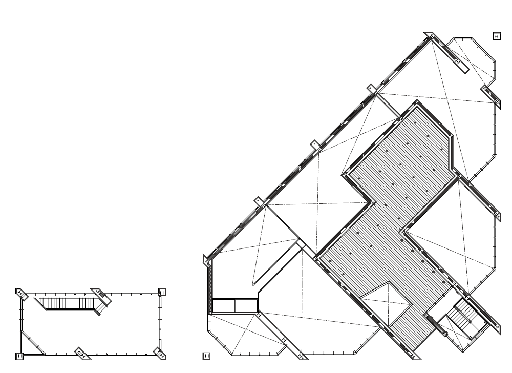
‘삼송1957’의 용도는 카페, 빵집, 음식점으로 트렌드와 아주 밀접한, 최대한의 수익을 목적으로 하는 전형적 상업 프로그램이다. 그러나 동시에 이곳에 오는 이들에게 다른 세계로 향한 낭만을 줄 수는 없을까 생각했다. 건축이 가진 과감하고 풍성한 공간과 형태가 즐거운 소비 경험을 촉진한다. 남측과 동측에서 평행하게 시작되는 삼각형의 지붕은 45도 각도로 일방향으로 확장되면서 공간과 형태를 생성한다. 단순한 삼각형이라는 형태를 다중적이며 복합적인 요소로 사용하고 변형하면서 역동적인 공간으로 자라게 한다. 하늘과 만나는 이질적인 두 개의 다각형 매스는 과감하게 삼각형의 매스와 충돌하며 내‧외부적으로 우연적이고 생경한 장면과 공간이 연출되도록 의도했다. 이는 빛과 바람과 자연을 향한 은유적 장치이기도 하다. 어쩌면 무작위적으로 보이는 건축적, 구조적, 형태적 관계들은 처음부터 고도로 계획한 상업적, 합리적, 이성적 전략을 바탕으로 한 것이기도 하다. 낭만과 생경함 그리고 낯섦과 이질적 혼돈이 가득한 건축의 이중성을 제시하려 하였다.
밝음과 어두움
상업 건축의 가능성은 방문하는 사람에게 상상과 몰입감을 부여한다는 데에 있다. 주거, 업무 등 일상적인 공간과 건축에 비해 다름(차이), 낯섦, 동질적 공간감, 광장성에 대한 건축적 실험을 통해 사람들이 시시때때로 어떻게 반응하는지 여실히 담고 있다는 점에서 가장 촉각적이고 현대성을 지닌 건축이다. 외부의 건축 재료는 짙은 회색의 징크 지붕을 쓰고, 내부는 흰색의 벽과 천정으로 마감해 색감과 재질에서 극명한 대비를 담았다. 시간과 빛의 방향에 따라 크고 작은 그림자의 변화를 통해 시간의 흐름을 담은 풍부한 대비와 명암이 생기고, 열린 풍경을 만들어 낸다. 낮의 풍경에서 짙은 회색 징크는 자연의 흙빛, 유리의 푸른 빛, 프레임의 자유로운 연계를 통해서 하나의 커다란 인공의 자연을 은유한다. 그러나 밤이 되면 내부의 빛에 의해 내부적 풍경과 빛과 이벤트와 장소가 결합되면서 흰 빛의 캔버스가 밖으로 무한히 팽창하고 입체적인 흰색의 파노라마가 주변으로 확장된다. 부유하는 삼각형의 흰 공간들은 유기적으로 공간을 점유한다. 사람과 음식과 만남과 이벤트는 흰색의 입체적 공간에서 자유롭고 여유롭게 저마다의 개성으로 관계한다. 두 개의 천창과 높은 고측창에 들어오는 자연의 빛은 공간의 입체적 형태와 연계된다. 이 빛과 그림자의 공간을 찾는 사람들이 단순한 소비를 넘어 확장된 감정과 풍부한 상상을 경험하기를 기대한다.
글: 신창훈















건축가 Unsangdong Architects
위치 대구광역시 수성구 수성못2길 26
용도 빵집, 카페, 비스트로
대지면적 2,930㎡
건축면적 869.29㎡
연면적 930.62㎡
규모 지상 2층
건폐율 26.67%
용적률 31.76%
준공 2021
대표건축가 장윤규, 신창훈
디자인 정명길, 양원준, 정진오, 고영동, 송재호
구조엔지니어 (주)하모니구조엔지니어링
기계엔지니어 (주)건양엠이씨
전기엔지니어 (주)전기설계협인
시공 선우종합건설(주), 유진건설(주)
발주자 (주)삼송비엔씨
사진작가 남궁선, Sergio Pirrone
해당 프로젝트는 건축문화 2024년 3월호(Vol. 514)에 게재되었습니다.
The project was published in the March, 2024 recent projects of the magazine(Vol. 514).
March 2024 : vol. 514
Contents : COMPETITION : SKETCH Silent River / Nikita Batrakov 침묵하는 강 / 니키타 바트라코프 : RECENT PROJECT Villa Seung Seung / MANDLDA Architects 빌라승승 / 만들다 건축사사무소 Samsong1957 / Unsangdong Architects 삼송1957 /
anc.masilwide.com
마실와이드 | 등록번호 : 서울, 아03630 | 등록일자 : 2015년 03월 11일 | 마실와이드 | 발행ㆍ편집인 : 김명규 | 청소년보호책임자 : 최지희 | 발행소 : 서울시 마포구 월드컵로8길 45-8 1층 | 발행일자 : 매일



