
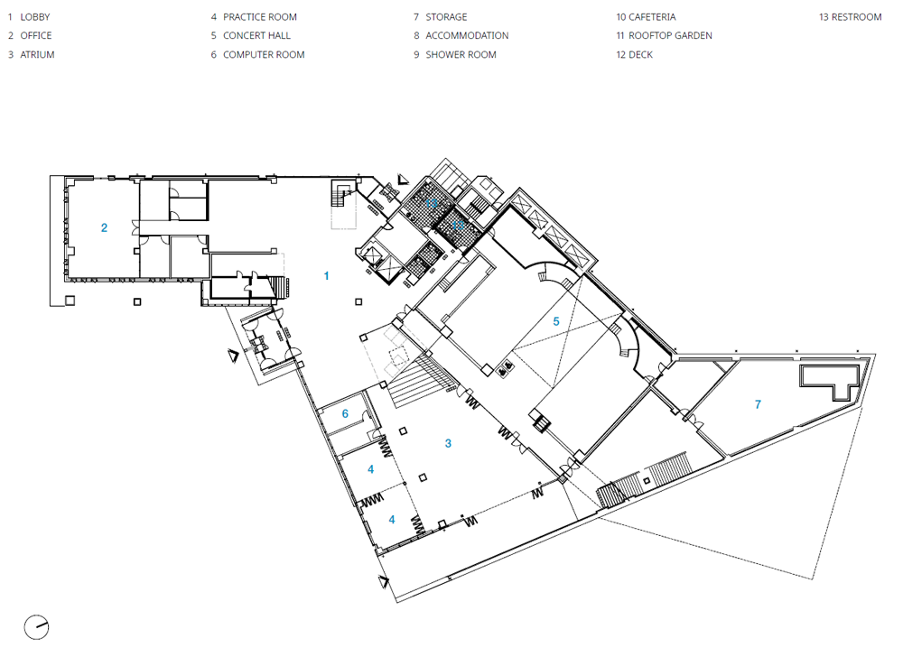
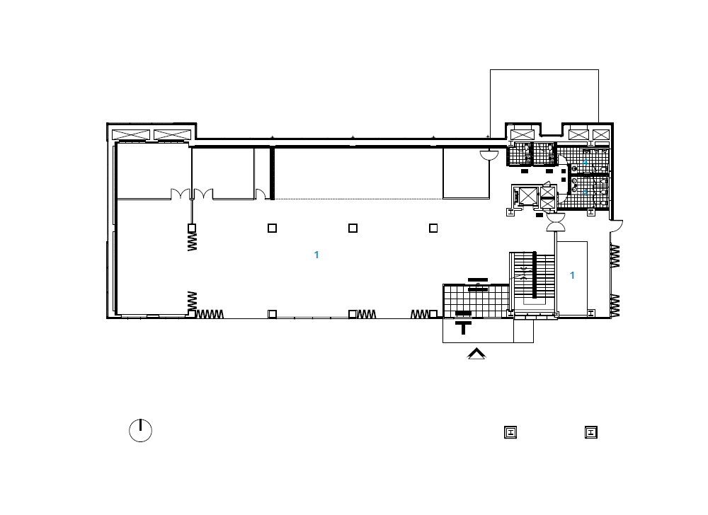
남양주 조안면에 있던 공공시설인 유기농 테마파크에 정약용 펀그라운드가 들어섰다. 정약용 펀그라운드는 청소년기에 필요한 휴식과 힐링 제공, 유스 호스텔로 여행에 대한 다양한 자료를 제공하고, 댄스 특화 공간이며, 숙소와 연습, 공연, 지역 축제와 연계되도록 지역 문화 예술 및 관광 활성화를 위한 공간으로 조성됐다. 증축 없이는 기존 전시관을 활용하여 댄스 공연장과 프로그램 실, 숙소를 배치하기에 어려움이 있었다. 본관과 별관 건물이 두 동으로 나누어져서 프로그램 간의 연계도 쉽지 않았다. 그런 단점을 극복하기 위해 본관에 유스 호스텔의 프로그램을 모두 담고 별관은 세미나, 연수 기능으로 활용하고자 했다.
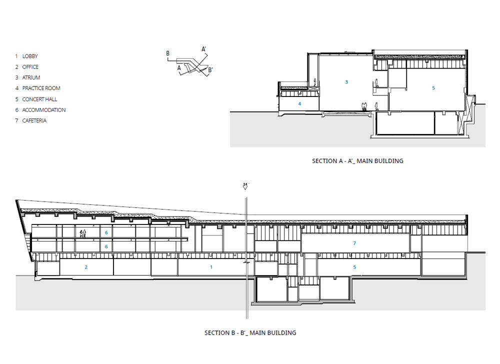
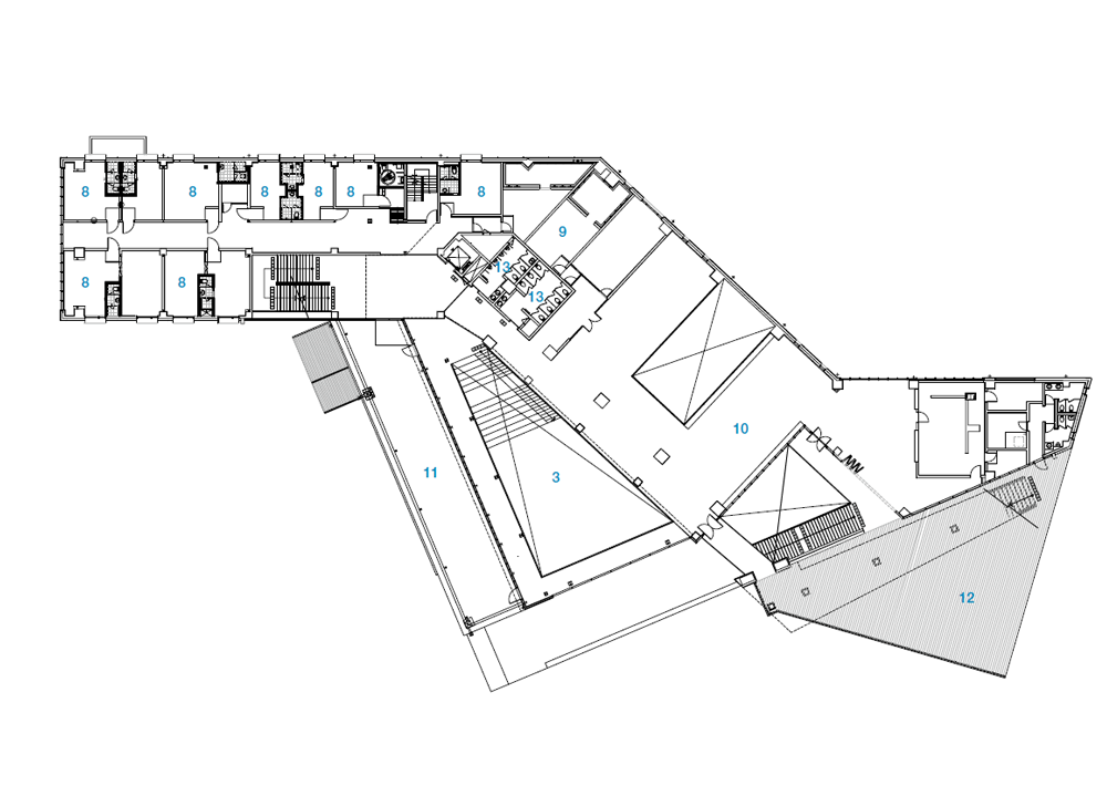
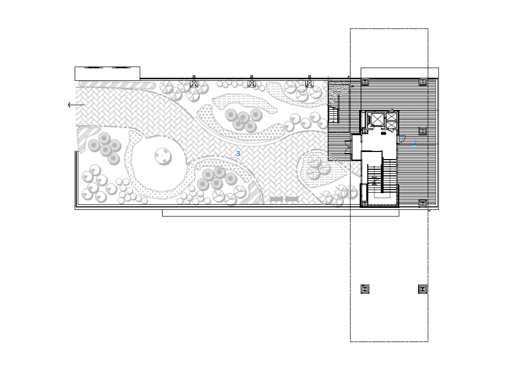
건축적 장치인 아트리움(유스홀)을 건물 사이 외부 공간에 삽입하여, 청소년이 가장 좋아할 만한 개방되고 트인 대공간을 만들었다. 유스홀 내부 플레이 스텝과 가변적인 외벽을 통해 지상 2층과 외부 객석, 야외 마당이 연계된다. 내부에서는 공연장과 놀이시설이 하나로 연결된 대공간으로 확장하여 사용하고, 필요시 개별적으로 사용 가능하도록 가변성을 극대화했다. 댄스, 놀이 공간, 사무 공간, 식당 카페, 숙소 공간 4개의 영역을 명쾌하게 조닝하여 프로그램이 원활히 작동되도록 하였다. 특히, 댄스 공연장은 전문적인 공연, 연출, 녹화가 가능한 공간이다. 햇볕과 바람을 조절하는 아트리움은 각 실의 환경에도 영향을 주고 청소년이 활동하기에 최적의 환경을 제공한다. 별관은 부유하는 건물의 매스(공간)를 활용하여 북한강 조망이 한눈에 들어오는 곳에 세미나실을 배치하여 자연을 만끽할 수 있는 최상의 뷰를 제공하였다.

Jeong Yak-Yong Fun Ground is located in Namyangju Organic Museum, a public facility in Joan-myeon, Namyangju. It was created to provide rest and healing for adolescents, and provide various resources for travel as a youth hostel. It is a dance-specialized space, and promotes local cultural arts and tourism by providing accommodation, practice, performances, and connections to local festivals. Without an extension, it was difficult to place a dance performance space, program rooms, and accommodation in the existing exhibition hall. The main building and the annex were divided into two buildings, making it difficult to connect programs. To overcome such shortcomings, the main building would house all the programs of the youth hostel, while the annex would be used for seminars and training.
The atrium (Youth Hall), was inserted into the exterior space between the buildings to create an open, airy public space that would be appealing to youth. The playsteps inside the Youth Hall and the variable exterior walls connect the second level with the exterior seating and outdoor courtyard. Inside, the performance hall and recreation facilities were expanded into a large space connected as one, maximizing flexibility so that they can be used individually when necessary. The four areas of dance, recreation, office space, cafe/restaurant, and accommodation space were clearly zoned to ensure that the program functions smoothly. In particular, the dance performance hall is a space designed for professional performances, directing, and recording. The atrium, which regulates sunlight and wind, also affects the environment of each room and provides the optimal environment for youth to be active. The annex utilizes the mass (space) of the floating building by placing the seminar room in a place with a panoramic view of the Bukhangang River, providing the best view to enjoy nature.














건축가 BORN architect
위치 경기도 남양주시 조안면 삼봉리182 외 8필지
용도 청소년수련시설(유스호스텔)
대지면적 34,680.0㎡
건축면적 3,306.9㎡
연면적 5,573.47㎡
규모 지하 1층, 지상 3층
설계기간 2019. 12. - 2020. 8.
시공기간 2021. 1. - 2022. 7.
준공 2022. 7.
대표건축가 김경남
프로젝트건축가 김경남
디자인팀 조성현, 정하라, 김영준, 전은지
구조엔지니어 (주)세영건설구조안전원
기계엔지니어 (주)태영이엠씨
전기엔지니어 (주)태영이엠씨
시공 (주)성공토건
발주자 남양주시청 미래교육과
사진작가 윤준환
해당 프로젝트는 건축문화 2024년 2월호(Vol. 513)에 게재되었습니다.
The project was published in the February, 2024 recent projects of the magazine(Vol. 513).
February 2024 : vol. 513
Contents : COMPETITION : SKETCH A Landscape that is Hard to Pass / Johanna Sinkkonen 좀처럼 지나칠 수 없는 풍경 / 요한나 신코넨 : RECENT PROJECT IRIS Headquaters / RE:TMUS ARCHITECTS 아이리스 사옥 / 리트머스 건축사사무소 Ye
anc.masilwide.com
'Architecture Project > Cultural' 카테고리의 다른 글
| Shanfeng Academy (0) | 2024.04.12 |
|---|---|
| The Park (0) | 2024.04.05 |
| TABAYAMA City Hall (0) | 2024.03.25 |
| FUTURE CITY Exhibition Center (0) | 2024.03.20 |
| Sailing LIBRARY (0) | 2024.03.06 |
마실와이드 | 등록번호 : 서울, 아03630 | 등록일자 : 2015년 03월 11일 | 마실와이드 | 발행ㆍ편집인 : 김명규 | 청소년보호책임자 : 최지희 | 발행소 : 서울시 마포구 월드컵로8길 45-8 1층 | 발행일자 : 매일



