
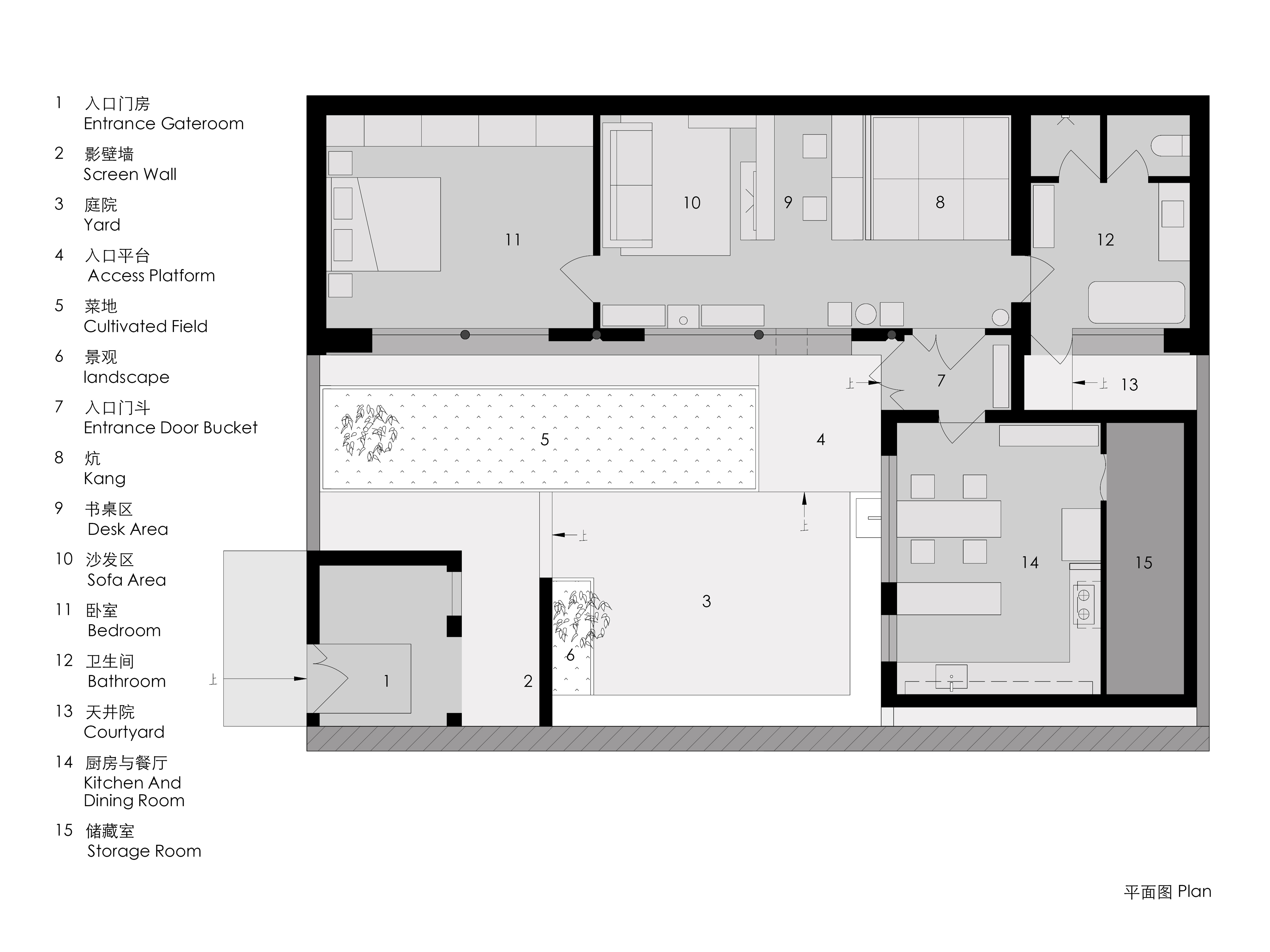
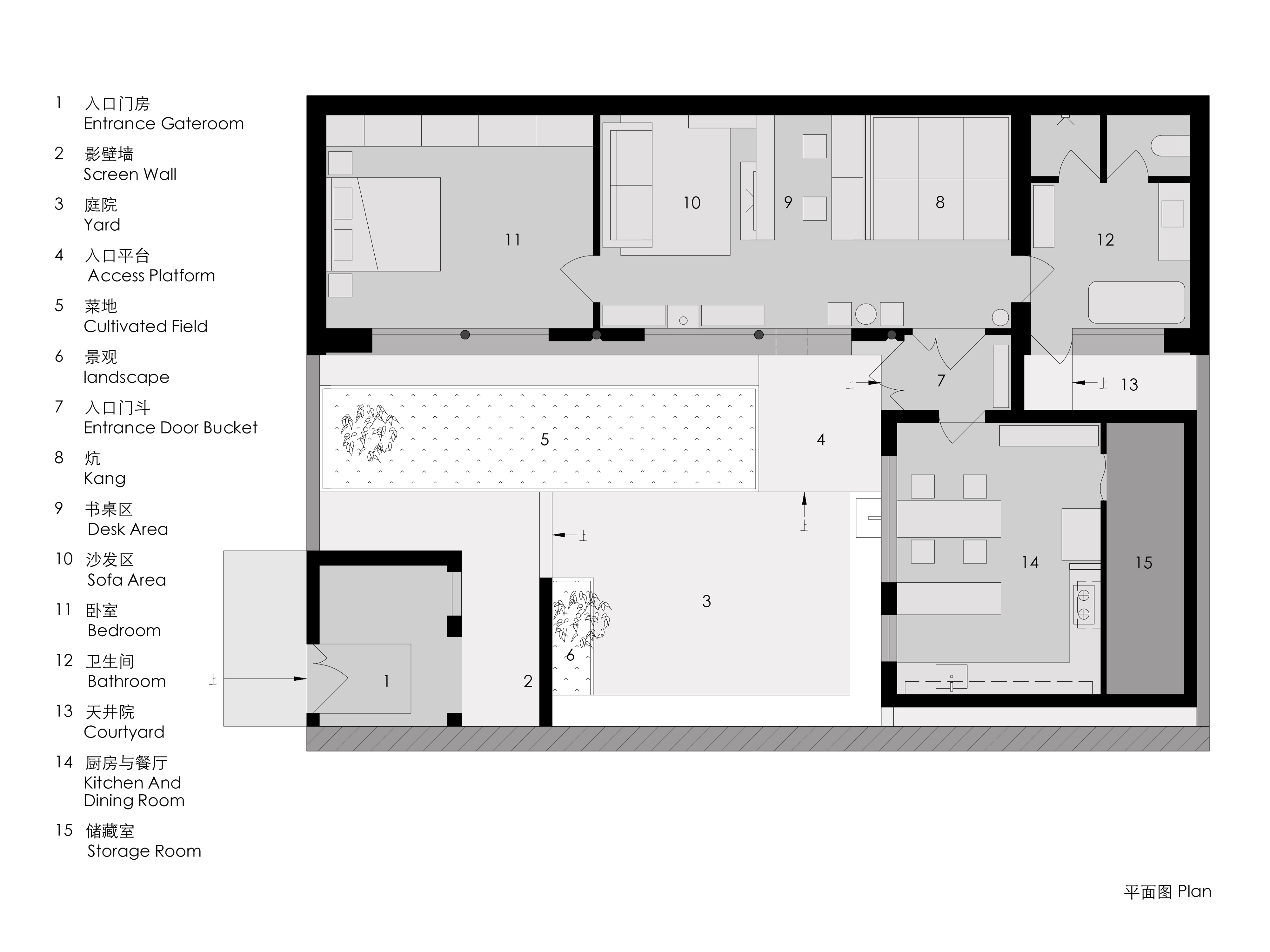
베이징 교외에 있는 오래되고 작은 집은 현시대에 맞는 생활 속 요구를 충족시킬 수 있어야 했다. 낡은 집은 시간의 흔적이 고스란히 남아 있었다. 건축가들은 마당과 집의 낡은 부분들을 보수했다. 먼저, 변형된 문과 창문 등을 제거했으며, 기존의 목재 보와 기둥은 보존하고 그것들을 노출하였다. 공간이 가지고 있는 기억을 존중하는 자세는 유지하되, 현대 생활 방식에 맞도록 구성을 바꾸기도 하였다. 기존 욕실과 주방은 집 밖으로 나가야 갈 수 있었다. 건축가는 욕실과 주방이 있던 작은 별채를 연결했으며, 정사각형 형태이며 가운데에는 정원을 가진 집으로 만들었다. 지붕은 북방 지역 고유의 전통양식을 가지고 있었고, 고택의 느낌을 그대로 유지할 수 있도록 보수되었다. 거실에는 벽난로가 새롭게 설치되었으며, 한쪽 벽은 가족들의 일대기를 볼 수 있는 사진들로 장식했다.

The small, old house in the suburbs of Beijing needed to be able to meet the demands of modern living. The old house was showing the signs of time. The architects renovated the yard and other run-down parts of the house. First, the deformed doors and windows were removed, while the original wooden beams and columns were preserved and exposed. While respecting the memories of the space, the composition was changed to fit a modern lifestyle. The existing bathroom and kitchen could only be accessed from outside of the house. The architects connected the small outbuilding that housed the bathroom and kitchen, creating a square-shaped house with a garden in the center. The roof had a traditional style unique to the northern region, and was repaired to maintain the feel of a historic house. A new fireplace was installed in the living room, and one wall was decorated with photographs of the family’s life stories.







건축가 LINJIAN Design Studio
위치 중국, 베이징
용도 오래된 주택 정원 리노베이션
프로젝트면적 210㎡
설계기간 2023. 8. – 9.
시공기간 2023. 9. - 12.
프로젝트건축가 Zhao Yang
디자인팀 Ma Sitong, Duan Ling, Ren Hui, Liu Zhao
협력디자인팀 XIAOZHU Design Team, LHBY Interior Design Studio
시공 DAHAI Studio
사진작가 LINJIAN Design Studio
해당 프로젝트는 건축문화 2024년 2월호(Vol. 513)에 게재되었습니다.
The project was published in the February, 2024 recent projects of the magazine(Vol. 513).
February 2024 : vol. 513
Contents : COMPETITION : SKETCH A Landscape that is Hard to Pass / Johanna Sinkkonen 좀처럼 지나칠 수 없는 풍경 / 요한나 신코넨 : RECENT PROJECT IRIS Headquaters / RE:TMUS ARCHITECTS 아이리스 사옥 / 리트머스 건축사사무소 Ye
anc.masilwide.com
'Interior Project > Residential' 카테고리의 다른 글
| AVORIO (0) | 2024.04.19 |
|---|---|
| HDN Modular (0) | 2024.04.03 |
| Wuhan 101 (0) | 2024.02.26 |
| SEOUL GARDEN APARMENT (0) | 2024.02.14 |
| Casa Alto de Pinheiros Apartment (0) | 2024.02.09 |
마실와이드 | 등록번호 : 서울, 아03630 | 등록일자 : 2015년 03월 11일 | 마실와이드 | 발행ㆍ편집인 : 김명규 | 청소년보호책임자 : 최지희 | 발행소 : 서울시 마포구 월드컵로8길 45-8 1층 | 발행일자 : 매일



