
사무공간의 본질은 업무를 보는 회사의 공간이라는 의미가 있다. 그러나 조금 더 깊이 생각해보면 사무 공간은 회사가 지향하는 방향과 소속감을 강화 시킬 수 있는 공간이라 할 수 있다. 우리는 공간 브랜딩을 통해 아이엠파인이라는 회사의 가치관을 표현하고자 했다.
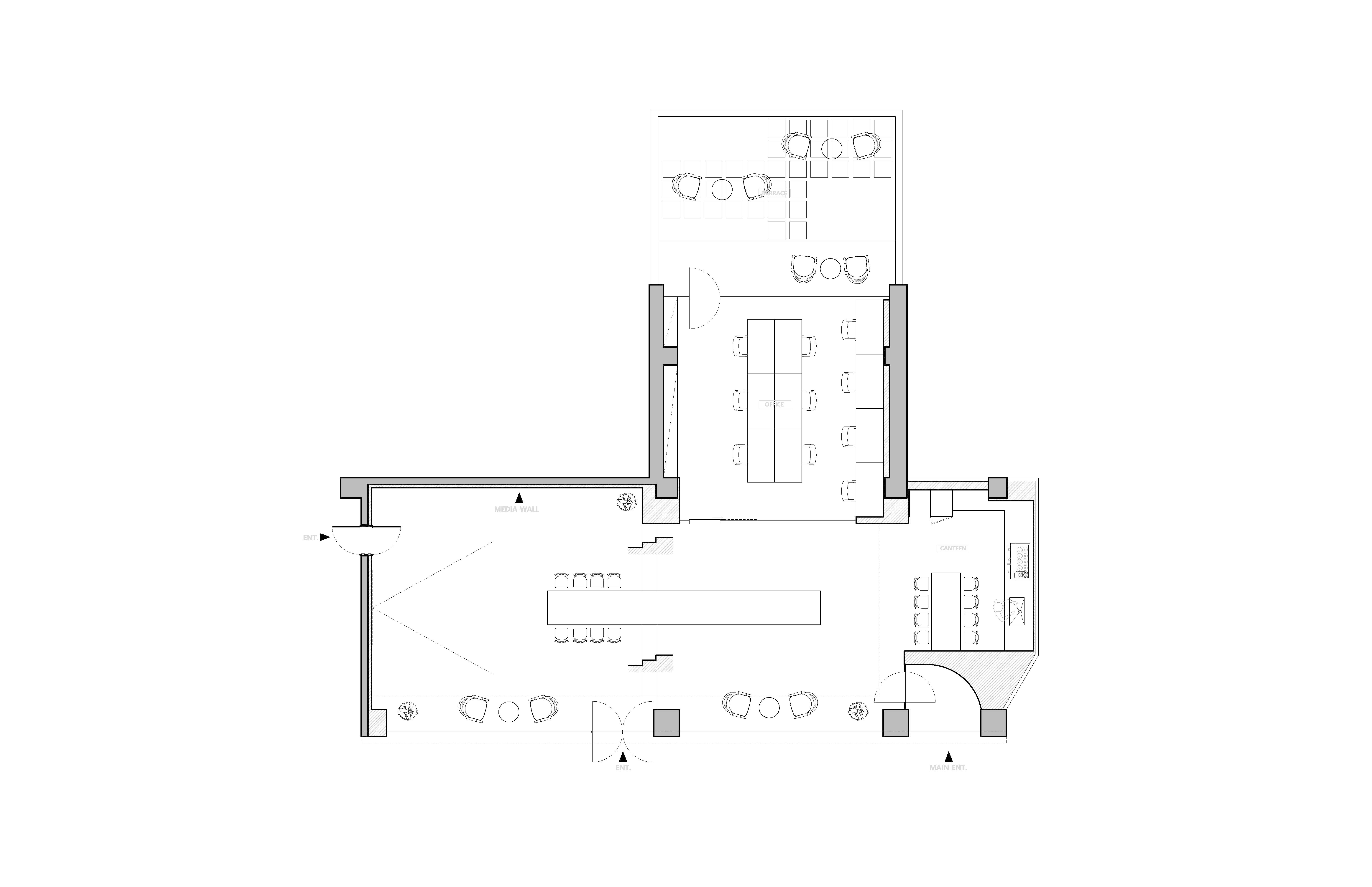
‘아이엠파인’ 이라는 의미를 더 확장시켜 얼웨이즈 파인이라는키워드를 만들었고, 이 공간 안에서는 얼웨이즈 파인 할 수 있다는 의미를 내포했다. 공간은 '수평적인 연속된 선' 이라는 키워드를 통해 의미가 확장되어 구성된다. 공간의 주요 마감재이기도한 특수가공 천연대리석은 반복적인 선을 통해 패턴을 만들었다. 공간은 높낮이 차이로 인해 둘로 나뉘어진 모습을 볼 수 있는데 높낮이로 인해 둘로 나뉜 공간을 대형 콘크리트 테이블을 통해 수평적으로 이어주며, 회사의 방향성을 보여주는 핵심 오브제이기도 한다.

The essence of office space is that it is a space for the company to conduct business. However, if we think a little deeper, we can say that office space is a space that can strengthen the company's direction and sense of belonging. We wanted to express the values of the company I Am Fine through space branding.
By further expanding the meaning of ‘I am Fine’, we created the keyword Always Fine, which implies that you can always be Fine within this space. Space is constructed by expanding its meaning through the keyword ‘horizontal continuous line’. Specially processed natural marble, which is the main finishing material of the space, creates patterns through repetitive lines. You can see that the space is divided into two due to the height difference. The large concrete table connects the two spaces horizontally, and is also a key object that shows the company's direction.









건축가 오롯이스튜디오
위치 서울시 마포구 잔다리로 31 제우피스빌딩
용도 사무실 및 미디어 쇼룸
대지면적 213.5㎡(실내, 테라스, 외관만 해당)
디자인팀 오롯이스튜디오
시공 오롯이스튜디오
발주자 오롯이스튜디오
사진작가 최영준
'Interior Project > Office' 카테고리의 다른 글
| MASONPRINCE Shenzhen Office (0) | 2024.03.12 |
|---|---|
| Studio by the hill (0) | 2024.02.16 |
| Wonderlab Headquarters Office (0) | 2023.09.26 |
| EXEO (0) | 2023.09.25 |
| LINGXING HEADQUARTERS OFFICE (0) | 2023.08.23 |
마실와이드 | 등록번호 : 서울, 아03630 | 등록일자 : 2015년 03월 11일 | 마실와이드 | 발행ㆍ편집인 : 김명규 | 청소년보호책임자 : 최지희 | 발행소 : 서울시 마포구 월드컵로8길 45-8 1층 | 발행일자 : 매일



