
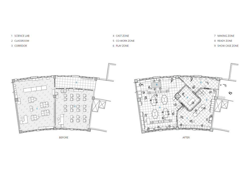
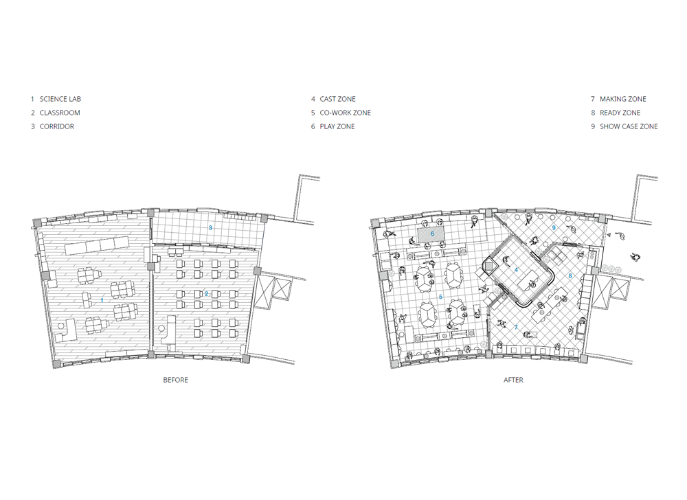
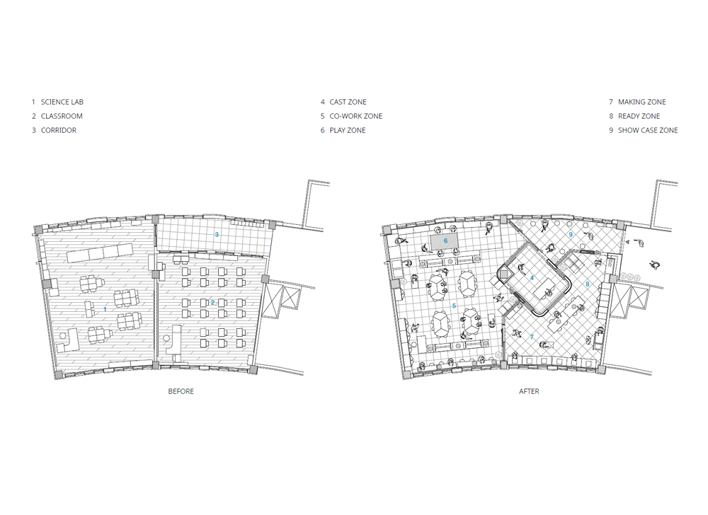
드림 스페이스 이음은 서울 청량초등학교 내 빈 교실 1개와 과학실을 활용하여 학생들을 위한 메이커 스페이스로 재탄생한 공간이다. 개선 전의 공간은 스마트교실과 관련한 전자 제품, 기계, 이동식 가구 등의 기자재들이 혼재하여 산만한 공간이었다. 건축가는 단순히 노후화된 시설의 교체 공사를 넘어서 제한된 공간 내에서 이루어질 다양한 성격의 수업과 활동을 조직적으로 담아내고자 했다. 이 시대의 ‘배움’이라는 의미와 방법에 근본적인 질문을 던지고 재정의하며, 이전의 일방적이고 집단적인 교육 방식에서 벗어나 현시대가 향유하는 기술을 바탕으로 다차원적인 교육 경험을 제공할 수 있는 공간을 의도했다. 드림 스페이스 이음에서 학습은 곧 휴식과 놀이가 된다. 책걸상에서의 단조로운 수업 방식에서 벗어나 학생들의 자유로움을 통해 사고의 영역을 확장한다.
건축가는 학교 구성원들과 공간 이용 시나리오를 상상하고 만들며 공간을 효과적으로 사용할 수 있는 방안을 고민했다. 기존의 학급 단위로 교실을 나누고 있는 벽을 허물고, 하나의 통합된 공간을 시작으로 프로그램을 재배치했다. 학생들의 사용에 따라 드림 스페이스 이음의 공간은 ‘Making Zone’, ‘Co-work Zone’, ‘Play Zone’, ‘Cast Zone’, ‘Showcase Zone’으로 나뉜다. 전체 공간이 지지하는 구조 기둥을 중심으로 대각선 방향을 향해 시각적으로 열리고, 모서리가 둥근 박스를 안으로 끌어들였다. 그 중심에 자리 잡은 ‘Cast Zone’은 방송 스튜디오 공간으로 기능하며 인접한 실들과 연계된다. 콘텐츠 제작, 온라인 수업, 회의, 소규모 세미나 등 다목적 공간을 지원하는 교집합적인 성격의 공간으로 그룹 활동, 개인 활동 등을 유동적으로 지원한다.

Dream Space I-Eum is a renovation within the Seoul Cheongryang Elementary School, utilizing one vacant classroom and a science lab to create a maker space for students. The original classroom and lab were cluttered with electronic devices, machinery, and movable furniture associated with smart classrooms. The architect wanted to go beyond simply replacing the outdated facilities and sought to organize a variety of classes and activities within the limited space. The intent was to question and redefine the meaning and methods of "learning" in this era, moving away from the one-sided and collective teaching methods of the past. The goal was to create a space that could offer a multidimensional educational experience based on the technologies enjoyed by contemporary society. In Dream Space I-Eum, learning becomes synonymous with relaxation and play. It moves away from the monotonous desk-bound teaching methods and expands thinking through the freedom of students.
The architect envisioned and created scenarios for space utilization in collaboration with school members to plan ways to use the space effectively. The existing walls dividing classrooms were removed, and a single integrated space served as the starting point for a reconfiguration of programs. Depending on the requirements for student use, Dream Space I-Eum is divided into “Making Zone,” “Co-work Zone,” “Play Zone,” “Cast Zone,” and “Showcase Zone.” The entire space visually opens diagonally towards a structure-supporting central pillar, drawing rounded-edge boxes inward. The “Cast Zone” at the center functions as a broadcasting studio and is connected to adjacent rooms. Serving as a versatile, convergent area supporting such activities as content creation, online classes, meetings, and small seminars, it dynamically facilitates group and individual activities.











건축가 김병찬(한국예술종합학교) + 건축사사무소 리스모스
위치 서울특별시 동대문구 회기로25길 31
연면적 212.19㎡
준공 2022. 7.
대표건축가 김병찬, 김유진
디자인팀 김다현, 이수빈
발주자 청량초등학교
사진작가 신해수
해당 프로젝트는 건축문화 2023년 10월호(Vol. 509)에 게재되었습니다.
The project was published in the October, 2023 recent projects of the magazine(Vol. 509).
October 2023 : vol. 509
Contents : Records Build the Future City through ‘Land Architect’, The 4th Seoul Biennale of Architecture and Urbanism 2023 땅의 건축으로 미래의 도시 모습을 그리다, 서울도시건축비엔날레 Another ‘Scale’ of 15-year Journey
anc.masilwide.com
'Architecture Project > Education' 카테고리의 다른 글
| Deoksan Middle School Shelter (0) | 2024.01.18 |
|---|---|
| Seong-am International Trade High School Forest Library (0) | 2024.01.17 |
| The Sports Pavilion of Eça de Queirós Secondary School (0) | 2024.01.05 |
| 30TH ANNIVERSARY OF MEIKEI HIGH SCHOOL / AGORA HALL (0) | 2023.09.12 |
| HIGASHITATEISHI NURSERY SCHOOL (0) | 2023.08.25 |
마실와이드 | 등록번호 : 서울, 아03630 | 등록일자 : 2015년 03월 11일 | 마실와이드 | 발행ㆍ편집인 : 김명규 | 청소년보호책임자 : 최지희 | 발행소 : 서울시 마포구 월드컵로8길 45-8 1층 | 발행일자 : 매일



