
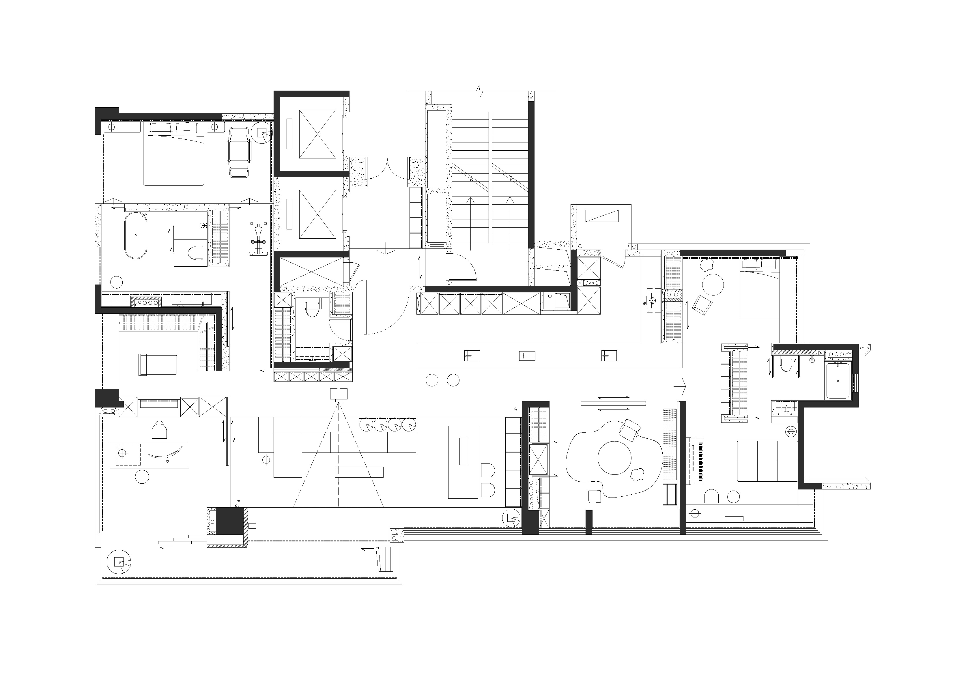
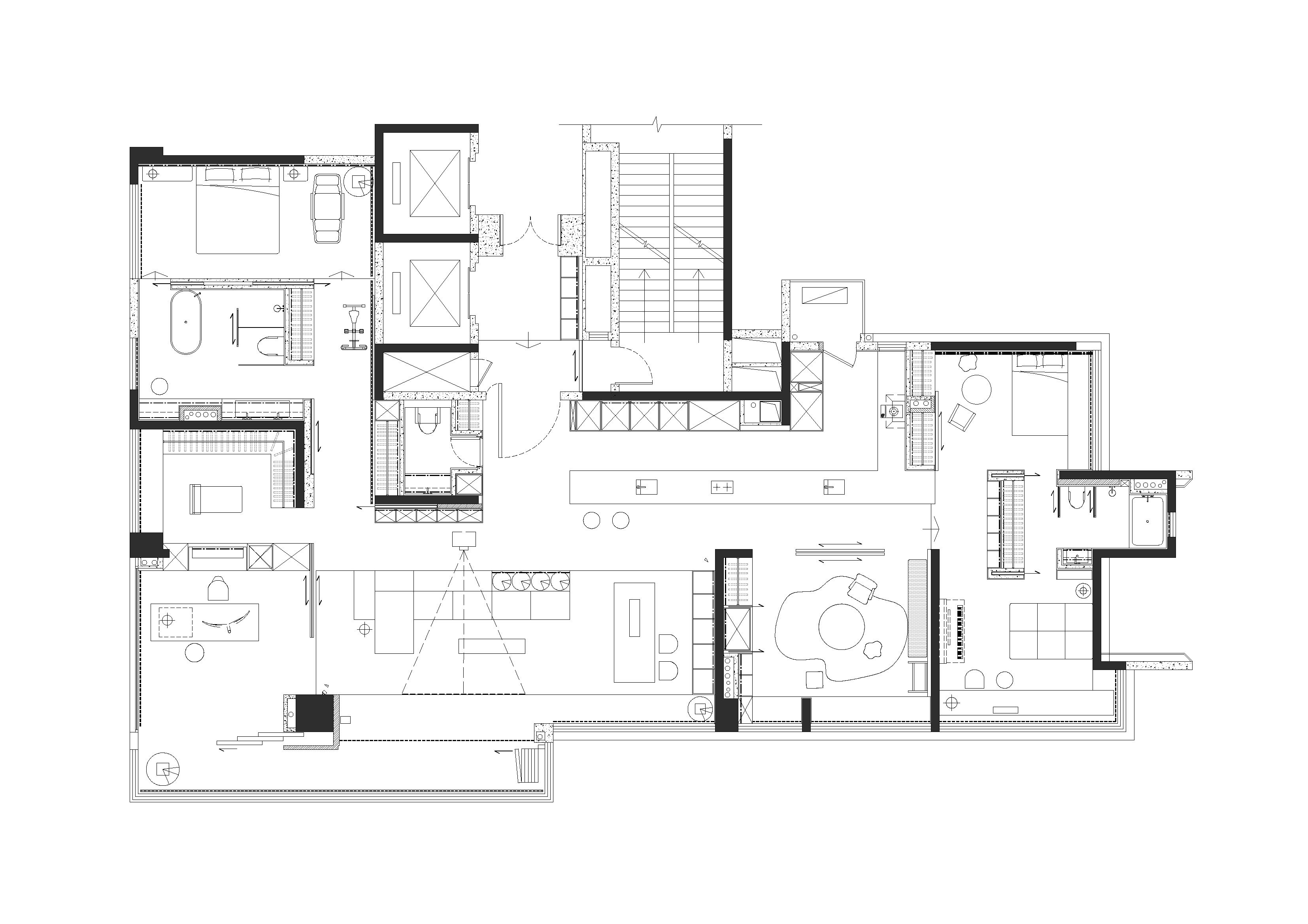
건축가 에반스 리는 미니멀리즘 주거 건물의 디자인과 연구에 집중해 왔다. 포산 폴리 달빛 만은 인문학적인 감수성과
공간 사이의 자연스러운 상호 작용을 강화하는 종합적인 공간을 보여 준다. 건축가가 선보인 이상적인 집은 주거 공간에
머무르는 사용자들의 상호 작용과 시야의 흐름, 동선의 흐름이 자연스럽게 형성되는 공간이다. 9m의 아일랜드 플랫폼을
중심으로 한 공용 공간은 거실, 주방, 공부방, 다용도실, 아이 방 사이의 가시성이 뚜렷하게 드러낸다. 이러한 열린 공간은
부모는 식사를 준비하며 거실과 공부방의 자녀들을 살펴볼 수 있고, 다목적실의 가족들과 의사소통하는 데도 방해받지
않게 한다. 내부에 주요하게 사용된 하얀색의 톤은 현대의 미니멀리즘을 구현하며 상상의 여지를 남기고, 심플한 선과
독특한 조명 디자인은 예술적인 디자인의 풍부함을 나타낸다. 공간의 중간에 삽입된 목재 캐비닛과 다이닝바의 심플한
목재 리듬은 단순한 공간에서 독특하고 흥미로운 미묘한 변화를 만든다.

Architect Evans Lee has been focusing on research and the design of minimalist residential buildings. The Foshan Poly Moonlight Bay residence demonstrates a comprehensive plan that enhances the natural interaction between humanistic sensibilities and space. The ideal home presented by the architect is where the interactions of users dwelling in the residential space, the flow of perspectives, and the flow of movement are naturally formed. The common area, centered around a 9m island platform clearly reveals the visibility between the living room, kitchen, study, multipurpose room, and children's room. This open space allows parents to prepare meals while keeping an eye on their children in the living room and study, and facilitates communication with family members in the multipurpose room without disruption. The predominant use of white tones in the interior embodies contemporary minimalism, leaving room for imagination, while simple lines and a unique lighting design express the richness of artistic design. The simple wooden rhythm of the inserted wooden cabinet and dining bar in the middle of the space creates subtle and interesting nuances, adding a unique touch to the otherwise straightforward design.












건축가 Evans Lee Interior Design Co., Ltd.
위치 중국, 포산, 난하이
면적 280㎡
준공 2023. 4.
대표건축가 Evans Lee
디자인팀 Kevin, Krismile, UU, Jay
협업사 WAZZOR Systematic Window & Door, LAK Stylish European Flooring, PALCCOAT, TOPY LIFE
사진작가 Jiangnan, SHANR
해당 프로젝트는 건축문화 2023년 9월호(Vol. 508)에 게재되었습니다.
The project was published in the September, 2023 recent projects of the magazine(Vol. 508).
September 2023 : vol. 508
Contents : Records Architecture, Built from Empathy and Respect 이해와 존중을 바탕으로 지어지는 건축물들 Sketch Out the Urban Regeneration of Jinju, The 2nd 2023 Jinju Architecture Festival 진주 도시재생의 밑그림을 그리다,
anc.masilwide.com
'Interior Project > Residential' 카테고리의 다른 글
| Casa Alto de Pinheiros Apartment (0) | 2024.02.09 |
|---|---|
| MAISON MOLAIRE (0) | 2024.02.02 |
| Villa in Western Suburb of Shanghai (0) | 2024.01.03 |
| JUNGHEUNG THE TERRACE APARMENT (0) | 2023.12.28 |
| Posco the Sharp Apartment (0) | 2023.10.19 |
마실와이드 | 등록번호 : 서울, 아03630 | 등록일자 : 2015년 03월 11일 | 마실와이드 | 발행ㆍ편집인 : 김명규 | 청소년보호책임자 : 최지희 | 발행소 : 서울시 마포구 월드컵로8길 45-8 1층 | 발행일자 : 매일



