
브라티슬라프스카 51 주거시설은 저소득층을 위한 임대주택 개발 프로젝트다. 합리적인 비용으로 취약 계층과 청년층에게 높은 삶의 질을 보장하는 것이 최우선 목표였다. 체코 브르노시 도심에는 전쟁 이전 미완성된 주거시설이 남겨진 거리가 있다. 브르노 브롱크스라 불리는 이 거리는 이전의 모습에서 벗어나 현대적인 주거 지역으로 탈바꿈 중이다.
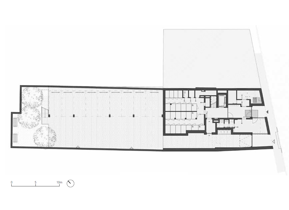
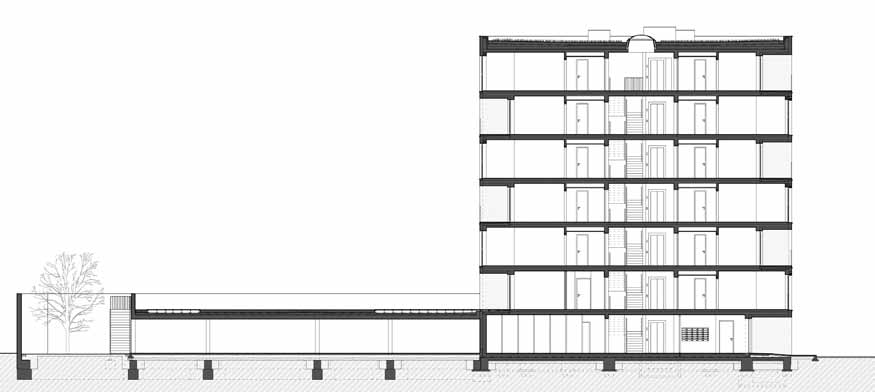
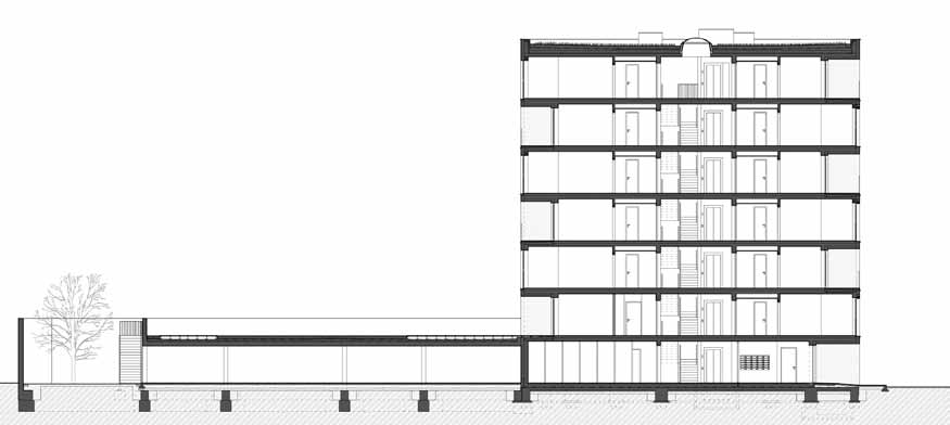
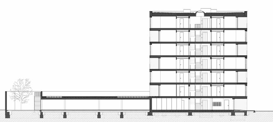
건물의 형태와 높이는 대지 및 주변 건물과 조화롭게 어우러진다. 단순한 모놀리스 형태의 매스이지만 깊이와 크기가 다른 발코니와 창문을 번갈아 적용하여 리듬감을 주었다. 건축비를 절감하기 위해 디테일이 최소화된 디자인과 합리적인 비용의 재료를 선정하면서도, 공간 사용의 효율성도 챙겼다. 1층의 주 출입구는 도로에서 직접 연결되고, 2층과 3층에는 각각 차고와 공용 공간을 두었다.
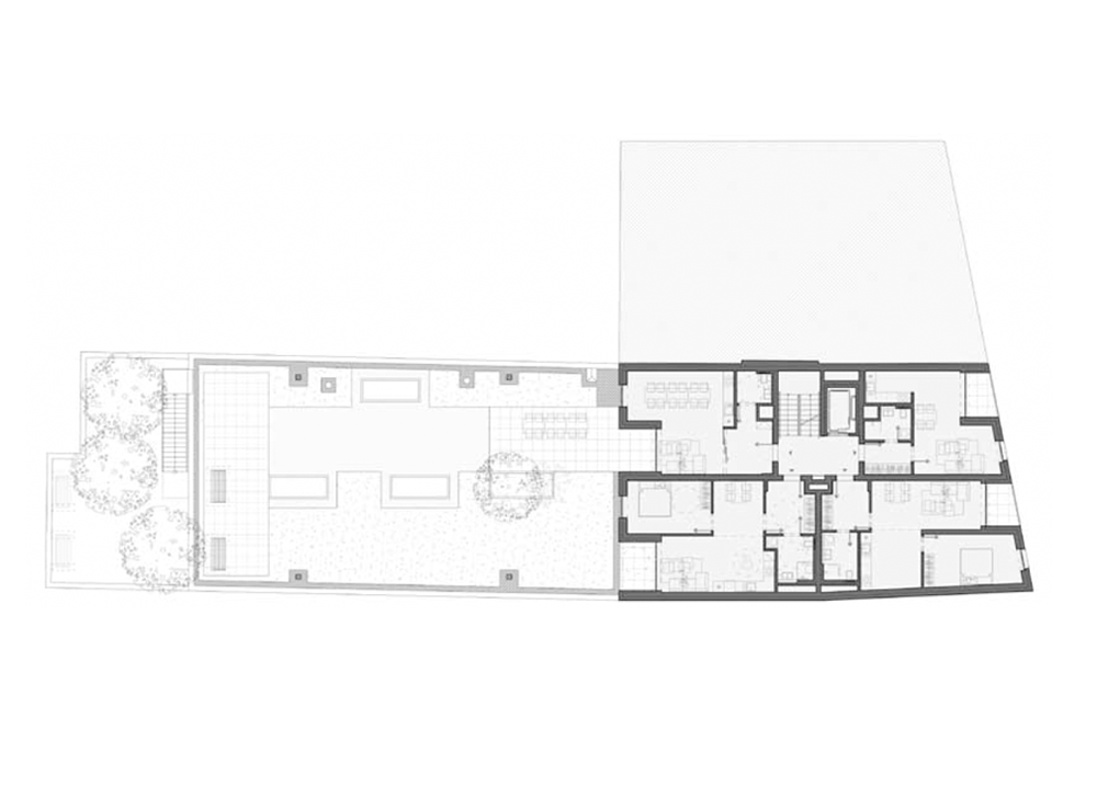
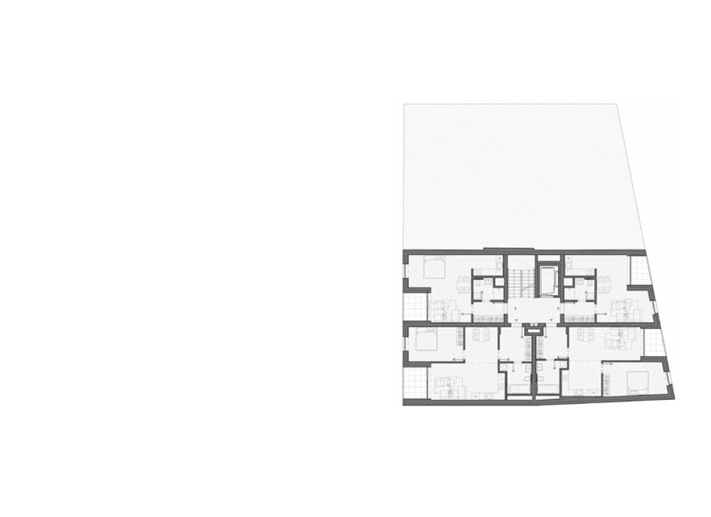
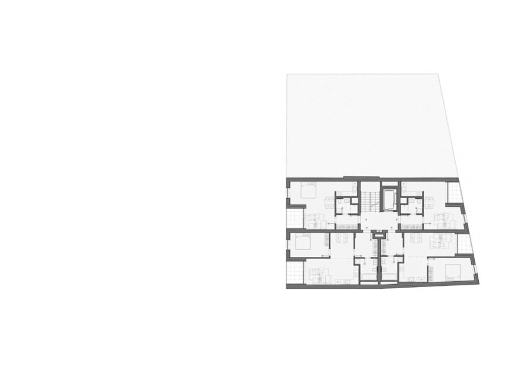
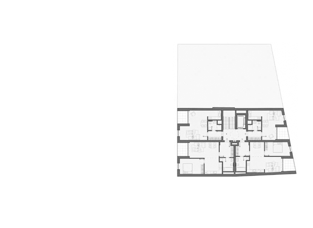
거동이 불편한 취약 계층을 위한 배리어 프리 계획은 프로젝트의 주요 요소다. 3층부터 7층까지 이어지는 주거 공간 중 파티오에 면한 넓은 유닛은 거동이 불편한 입주민들을 위해 계획했다. 최상층과 차고는 녹화 계획을 적용한 평지붕으로, 이곳에서 모인 우수는 지하의 탱크에 저장한 후 옥상정원의 관개로 재활용한다.

Apartment Block Bratislavská 51 is a rental housing development project for low-income people. The main goal was to ensure a high quality of life for vulnerable groups and young people at a reasonable cost. In the city center of Brno, Czech Republic, there is a street with unfinished residential facilities left behind from before the war. This street, called the Brno Bronx, is being transformed from its former state into a modern residential area.
The form and height of the building blends harmoniously with the site and neighboring buildings. The mass, a simple monolithic form, is given a sense of rhythm with the alternation of balconies and windows of different depths and sizes. To reduce construction costs, a design with minimal details and low-cost materials was selected, while also ensuring efficiency in use of space. The main entrance on the first floor is directly connected to the street, while a garage and a common area are planned on the second and third floors, respectively.
Barrier-free planning for vulnerable groups with limited mobility is a key element of the project. Among the residential spaces extending from the third to the seventh floor, the spacious units facing the patio were designed for residents with reduced mobility. The top floor and garage have flat roofs with a greening plan, and rainwater collected here is stored in an underground tank and recycled for irrigation of the rooftop garden.















건축가 CL3
위치 체코, 브르노
용도 주거시설
대지면적 702㎡
건축면적 600㎡
연면적 2,614㎡
규모 지상 7층
설계기간 2017 - 2020
준공 2022
디자인팀 Roman Gale, David Bures, Radek Pasterný
구조컨설턴트 Babka a Suchma
구조엔지니어 Petr Duchác
기계엔지니어 TPS projekt
전기엔지니어 TPS projekt
소방엔지니어 Radim Staviar
인테리어 Holky rády architektur
시공 IMOS Brno
발주자 체코 브르노시
사진작가 Tomásš Slavík, Barbora Kudelová
해당 프로젝트는 건축문화 2023년 9월호(Vol. 508)에 게재되었습니다.
The project was published in the September, 2023 recent projects of the magazine(Vol. 508).
September 2023 : vol. 508
Contents : Records Architecture, Built from Empathy and Respect 이해와 존중을 바탕으로 지어지는 건축물들 Sketch Out the Urban Regeneration of Jinju, The 2nd 2023 Jinju Architecture Festival 진주 도시재생의 밑그림을 그리다,
anc.masilwide.com
'Architecture Project > Multifamily' 카테고리의 다른 글
| Marlim D. João IV (0) | 2024.01.09 |
|---|---|
| CasaNova (0) | 2023.12.18 |
| Stay High (0) | 2023.12.14 |
| Kubomi Apartments: A Pocket in the City (0) | 2023.12.07 |
| Jonas (0) | 2023.10.18 |
마실와이드 | 등록번호 : 서울, 아03630 | 등록일자 : 2015년 03월 11일 | 마실와이드 | 발행ㆍ편집인 : 김명규 | 청소년보호책임자 : 최지희 | 발행소 : 서울시 마포구 월드컵로8길 45-8 1층 | 발행일자 : 매일



