
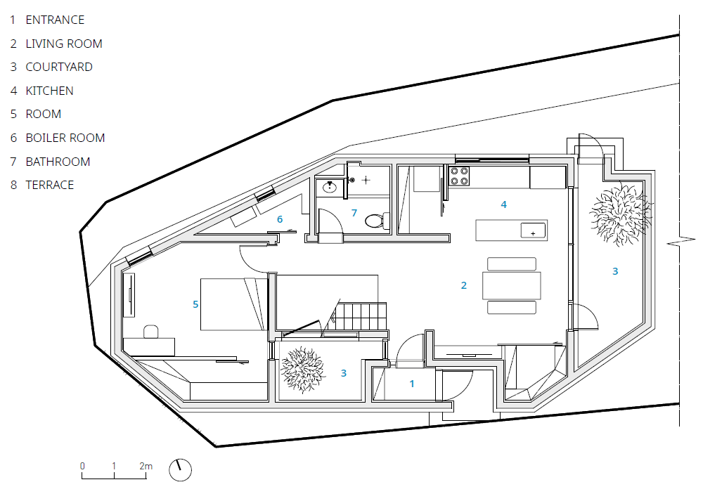
중정형 주택은 외부적 시선에 대한 제한적 열림과 내부 공간에서의 소통이 조화롭게 이루어지는 현대적인 주택 스타일이다. 고모동 주택은 프라이버시를 유지하면서도 가족들 사이의 교류를 촉진하며 외부의 환경을 선택적으로 내부로 끌어들이도록 시도한 작업이다. 본 주택은 외부적 시선에 대한 열림과 내부 공간에서의 소통이 조화롭게 존재하는 공간을 목표로 했다.
고모동 주택은 프라이버시를 보호하기 위한 요새형 주택의 개념을 새롭게 재해석했다. 외부에는 주택을 둘러싼 견고한 담벼락이 높게 설치되어 개인 정보를 보호하고 프라이버시를 보장한다. 이 담벼락은 외부적 시선을 차단하여 가족들이 안락하고 안전한 공간에서 삶을 즐길 수 있도록 한다. 담은 건축을 구성하는 벽과 일체화되었다. 벽의 개구부로 인해 주택 내부에서는 중정을 중심으로 한 개방적인 구조를 가진다. 중정은 주택 내부로 햇살과 자연적인 채광을 유입시키는 역할을 한다. 이를 통해 실내 공간은 밝고 쾌적한 분위기를 갖추게 되며 가족들은 자연과의 조화를 느끼며 생활할 수 있다. 중정 주변에는 거실, 다목적 공간, 주방 등이 배치되어 가족들이 모여 소통하고 시간을 보낼 수 있는 활동공간이 조성된다. 가족들은 중정을 중심으로 한 개방적인 구조를 통해 서로의 존재를 인지하고 소통할 수 있다. 공용 공간이나 거실, 테라스는 가족들이 모여 소통하고 즐길 수 있는 장소이다. 개별 공간들은 연결된 통로를 통해 유기적으로 이어져 있어 가족들과의 교류가 자연스럽게 이루어진다.
외부적 시선에 대한 열림은 넓은 창과 담장과 일체화된 벽의 열린 개구부를 통해 구현된다. 담장은 시선과 동선을 막기 위한 목적이 강하지만, 벽은 문과 창을 통해 그 의미를 가지게 된다. 고모동 주택의 담장은 담장의 역할과 벽의 역할을 혼용하여 외부 자연의 풍경과 조명이 실내로 스며들어 오게 하고, 외부환경과의 시각적 연결을 통해 패쇄적인 내부 공간의 인상을 상쇄한다.












건축가 최준영 아키 앤 디자인
위치 대구광역시 수성구 고모동 398-3
용도 단독주택
대지면적 203㎡
건축면적 97.28㎡
연면적 146.52㎡
규모 지상 2층
건폐율 47.92%
용적률 72.18%
설계기간 2020. 9. - 12.
시공기간 2021. 6. - 11.
준공 2022. 1.
대표디자이너 최준영
시공 수앤빈 주식회사
사진작가 윤동규
해당 프로젝트는 건축문화 2023년 7월호(Vol. 506)에 게재되었습니다.
The project was published in the July, 2023 recent projects of the magazine(Vol. 506).
July 2023 : vol. 506
Contents : Records First Step in Pre-Planning, Change Future School with User Participatory Design 사전기획의 첫걸음, 사용자 참여 디자인으로 내일의 학교를 바꾸다 Look Forward to 100 Years: Songpa Public Housing Design Competition
anc.masilwide.com
'Architecture Project > Single Family' 카테고리의 다른 글
| House in Yokohama (0) | 2023.10.25 |
|---|---|
| Sky Vessel House (0) | 2023.10.24 |
| OUCHI-46 (0) | 2023.09.22 |
| SKEW HOUSE (0) | 2023.09.21 |
| GOKURAKUJI HOUSE (0) | 2023.09.18 |
마실와이드 | 등록번호 : 서울, 아03630 | 등록일자 : 2015년 03월 11일 | 마실와이드 | 발행ㆍ편집인 : 김명규 | 청소년보호책임자 : 최지희 | 발행소 : 서울시 마포구 월드컵로8길 45-8 1층 | 발행일자 : 매일



