
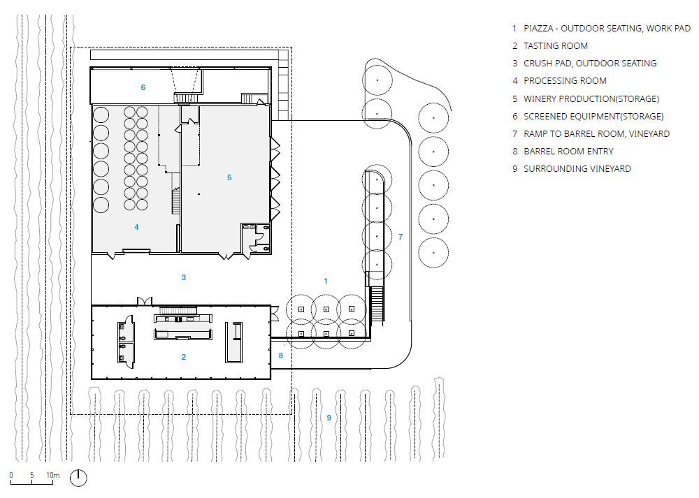
오리건주 포도주 산지의 중심부에 자리 잡은 푸리오소 포도밭은 와인 양조장과 다양한 저장소를 포함하여 단절된 구조물들이 늘어서 있던 곳이다. 이번 와이너리 리노베이션은 기존의 공간에 새로운 시음실과 공공 어메니티 공간을 더하여 서로 다른 스타일과 자재로 지어진 와이너리의 정체성을 확실하게 보여주기 위함이다. 새로운 와이너리 공간은 넓은 포도밭의 경관과 와인을 제조하는 과정을 제대로 보여주면서 사용자의 경험을 풍부하게 만들어 준다. 공간의 요소들은 우아한 조화를 이룬다.
주요 와이너리의 공간은 삼나무로 만들어진 스크린이 둘러싸고 있다. 이 스크린 벽은 빛에 따라 투명하기도 하고, 불투명해 보이기도 한다. 새로운 시음실은 사방이 유리로 감싸져 있어 주변 언덕의 전경을 한눈에 볼 수 있다. 주방과 욕실 등의 기타 공간은 시음실 공간의 안쪽으로 배치되어 있고 전면으로는 확실하게 열린 뷰를 가질 수 있게 설계했다. 와이너리와 시음실 사이에 자리 잡은 통나무집은 복합적인 기능을 하는 외부 공간으로 인접한 두 시설 모두에 귀중한 공간을 제공하는 동시에 주변의 포도밭을 구성한다. 수확 철에 와인 양조장에서 숙박을 할 수 있는 공간인 로지아도 마련되어 있다. 여름 동안 통나무집은 모임과 행사를 위한 공공 공간이 된다. 통나무집의 안뜰이자 광장은 현재 기존의 거주지와 확장된 와이너리 사이에 놓여 있다. 광장의 남쪽 끝은 포도밭 위로 올라가 건물 입구에서 접근할 때 극적인 지평선을 형성한다.
포도밭을 둘러싼 이 핵심 공간의 가장 중요한 요소는 지붕일 것이다. 오래된 요소들과 새로운 요소들이 결합하여 만들어져 있기 때문이다. 특히, 시음실을 덮고 있는 현대식 지붕은 4인치가 뻗어 나온 캔틸레버 구조의 골판지 강철 지붕이다. 지붕 사이로 공기와 빛이 자유롭게 통과할 수 있으며, 여름에는 캔틸레버의 지붕이 유리로 둘러싸인 시음실의 햇빛을 완벽하게 차단한다. 기존의 목구조의 지붕과 새로운 현대식 지붕이 공존하는 이 공간은 이제 푸리오소 포도밭의 상징이 될 것이다.











건축가 Waechter Architecture
위치 미국, 오리건주, 던비
용도 양조장
대표건축가 Ben Waechter
프로젝트건축가 Rand Pinson
디자인팀 Ben Waechter, Rand Pinson
구조엔지니어 Richmond So Engineers, Inc
기계전기설비소방엔지니어 Interface Engineering
조경설계 Randy Katz
조명설계 Interface Engineering
시공 CD Redding
발주자 Furioso Vineyards
사진작가 Lara Swimmer
해당 프로젝트는 건축문화 2023년 7월호(Vol. 506)에 게재되었습니다.
The project was published in the July, 2023 recent projects of the magazine(Vol. 506).
July 2023 : vol. 506
Contents : Records First Step in Pre-Planning, Change Future School with User Participatory Design 사전기획의 첫걸음, 사용자 참여 디자인으로 내일의 학교를 바꾸다 Look Forward to 100 Years: Songpa Public Housing Design Competition
anc.masilwide.com
'Architecture Project > Infrastructure' 카테고리의 다른 글
| Colorful Wangjing (0) | 2023.11.28 |
|---|---|
| Timber Bridge in Gulou Waterfront (0) | 2023.11.01 |
| Vertical Urban Farm (0) | 2023.09.19 |
| Sasalı Biolab (0) | 2023.09.14 |
| Agrotopia (0) | 2023.09.13 |
마실와이드 | 등록번호 : 서울, 아03630 | 등록일자 : 2015년 03월 11일 | 마실와이드 | 발행ㆍ편집인 : 김명규 | 청소년보호책임자 : 최지희 | 발행소 : 서울시 마포구 월드컵로8길 45-8 1층 | 발행일자 : 매일



