
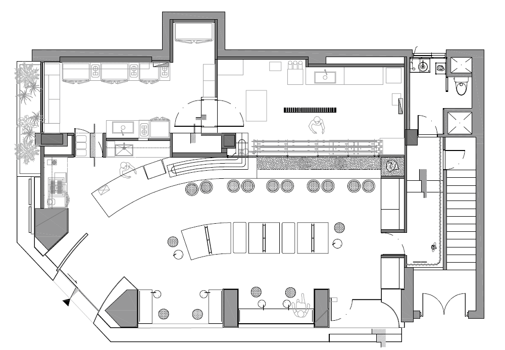
‘식물성’은 스마트 팜을 운영하는 회사 엔씽(N.THING)의 상품을 개인 고객 단위로 확장하기 위한 브랜드 스토어로 계획됐다. 지구와 화성 사이, 가상의 별과 우주의 공간을 컨셉으로 하여 도심 한가운데에 마련한 스마트 팜 공간을 마련한데는 고객들에게 새로운 경험을 제공하고자 하는 사업주의 가치가 담겨있다.
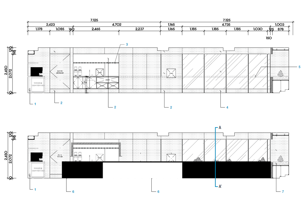
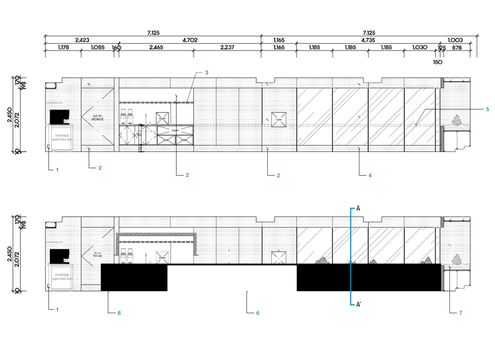
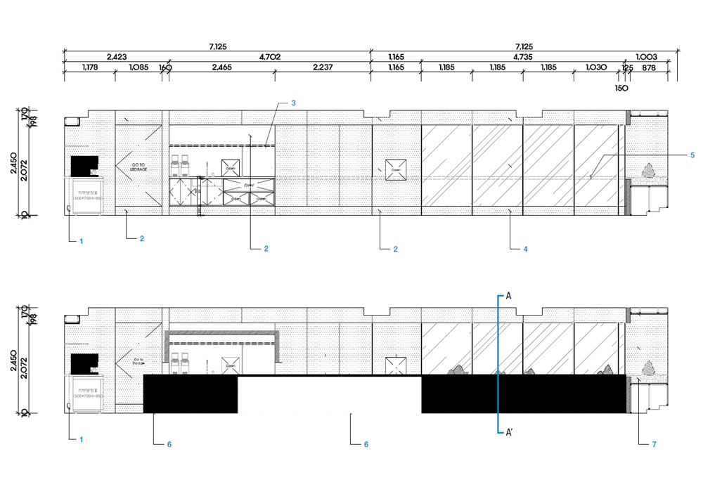
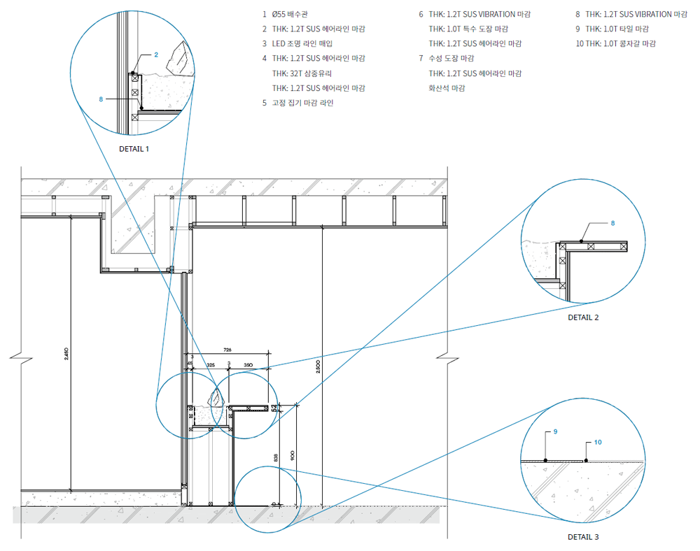
디자이너는 식물성의 주요 상품인 채소와 자연을 디자인 요소로 설정하고, 재배-수확-요리-식사의 일련의 과정을 한 공간에서 경험할 수 있는 공간을 의도했다. 전체적으로 붉은색과 초록색을 공간에 적용하여 청결함과 자연적인 느낌을 부각하고, 스테인레스 스틸을 사용한 가구와 화성의 붉은 모래를 연상시키는 붉은 자갈 바닥 등 마감재의 변화는 공간이 단조로워지는 것을 해소한다. 카운터 너머로 마련된 재배실은 유리 마감으로 경계를 나누었고, 시각적으로는 인공조명을 활용한 수경재배 시스템을 가감 없이 보여준다. 매장의 컨베이어 벨트는 매장에서 직접 재배한 채소를 활용한 요리를 고객에게 전달하는 장치이며, 긴 축으로 회전하고 있는 원형 접시가 마치 궤도를 도는 행성처럼 보이게 한다.














건축가 unseenbird
위치 서울특별시 강남구 압구정로42길 54
면적 140m2
규모 지하 1층, 지상 1층
시공기간 2021.2. - 2021.3.
준공 2021.4.
대표건축가 선비오
디자인팀 선비오, 신승철
시공 언씬버드
발주자 N.THING
사진작가 최용준
해당 프로젝트는 건축문화 2023년 6월호(Vol. 505)에 게재되었습니다.
The project was published in the June, 2023 recent projects of the magazine(Vol. 505).
June 2023 : vol. 505
Contents : Records ‘Design Competition’, Seoul’s Dreams to Have a Global Urbanscape 서울시, ‘디자인 공모’ 첫 도입, 세계적인 도시경관을 꿈꾸다 <SKY PROJECT> Pavilion, Open to the Seoul <하늘소所>, 서울을 향
anc.masilwide.com
'Architecture Project > Commercial' 카테고리의 다른 글
| Wushuang · Sipping Tea (0) | 2023.10.23 |
|---|---|
| Blind Alley (0) | 2023.10.20 |
| QINTANG MANSION SALES CENTER (0) | 2023.09.08 |
| PANASONIC FLAGSHIP STORE (0) | 2023.09.04 |
| CENTRAL MANSION SALES CENTER, YICHANG (0) | 2023.08.31 |
마실와이드 | 등록번호 : 서울, 아03630 | 등록일자 : 2015년 03월 11일 | 마실와이드 | 발행ㆍ편집인 : 김명규 | 청소년보호책임자 : 최지희 | 발행소 : 서울시 마포구 월드컵로8길 45-8 1층 | 발행일자 : 매일



