
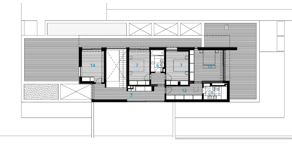
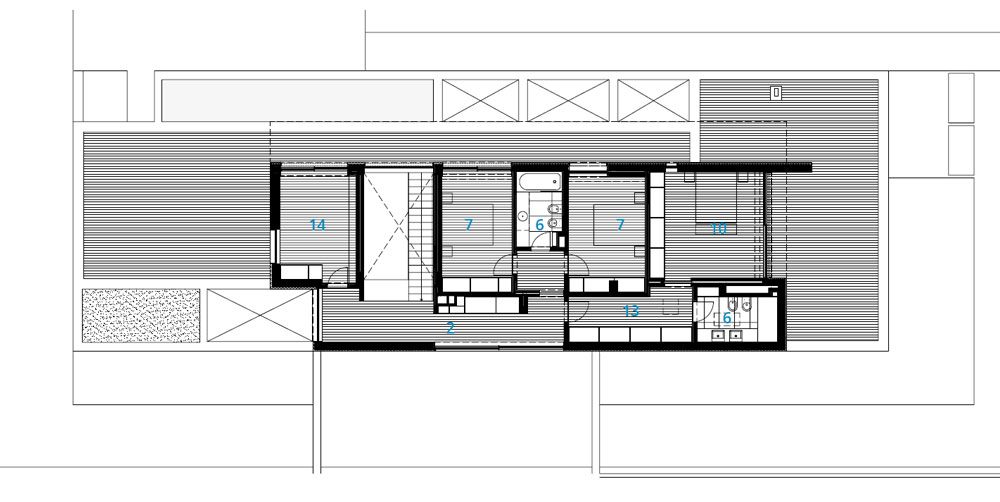
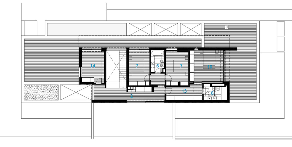
The house is located on a long and narrow plot of land, which conditioned the long shape of this building spread over two floors. The car access is carried out perpendicularly to the larger side of the land, from Maria Albertina Street, while pedestrian access takes place, to the South, on Regua Avenue, leading East, along the house to its entrance. From there, and from the entrance hall, you can access, to the South, the living rooms, the kitchen and the friends' room and to the North to the garage and gym. On the upper floor, which is smaller, there are two bedrooms with a common bathroom, the master suite and an office. The house, in a long shape, tries to make the best use of the relationship with the outside and the solar quadrant. The social and leisure areas open to the West and South, enjoying a long partially covered patio. To the East, the interior circulation takes place in a mirror with the exterior pedestrian access only separated by a large glazed area. On the upper floor, the bedrooms and the office open onto large balconies and terraces, either to the East, enjoying the morning light, or to the South. The volumetry is marked by horizontality, accentuated by the slabs and beams in white plaster, which contrast with the cladding of the walls in cement tiles, which give plasticity and animation to the set. The openings of the slabs at the 1st floor level and the large glazing complete the building's language. The conceptual idea is based on a simple, clean and almost minimalist design, as opposed to formal exaggeration and existing languages.

두 층에 걸친 긴 건물의 형태를 결정하는 길고 좁은 토지에 이 집은 위치해 있다. 차량 접근은 마리아 알베르티나 거리에서 대지의 더 넓은 면에 수직으로 이루어지며, 반면에 보행자 접근은 남쪽인 레구아 대로에서 동쪽으로 이어지고 집을 따라 입구까지 이어진다. 거기서부터 현관을 통해 남쪽으로는 거실, 부엌, 게스트방에 접근할 수 있고, 북쪽으로는 차고와 체육관에 접근할 수 있다. 작은 윗층에는 공용 욕실이 있는 두 개의 침실, 마스터 스위트룸, 및 사무실이 있다. 긴 모양의 이 집은 외부와 태양 사분원호와의 관계를 최대한 활용하려고 노력한다. 사교 및 레저 공간은 남서쪽으로 열려 부분적으로 덮힌 긴 파티오 공간을 즐길 수 있다. 동쪽으로 내부 순환은 큰 거울을 통해 이루어지는데 이는 큰 반짝 거리는 부분으로 외부 보행자 접근과 분리된다. 윗층에서는 침실과 사무실이 대형 발코니와 테라스로 연결되어 있으며, 동쪽이던 남쪽이던 아침 햇살을 즐길 수 있다. 채적은 수평적으로 표시되며, 하얀 석고로 만든 슬래브와 빔이 시멘트 타일의 벽 클래딩을 대조시켜 세트에 가소성과 생기를 제공한다. 1층 슬래브의 개구부와 대형 유리창이 건물의 언어를 완성한다. 개념적 아이디어는 형식적인 과장과 기존 언어와 대조되는, 단순하고 깨끗하며 거의 미니멀리즘적인 디자인을 기반으로 한다.















건축가 Atelier D’Arquitectura Lopes da Costa
위치 포르투갈, 오바르
연면적 390㎡
설계기간 2017 - 2018
시공기간 2019 - 2021
준공 2022
대표건축가Jose Antonio Lopes da Costa, Tiago Meireles
프로젝트건축가 Jose Antonio Lopes da Costa, Tiago Meireles
협업건축가 Rita Goncalves
엔지니어 Strumep
전기엔지니어 Projedomus
기타 전문가 Inteligentes, Lda, IRG, Inspecoes Tecnicas, S.A.
시공 A Construtora de Loureiro, Lda
사진작가 Ivo Tavares Studio
해당 프로젝트는 건축문화 2023년 5월호(Vol. 504)에 게재되었습니다.
The project was published in the May, 2021 recent projects of the magazine(Vol. 504).
May 2023 : vol. 504
Contents : Records Tadao Ando, His Challenges to Architecture 안도 타다오, 한국에서 만나는 건축을 향한 그의 도전들 Millennium Hilton Hotel in History and Development: Propose the direction for coexistence 역사와 발전 속 밀레
anc.masilwide.com
'Architecture Project > Single Family' 카테고리의 다른 글
| EARTH AND HORIZON (0) | 2023.07.25 |
|---|---|
| HOUSE ON MAPLE-TREE HILLS (0) | 2023.07.24 |
| Casa Vertical (0) | 2023.07.07 |
| Sun Heul Sup (0) | 2023.07.06 |
| Wooden Secret Base (0) | 2023.07.04 |
마실와이드 | 등록번호 : 서울, 아03630 | 등록일자 : 2015년 03월 11일 | 마실와이드 | 발행ㆍ편집인 : 김명규 | 청소년보호책임자 : 최지희 | 발행소 : 서울시 마포구 월드컵로8길 45-8 1층 | 발행일자 : 매일



