

하나의 대지에 경로당과 다원 어린이집이 존치되어 기존 다원 어린이집을 철거한 후 새롭게 개축하는 프로젝트였다.
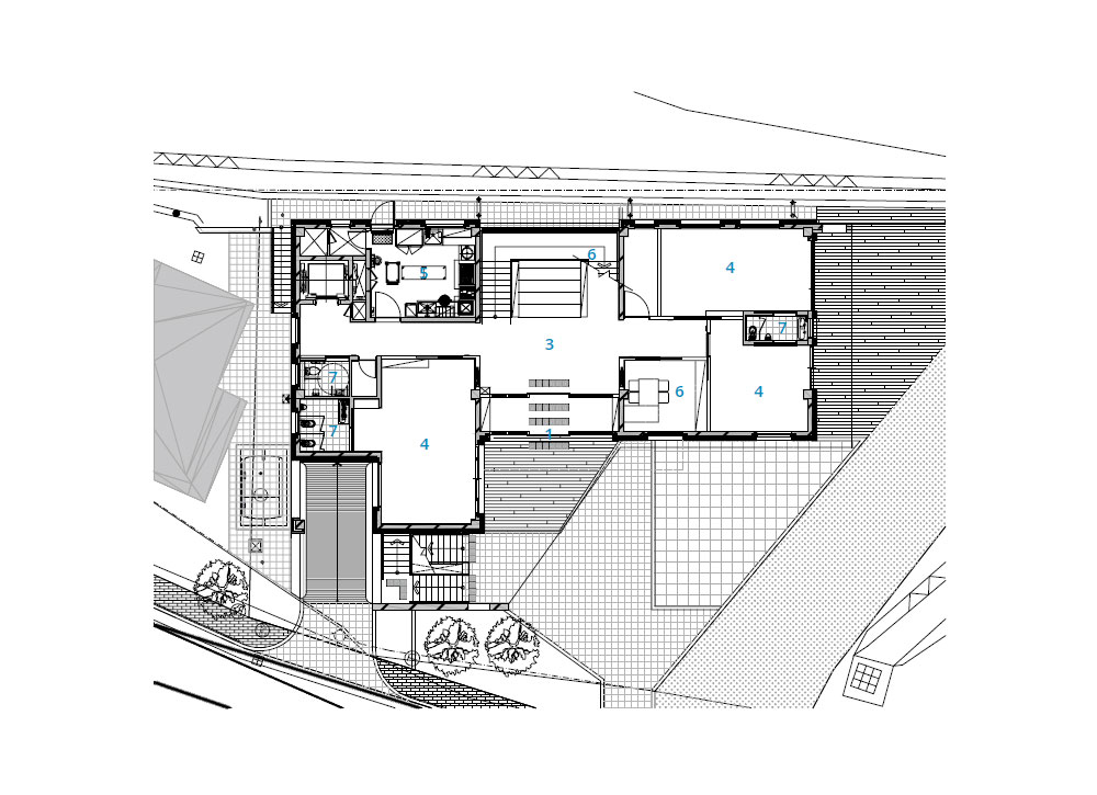
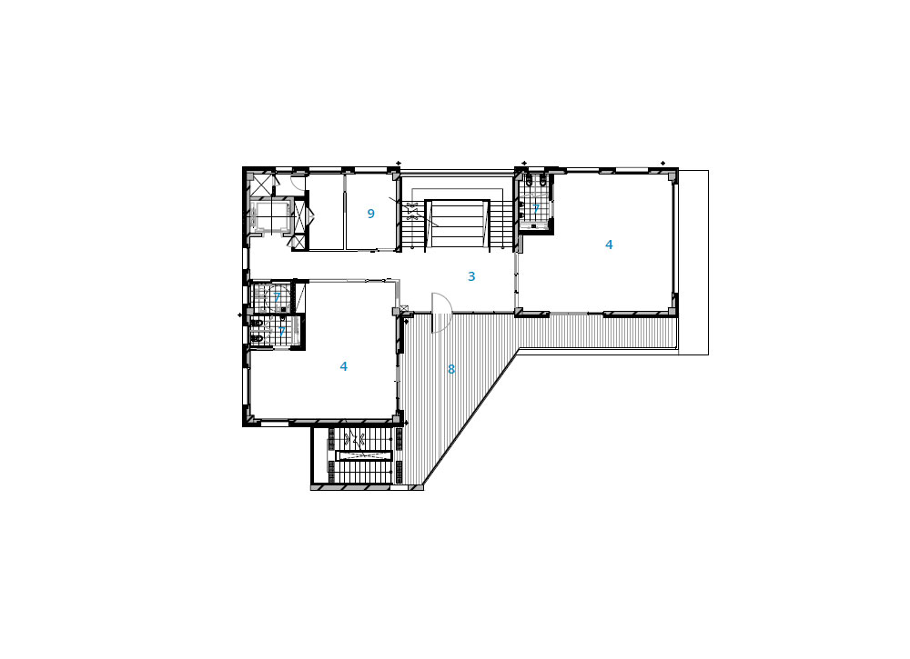
기존 다원 어린이집은 하나의 대지에 경로당과 어린이집이 존치되어 있었다. 부지는 서측 산속 막다른 6m의 미성길 도로와 인접하며, 동측과 남측은 생태공원과 연결되는 임야와 인접했다. 새로운 어린이집은 경사가 있는 6m 도로에서 보행자 동선과 차량 동선을 분리했고, 단차를 이용하여 일부 개방된 지하주차장를 계획했다. 주출입구 쪽에는 다양하고 개방적인 외부공간인 옥외 놀이터가 있다. 1층의 주진입부 근처에는 진입마당이, 보육실과 가까운 곳에는 전용마당이 있다. 홀과 계단실을 중심으로는 뒷산과 연결되어 주변과 소통하는 열린 배치 및 개방적인 공간이 펼쳐진다. 2층과 3층 외부데크는 홀과 연결되어 홀에서 열린 풍경을 볼 수 있으며, 아이들의 외부 놀이공간으로도 사용된다. 뿐만 아니라, 외부데크는 피난계단까지 연결되어 피난통로의 역할도 한다. 홀을 중심으로 계단과 외부테크는 뒷산과 남측 생태공원으로 열린 시야를 확보했다. 3층의 유희실은 경사지붕 측면 창으로 들어오는 햇살로 빛이 가득한 공간이 된다.
입면은 맞은편에 있는 아파트로 인해 가로 경관을 저해하는 획일적 디자인이나 과장된 디자인, 폐쇄적인 디자인을 지양했다. 주변 지역의 건축물 규모, 높이와 조화를 이루면서도, 저층부 외부 공간은 이용자, 보행자를 위해 개방적으로 열려 있는 어린이집이다.













건축가 건축사사무소 유피이엠
위치 서울특별시 관악구 신림동 1563-15
용도 노유자시설(어린이집)
대지면적 180.34㎡
건축면적 108.00㎡
연면적 432.00㎡
규모 지하 1층, 지상 3층
건폐율 59.89%
용적률 179.66%
설계연도 2020
시공기간 2021. 6. - 2022. 6.
준공 2022. 6.
대표건축가 채순화
프로젝트건축가 채민철, 최재혁, 강민희
발주자 서울특별시 관악구청
사진작가 김창묵
해당 프로젝트는 건축문화 2023년 5월호(Vol. 504)에 게재되었습니다.
The project was published in the May, 2021 recent projects of the magazine(Vol. 504).
May 2023 : vol. 504
Contents : Records Tadao Ando, His Challenges to Architecture 안도 타다오, 한국에서 만나는 건축을 향한 그의 도전들 Millennium Hilton Hotel in History and Development: Propose the direction for coexistence 역사와 발전 속 밀레
anc.masilwide.com
'Architecture Project > Education' 카테고리의 다른 글
| DECO BOCO NURSERY SCHOOL (0) | 2023.08.04 |
|---|---|
| International Campus of Zhejiang University (0) | 2023.07.28 |
| Tabata Junior High School (0) | 2023.06.30 |
| Seiwa Kindergarten (0) | 2023.06.22 |
| Yongjiang Experimental School in Jiangbei District, Ningbo (0) | 2023.06.02 |
마실와이드 | 등록번호 : 서울, 아03630 | 등록일자 : 2015년 03월 11일 | 마실와이드 | 발행ㆍ편집인 : 김명규 | 청소년보호책임자 : 최지희 | 발행소 : 서울시 마포구 월드컵로8길 45-8 1층 | 발행일자 : 매일



