
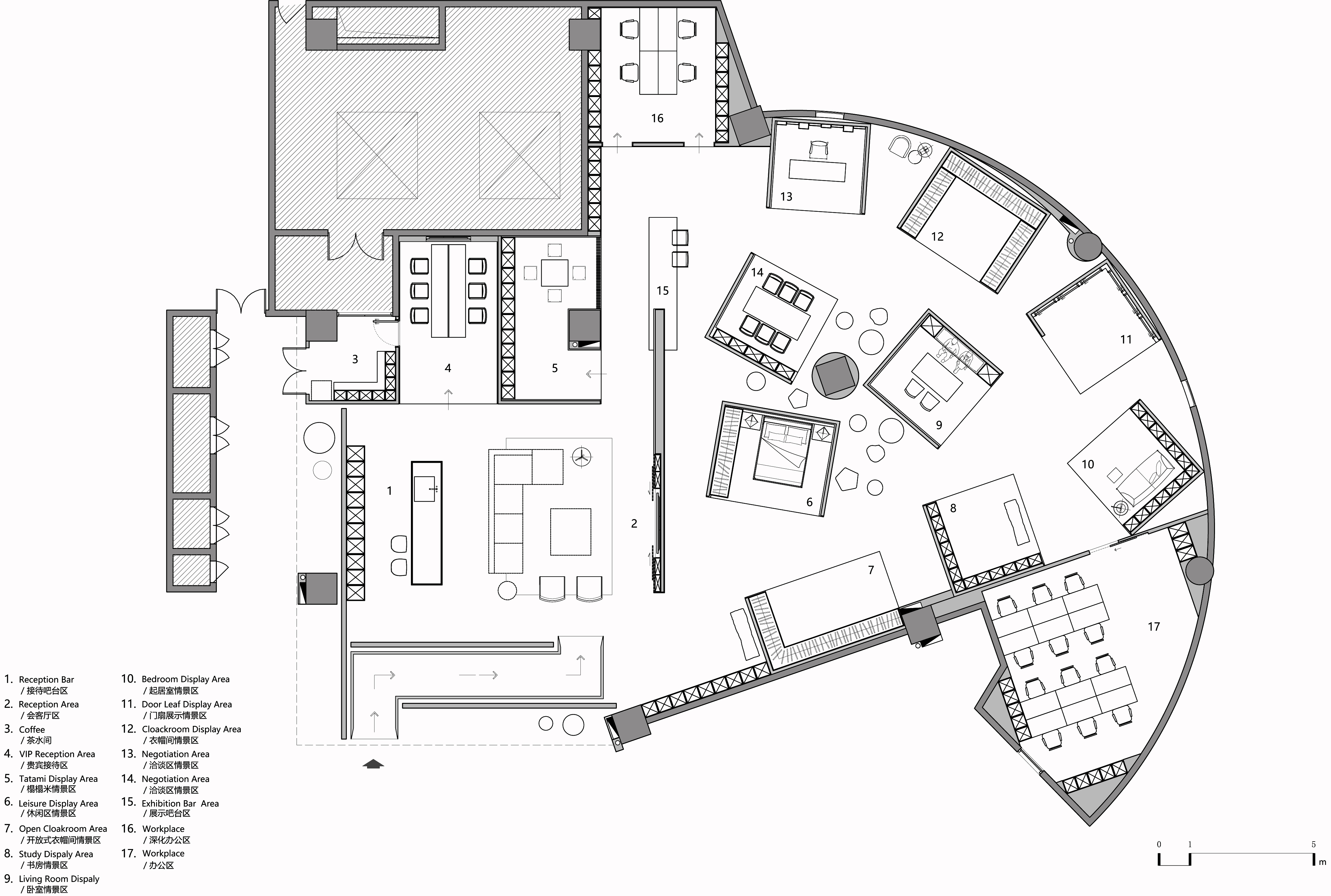
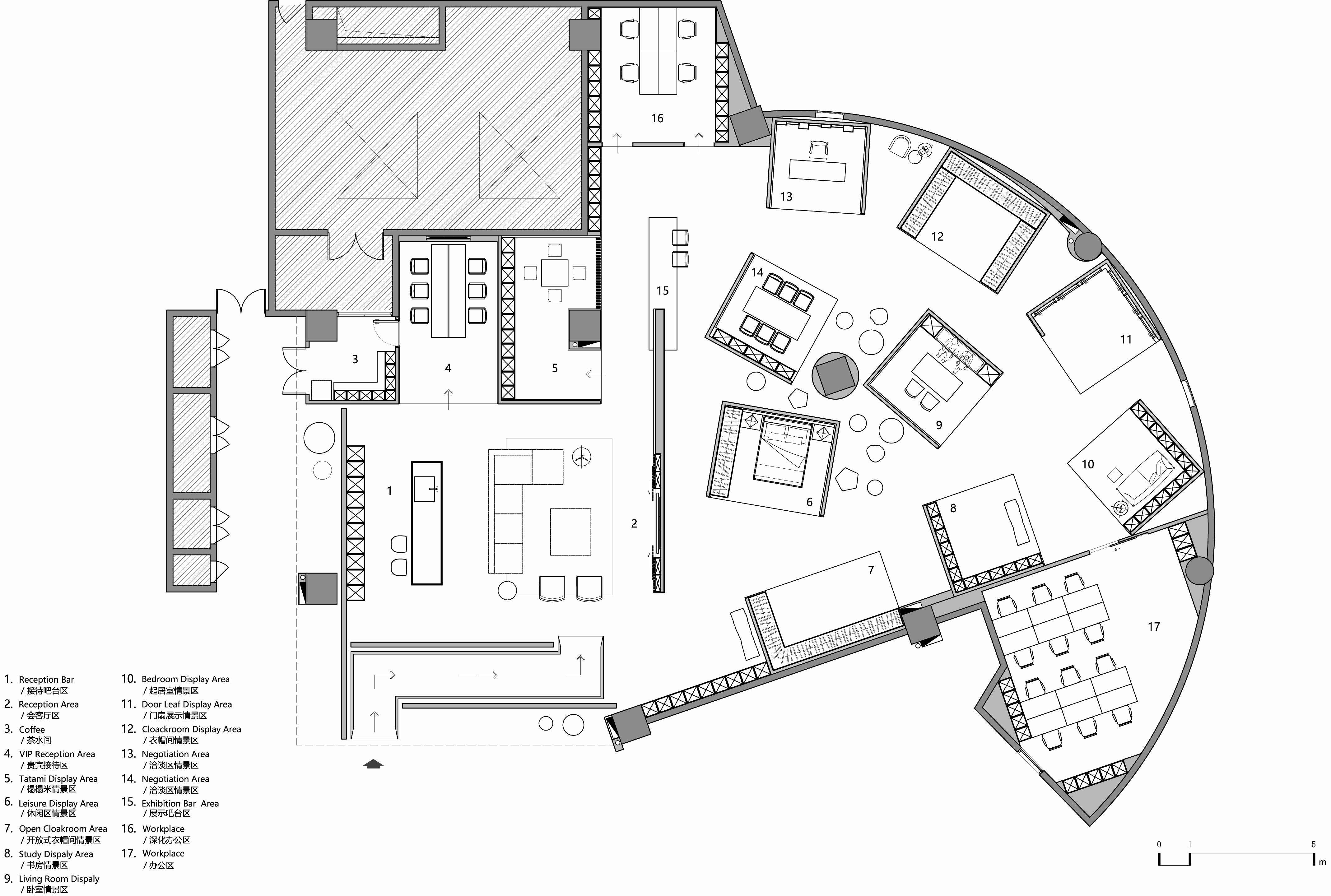
The existing space was divided into irregular patterns utilizing rectangular and fan-shaped zones. Instead of typical doors, the long and narrow rectangular passageway acts as a transitional space, giving people a sense of stepping through a threshold when they go down it. A series of partition walls were installed along the pathways, forming the spatial pattern, and maintaining continuity throughout the entire place while separating different areas. Some of these intersect with the existing interior architectural structure, showcasing asymmetrical aesthetics to create diverse spatial experiences. Natural light coming through rectangular ceilings gives the space a warm feeling.

기존의 공간은 패턴이 불규칙하여 직사각형 구역과 부채꼴 구역으로 나누어 공간을 활용됐다. 보통의 문과는 달리, 길고 좁은 사각형 통로는 과도기적인 공간으로 작용하고 사람들이 그 문을 통과할 때 의식을 지내는 느낌을 준다. 경로마다 일련의 칸막이 벽이 설치되어 공간 패턴을 형성한다. 더불어 서로 다른 영역을 분리하는 동시에 전체 공간의 연속성을 유지한다. 그 중 일부는 기존의 내부 건축 구조와 교차하여 비대칭 미관을 보여주어 다양한 공간을 경험하게 한다. 직사각형 천장을 통해 들어오는 자연광은 공간에 따뜻한 느낌을 준다.




디자인 JST ARCHITECTURE
위치 Fuzhou, China
면적 530㎡
준공 2020. 5.
대표디자이너 Xie Suting
디자인팀 Chen Shengzhong, Jin Jiao, Huang Qiong Lighting
컨설턴트 Xu Fengbing
발주자 Xinyi Meigu Customized Furniture Exhibition Hall
사진작가 He Chuan
해당 프로젝트는 건축문화 2021년 2월호(Vol. 477)에 게재되었습니다.
The project was published in the February, 2021 recent projects of the magazine(Vol. 477).
February 2021 : vol. 477
Contents : RECORDS THE EXPERIMENT TO FACE A REALITY IN AN INFINITE GRID : NEWS / COMPETITION / BOOKS : SKETCH PINK PAVILION IN PAVLOVSK / NEVEROVA OLESYA : RECENT PROJECT GLAMTREE RESORT EMBRACES NATURE / ARCHIWORKSHOP HOTEL MILLA MONTIS / PETER PICHLER AR
anc.masilwide.com
'Interior Project > Exhibition' 카테고리의 다른 글
| Pavilion for Design in Bay Area Exhibition (0) | 2023.07.19 |
|---|---|
| Recyclable Exhibition Design (0) | 2023.06.29 |
| Shijiazhuang CBD Planning Exhibition Center (0) | 2023.06.29 |
| Folding Garden (0) | 2023.05.12 |
| FURNITURE FOR AN EMPEROR IN TRANSITION (0) | 2023.03.21 |
마실와이드 | 등록번호 : 서울, 아03630 | 등록일자 : 2015년 03월 11일 | 마실와이드 | 발행ㆍ편집인 : 김명규 | 청소년보호책임자 : 최지희 | 발행소 : 서울시 마포구 월드컵로8길 45-8 1층 | 발행일자 : 매일



