

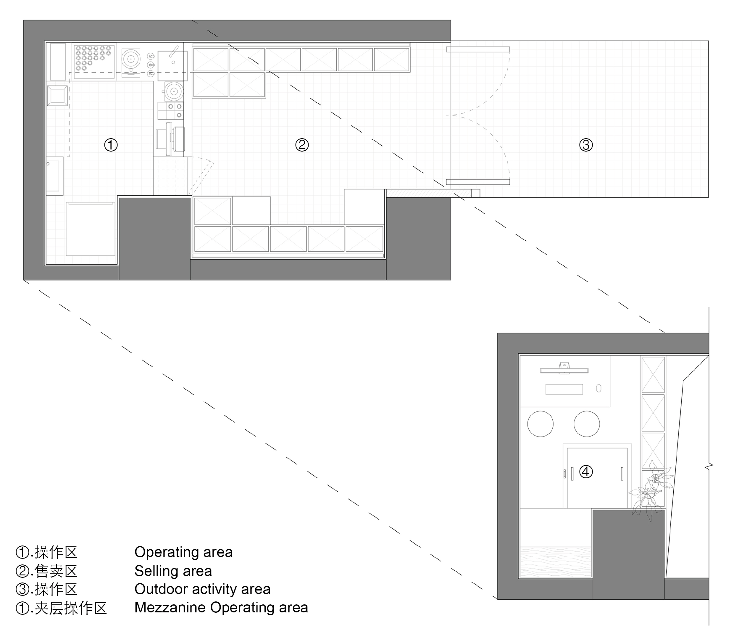
원래 공간은 이 지역의 에어컨 수리점이었다. 부지는 선형적이고 좁으며 너비가 3m 미만인 곳이다. 이 공간의 콘셉트는 멀리서도 쉽게 보이게 하며 동시에 공간 내부에서 즐거운 경험을 만드는 것이 었다. 상점 정면, 즉 외관은 전체 구조 구성에서 최우선 순위다. 내부는 맞춤형 선반과 중이층을 통해 공간 활용 효율을 높였다. 이 프로젝트의 성공 또는 실패를 결정하는 핵심 요소는 단면에 대한 심층 연구에 있다. 건축가는 소규모 부지에 더 많은 기능과 저장 공간을 만들기 위해 노력했을 뿐만 아니라 일광 개선도 기대했다. 입구의 높이가 높아져 내부로의 햇빛 침투가 극대화되어 일광이 크게 향상된다. 현관 디자인을 통해 JOYS에 색다른 이미지를 주고 빛을 더 부드럽게 보이게 하고 싶었다. 밤이 되면 실내 조명이 빛을 투과하여 도시를 응시하는 ‘눈’이 된다.


디자인 Onexn Architects
위치 Futian, Shenzhen, China
면적 9㎡
설계기간 2019. 7. - 8.
시공기간 2019. 8. - 9.
대표건축가 Zhang Bo, Wang Jingjing
디자인팀 An Bingxiang, Shi Qiuyang, Guo Xiaohong
시공설계 Li Nanfang
시공 Essence Atelier Engineering Co., Ltd.
사진작가 Li Jinhui
해당 프로젝트는 건축문화 2020년12월호(Vol. 475)에 게재되었습니다.
The project was published in the December, 2020 recent projects of the magazine(Vol. 475).
December 2020 : vol. 475
Contents : RECORDS AS THE ARCHITECTURAL FESTIVAL, THE 3RD PAJU ACF SINGAPORE ARCHIFEST 2020 : UAUS OPENS THE EXHIBITION THAT THE MEANING OF 'COEXISTENCE' FOR LIVING TOGETHER : NEWS / COMPETITION / BOOKS : SKETCH KOREA / JUNGGEUN KIM : RECENT PROJECT MIXED
anc.masilwide.com
'Interior Project > Retail' 카테고리의 다른 글
| Gemdale Upview Sales Center, Shenzhen (0) | 2023.06.30 |
|---|---|
| Experiential Hall in Shanghai (0) | 2023.06.28 |
| Yuanping Meijing Bookstore (0) | 2023.06.16 |
| HEYTEA LAB GUANGZHOU (0) | 2023.06.15 |
| Fusion Danilo Paint Showroom (0) | 2023.06.14 |
마실와이드 | 등록번호 : 서울, 아03630 | 등록일자 : 2015년 03월 11일 | 마실와이드 | 발행ㆍ편집인 : 김명규 | 청소년보호책임자 : 최지희 | 발행소 : 서울시 마포구 월드컵로8길 45-8 1층 | 발행일자 : 매일



