
A Neighborhood Perch
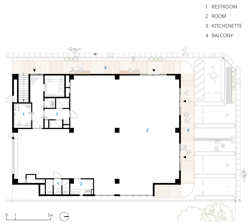
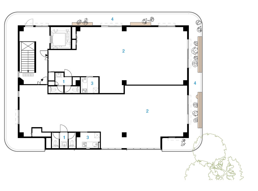
Located about 15 minutes on foot from the nearest train station in a suburb, Enhako Building sits on the border between a residential neighborhood and a mixed commercial-government district. The client contacted us as they were considering the site but unsure whether a leased commercial building there would be able to attract a steady flow of people given the location a block off the main road and not very close to the station. On weekdays, elderly people, homemakers, and children cross the border between the two districts mentioned above for various reasons. The commercial district contains a mix of clinics, osteopath offices, and welfare facilities frequented by the elderly; supermarkets and cafes where homemakers gather; and test-prep centers attended by children. On weekends, families shop at the morning market held in the parking lot of the city hall, spend time at the large park, and eat at cafes or family restaurants before returning to the residential neighborhood.
We envisioned the building as a familiar perch for people coming and going between the two areas, with verandas where they can stop and rest. People flow around the building on both weekends and weekdays. While the crowds are smaller than one would find closer to a station, there is reliable community foot traffic. Focusing on this, we created a veranda adjacent to the street and wrapped balconies around the second and third stories. The underside of the balconies form organically shaped, warm wooden eaves that draw people in and define the building’s design. The building faces north to take advantage of views across a tree-lined street to the park and city hall, and to invite in the sights and sounds of summer festivals and plant fairs nearby. The multi-use building contains shops and a clinic, and the veranda reaches invitingly into the street so that people of all ages can stop by on their outings around the neighborhood on both weekdays and weekends. Our goal was to design a commercial building that will be sustained in this way by members of the community. The interior can be rented as a whole, by the floor, or by unit depending on needs.

가까운 전망대
엔하코 빌딩은 교외에서 가장 가까운 기차역에서 도보로 약 15분 거리에 위치하며, 주거지역과 근린생활지역의 경계에 위치한다. 건축주는 부지의 특성을 고려하며, 큰길과 한 블록 떨어져있는 상업 시설에서부터 사람들의 꾸준한 유입을 유도할 수 있을지에 대해 고민했다. 평일의 엔하코 빌딩의 부지 인근 지역은 노인, 주부, 어린이들이 해당 지구의 경계를 넘나든다. 상권에는 노인들이 많이 찾는 클리닉과 정형외과 사무실, 복지시설, 주부들이 모이는 슈퍼마켓과 카페, 아이들이 자율학습 센터 등이 혼재해 있다. 주말이면 시청 주차장에서 열리는 지역 시장에 인근 주민들이 가족 단위로 방문하며, 대형공원에서 시간을 보내고 카페나 패밀리레스토랑에서 식사를 한 뒤 주택가로 돌아온다. 결국 주말과 평일 모두 사람들이 건물 주변으로 모여들게 된다.
우리는 주거 지역과 근린생활지역을 오고 가는 사람들에게 익숙한 휴식처를 제공하는 장소를 상상했고, 그들이 멈추고 쉴 수 있는 베란다가 있는 건물을 구상했다. 해당 지역은 역 인근의 거리에 비해서는 유동 인구가 적지만 지역 주민들의 유동 인구는 확실히 있는 곳이다. 이를 중심으로 거리에 인접한 베란다를 만들고 2층과 3층을 발코니로 감싸는 구조를 제안했다. 발코니는 건물의 디자인을 정의하는 유기적인 모양의 따뜻한 나무 처마를 형성화한 모양이며 그 아래로 사람들을 끌어들인다. 북향의 건물은 나무가 우거진 거리와 공원, 시청 건물을 볼 수 있으며, 근처의 여름 축제와 식물 박람회의 경치를 건물 안에서 경험할 수 있도록 디자인되었다. 복합상업시설에는 상가와 진료소가 들어서 있고, 베란다는 거리를 향해 매력적으로 뻗어 있어 남녀노소 누구나 나들이를 갈 수 있다. 건축가는 이런 식으로 지역 사회 구성원들이 접근하고 유지할 수 있는 상업용 건물을 설계하는 것을 의도하였다. 건물의 내부는 필요에 따라 건물 전체, 층, 단위별로 대여할 수 있다.














건축가 Organic Design Inc.
위치 Saitama, Japan
용도 상업시설
연면적 784㎡
규모 지상 3층
준공 2022. 11.
대표건축가 Hideo Kumaki, Rei Maki
프로젝트건축가 Hideo Kumaki, Rei Maki
구조엔지니어 Yoshio Kimura Structure Engineering Limited.
시공 Gunpohaxia Corporation
발주자 Local LandLoard
사진작가 Yukinori Okamura
해당 프로젝트는 건축문화 2023년 4월호(Vol. 503)에 게재되었습니다.
The project was published in the April, 2023 recent projects of the magazine(Vol. 503).
April 2023 : vol. 503
Contents : Records 데이비드 치퍼필드, 2023년 프리츠커상 수상 테크놀로지와 디지털로 설계된 강소도시를 만나다 : NEWS / COMPETITION / BOOKS : SKETCH How to Capture the Moment of LIFE / Damon Kowarsky 삶의 순간을 포
anc.masilwide.com
'Architecture Project > Office' 카테고리의 다른 글
| UNNO HOUSE (0) | 2023.06.12 |
|---|---|
| TOKYO MIDORI LABO. (0) | 2023.06.09 |
| Xi’an VANKE VIEW LAKE Sales Center (0) | 2023.06.07 |
| Maruya Corporation Head Office Phase I&II (0) | 2023.05.19 |
| Sunwoo Building (0) | 2023.05.02 |
마실와이드 | 등록번호 : 서울, 아03630 | 등록일자 : 2015년 03월 11일 | 마실와이드 | 발행ㆍ편집인 : 김명규 | 청소년보호책임자 : 최지희 | 발행소 : 서울시 마포구 월드컵로8길 45-8 1층 | 발행일자 : 매일



