
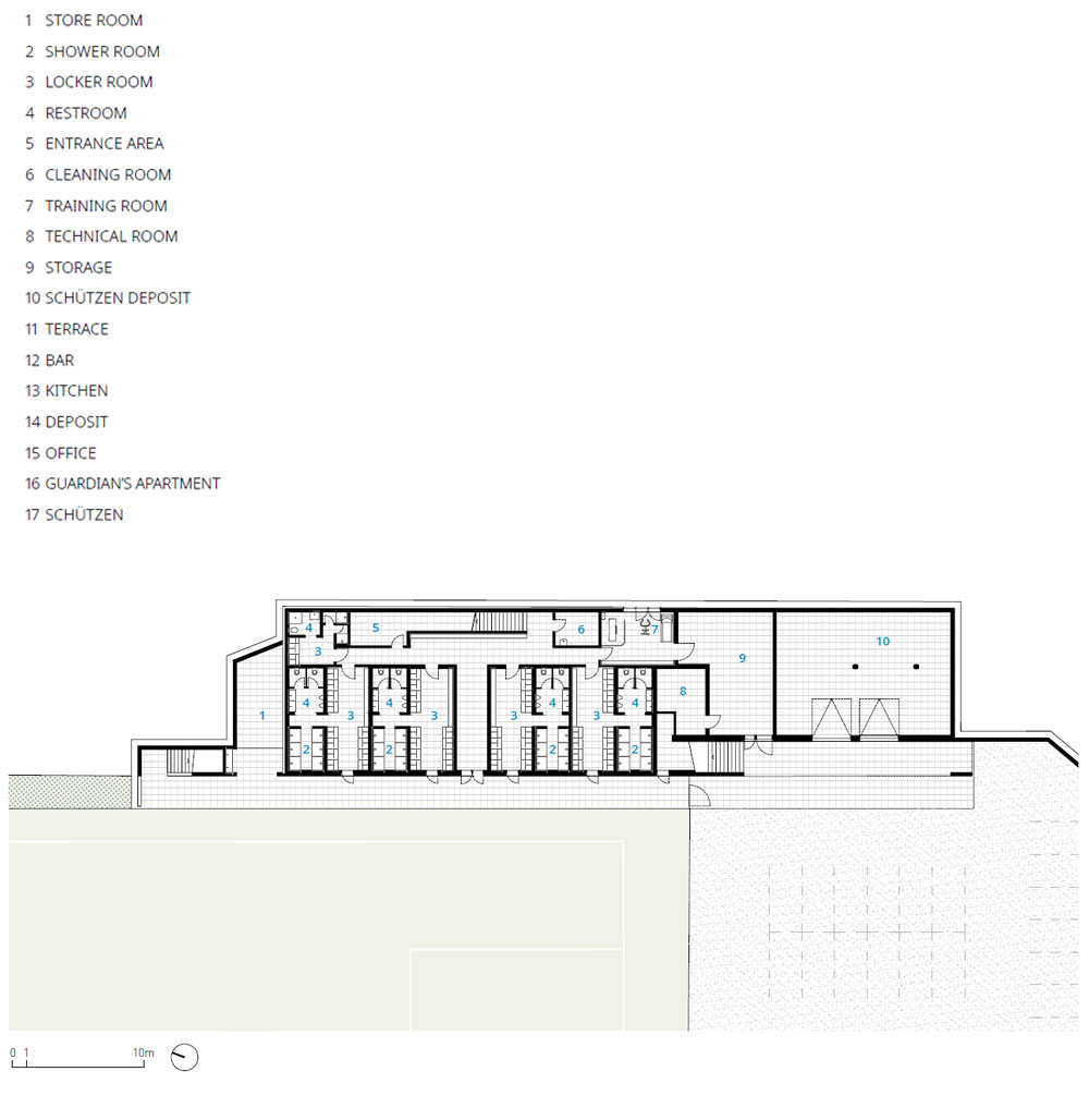
Located in the small town of Laghetti (Egna Municipality, Bolzano) nearby the riverbanks of the Adige river, the building sits at the foothills of Mount Corno whose natural reserve park forms a dramatic backdrop to the sports facility. Infrastructural in character, Fieldhouse is wedged between a five-a-side football pitch to the north, the existing football field to the west and the steeping terrain to the east. With its low-lying body that transforms as it moves laterally along the site, Fieldhouse mutates from a retaining wall to a long linear roof to then become a raised groundscape that acts not only as a viewing platform for sporting events, but also as an outdoor venue for social occasions. MoDusArchitects, appointed to demolish the old building that housed the changing rooms and the sports association, proposes a new building with an extension that would improve the building's energy efficiency while reusing the existing photovoltaic system. In many ways Fieldhouse is a connector piece, part of the larger puzzle of small-town settlements that line the valley basins of South Tyrol: residential neighbourhoods, light-industrial zones and sports infrastructures sit side-by-side in limited swathes of land. Positioned at the point of inflection between valley and mountain, Fieldhouse is characterized by a regular and elongated plan, while also providing a bold geometrical profile in elevation that measures itself up against the vertical landscape. In section, Fieldhouse mediates the topography with two levels that connect up the various programs and vista points. Positioned at the point of inflection between valley and mountain, Fieldhouse is characterized by a regular and elongated plan, while also providing a bold geometrical profile in elevation that measures itself up against the vertical landscape. In section, Fieldhouse mediates the topography with two levels that connect up the various programs and vista points.

필드하우스는 레크레이션 공간이 있는 체육 전용 시설로, 이탈리아 볼차노의 라게티(Laghetti)라는 작은 마을의 강둑 근처에 지어졌다. 북측과 서측의 두 개의 축구장과 동측의 가파른 지형의 사이에 자리 잡아 스포츠 시설의 너머로 극적인 풍경을 보여준다. 전체적으로 수평을 이루는 구조를 지니며, 부지를 따라 바깥쪽을 향해 이어지는 옹벽은 긴 선형의 지붕 겸 옥상 공간으로 변화하는 것을 볼 수 있다. 옥상 공간은 스포츠 경기를 관람할 수 있는 관람석의 역할뿐만 아니라, 사교 행사를 위한 야외 공간으로 활용할 수 있다. 필드하우스는 남부 Tyrol 지역의 제한된 대지 안에 자리잡고 있으며, 기존의 건물을 철거하면서도 태양광 시스템은 재사용하여 건물의 에너지 효율성을 높였다. 마치 커다란 퍼즐의 일부처럼 주변의 주거지역, 경공업지대, 스포츠 기반 시설 등과 인접하여 다양한 인프라를 구축하고 있다. 골짜기와 산의 변곡점에 위치한 필드하우스는 규칙적이고 수평적으로 긴 배치를 가진 것이 특징이다. 이는 수직적인 지형과는 대조되는 대담한 기하학적인 실루엣을 제공한다. 건물의 입면도를 통해 다양한 전망과 프로그램을 연결하며 두 개의 층으로 구성된 것을 확인할 수 있다.










건축가 MoDusArchitects
위치 Bozen, Italy
용도 체육시설
건축면적 430㎡
연면적 1.080㎡
설계기간 2018 - 2020
시공기간 2021 - 2022
준공 2022. 11.
대표건축가 Sandy Attia, Matteo Scagnol
프로젝트건축가 Sandy Attia, Matteo Scagnol, Anna Valandro
구조엔지니어 3M Engineering s.r.l.
시공 Edil Vanzo Costruzioni Srl (Cavalese, TN)
발주자 Comune di Egna
사진작가 Gustav Willeit
해당 프로젝트는 건축문화 2023년 4월호(Vol. 503)에 게재되었습니다.
The project was published in the April, 2023 recent projects of the magazine(Vol. 503).
April 2023 : vol. 503
Contents : Records 데이비드 치퍼필드, 2023년 프리츠커상 수상 테크놀로지와 디지털로 설계된 강소도시를 만나다 : NEWS / COMPETITION / BOOKS : SKETCH How to Capture the Moment of LIFE / Damon Kowarsky 삶의 순간을 포
anc.masilwide.com
'Architecture Project > Cultural' 카테고리의 다른 글
| IOMA (0) | 2023.06.14 |
|---|---|
| Ebetsu Tsutaya Books (0) | 2023.06.08 |
| ZOINA AUSPICIOUS OMEN SALES CENTER (0) | 2023.06.05 |
| Hubei Foreign Language Bookstore (0) | 2023.06.02 |
| Shuyang Art Gallery (0) | 2023.05.25 |
마실와이드 | 등록번호 : 서울, 아03630 | 등록일자 : 2015년 03월 11일 | 마실와이드 | 발행ㆍ편집인 : 김명규 | 청소년보호책임자 : 최지희 | 발행소 : 서울시 마포구 월드컵로8길 45-8 1층 | 발행일자 : 매일



