
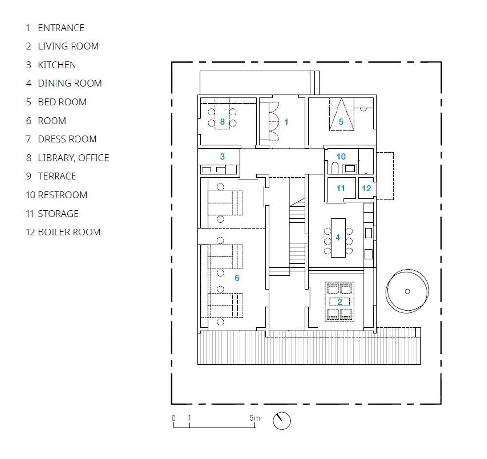
The Siheung J House faces Sihwa Lake. The land where the house stands is a rectangular shape with a long north-south axis, located in a developed housing area. Since the site faces Sihwa Lake to the south, it was important to design the house in a way that maximizes the view of the lake. The northern side of the site faces the road, which does not provide any view of the lake. The facade of the house was designed to look uncomplicated when viewed from the entrance road. People coming out of the entrance can see the outside through small slits in the walls. Unlike the smooth finish of the building, the walls were treated with a rough panel finish. Three indirect lights were installed inside and outside the entrance wall to create an object-like presence of the wall as part of the building's facade.
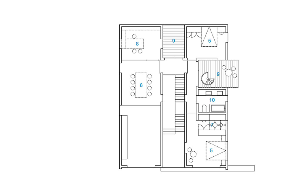
When residents enter to the indoors through the entrance, they face a panoramic view of the lake filling the entire front of the living room. The space is divided into a common area in the center and a living/work space for the couple. The central common area can also be used as an exhibition place with the option of opening up two floors. There are two sets of stairs that connect to the second floor. To increase versatility, a separate staircase is provided for the common area and the work space, with the two staircases creating a circulation path within the building. The central common area and the work space have a double-height ceiling and a vertically open space planned to allow for a great view of the lake. In particular, the open central area also serves as an outdoor space due to its unobstructed view. The building is a concept that joins two completely different buildings into one. The two-story open space in the middle of the two buildings is located between the two structures. Especially in the teleworking area, the beam between the first and second floors of the front window is eliminated to provide more visibility. Finally, the Siheung J House was planned with as much indirect lighting as possible. In addition to the ceiling lights, indirect lighting was installed in furniture and shelves inside the house, and the high-ceilinged open space was designed with structures protruding from the walls to be used as location for indirect lighting

시흥 J 주택은 시화호수를 바라보고 있는 집이다. 집이 들어선 땅은 정비된 택지 지구로 남북쪽으로 긴 형태의 정방형이다. 대지 정남향에 시화호수가 있었기 때문에, 이 땅에 들어설 집에서 어떻게 호수를 바라보게 할 것인지가 중요한 요소였다. 대지의 북측은 도로와 접하며, 도로에서는 시화 호수가 보이지 않는 형태다. 입면은 진입도로에서 집을 봤을 때, 최대한 단순하게 보이도록 디자인했다. 현관에서 나오는 사람은 가벽의 작은 슬릿을 통해 외부를 볼 수 있다. 가벽은 건물의 마감과는 달리 거친 송판 마감으로 처리했다. 입구 가벽에 안쪽과 바깥쪽 총 3곳에 간접조명을 설치하여, 가벽 자체가 건물 입면을 나타내는 하나의 오브제 역할을 하도록 의도했다.
거주자가 현관을 통해 실내로 진입하면 거실 전면 가득 찬 호수 풍경과 마주한다. 공간은 중앙의 공용공간을 중심으로 부부의 생활공간과 업무 공간으로 나뉜다. 중앙의 공용공간은 2개 층으로 오픈되어 큰 그림을 설치할 수 있는 전시실로도 사용 가능하다. 집에는 2층과 이어지는 계단이 두 군데 있다. 용도에 따라 사용할 수 있도록, 공용공간과 업무 공간에 각각 계단을 만들고 동선을 분리하면서 더불어 두 군데의 계단은 건물 내에서 순환 동선을 만든다. 중앙의 공용 공간과 업무 공간은 두 개 층고를 트고 수직으로 열린 공간으로 계획하여, 정면의 시화호수 풍경을 크게 즐길 수 있다. 특히, 중앙의 열린 공간은 주거에서 실내 쪽으로도 시선이 열리게 되므로 실내이지만 외부와 같은 역할을 하고 있다. 이 건물은 완전히 다른 두 개의 건물을 하나로 연결하고 있는 콘셉트다. 두 개의 건물의 중간에 있는 2개 층 오픈 공간은 두 구조의 중간에 있다. 특히, 재택 업무를 위한 공간에서 전면 창 부분에 1층과 2층 사이 보를 없애서 시야가 더 많이 오픈되도록 하였다. 마지막으로, 시화 J 주택은 최대한 간접조명으로 계획됐다. 천장뿐 아니라, 실내의 가구나 선반 등에도 간접조명을 설치했으며, 천장 높이가 높은 열린 공간은 벽에 구조물을 돌출하도록 만들어 이것을 간접등으로 사용할 수 있도록 했다.

















건축가 황준도시건축사사무소
위치 경기도 시흥시 정왕동
용도 단독주택
대지면적 348㎡
건축면적 160㎡
연면적 211㎡
규모 지상 2층
건폐율 46%
용적률 61%
설계기간 2021. 3. - 2022. 4.
시공기간 2021. 11. - 2022. 6.
준공 2022. 6.
대표건축가 황준
프로젝트건축가 황준
인테리어설계팀 신보은, 이언재, 황윤재
구조엔지니어 티섹구조_이우호
기계엔지니어 (주)천일이앤씨
전기엔지니어 (주)천일이앤씨
감리 황준도시건축사사무소_황준
시공 장방(주)
발주자 주식회사 아이폼
사진작가 박영채
해당 프로젝트는 건축문화 2023년 3월호(Vol. 502)에 게재되었습니다.
The project was published in the March, 2023 recent projects of the magazine(Vol. 502).
March 2023 : vol. 502
Contents : NEWS / COMPETITION / BOOKS : SKETCH Maybe It's a Story from the Past / Jim Keen 어쩌면 과거의 이야기일지도 / 짐 킨 : RECENT PROJECT Remed Headquarters / TODOT Architects and Partners 산해_리메드 사옥 / 투닷건축사사무
anc.masilwide.com
'Architecture Project > Single Family' 카테고리의 다른 글
| Anna Garden (0) | 2023.05.08 |
|---|---|
| Tiny House in YOKOHAMA (0) | 2023.05.05 |
| MUSIMJAE (0) | 2023.05.03 |
| A Modern Japanese-style Residence with Square Shape (0) | 2023.05.02 |
| CELL PARTITION-House (0) | 2023.04.28 |
마실와이드 | 등록번호 : 서울, 아03630 | 등록일자 : 2015년 03월 11일 | 마실와이드 | 발행ㆍ편집인 : 김명규 | 청소년보호책임자 : 최지희 | 발행소 : 서울시 마포구 월드컵로8길 45-8 1층 | 발행일자 : 매일



