
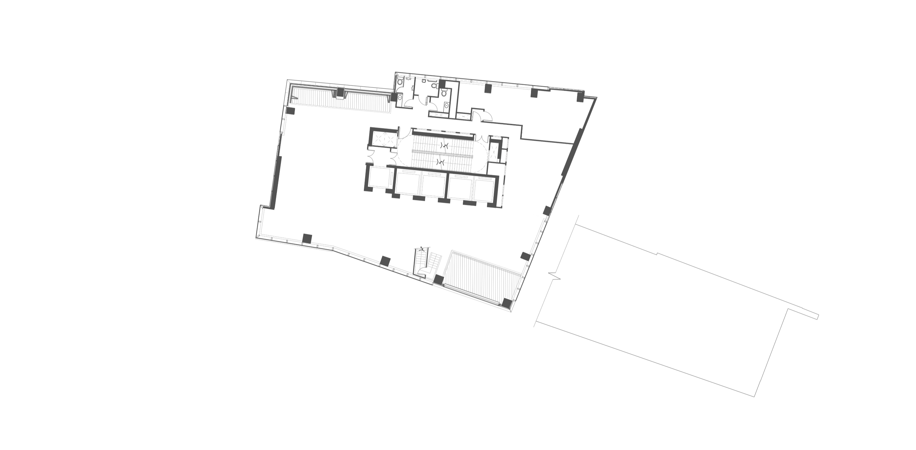
H Code is a unique architecture project that provides an urban design solution. At the heart of Soho, the entertainment and art district of Hong Kong, this project aims to integrate the urban texture with a low rise block on the historic Pottinger street and a dense highrise block behind. Consisting of a 10 storey low block and a 22 storey high block, connectivity on the ground level along Ezra Lane is enhanced by setting back the shop frontage to create a wider pedestrian walkway, thus solving an urban problem while creating an active pedestrian link. The project supports pop up art events and installations.

H 코드는 도시 디자인에 대한 해법을 찾은 하나의 건축 프로젝트다. 홍콩의 예술거리인 소호 중심부에서 이 프로젝트는 주변을 둘러싼 저층 블록과 고층 블록의 도시적인 질감을 통합하고자 했다. 10층의 저층부와 22층의 고층부로 구성되어 거리로 연결되는 이 빌딩은 지상층과의 연결성을 강화하고 보행자 통로를 넓게 조성해 도시 문제를 해결하는 동시에 능동적으로 보행자들을 끌어들인다.








건축가 CL3 Architects
위치 Central, Hong Kong
용도 Commercial
면적 842㎡
준공 2018. 10.
대표디자이너 William Lim, Clinton Tsoi
발주자 Henderson Development Agency, Ltd.
사진작가 Nirut Benjabanpot
해당 프로젝트는 건축문화 2020년 6월호(Vol. 469)에 게재되었습니다.
The project was published in the June, 2020 recent projects of the magazine(Vol. 469).
June, 2020 : vol. 469
Contents: RECORDSTHE YOUNG IS PREPANING AN "ARCHITECTURE" AFTER COVID-19 THE STRANGE FIELD OF TELEPORTATION : NEWS / COMPETITION / BOOKS : SKETCHA CHURCH IN EASTERN ICELAND, AND SCENERY / PAUL BARDOT : RECENT PROJECT BIT-SOL-MARU / RLDA SUNGIN SPACE / SPAC
anc.masilwide.com
'Architecture Project > Commercial' 카테고리의 다른 글
| The Quayside (0) | 2023.06.06 |
|---|---|
| Peak Tea (0) | 2023.05.26 |
| EQUATOR PEAK COFFEE (0) | 2023.05.09 |
| Temporary Site of Shengli Market – Creation of Spatial Order (0) | 2023.05.04 |
| JINS PARK Maebashi (0) | 2023.04.24 |
마실와이드 | 등록번호 : 서울, 아03630 | 등록일자 : 2015년 03월 11일 | 마실와이드 | 발행ㆍ편집인 : 김명규 | 청소년보호책임자 : 최지희 | 발행소 : 서울시 마포구 월드컵로8길 45-8 1층 | 발행일자 : 매일


