
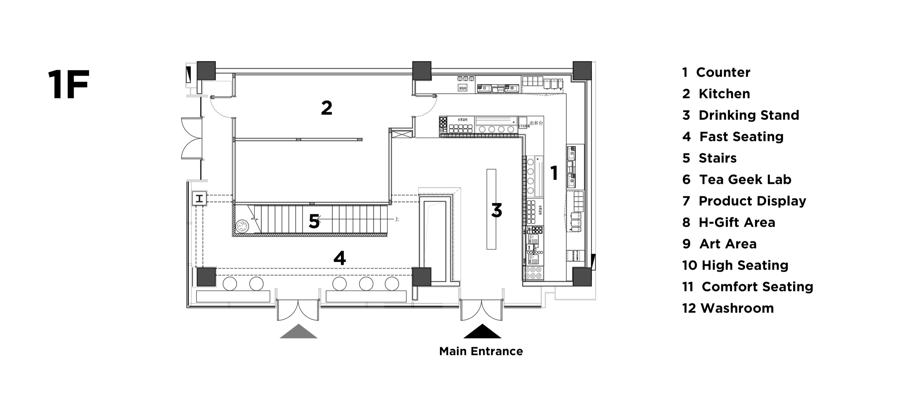
Located in the commercial hub of Xiamen Island, the project is a flagship store of HEYTEA, China's leading tea drink brand. Based on characteristics of the open two-storey architectural space, MOC DESIGN OFFICE created bottom-up oblique order within it, which accommodates various possibilities for urban life and socializing. The store is situated at the street corner, and is enclosed by two glass curtain walls which form a right angle. The transparent glass opens the interior to the outside and enhances its interaction with outdoor pedestrians. The overall space features modern geometric forms, simple, austere materials and hues, as well as an ambience that combines spirit and artistic style. Large areas of interior surfaces are covered with concrete and gold stainless steel, which present strong contrast of textures. Black baked finish is applied to details, helping to strike a balance and add a modern touch to the space. Besides, gold stainless steel is extended to the staircase installation, which appears more flexible and dynamic under the soft light and becomes a visual highlight in the space.

하문 섬의 상업지구에 위치한 이 매장은 중국의 대표적인 차 음료 브랜드인 희차(HEYTEA)의 매장이다. 디자이너는 외부로 열린 2층 공간의 특성을 바탕으로 위를 향하는 경사를 만들어 도시 생활과 사회화에 대한 다양한 가능성을 담았다. 길모퉁이에 위치한 매장은 직각으로 교차하는 두 개의 유리 커튼월로 둘러싸여 있다. 투명한 유리를 통해 매장 내부와 외부 보행자 사이의 상호작용을 강화했다. 전체적으로 기하학적인 형태와 단순한 색조, 그리고 감각적인 스타일이 엮여 분위기를 만든다. 도장 콘크리트와 금색 스테인리스 스틸은 색감과 질감에서 강한 대조를 보인다. 검은색의 마감재가 디테일에 적용되어 그 대비 사이에서 균형을 잡고 현대적인 감각을 더한다. 희차(HEYTEA)의 창조적인 정신에 들어맞는 공간의 풍부한 경험과 유기적으로 조화된 구조물, 재료, 건축물, 환경이 도시와 융화되며 보행자들의 발길을 끌어들인다.





디자이너 MOC Design Office
위치 Xiamen, China
용도 Commercial
면적 460㎡
설계기간 2018. 9. - 10.
준공 2018. 12.
대표디자이너 Liang Ningsen, Wu Xiuwei
재료 Precast cement board, gold stainless steel, KD unpainted wooden panel
발주자 HEYTEA
사진작가 ArchiTranslator
해당 프로젝트는 건축문화 2020년 6월호(Vol. 469)에 게재되었습니다.
The project was published in the June, 2020 recent projects of the magazine(Vol. 469).
June, 2020 : vol. 469
Contents: RECORDSTHE YOUNG IS PREPANING AN "ARCHITECTURE" AFTER COVID-19 THE STRANGE FIELD OF TELEPORTATION : NEWS / COMPETITION / BOOKS : SKETCHA CHURCH IN EASTERN ICELAND, AND SCENERY / PAUL BARDOT : RECENT PROJECT BIT-SOL-MARU / RLDA SUNGIN SPACE / SPAC
anc.masilwide.com
'Interior Project > Cafe&Restaurant' 카테고리의 다른 글
| Biiird Yakitori (0) | 2023.05.24 |
|---|---|
| Wushuang · Sipping Tea (0) | 2023.05.15 |
| Late Night Kitchen (0) | 2023.05.12 |
| Heytea at Longfor Paradise Walk in Chongqing (0) | 2023.05.02 |
| EMBER, Shenzhen (0) | 2023.04.28 |
마실와이드 | 등록번호 : 서울, 아03630 | 등록일자 : 2015년 03월 11일 | 마실와이드 | 발행ㆍ편집인 : 김명규 | 청소년보호책임자 : 최지희 | 발행소 : 서울시 마포구 월드컵로8길 45-8 1층 | 발행일자 : 매일



